MEIN ERGEBNIS ANPASSEN

Neubauwohnungen mit Ruhe & Lebensqualität - Objektnr. 5606729

1230
Ort
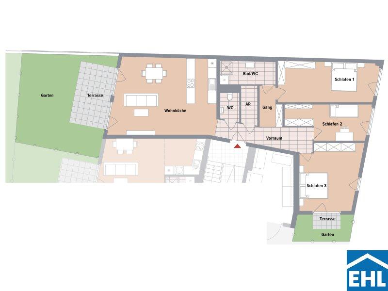
111,58 m²
Fläche
4.0
Zimmer
WEITERE MEDIEN

ECKDATEN
FindMyHome.at // Externe Immobilien-ID5606729 // 92810
ImmobilienartWohnung - Eigentum
AnschriftCanavesegasse 4/2
1230 Wien
Baujahr2028
Fläche111,58 m²
Terrassen2 (13,00 m²)
Zimmer4.0
Bad1
WC1
 Abstellraum
Kaufpreis:€ 589.600,00
Ratenzahlung:Finanzierungsmöglichkeiten für diese Immobilie anzeigen
Provision: Provision bezahlt der Abgeber.







BESCHREIBUNG

Neubauwohnungen mit Ruhe & Lebensqualität

CANAVESEGASSE 4

Mit viel Sorgfalt und Weitblick wird in der Canavesegasse 4 im 23. Wiener Gemeindebezirk Liesing ein modernes und lebenswertes Wohnprojekt entwickelt.

Eingebettet im charmanten Stadtteil Atzgersdorf, liegt das Grundstück in einer ruhigen, von Bäumen gesäumten Straße nur wenige Schritte von der historischen Kirche im Ortskern entfernt. Ein Ort, an dem Tradition auf zeitgemäße Architektur trifft.

Der geplante Neubau überzeugt durch durchdachte Architektur und hohe Wohnqualität: Balkone, Terrassen und großzügige Grünflächen schaffen private Rückzugsorte, während eine Tiefgarage für Komfort im Alltag sorgt. Ergänzt wird das Wohnangebot durch gewerbliche Flächen, die dem Projekt zusätzliche Lebendigkeit verleihen.

Insgesamt entstehen zwei Baukörper mit 18 Wohnungen ergänzt durch attraktive Freiflächen. Das Untergeschoss bietet eine Tiefgarage mit 20 PKW-Stellplätzen sowie 2 Motorrad-Stellplätzen.

Ein Projekt, das nicht nur Wohnraum schafft, sondern ein neues Zuhause durchdacht, wertig und eingebettet in ein gewachsenes Umfeld.


geplante Fertigstellung: ca. Ende 2027/Anfang 2028

Der Verkauf erfolgt provisionsfrei für den Käufer!

Das Projekt:

  • 18 Eigentums- und Vorsorgewohnungen
  • 4 Büros bzw. Ordinationen
  • Wohnungsgrößen von 42 m² bis 115 m²
  • Tiefgarage mit 20 Stellplätzen
  • Fahrradabstellraum
  • Ein Kellerabteil je Wohnung
  • Private Freiflächen in Form von Gärten, Balkonen oder Terrassen

 

Die Ausstattung:

  • Fußbodenheizung mittels Fernwärme
  • Photovoltaikanlage
  • Hochwertige Eichenparkettböden
  • Hochwertige Sanitärausstattung
  • Fenster mit 3-fach-Verglasung
  • Außenliegender Sonnenschutz

 

Die Lage & Infrastruktur:

Die Canavesegasse 4 liegt im charmanten Stadtteil Atzgersdorf im 23. Wiener Gemeindebezirk. Die ruhige, alleeartige Wohnstraße befindet sich nahe dem historischen Ortskern und bietet eine angenehme, gewachsene Nachbarschaft. Geschäfte des täglichen Bedarfs, Schulen sowie öffentliche Verkehrsanbindungen sind rasch erreichbar, während Grünflächen und Erholungsräume in der Umgebung für hohe Lebensqualität sorgen.

Öffentliche Anbindung:

Schnellbahn: S2, S3 und S4: von Bahnhof Atzgersdorf bis Wien Floridsdorf bzw. Wiener Neustadt.

Buslinien: 6A, 58A und 58B Verbindung zu U4-Station Hietzing, 60A und 66A Verbindung Bahnhof Wien

Wir weisen darauf hin, dass zwischen dem Vermittler und dem zu vermittelnden Dritten ein familiäres oder wirtschaftliches Naheverhältnis besteht.


Infrastruktur / Entfernungen

Gesundheit
Arzt <700m
Apotheke <225m
Klinik <475m
Krankenhaus <1.675m

Kinder & Schulen
Schule <125m
Kindergarten <250m
Universität <4.600m
Höhere Schule <4.500m

Nahversorgung
Supermarkt <200m
Bäckerei <200m
Einkaufszentrum <1.575m

Sonstige
Geldautomat <225m
Bank <200m
Post <1.550m
Polizei <1.550m

Verkehr
Bus <50m
U-Bahn <1.750m
Straßenbahn <1.775m
Bahnhof <375m
Autobahnanschluss <2.325m

Angaben Entfernung Luftlinie / Quelle: OpenStreetMap

Provision: Provision bezahlt der Abgeber.


Alle Details anzeigen

KONTAKT






 

Lasse dich kostenlos vom Anbieter dieser Immobilie zurückrufen.







 


 
EHL Wohnen GmbH
Ilse Reindl
Telefonnummer anzeigen Telefon Allgemein: +4315127690410
Handy Bearbeiter: +4366488160143
 
Bitte dem Makler die FindMyHome.at - ID bekanntgeben: 5606729

Bewertungen dieses Anbieters
Qualitätsmakler
Qualitätsmakler:
Netiquette
Freundlichkeit
82 %

BEWERTUNGEN DIESES ANBIETERS

 
Qualitätsmakler
UNSERE HALL OF FAME DER BESTEN ANBIETER
Qualit�tsmakler
Qualitätsmakler
2012, 2013, 2014, 2015, 2016, 2017, 2018, 2019, 2020, 2021, 22/23, 2024, 2025
Weiterempfehlung
WIRD GERNE

Freundlichkeit
BESONDERS
FREUNDLICH
Netiquette
FINDMYHOME
NETIQUETTE
Auch du kannst bewerten! 7 Tage nach deiner Anfrage erhältst du dafür von uns ein Bewertungsmail.
Alle Infos zu unseren Auszeichnungen und dem FINDMYHOME.AT Qualitätsprogramm findest du hier: Übersicht anzeigen

FINANZIERUNG
?>

Du willst wissen, wie viel dein Umzug kosten wird?

Mach gleich den kostenlosen Preisvergleich und schau, welche seriösen Anbieter in deiner Region günstig deinen Umzug organisieren


ZUM UMZUGS-VERGLEICH
-->

MYHOME BLOG
SuchAgentin auf FindMyHome.at
Unterschiedlichen Rechtsthemen, köstliche Rezepte, neueste Design-Highlights, sowie aktuelle Technik-Tools für Ihr Eigenheim.


FINDMYHOME.AT SUCHAGENTIN
SuchAgentin auf FindMyHome.at
Hallo, soll ich dir ähnliche Immobilien kostenfrei per E-Mail schicken?


ÄHNLICHE IMMOBILIEN
Aehnliche Immobilie - Vorschaubild 1

**BAUSTART** KALKSBURGA - Wohnungen mit Pool - Objektnr. 5515296

102,28 m² - 3.0 Zimmer
565900 €
PLZ: 1230

Mehr anzeigen

Aehnliche Immobilie - Vorschaubild 2

Living in 23 - Smart Wohnen in nachhaltiger Holz-Hybridbauwe... - Objektnr. 5604388

92,98 m² - 4.0 Zimmer
569000 €
PLZ: 1230

Mehr anzeigen

Aehnliche Immobilie - Vorschaubild 3

Modernes Wohnen im grünen Süden Wiens - Objektnr. 5606724


109,61 m² - 2.0 Zimmer
642000 €
PLZ: 1230

Mehr anzeigen

Durch die Nutzung unserer Seite erklären Sie sich mit der Verwendung von Cookies zur Verbesserung Ihres Online-Erlebnisses einverstanden. Detaillierte Informationen zu diesem und weiteren Themen erhalten Sie in unserer Datenschutzerklärung.