Wohlfühlen im Weinviertel - Gartenwohnung inklusive Garagenstellplatz - Objektnr. 5606445
ECKDATEN
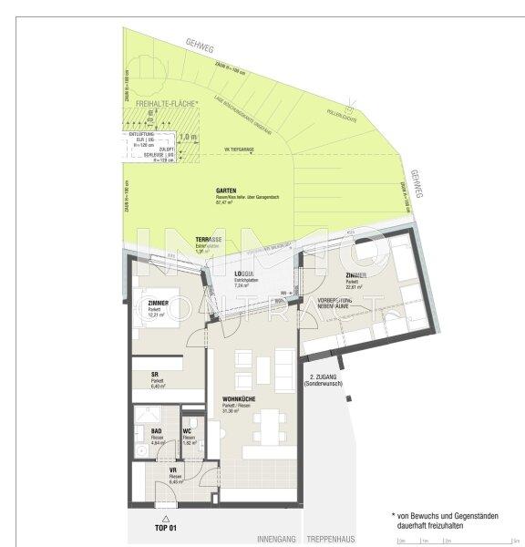
BESCHREIBUNG
KONTAKT
Lasse dich kostenlos vom Anbieter dieser Immobilie zurückrufen.
IMMOcontract Immobilien Vermittlung GmbH
Marcus Plattner
Marcus Plattner
Telefonnummer anzeigen
Telefon Allgemein: +4366488315101
Handy Bearbeiter: +4366488315101
Bitte dem Makler die FindMyHome.at - ID bekanntgeben: 5606445
Handy Bearbeiter: +4366488315101
Bitte dem Makler die FindMyHome.at - ID bekanntgeben: 5606445
BEWERTUNGEN DIESES ANBIETERS
FINDMYHOME.AT
NETIQUETTE
NETIQUETTE
Auch du kannst bewerten! 7 Tage nach deiner Anfrage erhältst du dafür von uns ein Bewertungsmail.
Alle Infos zu unseren Auszeichnungen und dem FINDMYHOME.AT Qualitätsprogramm findest du hier: Übersicht anzeigen
Alle Infos zu unseren Auszeichnungen und dem FINDMYHOME.AT Qualitätsprogramm findest du hier: Übersicht anzeigen
FINANZIERUNG
Du willst wissen, wie viel dein Umzug kosten wird?
Mach gleich den kostenlosen Preisvergleich und schau, welche seriösen Anbieter in deiner Region günstig deinen Umzug organisieren
ZUM UMZUGS-VERGLEICH




















