MEIN ERGEBNIS ANPASSEN

Stadtterrassen Peuerbach ** BAUBEGINN ERFOLGT! ** - Objektnr. 5606358

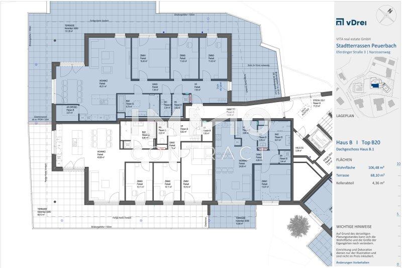
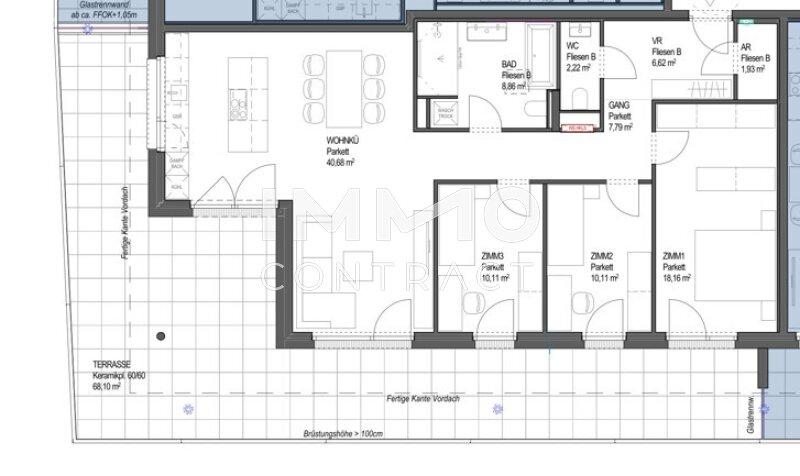
  • Top B20
  • A3-4-7-8-10-B5-B14-B21_WOPE_01B
  • HausB DG
  • _Penthouse-Terrasse_2024 08 08_42 - Foto
  • Garageneinfahrt-ALLE_WOPE_07
  • WOPE_TOP A09_Bild2_2024 05 08
  • WOPE_TOP B16_Bad_2024 05 16
  • Lageplan
  • Lageplan2
  • B20
  • B020b
4722
Ort
105,58 m²
Fläche
4.0
Zimmer

ECKDATEN
FindMyHome.at // Externe Immobilien-ID5606358 // 1939/163739
ImmobilienartWohnung - Eigentum
Anschrift4722 Peuerbach
Baujahr2026
Fläche105,58 m²
Zimmer4.0
Kaufpreis:€ 591.401,00
Ratenzahlung:Finanzierungsmöglichkeiten für diese Immobilie anzeigen
Provision: Provision bezahlt der Abgeber.







BESCHREIBUNG

Stadtterrassen Peuerbach ** BAUBEGINN ERFOLGT! **

Im Zentrum von Peuerbach entstehen 32 Eigentumswohnungen mit einem Ausmaß von rund 35 m² bis etwa 117 m². Die "Stadtterrassen Peuerbach" sind südwestlich ausgerichtet, erstrecken sich entlang des Narzissenweges und bieten einen schönen Ausblick über Peuerbach. Die zentrale Lage in Peuerbach ermöglicht Ihnen einen bequemen Zugang zu allen wichtigen Annehmlichkeiten des täglichen Lebens, darunter Einkaufsmöglichkeiten, Schulen und medizinische Einrichtungen, die in wenigen Minuten erreichbar sind.

Für diese Wohnung sind fix 2 Tiefgaragenplätze reserviert (zzgl. je € 24.000,00). Das Projekt wird mit hoher Nachhaltigkeit und einer Gesamtenergieeffizienz A+ ausgerichtet. Die Photovoltaikanlage am Dach trägt zur energiesparenden Bewirtschaftung bei. Beheizung & Warmwasseraufbereitung funktionieren über eine Luftwärmepumpe, eine elektrische Beschattung und Glasfaser runden dieses exklusive Angebot ideal ab.

Die Wohneinheiten sind hochwertig ausgestattet, die Badezimmer verfügen über großformatige Fliesen und qualitative Sanitärausstattung.

Alle Geschosse sind mittels Aufzug (von der Tiefgarage) erschlossen

Raumaufteilung: Vorraum, Abstellraum, WC, Gang, Bad, 3 Schlafzimmer, Wohn-Essküche (Küche nicht möbliert), Terrasse. Die großzügige Freifläche ermöglicht einen traumhaften Ausblick und schafft somit zusätzliche Lebensqualität.
Jeder Wohnung ist ein eigenes Kellerabteil zugeordnet.

Die dargestellten Innenvisualisierungen sind als Musterbilder und Einrichtungsvorschläge zu verstehen, die Wohnungen sind schlüsselfertig/unmöbliert.

Wir weisen darauf hin, dass zwischen dem Vermittler und dem zu vermittelnden Dritten ein familiäres oder wirtschaftliches Naheverhältnis besteht.


Infrastruktur / Entfernungen

Gesundheit
Apotheke <500m
Arzt <6.500m

Kinder & Schulen
Schule <500m
Kindergarten <500m

Nahversorgung
Supermarkt <500m
Bäckerei <500m
Einkaufszentrum <1.000m

Sonstige
Bank <500m
Geldautomat <500m
Post <500m
Polizei <500m

Verkehr
Bus <500m
Bahnhof <1.000m
Flughafen <5.500m

Angaben Entfernung Luftlinie / Quelle: OpenStreetMap

Provision: Provision bezahlt der Abgeber.


Alle Details anzeigen

KONTAKT






 

Lasse dich kostenlos vom Anbieter dieser Immobilie zurückrufen.







 


 
IMMOcontract Immobilien Vermittlung GmbH
Marianne Gerner-Kraupatz
Telefonnummer anzeigen Telefon Allgemein: +4350450400
Handy Bearbeiter: +436642563491
 
Bitte dem Makler die FindMyHome.at - ID bekanntgeben: 5606358

Bewertungen dieses Anbieters
Netiquette

BEWERTUNGEN DIESES ANBIETERS

 
Netiquette
FINDMYHOME.AT
NETIQUETTE
Auch du kannst bewerten! 7 Tage nach deiner Anfrage erhältst du dafür von uns ein Bewertungsmail.
Alle Infos zu unseren Auszeichnungen und dem FINDMYHOME.AT Qualitätsprogramm findest du hier: Übersicht anzeigen

FINANZIERUNG
?>

Du willst wissen, wie viel dein Umzug kosten wird?

Mach gleich den kostenlosen Preisvergleich und schau, welche seriösen Anbieter in deiner Region günstig deinen Umzug organisieren


ZUM UMZUGS-VERGLEICH
-->

MYHOME BLOG
SuchAgentin auf FindMyHome.at
Unterschiedlichen Rechtsthemen, köstliche Rezepte, neueste Design-Highlights, sowie aktuelle Technik-Tools für Ihr Eigenheim.


FINDMYHOME.AT SUCHAGENTIN
SuchAgentin auf FindMyHome.at
Hallo, soll ich dir ähnliche Immobilien kostenfrei per E-Mail schicken?


ÄHNLICHE IMMOBILIEN
Aehnliche Immobilie - Vorschaubild 1

Stadtterrassen Peuerbach ** BAUBEGINN ERFOLGT! **... - Objektnr. 5612921

89,16 m² - 4.0 Zimmer
512364 €
PLZ: 4722

Mehr anzeigen

Aehnliche Immobilie - Vorschaubild 2

Stadtterrassen Peuerbach ** BAUBEGINN ERFOLGT! **... - Objektnr. 5613241

116,48 m² - 4.0 Zimmer
633449 €
PLZ: 4722

Mehr anzeigen

Durch die Nutzung unserer Seite erklären Sie sich mit der Verwendung von Cookies zur Verbesserung Ihres Online-Erlebnisses einverstanden. Detaillierte Informationen zu diesem und weiteren Themen erhalten Sie in unserer Datenschutzerklärung.