MEIN ERGEBNIS ANPASSEN

FAMILIENTRAUM mit Terrasse ! TOP AUSSTATTUNG ! ERSTBEZUG ! - Objektnr. 5606331

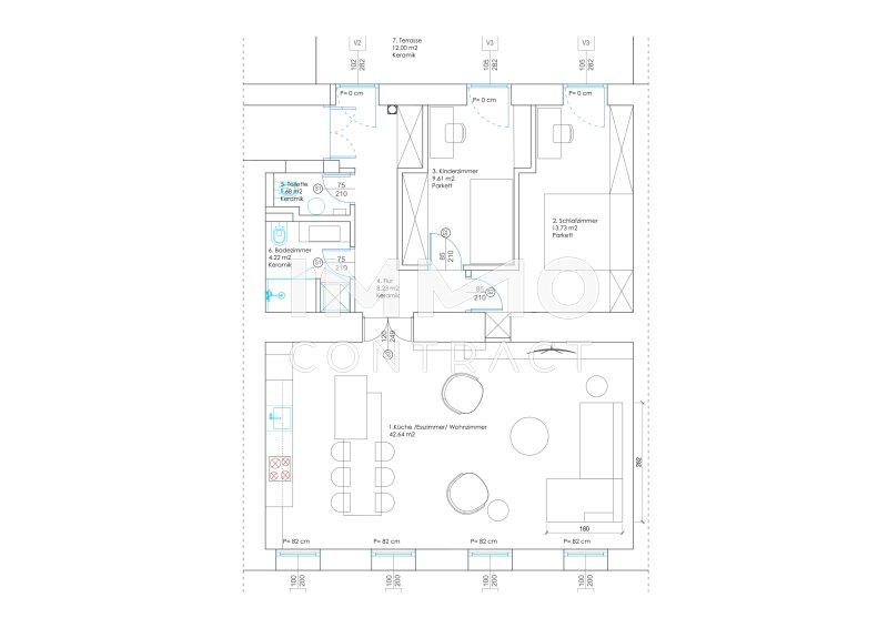
  • Tolle Wohnküche
  • Top Designer Küche
  • Frühstücksbar
  • Duschbad mit WC
  • Gäste WC
  • Moderner Wohnraum
  • Einbaumöbel im 1. Schlafzimmer
  • Einbauten in den Schlafzimmern
  • Hofseitige Terrasse
  • Luxusküche mit Bar
  • U Bahn vis a vis
  • Von der Terrasse in den Vorraum
  • Vorraum
  • Hereinspaziert
1090
Ort
80,00 m²
Fläche
3.0
Zimmer

ECKDATEN
FindMyHome.at // Externe Immobilien-ID5606331 // 1939/133012
ImmobilienartWohnung - Eigentum
Anschrift1090 Wien
Baujahr1907
Beziehbar ab2025-12-13
Fläche80,00 m²
Terrassen1 (15,00 m²)
Zimmer3.0
Bad1
WC1
Kaufpreis:€ 599.000,00
Ratenzahlung:Finanzierungsmöglichkeiten für diese Immobilie anzeigen
Provision: 3% des Kaufpreises zzgl. 20% USt.







BESCHREIBUNG

FAMILIENTRAUM mit Terrasse ! TOP AUSSTATTUNG ! ERSTBEZUG !

In einem gepflegten Altbau Ecke Nussdorfer Straße und Währinger Gürtel wurde diese 3 Zimmer Wohnung mit Terrasse komplett umgebaut und hochwertig ausgestattet.
Sie können einziehen und glücklich sein- es wurde an alles gedacht.

Im 1. Liftstock erwartet Sie dieser besondere Familientraum mit 3 Zimmern und einer ca. 15 m² hofseitigen Terrasse, die zu Ihrer Entspannung dient.

Ihr Wohnkomfort beinhaltet ein geräumiges Entree mit
Einbaukästen , alle Zimmer zentral begehbar und hochwertige Top Ausstattung !

Hofseitig befinden sich 2 ruhige Schlafzimmer, die komplett mit Tischler Einbauten ausgestattet sind. Von beiden Zimmern aus können Sie auf Ihre Terrasse gehen.
Ein Luxusduschbad mit WC sowie ein extra Gäste WC werden Sie ebenso erfreuen.

Das Highlight ist das große Wohnzimmer mit Einbauten und die Luxusküche mit Frühstücksbar. Sie hören hier keine Verkehrsgeräusche, da eigene Schallschutzfenster eingebaut sind.
Mit einer Raumhöhe von ca. 3,20 m blieb der Altbaucharme erhalten., der noch durch den wunderschönen dunklen Eichen Parkettboden unterstrichen wird.

Die Fußbodenheizung vermittelt Ihnen ein wohliges Gefühl im Winter und Sommer und zusätzlich finden Sie noch eine Klimaanlage.
Die Technik mit Luft/Wärmepumpe spiegelt den aktuellen hochwertigen Zustand dieser Wohnung wieder.

Warten Sie nicht lange und vereinbaren Sie rasch einen Besichtigungstermin mit mir. Tel: 0676 841 420 587 !

Der Vermittler ist als Doppelmakler tätig.


Infrastruktur / Entfernungen

Gesundheit
Arzt <500m
Apotheke <500m
Klinik <500m
Krankenhaus <1.500m

Kinder & Schulen
Schule <500m
Kindergarten <500m
Universität <500m
Höhere Schule <1.000m

Nahversorgung
Supermarkt <500m
Bäckerei <500m
Einkaufszentrum <2.000m

Sonstige
Geldautomat <500m
Bank <500m
Post <500m
Polizei <500m

Verkehr
Bus <500m
U-Bahn <500m
Straßenbahn <500m
Bahnhof <500m
Autobahnanschluss <1.500m

Angaben Entfernung Luftlinie / Quelle: OpenStreetMap

Klimaanlage: JA
Barrierefrei: JA
Provision: 3% des Kaufpreises zzgl. 20% USt.


Alle Details anzeigen

KONTAKT






 

Lasse dich kostenlos vom Anbieter dieser Immobilie zurückrufen.







 


 
IMMOcontract Immobilien Vermittlung GmbH
Silvia Reischitz-Martys
Telefonnummer anzeigen Telefon Allgemein: +4350450587
Handy Bearbeiter: +43676841420587
 
Bitte dem Makler die FindMyHome.at - ID bekanntgeben: 5606331

Bewertungen dieses Anbieters
Netiquette

BEWERTUNGEN DIESES ANBIETERS

 
Netiquette
FINDMYHOME.AT
NETIQUETTE
Auch du kannst bewerten! 7 Tage nach deiner Anfrage erhältst du dafür von uns ein Bewertungsmail.
Alle Infos zu unseren Auszeichnungen und dem FINDMYHOME.AT Qualitätsprogramm findest du hier: Übersicht anzeigen

FINANZIERUNG
?>

Du willst wissen, wie viel dein Umzug kosten wird?

Mach gleich den kostenlosen Preisvergleich und schau, welche seriösen Anbieter in deiner Region günstig deinen Umzug organisieren


ZUM UMZUGS-VERGLEICH
-->

MYHOME BLOG
SuchAgentin auf FindMyHome.at
Unterschiedlichen Rechtsthemen, köstliche Rezepte, neueste Design-Highlights, sowie aktuelle Technik-Tools für Ihr Eigenheim.


FINDMYHOME.AT SUCHAGENTIN
SuchAgentin auf FindMyHome.at
Hallo, soll ich dir ähnliche Immobilien kostenfrei per E-Mail schicken?


ÄHNLICHE IMMOBILIEN
Aehnliche Immobilie - Vorschaubild 1

Altbau-Eleganz trifft modernes Wohnen ? lichtdurchflutete Tr... - Objektnr. 5601998

77,00 m² - 2.5 Zimmer
550000 €
PLZ: 1090

Mehr anzeigen

Aehnliche Immobilie - Vorschaubild 2

Your Place to be, nahe dem Servitenviertel/Clusiusgasse /84... - Objektnr. 5594233

84,29 m² - 2.5 Zimmer
643750 €
PLZ: 1090

Mehr anzeigen

Aehnliche Immobilie - Vorschaubild 3

Stadtleben trifft Komfort - Ihre neue 3-Zimmer-Wohnung im He... - Objektnr. 5565760

86,53 m² - 3.0 Zimmer
599000 €
PLZ: 1090

Mehr anzeigen

Durch die Nutzung unserer Seite erklären Sie sich mit der Verwendung von Cookies zur Verbesserung Ihres Online-Erlebnisses einverstanden. Detaillierte Informationen zu diesem und weiteren Themen erhalten Sie in unserer Datenschutzerklärung.