MEIN ERGEBNIS ANPASSEN

Wunderschönes Townhouse mit Eigengarten! Perfekt für Familien! - Objektnr. 5606178


ökologisch beheizt
  • Außen 2
  • Außen
  • Badezimmer
  • Wohnzimmer 2
  • Wohnzimmer
  • 230606_AmFreihof_7-9_BT1_DG2_Top17_Schlafzimmer
  • 230606_AmFreihof_7-9_Dachterrasse
  • 230606_AmFreihof7-9_BT2_DG1_Top13_Wohnküche
  • IMG_2591
  • 3SI_AmFreihof7-9_Haus3_Top_01-1
1220
Ort
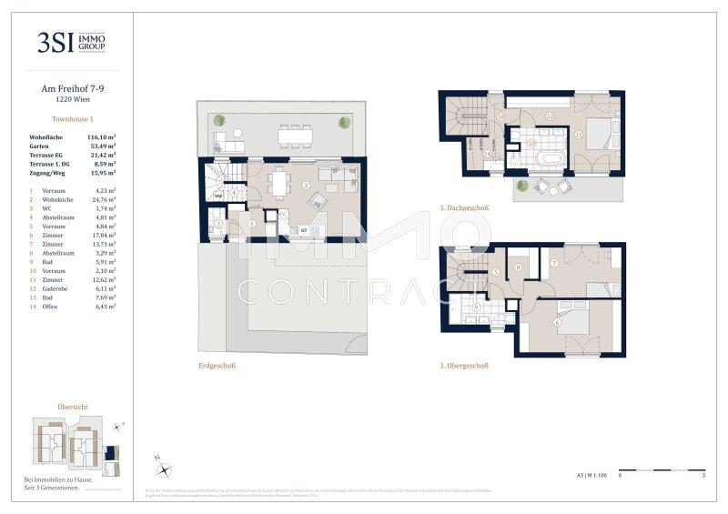
116,21 m²
Fläche
4.0
Zimmer

ECKDATEN
FindMyHome.at // Externe Immobilien-ID5606178 // 1939/164225
ImmobilienartWohnung - Eigentum
Anschrift1220 Wien
Baujahr2025
Befeuerung
Luftwärmepumpe
Geschosse4
Fläche116,21 m²
Terrassen1 (21,00 m²)
Zimmer4.0
Bad2
WC1
Kaufpreis:€ 799.000,00
Ratenzahlung:Finanzierungsmöglichkeiten für diese Immobilie anzeigen
Provision: 3% des Kaufpreises zzgl. 20% USt.







BESCHREIBUNG

Wunderschönes Townhouse mit Eigengarten! Perfekt für Familien!

Lebensfreude spüren, Freiheit genießen

Entdecken Sie The Liberty am Freihof: ein zukunftsweisendes Wohnprojekt, das die Harmonie des Landlebens mit der Dynamik der Stadt verbindet. Freuen Sie sich auf 36 Wohnungen und zwei exklusive Townhouses, alle mit ansprechenden Freiflächen, die zum Verweilen und Entspannen einladen. Die zukunftsorientierte Architektur ist nachhaltig und ÖGNI-zertifiziert, wobei clever konzipierte Grundrisse Komfort und Funktionalität perfekt vereinen. Nahe des pulsierenden Kagraner Platzes im 22. Bezirk bietet The Liberty Ihnen die Möglichkeit, das aufregende Stadtleben Wiens zu erkunden und gleichzeitig die Ruhe der umliegenden Natur zu genießen.

Im urbanen Grün entfalten

Die Freiheit von The Liberty beschränkt sich nicht nur auf Ihr neues Zuhause, sondern erstreckt sich auch auf die beeindruckenden Gemeinschafts- und Freibereiche. Großzügige, für alle zugängliche Grünflächen bieten einen angenehmen Rückzugsort, während eine einladende Pergola mit bequemen Sitzmöbeln im Sommer einen kühlen Schattenplatz in Ihrem persönlichen Naturparadies schafft. Für die kleinen Bewohner wartet ein abenteuerlicher Kinderspielplatz mit verschiedenen Spielgeräten, die jedes Kinderherz höherschlagen lassen. Ein besonderes Highlight sind die Urban-Gardening-Flächen im Außenbereich, die den Bewohnern die Möglichkeit bieten, eigenes Obst und Gemüse anzubauen. Mit Annehmlichkeiten wie einer hauseigenen Tiefgarage, E-Auto-Ladestationen und Fahrradabstellräumen mit Lademöglichkeiten für E-Bikes, eröffnet das moderne Wohnprojekt neue Dimensionen urbaner Unabhängigkeit.

Grenzenloses Wohlbefinden erleben

In der dynamischen und erfrischenden Architektur von The Liberty spüren Sie das Gefühl von Freiheit, das sich besonders in den großzügigen Außenflächen und dem weitläufigen
Grundstück manifestiert. Zwei Baukörper und zwei Townhouses bieten ihren Bewohnern viel Raum zur individuellen Entfaltung und machen ihr neues Zuhause zu einer persönlichen
Wohlfühloase. Die vielfältigen 2- bis 4-Zimmerwohnungen sowie die zwei Townhouses sind intelligent konzipiert und dank der verschiedenen Grundrisse ideal für Singles, Paare und junge
Familien. Jede Wohnung verfügt über eine private Freifläche sei es ein Balkon, eine Dachterrasse oder eine Terrasse und erweitert so den Wohnraum nach draußen. Die ruhige Lage am Freihof macht jede Außenfläche zum perfekten Ort für Lebendigkeit und Ruhe.

Endloser Komfort im eigenen Zuhause

Ihrem Wohlbefinden und Komfort wird in Ihrem neuen Zuhause oberste Priorität eingeräumt. Große Fensterfronten lassen das Licht in die Wohnräume
fluten, zugleich geben Ihnen steuerbare Raffstores und Rollläden die Flexibilität, die Lichtverhältnisse nach Belieben anzupassen. Dank der Fußbodenkühlung und -heizung haben Sie die Möglichkeit, die Temperatur in jedem Raum individuell zu regulieren. Für zusätzlichen Komfort sind die Dachgeschoßwohnungen mit Fan-Coils für die Raumklimatisierung ausgestattet. Die warmen Eichenparkettböden verleihen den Wohnräumen eine gemütliche Atmosphäre, während die hochwertigen Markensanitärprodukte und die exquisite Ausstattung der Badezimmer zu einem erhöhten Wohlbefinden beitragen. Erleben Sie mit The Liberty die Freude des Wohnens auf einem neuen Level!

Hochwertige Eichendielen
Komfortable Fußbodenheizung
3-fach verglaste Kunststoff-Aluminium-Fenster
Raffstores bzw. Rollläden
Vollklimatisierung im DG (Fan-Coils)
Markensanitärprodukte
Exklusives Feinsteinzeug
Videogegensprechanlage

Nachhaltigkeit als Lebensstil

The Liberty ist nachhaltig geplant und stolzer Träger des ÖGNI-Zertifikats in Gold, welches das höchste Maß an ökologischer Bauweise unterstreicht. Ganz ohne fossile Brennstoffe können Sie bequem und umweltbewusst leben mit geringen Betriebskosten. Im Sommer sorgt eine Kühlung über den Fußboden für angenehme Temperaturen, während eine umweltfreundliche Luftwärmepumpe das Gebäude beheizt. Die hauseigene Tiefgarage mit Möglichkeit einer Ladestation für E-Autos gewährleistet zukunftsweisende Mobilität. Ihr Fahrrad oder E-Bike findet im praktischen Fahrradabstellraum Platz, inklusive Lademöglichkeit. Großzügige Urban-Gardening-Flächen bringen das Grün direkt zu Ihnen nach Hause!!

ÖGNI Gold zertifiziert

Umweltfreundliche Luftwärmepumpe
Innovative Fußbodenkühlung
Geringe Betriebskosten
Lademöglichkeit für E-Autos & E-Bikes
Großzügige Urban-Gardening-Flächen

Aus Liebe zur Freiheit

Die Bewohner von The Liberty genießen eine außergewöhnliche Lage, die das Beste aus Shopping, Gastronomie, Erholung und Kultur vereint. Das nahe gelegene Donau Zentrum bietet ein beeindruckendes Einkaufs- und Gastronomieerlebnis, während die grünen Oasen auf der Donauinsel und rund um die Alte Donau unzählige Möglichkeiten für Outdoor-Aktivitäten und Entspannung inmitten der Natur versprechen. In unmittelbarer Nähe finden Sie außerdem ein ausgezeichnetes Angebot an Kindergärten und Schulen. Die hervorragende Verkehrsanbindung durch die U1-Station Kagraner Platz ermöglicht es, das Herz Wiens in nur wenigen Minuten zu erreichen. Ob Sie nun die pulsierende Energie der Stadt oder die friedliche Ruhe der Natur
bevorzugen - in The Liberty können Sie beides in vollen Zügen genießen.

Wo der Himmel das Wasser trifft und die Stadt das Grüne

Tauchen Sie ein in die belebte Vielfalt der Donaustadt: Lassen Sie sich von der lebendigen Donauufer-Szene verzaubern, wo trendige Restaurants und Cafés wie Landtmann Das Bootshaus oder das Strandcafé an der Alten Donau zum Genießen und Erholen einladen. Erleben Sie die grüne Umgebung Wiens hautnah auf der nur wenige Minuten entfernten
Donauinsel einer atemberaubenden 21 km langen grünen Oase. Hier erstreckt sich eine Landschaft von endlosen Radwegen, versteckten Badestellen und idyllischen Ecken für entspannte
Momente in der Natur. Wenn Sie Wassersport lieben, bietet die Alte Donau vielfältige Möglichkeiten wie Rudern, Segeln oder Schwimmen. Ein besonderer Anziehungspunkt ist das Strandbad Gänsehäufel mit seinem eigenen Freibad und einer großzügigen Liegewiese. Die Umgebung von The Liberty macht Ihr Stadtleben zu einem unvergesslichen Urlaubserlebnis.

Nebenkosten

Der guten Ordnung halber halten wir fest, dass, sofern im Angebot nicht anders vermerkt, bei erfolgreichem Abschlussfall eine Provision anfällt, die den in der Immobilienmaklerverordnung BGBI. 262 und 297/1996 festgelegten Sätzen entspricht das sind 3 % des Kaufpreises zzgl. 20 % USt. Diese Provisionspflicht besteht auch dann, wenn Sie die Ihnen überlassenen Informationen an Dritte weitergeben. Letztlich weisen wir darauf hin, dass wir als Doppelmakler tätig sind und aufgrund einer ständigen Geschäftsbeziehung ein wirtschaftliches Naheverhältnis zum Bauträger besteht.

Die Vertragserrichtung und Treuhandabwicklung ist gebunden an die Kanzlei Mag. Schreiber A-1010 Wien, Schottenring 16. Die Kosten betragen 1,5 % des Kaufpreises zzgl. 20 % USt. sowie Barauslagen und Beglaubigung. Bei Fremdfinanzierung erhöht sich das Honorar auf 1,8 % vom Kaufpreis zzgl. 20 % USt., Barauslagen und Beglaubigung.

Wir weisen darauf hin, dass zwischen dem Vermittler und dem zu vermittelnden Dritten ein familiäres oder wirtschaftliches Naheverhältnis besteht.

Der Vermittler ist als Doppelmakler tätig.


Infrastruktur / Entfernungen

Gesundheit
Arzt <500m
Apotheke <500m
Klinik <2.000m
Krankenhaus <3.500m

Kinder & Schulen
Schule <500m
Kindergarten <1.000m
Universität <2.000m
Höhere Schule <1.000m

Nahversorgung
Supermarkt <500m
Bäckerei <500m
Einkaufszentrum <1.000m

Sonstige
Geldautomat <500m
Bank <500m
Post <1.000m
Polizei <1.500m

Verkehr
Bus <500m
U-Bahn <1.000m
Straßenbahn <500m
Bahnhof <1.000m
Autobahnanschluss <1.500m

Angaben Entfernung Luftlinie / Quelle: OpenStreetMap

Klimaanlage: JA
Gartennutzung: JA
Barrierefrei: JA
Provision: 3% des Kaufpreises zzgl. 20% USt.


Alle Details anzeigen

KONTAKT






 

Lasse dich kostenlos vom Anbieter dieser Immobilie zurückrufen.







 


 
IMMOcontract Immobilien Vermittlung GmbH
Michael Schwabe
Telefonnummer anzeigen Telefon Allgemein: +4318900800
Handy Bearbeiter: +4366460008102
 
Bitte dem Makler die FindMyHome.at - ID bekanntgeben: 5606178

Bewertungen dieses Anbieters
Netiquette

BEWERTUNGEN DIESES ANBIETERS

 
Netiquette
FINDMYHOME.AT
NETIQUETTE
Auch du kannst bewerten! 7 Tage nach deiner Anfrage erhältst du dafür von uns ein Bewertungsmail.
Alle Infos zu unseren Auszeichnungen und dem FINDMYHOME.AT Qualitätsprogramm findest du hier: Übersicht anzeigen

FINANZIERUNG
?>

Du willst wissen, wie viel dein Umzug kosten wird?

Mach gleich den kostenlosen Preisvergleich und schau, welche seriösen Anbieter in deiner Region günstig deinen Umzug organisieren


ZUM UMZUGS-VERGLEICH
-->

MYHOME BLOG
SuchAgentin auf FindMyHome.at
Unterschiedlichen Rechtsthemen, köstliche Rezepte, neueste Design-Highlights, sowie aktuelle Technik-Tools für Ihr Eigenheim.


FINDMYHOME.AT SUCHAGENTIN
SuchAgentin auf FindMyHome.at
Hallo, soll ich dir ähnliche Immobilien kostenfrei per E-Mail schicken?


ÄHNLICHE IMMOBILIEN
Aehnliche Immobilie - Vorschaubild 1

Moderne Erdgeschosswohnung mit Eigengarten in Wien - Ihr Ers... - Objektnr. 5617333

102,93 m² - 4.0 Zimmer
639500 €
PLZ: 1220

Mehr anzeigen

Aehnliche Immobilie - Vorschaubild 2

Sonnige Aussichten auf 119 m². Freundlicher 4-Zimmer Wohntra... - Objektnr. 4907884

118,74 m² - 4 Zimmer
749900 €
PLZ: 1220

Mehr anzeigen

Aehnliche Immobilie - Vorschaubild 3

Der Sonnen entgegen. Helle 3-Zimmer mit großem ostseitig gel... - Objektnr. 4907896

94,31 m² - 3 Zimmer
799900 €
PLZ: 1220

Mehr anzeigen

Durch die Nutzung unserer Seite erklären Sie sich mit der Verwendung von Cookies zur Verbesserung Ihres Online-Erlebnisses einverstanden. Detaillierte Informationen zu diesem und weiteren Themen erhalten Sie in unserer Datenschutzerklärung.