MEIN ERGEBNIS ANPASSEN

DH - MODERN LIVING - Erstbezug mit Stil und Komfort - Objektnr. 5605851


ökologisch beheizt
  • Ansicht
  • Bad
  • Wohnzimmer
  • Küche
  • Badezimmer 2
  • Ansicht West
  • Ansicht N
  • Lageplan
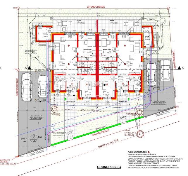
  • Plan EG
  • Plan OG
3380
Ort
136,37 m²
Fläche
5.0
Zimmer

ECKDATEN
FindMyHome.at // Externe Immobilien-ID5605851 // 1939/132741
ImmobilienartHaus - Eigentum
Anschrift3380 Pöchlarn
Baujahr2024
Befeuerung
Luftwärmepumpe
Geschosse2
Fläche136,37 m²
Grundfläche300,00 m²
Terrassen1 (19,00 m²)
Zimmer5.0
Bad3
WC3
 Abstellraum
Kaufpreis:€ 357.500,00
Ratenzahlung:Finanzierungsmöglichkeiten für diese Immobilie anzeigen
Provision: 12.870,00 ? inkl. 20% USt.







BESCHREIBUNG

DH - MODERN LIVING - Erstbezug mit Stil und Komfort

Moderner Erstbezug in Golling an der Erlauf Nähe Pöchlarn
Der charmante Neubau überzeugt mit einem Hauch von mediterranem Flair und erinnert an Urlaubsgefühl und Leichtigkeit.

Hier erwartet Sie ein hochwertig errichtetes Familienhaus mit durchdachter Raumaufteilung: Drei Schlafzimmer bieten Platz für die ganze Familie, zwei großzügige Bäder sind modern und stilvoll ausgestattet. Das offene, helle Wohnzimmer führt auf eine überdachte Terrasse, die zum Entspannen einlädt. Der kompakte, pflegeleichte Garten sorgt für eine angenehme Portion Grün und schafft ein Stück Lebensqualität ganz ohne großen Aufwand.
Erbaut wurde das Doppelhaus im Jahr 2024. Jede Seite verfügt über zwei KFZ Stellplätze. 
Heizung: Luft-Wasser-Wärmetauscher über Fußbodenheizung. 
Die Haustechnik ist einem von der Terrasse zugänglichen Technikraum untergebracht.

Baurechtliche Informationen:
Baubewilligung: 2024
Fertigstellungsanzeige/Benützungsbewilligung: 2025
Grundstücksfläche: 600 m², das Grundstück befindet sich im Grenzkataster, die Liegenschaft ist parifiziert

 

Disclaimer:
Die dargestellten Aufnahmen wurden mittels Virtual Staging digital optimiert und dienen ausschließlich der besseren Veranschaulichung von Einrichtungsmöglichkeiten. Sie ersetzen keine reale Besichtigung. Der tatsächliche Zustand der Immobilie kann abweichen und wird Ihnen von Ihrem Immobilienfachberater gerne vor Ort gezeigt.

Der Vermittler ist als Doppelmakler tätig.


Infrastruktur / Entfernungen

Gesundheit
Arzt <500m
Apotheke <4.500m

Kinder & Schulen
Schule <1.500m
Kindergarten <1.000m
Universität <8.500m

Nahversorgung
Supermarkt <500m
Bäckerei <500m
Einkaufszentrum <500m

Sonstige
Bank <500m
Post <500m
Geldautomat <500m
Polizei <4.000m

Verkehr
Bus <500m
Autobahnanschluss <5.500m
Bahnhof <1.000m

Angaben Entfernung Luftlinie / Quelle: OpenStreetMap

Klimaanlage: JA
Provision: 12.870,00 ? inkl. 20% USt.


Alle Details anzeigen

KONTAKT






 

Lasse dich kostenlos vom Anbieter dieser Immobilie zurückrufen.







 


 
IMMOcontract Immobilien Vermittlung GmbH
Katharina Wolfslehner
Telefonnummer anzeigen Telefon Allgemein: +43676841420220
Handy Bearbeiter: +43676841420220
 
Bitte dem Makler die FindMyHome.at - ID bekanntgeben: 5605851

Bewertungen dieses Anbieters
Netiquette

BEWERTUNGEN DIESES ANBIETERS

 
Netiquette
FINDMYHOME.AT
NETIQUETTE
Auch du kannst bewerten! 7 Tage nach deiner Anfrage erhältst du dafür von uns ein Bewertungsmail.
Alle Infos zu unseren Auszeichnungen und dem FINDMYHOME.AT Qualitätsprogramm findest du hier: Übersicht anzeigen

FINANZIERUNG
?>

Du willst wissen, wie viel dein Umzug kosten wird?

Mach gleich den kostenlosen Preisvergleich und schau, welche seriösen Anbieter in deiner Region günstig deinen Umzug organisieren


ZUM UMZUGS-VERGLEICH
-->

MYHOME BLOG
SuchAgentin auf FindMyHome.at
Unterschiedlichen Rechtsthemen, köstliche Rezepte, neueste Design-Highlights, sowie aktuelle Technik-Tools für Ihr Eigenheim.


FINDMYHOME.AT SUCHAGENTIN
SuchAgentin auf FindMyHome.at
Hallo, soll ich dir ähnliche Immobilien kostenfrei per E-Mail schicken?


Durch die Nutzung unserer Seite erklären Sie sich mit der Verwendung von Cookies zur Verbesserung Ihres Online-Erlebnisses einverstanden. Detaillierte Informationen zu diesem und weiteren Themen erhalten Sie in unserer Datenschutzerklärung.