MEIN ERGEBNIS ANPASSEN

Familienglück im Grünen - nachhaltige Reihenhäuser am Kanal - Objektnr. 5605366

2700
Ort
€ 1.450,00
Gesamtkosten
118,98 m²
Fläche
4.0
Zimmer
WEITERE MEDIEN

ECKDATEN
FindMyHome.at // Externe Immobilien-ID5605366 // 91535
ImmobilienartHaus - Miete
AnschriftAckergasse/11
2700 Wiener Neustadt
Baujahr2025
Geschosse2
Fläche118,98 m²
Terrassen1 (15,00 m²)
Zimmer4.0
Bad2
WC2
 Abstellraum
Kaution:€ 4.350,00
Brutto-Miete:€ 1.450,00
Betriebskosten (inkl. MwSt):€ 189,88
Mehrwertsteuer:€ 131,82
Monatliche Gesamtkosten:€ 1.450,00
Provision: Gemäß Erstauftraggeberprinzip bezahlt der Abgeber die Provision.




BESCHREIBUNG

Familienglück im Grünen - nachhaltige Reihenhäuser am Kanal

Die frisch fertiggestellten Reihenhäuser in ökologischer Holzbauweise richten sich an Familien, die modernes Wohnen mit Natur verbinden möchten. Eingebettet in eine grüne Umgebung nahe dem Wiener Neustädter Kanal genießen Sie hier Ruhe, Weite und zahlreiche Freizeitmöglichkeiten direkt vor der Haustür. Spazier- und Radwege, Wasserlandschaft und viel Grün schaffen ein Wohngefühl wie im Urlaub.

Auch verkehrstechnisch liegt das Ensemble ideal: Der Bahnhof Civitas Nova ist schnell erreichbar und sorgt für eine bequeme Anbindung in Richtung Wien und Wiener Neustadt. So wohnen Sie entspannt im Grünen und bleiben gleichzeitig bestens vernetzt.

Wohnkonzept mit viel Platz und klarer Funktion

Diese Häuser wurden von Beginn an auf Alltagstauglichkeit, Nachhaltigkeit und Komfort hin geplant. Auf zwei Ebenen verteilt sich eine großzügige Wohnfläche von rund 118 m² ideal für Familien, Paare mit Platzbedarf oder alle, die Homeoffice & Privatleben entspannt unter einem Dach vereinen möchten.

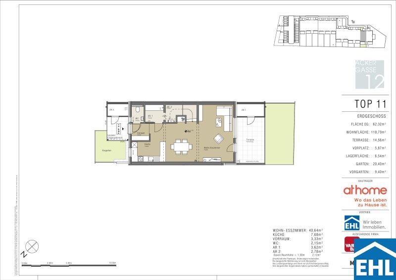
Erdgeschoss
Ein offener, heller Wohn- und Essbereich mit direktem Ausgang auf die Terrasse. Der Garten schließt nahtlos an ein privater Lieblingsplatz für Frühstück in der Sonne, Spielen im Grünen oder entspannte Abende draußen.

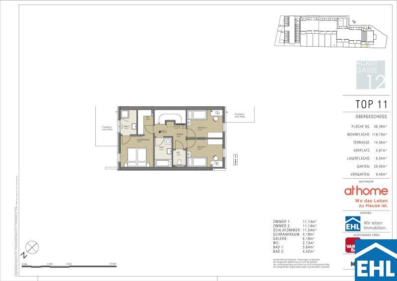
Obergeschoss
Drei angenehm ruhige Zimmer bieten flexible Nutzungsmöglichkeiten Schlafräume, Kinderzimmer, Arbeitszimmer oder Gästezimmer. Zwei moderne Bäder ergänzen den durchdachten Grundriss und sorgen für Komfort im Alltag.

Außenflächen
Großzügige Eigengärten, Terrassen und ein Vorgarten schaffen Raum zum Durchatmen. Durch die Südost-Ausrichtung sind die Räume lichtdurchflutet, große Fensterflächen bringen Offenheit und Wärme ins Haus.

 

Das Wichtigste auf einen Blick

  • Erstbezug sofort beziehbar
  • 12 Reihenhäuser in nachhaltiger Holzrahmenbauweise
  • ca. 118 m² Wohnfläche pro Haus
  • Vorgarten, Terrasse und großer Privatgarten
  • 3 Zimmer + Wohnküche, 2 Bäder, viel Stauraum
  • PKW-Stellplatz in der Miete inkludiert
  • 19 Stellplätze im Gesamtprojekt
  • hochwertige, moderne Ausstattung
  • naturnahe Lage mit sehr guter Infrastruktur und Bahnanbindung
     

Ausstattung, die den Unterschied macht. Hier ist alles auf zeitgemäßes Wohnen ausgelegt: langlebig, komfortabel und stilvoll:

  • elegante Parkettböden in den Wohnräumen
  • moderne Fliesen in Bad und WC
  • hochwertige Sanitärausstattung
  • 3-fach-isolierte Fenster für optimale Energieeffizienz
  • elektrischer Sonnenschutz
  • Glasfaser-Internet (A1 & Magenta)
  • Fußbodenheizung über Fernwärme
  • Vorbereitung für Photovoltaik, Klimaanlage und Alarmanlage

 

Lage: Natur vor der Tür, Alltag ganz nah

Die Umgebung verbindet Erholung und Alltag perfekt: Der Wiener Neustädter Kanal bietet Natur, Sport und Freizeit in unmittelbarer Nähe. Schulen, Kindergärten, Nahversorger und weitere Einrichtungen sind rasch erreichbar. Die schnelle Öffi-Anbindung über Civitas Nova macht das Projekt auch für Pendler:innen besonders attraktiv.

 

Mietvertrag befristet für 6 Jahre, 1 Jahr Kündigungsverzicht, 3 Monate Kündigungsfrist
Je Haus wird 1 Parkplatz um EUR 38,00 dazu gemietet, ein weiterer ist möglich
Nebenkosten: 3 BMM Kaution
Strom, Heizung, Warmwasser werden nach Verbrauch verrechnet

© 2025, PROPERTY PHOTOS
© EHL Wohnen GmbH

Wir weisen darauf hin, dass zwischen dem Vermittler und dem zu vermittelnden Dritten ein familiäres oder wirtschaftliches Naheverhältnis besteht.

Der Immobilienmakler erklärt, dass er entgegen dem in der Immobilienwirtschaft üblichen Geschäftsgebrauch des Doppelmaklers einseitig nur für den Vermieter tätig ist.


Infrastruktur / Entfernungen

Gesundheit
Arzt <1.500m
Apotheke <1.000m
Klinik <3.500m
Krankenhaus <2.000m

Kinder & Schulen
Schule <500m
Kindergarten <750m
Höhere Schule <2.500m
Universität <1.250m

Nahversorgung
Supermarkt <500m
Bäckerei <1.000m
Einkaufszentrum <1.000m

Sonstige
Bank <1.000m
Geldautomat <1.000m
Post <750m
Polizei <500m

Verkehr
Bus <500m
Autobahnanschluss <4.250m
Bahnhof <500m
Flughafen <1.500m

Angaben Entfernung Luftlinie / Quelle: OpenStreetMap

Provision: Gemäß Erstauftraggeberprinzip bezahlt der Abgeber die Provision.


Alle Details anzeigen

KONTAKT






 

Lasse dich kostenlos vom Anbieter dieser Immobilie zurückrufen.







 


 
EHL Wohnen GmbH
Ingrid Neugebauer
Telefonnummer anzeigen Telefon Allgemein: +4315127690418
Handy Bearbeiter: +4369915212532
 
Bitte dem Makler die FindMyHome.at - ID bekanntgeben: 5605366

Bewertungen dieses Anbieters
Qualitätsmakler
Qualitätsmakler:
Netiquette
Freundlichkeit
82 %

BEWERTUNGEN DIESES ANBIETERS

 
Qualitätsmakler
UNSERE HALL OF FAME DER BESTEN ANBIETER
Qualit�tsmakler
Qualitätsmakler
2012, 2013, 2014, 2015, 2016, 2017, 2018, 2019, 2020, 2021, 22/23, 2024, 2025
Weiterempfehlung
WIRD GERNE

Freundlichkeit
BESONDERS
FREUNDLICH
Netiquette
FINDMYHOME
NETIQUETTE
Auch du kannst bewerten! 7 Tage nach deiner Anfrage erhältst du dafür von uns ein Bewertungsmail.
Alle Infos zu unseren Auszeichnungen und dem FINDMYHOME.AT Qualitätsprogramm findest du hier: Übersicht anzeigen


Du willst wissen, wie viel dein Umzug kosten wird?

Mach gleich den kostenlosen Preisvergleich und schau, welche seriösen Anbieter in deiner Region günstig deinen Umzug organisieren


ZUM UMZUGS-VERGLEICH
-->

MYHOME BLOG
SuchAgentin auf FindMyHome.at
Unterschiedlichen Rechtsthemen, köstliche Rezepte, neueste Design-Highlights, sowie aktuelle Technik-Tools für Ihr Eigenheim.


FINDMYHOME.AT SUCHAGENTIN
SuchAgentin auf FindMyHome.at
Hallo, soll ich dir ähnliche Immobilien kostenfrei per E-Mail schicken?


ÄHNLICHE IMMOBILIEN
Aehnliche Immobilie - Vorschaubild 1

Zuhause, wos grün ist - Reihenhäuser zum Verlieben... - Objektnr. 5605367

118,13 m² - 4.0 Zimmer
1586 €
PLZ: 2700

Mehr anzeigen

Durch die Nutzung unserer Seite erklären Sie sich mit der Verwendung von Cookies zur Verbesserung Ihres Online-Erlebnisses einverstanden. Detaillierte Informationen zu diesem und weiteren Themen erhalten Sie in unserer Datenschutzerklärung.