MEIN ERGEBNIS ANPASSEN

Hopfengasse: GARTENWOHNUNG mit fast 50m² Außenfläche! - Objektnr. 5604844

  • Garten  und Terrasse
  • Wohnküche
  • Blick in die Wohnküche
  • Garten  und Terrasse
  • top ausgestattete Küche
  • top ausgestattete Küche
  • top ausgestattete Küche
  • Garten  und Terrasse
  • Garten  und Terrasse
  • Schlafzimmer mit Plateau
  • Schlafzimmer mit Plateau
  • großzügiger Vorraum
  • Badezimmer
  • WC
  • Abstellraum
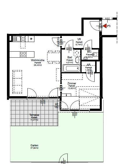
  • GRUNDRISS Top 2-3
  • Lageplan mit Öffis
  • Außenansicht
  • Außenansicht
  • Fahrradraum
  • Garage
  • Garage
  • Garage
  • Kellerabteile
  • Kellerabteile
  • Waschküche
  • Außenansicht
  • IMMY Preisträger
1210
Ort
€ 999,00
Gesamtkosten
54,81 m²
Fläche
2.0
Zimmer

ECKDATEN
FindMyHome.at // Externe Immobilien-ID5604844 // 3610/8240
ImmobilienartWohnung - Miete
Anschrift1210 Wien
Baujahr2015
NähePrager Straße, Trillerpark, S-Bahn Jedlersdorf
HeizungZentralheizung mit Gas
StockEG
Liftja
KellerJa
Beziehbar ab01.03.2026
Mietdauer5.0
Fläche54,81 m²
Gartenfläche37,04 m²
Terrassen1 (11,47 m²)
Zimmer2.0
Bad1
WC1
Kaution:€ 3.000,00
sonstige Kosten (inkl. MwSt):€ 138,63
Mehrwertsteuer:€ 90,82
Monatliche Gesamtkosten:€ 999,00




BESCHREIBUNG

Hopfengasse: GARTENWOHNUNG mit fast 50m² Außenfläche!

Hopfengasse beim FAC-Platz! 2-Zimmer Neubauwohnung (54,81m²)!
Terrasse (11,47m²)!
Garten (37,04m²)!
Top-Ausstattung! Optimale Infrastruktur!!

In weniger als 5min erreichen Sie fußläufig den Bahnhof Jedlersdorf, von wo die S-Bahn Sie in nur 17min gemütlich nach WIEN MITTE bringt.
Lassen Sie uns gemeinsam Ihr neues Zuhause finden!

RAUMAUFTEILUNG IN STICHWORTEN
? Vorraum
? Wohnzimmer mit offener Küche
? Schlafzimmer
? Bad mit Badewanne mit Duschmöglichkeit, Waschtisch, Waschmaschinenanschluss und Handtuchheizkörper
? WC mit Waschbecken
? Abstellraum
? Garten + Terrasse
? Kellerabteil

HIGHLIGHTS AUF EINEN BLICK
? Garten + Terrasse
? Gaszentralheizung
? außenliegende Beschattung
? Sicherheitswohnungseingangstüren
? hochwertiger Parkettboden (Eiche)
? Markenküche mit hochwertigen Elektrogeräten (E-Herd, Cerankochfeld, Geschirrspüler, Kühl-Gefrier-Kombination, Dunstabzug und Spüle)
? hochwertige Ausstattung auch im Badezimmer / WC (Laufen, Grohe), Badwannen mit Glasduschwänden
? sehr gute Raumaufteilung
? effiziente Grundrisse
? zentrale Schließanlage
? Fahrrad- und Kinderwagenabstellraum
? großzügige Aufzüge
? sehr gute Energiekennzahlen
? optimale Infrastruktur
? GARAGENPLÄTZE DIREKT IM HAUS

UMGEBUNG UND INFRASTRUKTUR
? diverse Supermärkte in Gehnähe (Hofer, Billa, Interspar etc.)
? Trillerpark & Shopping Center Nord mit unzähligen Einkaufsmöglichkeiten zu Fuß erreichbar
? Freizeiteinrichtungen: Kino, Fitnessstudio, Fußball, Tennis etc.
? Naherholungsgebiet Donauinsel
? gute Erreichbarkeit in die Innenstadt

SEHR GUTE ÖFFENTLICHE VERKEHRSANBINDUNG
? S-Bahn: Jedlersdorf (<5min)
? WIEN MITTE in 17min (S3)
? Autobuslinie: 36A, 36B
? Straßenbahnlinie: 26
? Regionalbus: 850
? U-Bahn: U6 Floridsdorf (ca. 12min mit Linie 26)

ERSTZAHLUNG
? 3 BMM Kaution
? erste Monatsmiete im Voraus
? Mietvertragserrichtung EUR 349,-

WEITERE MONATLICHE KOSTEN
? Wasser, Heizung... werden nach tatsächlichem Verbrauch abgerechnet
? Strom - wird direkt nach Verbrauch abgerechnet (Wien Energie bzw. Netznutzung Wiener Netze)
? ggf. TV/Internet, Haushaltsversicherung, o.Ä.

VERTRAGSBEDINGUNGEN
? Befristung: 5 Jahre
? Kündigungsverzicht: 12 Monate (mieterseitig)
? Kündigungsfrist: 3 Monate
? gefordertes Mindestnettoeinkommen (Haushalt): EUR 2500

BENÖTIGTE UNTERLAGEN FÜR ANMIETUNG
? Mietanbot (Vorlage erhalten Sie von uns)
? Selbstauskunft (Vorlage erhalten Sie von uns)
? Kopie Reisepass oder Personalausweis
? Kopie Bankomatkarte (nur IBAN relevant)
? Einkommensnachweis (letzte 3 Lohnzettel, Einkommenssteuerbescheid oder bei Berufswechsel unterzeichneter Dienstvertrag)
? Meldezettel
? Haushaltsrechnung (Vorlage erhalten Sie von uns)

IHRE MAKLERIN
Frau Kerstin Fried
Email: kerstin.fried@hubner-immobilien.com

Falls Sie Fragen haben oder einen Besichtigungstermin vereinbaren möchten, stehen wir Ihnen selbstverständlich sehr gerne zur Verfügung. Wir freuen uns auf Ihre Kontaktaufnahme!Angaben gemäß gesetzlichem Erfordernis:
Miete €782,15 zzgl 10% USt.Betriebskosten €126,03 zzgl 10% USt.Umsatzsteuer €90,82------------------------------------------------------------------Gesamtbetrag €999------------------------------------------------------------------Heizwärmebedarf:27.43 kWh/(m²a)Klasse Heizwärmebedarf:BFaktor Gesamtenergieeffizienz:0.79Klasse Faktor Gesamtenergieeffizienz:AGartennutzung: JA


Alle Details anzeigen

KONTAKT






 

Lasse dich kostenlos vom Anbieter dieser Immobilie zurückrufen.







 


 
Hubner Immobilien GmbH
Kerstin Fried
Telefonnummer anzeigen Telefon Allgemein: +4315121956
Handy Bearbeiter: +4366488730881
 
Bitte dem Makler die FindMyHome.at - ID bekanntgeben: 5604844

Bewertungen dieses Anbieters
Qualitätsmakler
Qualitätsmakler:
2014, 2015, 2016, 2018, 2019, 2020, 2021 , 2025,
Netiquette
Freundlichkeit
83 %

BEWERTUNGEN DIESES ANBIETERS

 
Qualit�tsmakler
Qualitätsmakler
2014, 2015, 2016, 2018, 2019, 2020, 2021 2025
Weiterempfehlung
WIRD GERNE

Freundlichkeit
BESONDERS
FREUNDLICH
Netiquette
FINDMYHOME
NETIQUETTE
Auch du kannst bewerten! 7 Tage nach deiner Anfrage erhältst du dafür von uns ein Bewertungsmail.
Alle Infos zu unseren Auszeichnungen und dem FINDMYHOME.AT Qualitätsprogramm findest du hier: Übersicht anzeigen


Du willst wissen, wie viel dein Umzug kosten wird?

Mach gleich den kostenlosen Preisvergleich und schau, welche seriösen Anbieter in deiner Region günstig deinen Umzug organisieren


ZUM UMZUGS-VERGLEICH
-->

MYHOME BLOG
SuchAgentin auf FindMyHome.at
Unterschiedlichen Rechtsthemen, köstliche Rezepte, neueste Design-Highlights, sowie aktuelle Technik-Tools für Ihr Eigenheim.


FINDMYHOME.AT SUCHAGENTIN
SuchAgentin auf FindMyHome.at
Hallo, soll ich dir ähnliche Immobilien kostenfrei per E-Mail schicken?


ÄHNLICHE IMMOBILIEN
Aehnliche Immobilie - Vorschaubild 1

Helle 2-Zimmer-Wohnung für Singles & Paare | Erstbezug | U-B... - Objektnr. 5606743

48,68 m² - 2.0 Zimmer
929 €
PLZ: 1210

Mehr anzeigen

Aehnliche Immobilie - Vorschaubild 2

ERSTBEZUG IN U-BAHNNÄHE | WOHNEN ZWISCHEN DONAU & GRÜN - LOG... - Objektnr. 5606741

46,30 m² - 2.0 Zimmer
939 €
PLZ: 1210

Mehr anzeigen

Aehnliche Immobilie - Vorschaubild 3

NACHHALTIGER ERSTBEZUG | familiäres Wohnhaus | U-BAHN... - Objektnr. 5606740

45,75 m² - 2.0 Zimmer
939 €
PLZ: 1210

Mehr anzeigen

Durch die Nutzung unserer Seite erklären Sie sich mit der Verwendung von Cookies zur Verbesserung Ihres Online-Erlebnisses einverstanden. Detaillierte Informationen zu diesem und weiteren Themen erhalten Sie in unserer Datenschutzerklärung.