MEIN ERGEBNIS ANPASSEN

Exklusives Wohngefühl: Altbauprojekt mit hochwertiger Ausstattung! - Objektnr. 5604506

  • Musterzimmer Altbau
  • Musterzimmer Altbau
  • Musterzimmer Neubau
  • Musterzimmer Neubau
  • Muster-Badezimmer
  • Musterbalkon
1220
Ort
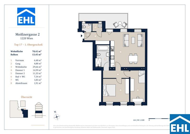
78,42 m²
Fläche
3.0
Zimmer
WEITERE MEDIEN

ECKDATEN
FindMyHome.at // Externe Immobilien-ID5604506 // 63533
ImmobilienartWohnung - Eigentum
AnschriftMeißnergasse/17
1220 Wien
Baujahr2023
Stock1
Geschosse6
Fläche78,42 m²
Zimmer3.0
Bad1
WC2
 Abstellraum
Kaufpreis:€ 495.000,00
Ratenzahlung:Finanzierungsmöglichkeiten für diese Immobilie anzeigen
Provision: 3% des Kaufpreises zzgl. 20% USt.







BESCHREIBUNG

Exklusives Wohngefühl: Altbauprojekt mit hochwertiger Ausstattung!

Two Souls Altbauprojekt mit Charme

Das Altbauprojekt in der Meißnergasse 2, im 22. Bezirk, ist eine einzigartige Möglichkeit, in einem historischen Gebäude im grünen von Wien zu wohnen. Der 2 geschoßige Altbau aus dem Jahr 1899 wurde sorgfältig renoviert und um ein weiteres Regelgeschoß sowie 2 Dachgeschoße erweitert. Durch die gute Planung wurde der Charme des Altbaus bewahrt und mit modernen Elementen komplettiert. Die 1 bis 4 Zimmerwohnungen bieten Wohnflächen zwischen 29m² und 126m². Durch die hellen und freundlichen Wohnräume, die optimale Raumnutzung sowie die offene Raumgestaltung, die den Wohn- und Essbereich miteinander verbindet, wird ein einzigartiges Wohngefühl geschaffen.

Das Altbauprojekt ist eine einmalige Gelegenheit, in einem historischen Gebäude in Wien zu wohnen. Die Kombination aus historischem Charme und modernem Ausbau sorgt für ein einzigartiges Wohngefühl. Die großzügigen Wohnflächen, die hochwertige Ausstattung und die optimale Lage machen das Projekt zu einer attraktiven Möglichkeit!

 

Das Projekt:

  • Revitalisierter Stilaltbau mit moderner Ausstattung und Technik
  • 19 exklusive Eigentumswohnungen im Regelgeschoß
  • 3 Maisonettewohnungen mit weitläufigen Dachterrassen
  • 3 Dachgeschoßwohnungen mit Terrassen auf einer Ebene
  • 1 Hofhaus mit Eigengarten
  • 1- bis 4-Zimmerwohnungen mit 29 bis 126 m2 Wohnfläche
  • Hofseitige Freiflächen und Gärten
  • Energiesparende und effiziente Fernwärme für Heizung und Warmwasserversorgung
  • Anlegerpreise im Neubau

Die Energieausweise:

  • Altbau gültig bis 15.11.2032: HWB 93,1 kWh/m²a, Klasse C; fGEE: 1,46, Klasse C
  • Dachgeschoß gültig bis 18.09.2032: HWB 18,0 kWh/m²a, Klasse A ; fGEE: 0,70 Klasse A+
  • Nebengebäude gültig bis 18.09.2032: HHB 82,3 kWh/m²; Klasse C; fGEE: 0,55 Klasse A++

Die Ausstattung:

  • Raumhöhen mit bis zu 3 Metern
  • Edles Eichenholzparkett
  • Smart-Home-Steuerung mit Apple iPad,
  • Klimaanlage und Fußbodenheizung in den Dachgeschoßen
  • Niedertemperatur-Fußbodenheizung für besonders geringen Energieverbrauch
  • Energiesparende Fenster mit 2-fach-Verglasung
  • Markensanitärprodukte
  • Moderne Ausstattung und Technik

Die Lage und Infrastruktur:

Das Projekt befindet sich in einer ruhigen Seitenstraße und bietet dennoch eine optimale Anbindung an die öffentlichen Verkehrsmittel sowie eine gute Anbindung an die Autobahn. Die Lage des Eigentumsprojekts ist ideal für Menschen, die in der Stadt leben möchten, aber dennoch eine ruhige und entspannte Umgebung suchen. Die nahe gelegenen Parks bieten reichlich Möglichkeiten für Spaziergänge und sportliche Aktivitäten. Darüber hinaus gibt es in der Umgebung zahlreiche Einkaufsmöglichkeiten, Restaurants und Cafés. Das Eigentumsprojekt Meißnergasse 2 bietet den Bewohnern ein exklusives Wohngefühl in einer ruhigen und dennoch zentralen Lage. Die Lage des Altbauprojekts ist optimal. Die Straße, in der das Gebäude liegt, ist ruhig und dennoch zentral gelegen. In der Umgebung gibt es zahlreiche Einkaufsmöglichkeiten, Restaurants und Cafés. Die öffentlichen Verkehrsmittel sind in wenigen Minuten zu erreichen und bieten eine optimale Anbindung an die Stadt.

 

3% Kundenprovision

Bezugsfertig!

Wir weisen darauf hin, dass zwischen dem Vermittler und dem zu vermittelnden Dritten ein familiäres oder wirtschaftliches Naheverhältnis besteht.

Der Vermittler ist als Doppelmakler tätig.


Infrastruktur / Entfernungen

Gesundheit
Arzt <250m
Apotheke <750m
Klinik <2.250m
Krankenhaus <3.500m

Kinder & Schulen
Schule <250m
Kindergarten <250m
Universität <1.250m
Höhere Schule <750m

Nahversorgung
Supermarkt <250m
Bäckerei <250m
Einkaufszentrum <500m

Sonstige
Geldautomat <250m
Bank <250m
Post <750m
Polizei <500m

Verkehr
Bus <250m
U-Bahn <250m
Straßenbahn <500m
Bahnhof <500m
Autobahnanschluss <1.750m

Angaben Entfernung Luftlinie / Quelle: OpenStreetMap

Kabel/SAT/TV: JA
Provision: 3% des Kaufpreises zzgl. 20% USt.


Alle Details anzeigen

KONTAKT






 

Lasse dich kostenlos vom Anbieter dieser Immobilie zurückrufen.







 


 
EHL Wohnen GmbH
Daniel Bolataschwili
Telefonnummer anzeigen Telefon Allgemein: +4315127690414
Handy Bearbeiter: +4366488160127
 
Bitte dem Makler die FindMyHome.at - ID bekanntgeben: 5604506

Bewertungen dieses Anbieters
Qualitätsmakler
Qualitätsmakler:
Netiquette
Freundlichkeit
82 %

BEWERTUNGEN DIESES ANBIETERS

 
Qualitätsmakler
UNSERE HALL OF FAME DER BESTEN ANBIETER
Qualit�tsmakler
Qualitätsmakler
2012, 2013, 2014, 2015, 2016, 2017, 2018, 2019, 2020, 2021, 22/23, 2024, 2025
Weiterempfehlung
WIRD GERNE

Freundlichkeit
BESONDERS
FREUNDLICH
Netiquette
FINDMYHOME
NETIQUETTE
Auch du kannst bewerten! 7 Tage nach deiner Anfrage erhältst du dafür von uns ein Bewertungsmail.
Alle Infos zu unseren Auszeichnungen und dem FINDMYHOME.AT Qualitätsprogramm findest du hier: Übersicht anzeigen

FINANZIERUNG
?>

Du willst wissen, wie viel dein Umzug kosten wird?

Mach gleich den kostenlosen Preisvergleich und schau, welche seriösen Anbieter in deiner Region günstig deinen Umzug organisieren


ZUM UMZUGS-VERGLEICH
-->

MYHOME BLOG
SuchAgentin auf FindMyHome.at
Unterschiedlichen Rechtsthemen, köstliche Rezepte, neueste Design-Highlights, sowie aktuelle Technik-Tools für Ihr Eigenheim.


FINDMYHOME.AT SUCHAGENTIN
SuchAgentin auf FindMyHome.at
Hallo, soll ich dir ähnliche Immobilien kostenfrei per E-Mail schicken?


ÄHNLICHE IMMOBILIEN
Aehnliche Immobilie - Vorschaubild 1

Vorsorgewohnung Top A36 - Neubau im 22. Bezirk! Ihr Investme... - Objektnr. 5591856

88,10 m² - 3 Zimmer
579000 €
PLZ: 1220

Mehr anzeigen

Aehnliche Immobilie - Vorschaubild 2

Vorhang auf! Wohnen am oberen Hausfeld - 1-2-3 Zimmer Traum ... - Objektnr. 5597794

75,37 m² - 3.0 Zimmer
539800 €
PLZ: 1220

Mehr anzeigen

Aehnliche Immobilie - Vorschaubild 3

Hof am Park - Gemütliche 3-Zimmer-Wohnung mit einer Raumhöhe... - Objektnr. 5600585

75,63 m² - 3 Zimmer
409000 €
PLZ: 1220

Mehr anzeigen

Durch die Nutzung unserer Seite erklären Sie sich mit der Verwendung von Cookies zur Verbesserung Ihres Online-Erlebnisses einverstanden. Detaillierte Informationen zu diesem und weiteren Themen erhalten Sie in unserer Datenschutzerklärung.