MEIN ERGEBNIS ANPASSEN

Wohnen mit Stil und Verantwortung - Objektnr. 5604443

  • Wohnraum 1.2
  • Top 38
1230
Ort
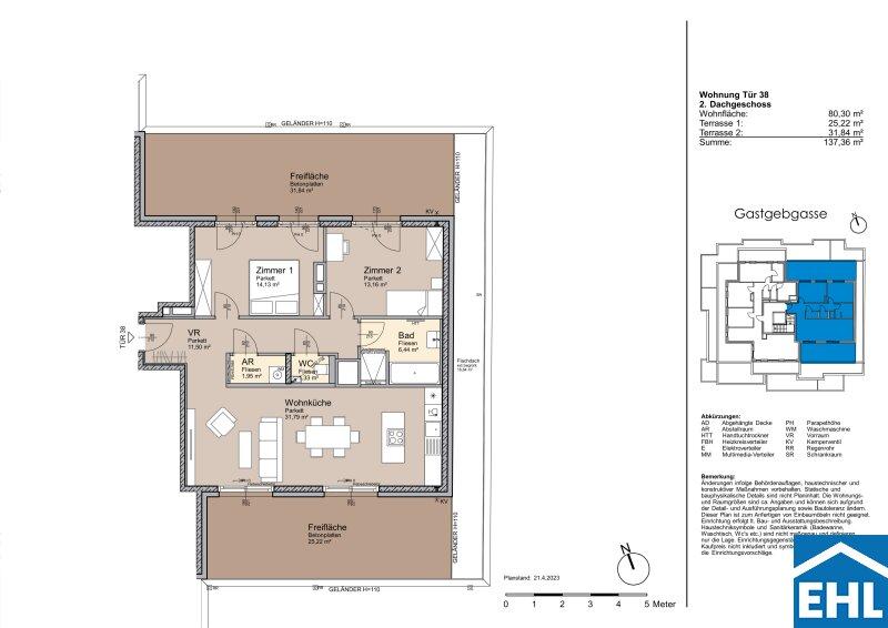
80,30 m²
Fläche
3.0
Zimmer
WEITERE MEDIEN

ECKDATEN
FindMyHome.at // Externe Immobilien-ID5604443 // 90416
ImmobilienartWohnung - Eigentum
Anschrift1230 Wien
Baujahr2024
Fläche80,30 m²
Terrassen2 (57,00 m²)
Zimmer3.0
Bad1
WC1
 Abstellraum
Kaufpreis:€ 580.000,00
Ratenzahlung:Finanzierungsmöglichkeiten für diese Immobilie anzeigen
Provision: Provision bezahlt der Abgeber.







BESCHREIBUNG

Wohnen mit Stil und Verantwortung

Ein Haus mit Stil und Verantwortung

Zeitlos, elegant und zukunftsorientiert. Das Wohnprojekt beim Stadtpark Atzgersdorf und der Liesing,  vereint urbanen Lifestyle mit nachhaltiger Architektur.
Auf fünf Etagen und zwei Dachgeschossen erstrecken sich nur 38 Eigentumswohnungen, die Design, Komfort und Lebensqualität auf harmonische Weise verbinden. Großzügige Freiflächen, ein durchdachtes Energiekonzept und eine offene, grüne Umgebung machen das Projekt zu einem besonderen Ort für alle, die das Leben im Süden Wiens genießen möchten.

Das architektonische Konzept setzt auf klare Linien und natürliche Materialien. Neben stilvoll gestalteten Wohnräumen überzeugt vor allem das CO-neutrale Wärme- und Temperierungssystem, das durch Erdwärme und Sonnenenergie eine nachhaltige und effiziente Energieversorgung ermöglicht. Eine Investition in modernes Wohnen. Ökologisch, komfortabel und zukunftssicher.

Ausstattung mit Anspruch

Die Apartments beeindrucken mit hochwertiger Ausstattung, intelligenter Raumaufteilung und liebevollen Details, die das Wohnen besonders angenehm machen.
Eichenparkettböden, Holz-Alu-Fenster und Außenjalousien schaffen ein stilvolles Ambiente mit natürlicher Wärme. Dank Smart-Home-Vorbereitung, Fußbodenheizung und Raumkühlung über Bauteilaktivierung genießen Bewohnerinnen und Bewohner ein ausgewogenes Wohnklima zu jeder Jahreszeit.

Das nachhaltige Heiz- und Kühlsystem nutzt die natürlichen Ressourcen des Grundstücks optimal für ein umweltfreundliches, effizientes und leistbares Energiekonzept.
Ergänzt wird das Angebot durch 23 Tiefgaragenstellplätze, die teilweise bereits für Elektromobilität vorbereitet sind. Gemeinschaftsflächen wie der Garten mit Spielplatz sowie ein Atelier für Kunstschaffende fördern das Miteinander und schaffen einen besonderen Mehrwert.

Lage & Umgebung:

  • 38 Eigentumswohnungen mit 2 bis 4 Zimmern
  • Wohnflächen von ca. 39 bis 109 m²
  • Alle Wohnungen mit Balkon, Terrasse oder Garten
  • Eichenparkett, Holz-Alu-Fenster mit elektr.  Außenjalousien
  • Fußbodenheizung & Raumkühlung über Bauteilaktivierung
  • 23 Tiefgaragenplätze (teils E-Mobility ready)
  • Großer Gemeinschaftsgarten & Spielplatz im Grünen
  • Nachhaltiges CO-neutrales Energiesystem

Wohnen im Kulturviertel der Zukunft! Das Projekt liegt mitten in Atzgersdorf, einem der spannendsten Stadtentwicklungsgebiete Wiens. Die Nähe zum neu gestalteten Stadtpark Atzgersdorf, zum  Kulturzentrum F23, zu Schulen, Kindergarten und Nahversorgung macht das Viertel zu einem lebendigen, familienfreundlichen Ort mit urbanem Flair.

Zwischen grüner Ruhe und Stadtnähe bietet die Lage beides: Der Liesingbach mit seinen Spazier- und Radwegen liegt nur wenige Gehminuten entfernt, während man mit öffentlichen Verkehrsmitteln in rund 35 Minuten das Wiener Stadtzentrum erreicht.
Die geplante S-Bahn-Station Rosenhügel wird die Anbindung künftig noch weiter verbessern. Bereits jetzt sorgt die Buslinie 62A für optimale Mobilität direkt vor der Haustür.

Ein Zuhause, das Natur, Kultur und urbanes Leben in perfekter Balance vereint, für Menschen, die das Besondere suchen.

 

Die möblierten Bilder wurden mittels KI virtuell möbliert um eine bessere Vorstellung der Einrichtungsmöglichkeiten zu vermitteln. 

 

 

Wir weisen darauf hin, dass zwischen dem Vermittler und dem zu vermittelnden Dritten ein familiäres oder wirtschaftliches Naheverhältnis besteht.

Der Vermittler ist als Doppelmakler tätig.


Infrastruktur / Entfernungen

Gesundheit
Arzt <1.500m
Apotheke <1.000m
Klinik <1.000m
Krankenhaus <1.500m

Kinder & Schulen
Schule <500m
Kindergarten <500m
Universität <4.500m
Höhere Schule <4.000m

Nahversorgung
Supermarkt <500m
Bäckerei <500m
Einkaufszentrum <1.500m

Sonstige
Geldautomat <1.000m
Bank <1.000m
Post <1.500m
Polizei <1.500m

Verkehr
Bus <500m
U-Bahn <1.500m
Straßenbahn <2.000m
Bahnhof <1.000m
Autobahnanschluss <2.000m

Angaben Entfernung Luftlinie / Quelle: OpenStreetMap

Provision: Provision bezahlt der Abgeber.


Alle Details anzeigen

KONTAKT






 

Lasse dich kostenlos vom Anbieter dieser Immobilie zurückrufen.







 


 
EHL Wohnen GmbH
Ingrid Neugebauer
Telefonnummer anzeigen Telefon Allgemein: +4315127690418
Handy Bearbeiter: +4369915212532
 
Bitte dem Makler die FindMyHome.at - ID bekanntgeben: 5604443

Bewertungen dieses Anbieters
Qualitätsmakler
Qualitätsmakler:
Netiquette
Freundlichkeit
82 %

BEWERTUNGEN DIESES ANBIETERS

 
Qualitätsmakler
UNSERE HALL OF FAME DER BESTEN ANBIETER
Qualit�tsmakler
Qualitätsmakler
2012, 2013, 2014, 2015, 2016, 2017, 2018, 2019, 2020, 2021, 22/23, 2024, 2025
Weiterempfehlung
WIRD GERNE

Freundlichkeit
BESONDERS
FREUNDLICH
Netiquette
FINDMYHOME
NETIQUETTE
Auch du kannst bewerten! 7 Tage nach deiner Anfrage erhältst du dafür von uns ein Bewertungsmail.
Alle Infos zu unseren Auszeichnungen und dem FINDMYHOME.AT Qualitätsprogramm findest du hier: Übersicht anzeigen

FINANZIERUNG
?>

Du willst wissen, wie viel dein Umzug kosten wird?

Mach gleich den kostenlosen Preisvergleich und schau, welche seriösen Anbieter in deiner Region günstig deinen Umzug organisieren


ZUM UMZUGS-VERGLEICH
-->

MYHOME BLOG
SuchAgentin auf FindMyHome.at
Unterschiedlichen Rechtsthemen, köstliche Rezepte, neueste Design-Highlights, sowie aktuelle Technik-Tools für Ihr Eigenheim.


FINDMYHOME.AT SUCHAGENTIN
SuchAgentin auf FindMyHome.at
Hallo, soll ich dir ähnliche Immobilien kostenfrei per E-Mail schicken?


ÄHNLICHE IMMOBILIEN
Aehnliche Immobilie - Vorschaubild 1

Gartenwohnung im Neubauprojekt I 2 Zimmer I Ruhelage... - Objektnr. 5580455

87,98 m² - 4.0 Zimmer
595000 €
PLZ: 1230

Mehr anzeigen

Aehnliche Immobilie - Vorschaubild 2

Innenhoflage - Sehr schöne Familienwohnung mit Terrasse und ... - Objektnr. 5571155

79,43 m² - 3.0 Zimmer
498000 €
PLZ: 1230

Mehr anzeigen

Aehnliche Immobilie - Vorschaubild 3

Ihr Rückzugsort im Grünen: Modernes Wohnen in der Klugargass... - Objektnr. 5604386

95,33 m² - 3.0 Zimmer
580000 €
PLZ: 1230

Mehr anzeigen

Durch die Nutzung unserer Seite erklären Sie sich mit der Verwendung von Cookies zur Verbesserung Ihres Online-Erlebnisses einverstanden. Detaillierte Informationen zu diesem und weiteren Themen erhalten Sie in unserer Datenschutzerklärung.