MEIN ERGEBNIS ANPASSEN

Wohnen in Hietzing - Neubau-Doppelhäuser mit Stil und Garten - Objektnr. 5604383

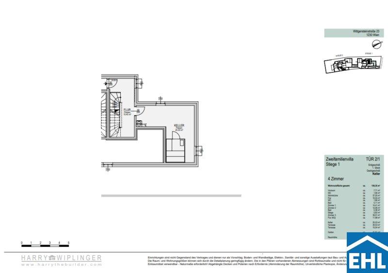
1230
Ort
156,35 m²
Fläche
4.0
Zimmer
WEITERE MEDIEN

ECKDATEN
FindMyHome.at // Externe Immobilien-ID5604383 // 90423
ImmobilienartHaus - Eigentum
Anschrift1230 Wien
Baujahr2028
Fläche156,35 m²
Terrassen3 (55,00 m²)
Zimmer4.0
Bad2
WC2
 Abstellraum
Kaufpreis:€ 1.448.000,00
Ratenzahlung:Finanzierungsmöglichkeiten für diese Immobilie anzeigen
Provision: Provision bezahlt der Abgeber.







BESCHREIBUNG

Wohnen in Hietzing - Neubau-Doppelhäuser mit Stil und Garten

Wittgenstein 23 Villenflair zwischen Hietzing und Mauer

Die Wittgensteinstraße zählt zu den klassischen Wiener Villenstraßen und verbindet Rosenhügelstraße mit Speisingerstraße. Hier treffen Hietzings Flair und das Grün von Mauer aufeinander. Die Umgebung besticht durch großzügige Gärten, alte Bäume und detailreiche Villen. Wiesen des Lainzer Tiergartens, Wienerwald-Spaziergänge und Traditionsheurige wie Wiltschko oder Steinklammer liegen in unmittelbarer Nähe. Ein idealer Ort für Familien, die Wohnqualität und Ästhetik schätzen.

 

Das Projekt

Wittgenstein 23 umfasst sieben Eigentumswohnungen und ein Doppelhaus mit Wohnflächen von 38 bis 156 m² und großzügigen Freiflächen. Die Architektur verbindet traditionelle Villenformen mit modernen Elementen und schafft ein gemeinschaftliches Wohngefühl. Lichtdurchflutete Räume, natürliche Materialien und klare Linien fügen sich harmonisch in das gewachsene Umfeld ein.

  • Tiefgarage mit vorbereiteten Anschlüssen für E-Ladestationen
  • ein Stellplatz kann um € 35.000,- dazu erworben werden
  • Kellerabteile für jede Einheit
  • Hausinterne Räume für Fahrräder und Kinderwägen
  • Geothermie (Heizen/Kühlen) und Photovoltaik für nachhaltige Energieversorgung
  • Natürliche Materialien und hochwertige Ausstattung

Wittgenstein 23 vereint Lebensqualität, Nachhaltigkeit und niedrige Betriebskosten ein Zuhause, das sich selbstverständlich in seine Umgebung einfügt.

 

Die Lage

Die Wittgensteinstraße zieht sich sanft den Hang hinauf oben eröffnet sich ein Ausblick über ein Stück Wien, das Stadt und Landschaft vereint. Dieses Dorf in der Stadt ermöglicht Urbanität und Natur gleichermaßen: Vormittags im Zentrum arbeiten, am Nachmittag im Wald oder auf dem Rad entspannen, abends ein Glas Wein beim Heurigen genießen.

Nur wenige Schritte trennen die Bewohner von den Spazierwegen des Lainzer Tiergartens, den Mauerer Weinbergen und den traditionellen Heurigen. Hier wird Work-Life-Balance greifbar Natur, Erholung und Familienzeit liegen direkt vor der Haustür.

Die renommierte Privatschule St. Ursula liegt direkt im Viertel. Nahversorgung, Gesundheitszentren und Freizeitmöglichkeiten sind fußläufig erreichbar. Eine schnelle Anbindung ins Zentrum ist über S-Bahn, Bus und Straßenbahn gewährleistet.

Wittgenstein 23 verbindet Rückzugsort und Lebensmittelpunkt: ein Zuhause, in dem man ankommt, bleibt und wächst Ausgangspunkt für ein urbanes Lebensgefühl zwischen Natur, Kultur und Stadt.

 

Provisionsfrei für den Käufer!

Fertigstellung: voraussichtlich 1. Quartal 2028

Wir weisen darauf hin, dass zwischen dem Vermittler und dem zu vermittelnden Dritten ein familiäres oder wirtschaftliches Naheverhältnis besteht.

Der Vermittler ist als Doppelmakler tätig.


Infrastruktur / Entfernungen

Gesundheit
Arzt <500m
Apotheke <1.000m
Klinik <1.500m
Krankenhaus <1.000m

Kinder & Schulen
Schule <500m
Kindergarten <500m
Universität <3.500m
Höhere Schule <5.500m

Nahversorgung
Supermarkt <1.000m
Bäckerei <1.000m
Einkaufszentrum <2.500m

Sonstige
Geldautomat <500m
Bank <1.000m
Post <1.000m
Polizei <2.500m

Verkehr
Bus <500m
Straßenbahn <500m
U-Bahn <4.000m
Bahnhof <2.000m
Autobahnanschluss <4.000m

Angaben Entfernung Luftlinie / Quelle: OpenStreetMap

Gartennutzung: JA
Provision: Provision bezahlt der Abgeber.


Alle Details anzeigen

KONTAKT






 

Lasse dich kostenlos vom Anbieter dieser Immobilie zurückrufen.







 


 
EHL Wohnen GmbH
Ilse Reindl
Telefonnummer anzeigen Telefon Allgemein: +4315127690410
Handy Bearbeiter: +4366488160143
 
Bitte dem Makler die FindMyHome.at - ID bekanntgeben: 5604383

Bewertungen dieses Anbieters
Qualitätsmakler
Qualitätsmakler:
Netiquette
Freundlichkeit
82 %

BEWERTUNGEN DIESES ANBIETERS

 
Qualitätsmakler
UNSERE HALL OF FAME DER BESTEN ANBIETER
Qualit�tsmakler
Qualitätsmakler
2012, 2013, 2014, 2015, 2016, 2017, 2018, 2019, 2020, 2021, 22/23, 2024, 2025
Weiterempfehlung
WIRD GERNE

Freundlichkeit
BESONDERS
FREUNDLICH
Netiquette
FINDMYHOME
NETIQUETTE
Auch du kannst bewerten! 7 Tage nach deiner Anfrage erhältst du dafür von uns ein Bewertungsmail.
Alle Infos zu unseren Auszeichnungen und dem FINDMYHOME.AT Qualitätsprogramm findest du hier: Übersicht anzeigen

FINANZIERUNG
?>

Du willst wissen, wie viel dein Umzug kosten wird?

Mach gleich den kostenlosen Preisvergleich und schau, welche seriösen Anbieter in deiner Region günstig deinen Umzug organisieren


ZUM UMZUGS-VERGLEICH
-->

MYHOME BLOG
SuchAgentin auf FindMyHome.at
Unterschiedlichen Rechtsthemen, köstliche Rezepte, neueste Design-Highlights, sowie aktuelle Technik-Tools für Ihr Eigenheim.


FINDMYHOME.AT SUCHAGENTIN
SuchAgentin auf FindMyHome.at
Hallo, soll ich dir ähnliche Immobilien kostenfrei per E-Mail schicken?


ÄHNLICHE IMMOBILIEN
Aehnliche Immobilie - Vorschaubild 1

Wohnen im Grünen Mauer - 1230 Wien - Objektnr. 5604882


150,02 m² - 4.0 Zimmer
1538000 €
PLZ: 1230

Mehr anzeigen

Aehnliche Immobilie - Vorschaubild 2

Wittgenstein23 | Luxuriöses Wohnen im Grünen Herzen Hietzing... - Objektnr. 5604382

152,78 m² - 4.0 Zimmer
1538000 €
PLZ: 1230

Mehr anzeigen

Aehnliche Immobilie - Vorschaubild 3

1230, Heißgasse, Beim Rosenhügel in Grünruhelage, Einzelhaus... - Objektnr. 5508544

144,48 m² - 5 Zimmer
1449900 €
PLZ: 1230

Mehr anzeigen

Durch die Nutzung unserer Seite erklären Sie sich mit der Verwendung von Cookies zur Verbesserung Ihres Online-Erlebnisses einverstanden. Detaillierte Informationen zu diesem und weiteren Themen erhalten Sie in unserer Datenschutzerklärung.