MEIN ERGEBNIS ANPASSEN

Nachhaltiges Wohnen mit Weitsicht: Modernes Wohnprojekt in idyllischer Lage - Objektnr. 5604211

  • Außenansicht
  • Außenansicht 2
  • Außenansicht 3
  • Panoramablick
  • Panoramablick 2
  • Spielplatz
3500
Ort
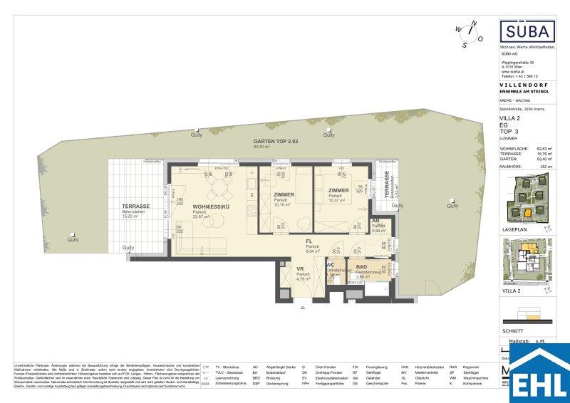
62,83 m²
Fläche
3.0
Zimmer
WEITERE MEDIEN

ECKDATEN
FindMyHome.at // Externe Immobilien-ID5604211 // 73237
ImmobilienartWohnung - Eigentum
AnschriftSteindlstraße/3
3500 Krems an der Donau
Baujahr2024
Geschosse3
Fläche62,83 m²
Terrassen2 (19,00 m²)
Zimmer3.0
Bad1
WC1
 Abstellraum
Kaufpreis:€ 390.000,00
Ratenzahlung:Finanzierungsmöglichkeiten für diese Immobilie anzeigen
Provision: 3% des Kaufpreises zzgl. 20% USt.







BESCHREIBUNG

Nachhaltiges Wohnen mit Weitsicht: Modernes Wohnprojekt in idyllischer Lage

Wohnkomfort der Extraklasse: Ensemble Krems mit Weitblick!

Willkommen in dem einzigartigen Wohnprojekt "Ensemble Krems", welches luxuriöses Wohnen mit modernster Energieeffizienz vereint. Erleben Sie exklusives Ambiente in sieben stilvollen Villen, die insgesamt 62 exklusive Eigentumswohnungen beherbergen. Am Südhang entlang platziert, garantiert Ihnen jede der Einheiten einen atemberaubenden Panoramablick auf die Donau und das majestätische Stift Göttweig. Dieses herausragende Projekt besticht durch eine erstklassige Lage, ein durchdachtes CO2-optimiertes Energie- und Gebäudekonzept sowie eine nachbarschaftliche und gemeinschaftliche Wohnphilosophie. 

 

Das Projekt im Überblick:

  • 62 freifinanzierte Neubauwohnungen
  • 2-4 Zimmer
  • 38 - 108m² Wohnfläche
  • Private Freiflächen wie Garten, Terrasse oder Balkon
  • 90 Tiefgaragenplätze teilweise mit E-Mobility
  • 2 Fahrradabstellplätze pro Wohnung (TG bzw. EG)
  • Einlagerungsräume für jede Wohnung

 

Ein Projekt für die Gemeinschaft

  • Gemeinschaftsraum und Gemeinschaftsgarten
  • Spiel-Bereich im Freien
  • Kinderwagen- & Fahrradabstellplätze

 

Modernste Ausstattung & außergewöhnliches Energiekonzept

Erleben Sie höchsten Wohnkomfort aufgrund eines durchdachten, modernen Wohnkonzepts. Die Energieversorgung erfolgt über eine Erdwärmepumpenanlage mit Tiefensonden. Ergänzt wird dieses technologische Highlight durch Luftwärmepumpen sowie großflächige Photovoltaikanlagen auf den Dächern. Darüber hinaus verfügen sämtliche Wohnungen über großzügige Freiflächen.

  • CO2 -optimiertes Energie- und Gebäudekonzept
  • Thermische Bauteilaktivierung
  • Photovoltaik
  • Erdwärmesonden
  • Wärmepumpe und Dachbegrünung
  • Lackierter Eichenparkettboden in den Wohnräumen
  • Feinsteinzeug in den Nassräumen
  • Hochwertige Sanitärausstattung von Marken wie Laufen, Kaldewei und Grohe
  • 3-fach verglaste Holz-Alu Fenster
  • Außenliegender Sonnenschutz

Bei den Fotos handelt es sich um Musterfotos außer bei: Villa 2-Top 6, Villa 4-Top 2, Villa 5-Top 5.

Die Lage Eleganz in Grünruhelage

Neben der beeindruckenden Ausstattung und Energieeffizienz punktet dieses Wohnprojekt mit seiner Lage. Trotz idyllischer Grünruhelage sind Sie nur 16 Gehminuten von der historischen Kremser Altstadt entfernt. Darüber hinaus finden sich in der Nähe zahlreiche Supermärkte, Apotheken, Schulen und Kindergärten, die den Alltag hier besonders komfortabel gestalten.

Öffentliche Verkehrsmittel:

  • Buslinie 1405
  • Buslinie 4

Erleben Sie exklusives Wohnen, das Luxus, Nachhaltigkeit und erstklassige Lage harmonisch vereint. Sichern Sie sich Ihren Platz in diesem einmaligen Wohnprojekt und werden Sie Teil einer exklusiven Gemeinschaft, die Eleganz und Lebensqualität schätzt.

 

3% Kundenprovision
Fertigstellung: 4. Quartal 2024 

Die monatlichen Kosten entnehmen Sie bitte der Preisliste.

Wir weisen darauf hin, dass zwischen dem Vermittler und dem zu vermittelnden Dritten ein familiäres oder wirtschaftliches Naheverhältnis besteht.

Der Vermittler ist als Doppelmakler tätig.


Infrastruktur / Entfernungen

Gesundheit
Arzt <500m
Apotheke <1.000m
Klinik <1.250m
Krankenhaus <1.000m

Kinder & Schulen
Schule <500m
Kindergarten <750m
Universität <1.000m
Höhere Schule <1.250m

Nahversorgung
Supermarkt <750m
Bäckerei <750m
Einkaufszentrum <1.000m

Sonstige
Geldautomat <750m
Bank <1.000m
Post <1.250m
Polizei <1.000m

Verkehr
Bus <250m
Autobahnanschluss <1.250m
Bahnhof <1.000m
Flughafen <3.750m

Angaben Entfernung Luftlinie / Quelle: OpenStreetMap

Kabel/SAT/TV: JA
Provision: 3% des Kaufpreises zzgl. 20% USt.


Alle Details anzeigen

KONTAKT






 

Lasse dich kostenlos vom Anbieter dieser Immobilie zurückrufen.







 


 
EHL Wohnen GmbH
Birgita EHRENBERGER
Telefonnummer anzeigen Telefon Allgemein: +4315127690422
Handy Bearbeiter: +4366488160139
 
Bitte dem Makler die FindMyHome.at - ID bekanntgeben: 5604211

Bewertungen dieses Anbieters
Qualitätsmakler
Qualitätsmakler:
Netiquette
Freundlichkeit
82 %

BEWERTUNGEN DIESES ANBIETERS

 
Qualitätsmakler
UNSERE HALL OF FAME DER BESTEN ANBIETER
Qualit�tsmakler
Qualitätsmakler
2012, 2013, 2014, 2015, 2016, 2017, 2018, 2019, 2020, 2021, 22/23, 2024, 2025
Weiterempfehlung
WIRD GERNE

Freundlichkeit
BESONDERS
FREUNDLICH
Netiquette
FINDMYHOME
NETIQUETTE
Auch du kannst bewerten! 7 Tage nach deiner Anfrage erhältst du dafür von uns ein Bewertungsmail.
Alle Infos zu unseren Auszeichnungen und dem FINDMYHOME.AT Qualitätsprogramm findest du hier: Übersicht anzeigen

FINANZIERUNG
?>

Du willst wissen, wie viel dein Umzug kosten wird?

Mach gleich den kostenlosen Preisvergleich und schau, welche seriösen Anbieter in deiner Region günstig deinen Umzug organisieren


ZUM UMZUGS-VERGLEICH
-->

MYHOME BLOG
SuchAgentin auf FindMyHome.at
Unterschiedlichen Rechtsthemen, köstliche Rezepte, neueste Design-Highlights, sowie aktuelle Technik-Tools für Ihr Eigenheim.


FINDMYHOME.AT SUCHAGENTIN
SuchAgentin auf FindMyHome.at
Hallo, soll ich dir ähnliche Immobilien kostenfrei per E-Mail schicken?


ÄHNLICHE IMMOBILIEN
Aehnliche Immobilie - Vorschaubild 1

Gemeinschaftliches Wohnen in Stilvillen: Krems´ einzigartige... - Objektnr. 5604192

52,46 m² - 2.0 Zimmer
325000 €
PLZ: 3500

Mehr anzeigen

Aehnliche Immobilie - Vorschaubild 2

NUR FÜR ANLEGER. Moderne Stadtwohnung zum Wohlfühlen - 72,99... - Objektnr. 5393512

72,90 m² - 2.5 Zimmer
379000 €
PLZ: 3500

Mehr anzeigen

Aehnliche Immobilie - Vorschaubild 3

Wohnkomfort der Extraklasse: Krems mit Weitblick!... - Objektnr. 5604186

57,74 m² - 3.0 Zimmer
359000 €
PLZ: 3500

Mehr anzeigen

Durch die Nutzung unserer Seite erklären Sie sich mit der Verwendung von Cookies zur Verbesserung Ihres Online-Erlebnisses einverstanden. Detaillierte Informationen zu diesem und weiteren Themen erhalten Sie in unserer Datenschutzerklärung.