MEIN ERGEBNIS ANPASSEN

Exklusiv: Stilvolle Zinsvilla in Währing mit drei autarken Wohneinheiten - Objektnr. 5603969


ökologisch beheizt
1180
Ort
505,00 m²
Fläche
13.0
Zimmer

ECKDATEN
FindMyHome.at // Externe Immobilien-ID5603969 // 293841
ImmobilienartHaus - Eigentum
Anschrift1180 Wien
Befeuerung
Holz
Geschosse3
Fläche505,00 m²
Grundfläche378,00 m²
Terrassen2 (45,00 m²)
Zimmer13.0
Bad7
 Abstellraum
Kaufpreis:€ 3.250.000,00
Ratenzahlung:Finanzierungsmöglichkeiten für diese Immobilie anzeigen
Provision: 3% des Kaufpreises zzgl. 20% USt.







BESCHREIBUNG

Exklusiv: Stilvolle Zinsvilla in Währing mit drei autarken Wohneinheiten

Exklusiv: Stilvolle Zinsvilla in Währing mit drei autarken Wohneinheiten

In einer der exklusivsten Lagen Wiens präsentiert sich diese prachtvolle Gründerzeitvilla als außergewöhnliches Gesamtobjekt mit ca. 505 m² Wohnfläche. Auf vier Ebenen, aufgeteilt in drei autarke Wohneinheiten, eröffnet sich ein flexibles Raumkonzept, das sich ideal für FamilienMehrgenerationenwohnen, eine Kombination aus Wohnen und Praxis/Büro oder als Investmentobjekt eignet.
Diese Immobilie eröffnet vielfältige Nutzungsmöglichkeiten in Alleineigentum und nur als Gesamteinheit zu erwerben.


Highlights und Luxuriöse Ausstattung auf einen Blick

  • Ca. 505 m² Wohnfläche inkl. Wellness- & Nebenräume im Souterrain

  • Drei autarke Wohneinheiten (Top 13)

  • 13 großzügige, ruhige Zimmer + Nebenräume

  • Außenliegender Lift  inkl. direktem Zugang ins DG

  • Edle Natursteinböden in den repräsentativen Bereichen

  • Elegantes Fischgrätparkett aus Echtholz in den Wohnräumen

  • Fußbodenheizung in allen Wohneinheiten

  • Thermen je Top separat

  • Isolierverglaste Holz-Alu-Fenster

  • Großzügige Raumhöhen mit klassischen Stilelementen

  • Designbäder mit Walk-in-Duschenfreistehenden Badewannen und hochwertigen Armaturen, hochwertiges Naturstein-Waschbecken im SPA-Bereich

  • Maßgefertigte Einbauschränke und elegante Innenausstattung - Stilvolle Möblierung auf Wunsch inklusive

  • Modernste Haustechnik, u.a. mit Video-Gegensprechanlage und teilweiser Klimatisierung

  • Großzügige Terrassenflächen

  • Dachterrasse mit Wien- und Kahlenbergblick

  • Trennbarkeit einzelner Tops für Wohnen und Arbeiten möglich

  • Schlafzimmer mit luxuriösen Bädern en suite

  • Uneinsehbarer, pflegeleichter Garten mit ca 101 m²

  • Historische Details wie Gewölbedecke im Souterrain, Kaminumrahmungen aus echtem Marmor, stuckverzierte Fassaden

  • Repräsentatives Entree, prachtvolles Stiegenhaus, Lift modern verglast mit Blick ins Grüne

  • Ideale Infrastruktur und Grünruhelage

  • Möglichkeit zur Parifizierung und Abverkauf einzelner Tops (nachträglich)

  • Parkmöglichkeiten direkt vor dem Haus


 Aufteilung im Detail

 

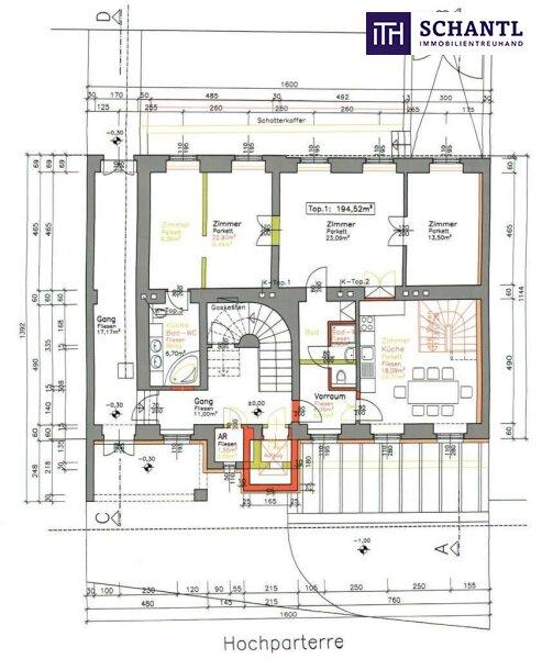
Top 1 Erdgeschoss + Souterrain (ca. 195 m²)

Diese großzügige Einheit mit bis zu 5 Zimmern verbindet klassische Wohnbereiche mit Erholungs- und Arbeitszonen:

  • 4 Zimmer + 2 Bäder im Hochparterre

  • zusätzlich: unterirdischer Wintergarten, Sauna, Badezimmer, Whirlpool und Fitnessräume, Waschraum, Keller, Garten mit separatem Zugang

  • edle weiße Feinsteinböden, historische Flügeltüren, Tageslichtbad

 

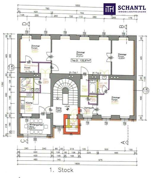
Top 2 1. Obergeschoss (ca. 133 m²)

Bel Etage mit Eleganz & Weite

  • 4 Schlafzimmer, 2 Bäder, Schrankraum, Küche, verglaster Wintergarten

  • bis zu 3,60 m Raumhöhe

  • Stuckdecken, Kristallluster, Echtholzparkett

  • Top 2 verfügt über zwei gegenüberliegende, separat zugängliche Eingangsbereiche, was eine elegante Grundlage für eine flexible Nutzung schafft sei es als großzügige Wohneinheit mit Bürotrakt oder durch eine mögliche Teilung in zwei unabhängige Einheiten

 

Top 3 Dachgeschoss (ca. 137 m²)

Luxuriöser Rückzugsort mit modernem Flair:

  • direkter Liftzugang in die Wohnung

  • weitläufiger Wohn-Essbereich mit offenem Küchenkonzept

  • 4 Zimmer, 2 Bäder

  • Die private Dachterrasse eröffnet einen herrlichen Ausblick über Wien bis hin zum Kahlenberg

  • Eichenparkett, maßgefertigte Tischlerküche, Klimaanlage

  • Loftartiger Wohn-/Essbereich mit offener Küche

  • Großzügiges Atelier/Büro

  • Das Dachgeschoss verfügt bereits über einen direkten Liftzugang sowie einen Zugang über das Stiegenhaus; ein weiterer separater Zugang über das bestehende Stiegenhaus ließe sich bei Bedarf unkompliziert realisieren eine architektonisch elegante Möglichkeit, die Einheit bei Bedarf in zwei separate Wohnungen zu teilen

 

Eine Rarität am Wiener Immobilienmarkt klassisch, edel, flexibel. Diese Villa überzeugt nicht nur durch ihr charmantes Erscheinungsbild, sondern auch durch ihren Zustand, ihre Nutzungsmöglichkeiten und ihre außergewöhnlich gute Lage. Ob als großzügiger Familiensitz, elegante Firmenadresse oder wertbeständige Anlage hier eröffnen sich Perspektiven, die ebenso vielseitig wie einzigartig sind.

Kaufpreis: €3.250.000

Bezug: nach Vereinbarung 

 

www.schantl-ith.at

 

Bei konkretem Interesse senden wir Ihnen sehr gerne weiterführende Dokumente zu.

Unser Service für Sie: Wenn Sie sich für diese Immobilie entschieden haben, begleiten wir Sie gerne vom Kaufanbot weg inkl. Klärung von Sonderwünschen und der Vertragsunterzeichnung über die Wohnungsübergabe bis hin zu diversen Ummeldungen wie Strom und Gas. Entsprechende Formulare oder auch Meldezettel stellen wir Ihnen sehr gerne zur Verfügung.

Gerne unterstützen wir Sie auch bei der Finanzierung Ihres Traumobjekts und finden mit unseren langjährigen Partnern die besten Konditionen für Sie.

Vereinbaren Sie noch heute einen Termin, wir beraten Sie gerne!

Der Vermittler ist als Doppelmakler tätig.


Infrastruktur / Entfernungen

Gesundheit
Arzt <500m
Apotheke <500m
Klinik <1.000m
Krankenhaus <2.000m

Kinder & Schulen
Schule <500m
Kindergarten <500m
Universität <1.000m
Höhere Schule <500m

Nahversorgung
Supermarkt <500m
Bäckerei <500m
Einkaufszentrum <1.500m

Sonstige
Geldautomat <500m
Bank <500m
Post <1.000m
Polizei <1.000m

Verkehr
Bus <500m
U-Bahn <1.500m
Straßenbahn <500m
Bahnhof <500m
Autobahnanschluss <3.000m

Angaben Entfernung Luftlinie / Quelle: OpenStreetMap

Klimaanlage: JA
Gartennutzung: JA
Kabel/SAT/TV: JA
Rollstuhlgerecht: JA
Provision: 3% des Kaufpreises zzgl. 20% USt.


Alle Details anzeigen

KONTAKT






 

Lasse dich kostenlos vom Anbieter dieser Immobilie zurückrufen.







 


 
Schantl ITH Immobilientreuhand GmbH
Hanna Herzenstein
Telefonnummer anzeigen Telefon Allgemein: +436643070009
Handy Bearbeiter: +436705070265
 
Bitte dem Makler die FindMyHome.at - ID bekanntgeben: 5603969

Bewertungen dieses Anbieters
Qualitätsmakler
Qualitätsmakler:
2015, 2016, 2018, 2019, 2020, 2021, 2023 , 2024, 2025,
Netiquette
Freundlichkeit
80 %

BEWERTUNGEN DIESES ANBIETERS

 
Qualit�tsmakler
Qualitätsmakler
2015, 2016, 2018, 2019, 2020, 2021, 22/23, 2024, 2025
Antwortzeit
ø 48h ANTWORT
Weiterempfehlung
WIRD GERNE

Freundlichkeit
BESONDERS
FREUNDLICH
Netiquette
FINDMYHOME
NETIQUETTE
Auch du kannst bewerten! 7 Tage nach deiner Anfrage erhältst du dafür von uns ein Bewertungsmail.
Alle Infos zu unseren Auszeichnungen und dem FINDMYHOME.AT Qualitätsprogramm findest du hier: Übersicht anzeigen

FINANZIERUNG
?>

Du willst wissen, wie viel dein Umzug kosten wird?

Mach gleich den kostenlosen Preisvergleich und schau, welche seriösen Anbieter in deiner Region günstig deinen Umzug organisieren


ZUM UMZUGS-VERGLEICH
-->

MYHOME BLOG
SuchAgentin auf FindMyHome.at
Unterschiedlichen Rechtsthemen, köstliche Rezepte, neueste Design-Highlights, sowie aktuelle Technik-Tools für Ihr Eigenheim.


FINDMYHOME.AT SUCHAGENTIN
SuchAgentin auf FindMyHome.at
Hallo, soll ich dir ähnliche Immobilien kostenfrei per E-Mail schicken?


ÄHNLICHE IMMOBILIEN
Aehnliche Immobilie - Vorschaubild 1

Ein - bzw. Mehrfamilienhaus - Objektnr. 5525502


420,00 m²
2900000 €
PLZ: 1180

Mehr anzeigen

Durch die Nutzung unserer Seite erklären Sie sich mit der Verwendung von Cookies zur Verbesserung Ihres Online-Erlebnisses einverstanden. Detaillierte Informationen zu diesem und weiteren Themen erhalten Sie in unserer Datenschutzerklärung.