MEIN ERGEBNIS ANPASSEN

++NEU++ Leistbare 2-Zimmer Altbau-Wohnung (renovierungsbedürftig) mit getrennter Küche - Objektnr. 5603955

1110
Ort
51,45 m²
Fläche
2.0
Zimmer

ECKDATEN
FindMyHome.at // Externe Immobilien-ID5603955 // 62810
ImmobilienartWohnung - Eigentum
AnschriftBraunhubergasse
1110 Wien
Stock3
Fläche51,45 m²
Zimmer2.0
Bad1
WC1
Kaufpreis:€ 159.000,00
Ratenzahlung:Finanzierungsmöglichkeiten für diese Immobilie anzeigen
Provision: 3% des Kaufpreises zzgl. 20% USt.







BESCHREIBUNG

++NEU++ Leistbare 2-Zimmer Altbau-Wohnung (renovierungsbedürftig) mit getrennter Küche

Umbaupotenzial: Altbauwohnung in guter Lage 11. Wiener Gemeindebezirk

2-Zimmer, ca. 51 m², sanierungsbedürftig

Zum Verkauf gelangt diese ca. 51 m² große 2-Zimmer-Altbauwohnung in einer ruhigen und dennoch zentralen Lage im 11. Wiener Gemeindebezirk.


Besichtigung

++ Vereinbaren Sie einen Besichtigungstermin! ++
Bitte senden Sie uns jedenfalls eine schriftliche Anfrage. Wir antworten verlässlich noch am selben Tag.


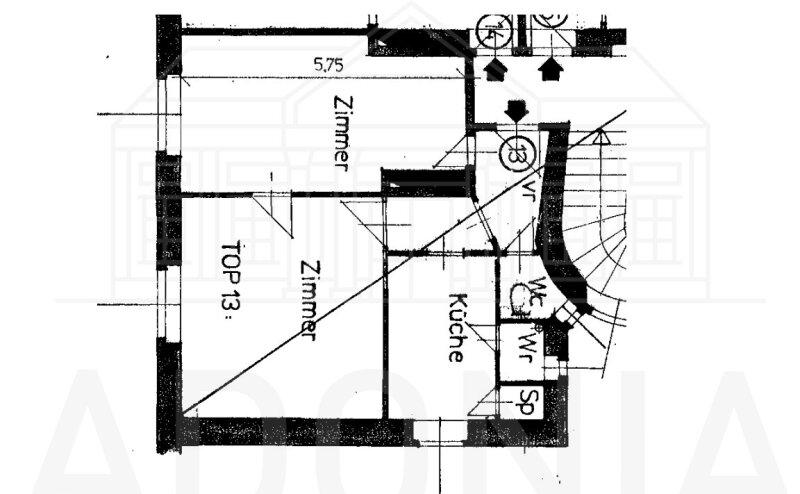
Räumlichkeiten

  • Vorraum
  • Getrenntes WC
  • Getrennte Küche
  • Wohnzimmer
  • Badezimmer
  • Zimmer

Hinweis: Bitte entnehmen Sie Details der aktuellen Fotos und dem Grundriss - siehe auch das Beispielfoto nach einer möglichen Sanierung


Zustand

Die Wohnung ist sanierungsbedürftig und wird wie sie liegt und steht verkauft.


Das Haus

Die Wohnung liegt im 3. Stock (ohne Aufzug) eines gepflegten Altbaus.


Lage

  • Die Wohnlage gilt als ruhig, geprägt von einer wenig befahrenen Einbahnstraße in einer 30km/hZone ideal für Wohnzwecke mit angenehmer Verkehrssituation.

Grünflächen und Freizeit

  • Direkt angrenzend liegt der Braunhuberpark, eine ca. 5000m² große Parkanlage mit altem Baumbestand, Spielmöglichkeiten für Kinder, Sitzgelegenheiten, Trinkbrunnen und sogar einer Hundezone.

  • In der näheren Umgebung finden sich zudem weitere Parks und ein öffentliches Schwimmbad, das fußläufig erreichbar ist und zur Freizeit- und Erholungsgestaltung einlädt.


Verkehrsanbindung

  • Die Liegenschaft überzeugt durch ihre ausgezeichnete Erreichbarkeit:

  • U-Bahn: In wenigen Minuten erreicht man die U3-Station Simmering, welche eine direkte Verbindung in die Wiener Innenstadt sowie zu zahlreichen Umsteigemöglichkeiten bietet.

  • Straßenbahn & Bus: Mehrere Linien, darunter die Straßenbahnlinie 71 sowie die Busse 11 und 15A, garantieren eine dichte Anbindung an das öffentliche Verkehrsnetz.

  • Damit ist die Braunhubergasse 25 sowohl für Stadtpendler als auch für überregionale Verbindungen ideal gelegen.

  • S-Bahn: Der Bahnhof Wien Geiselbergstraße ist ebenfalls gut erreichbar und ermöglicht den Anschluss an das Schnellbahnnetz.

  • Straßenverkehr: Über die Simmeringer Hauptstraße sowie den Gürtel besteht eine rasche Anbindung sowohl in die Innenstadt als auch an überregionale Verkehrswege.


Preis

Der Kaufpreis für diese Wohnung beträgt: EUR 159.000,-

Vertragserrichter: Mag. Georg Kampas (1,5 % + Barauslagen + 20 % USt)

 

Vertragserrichtung und Abwicklung: Rechtsanwalt Mag. Georg Kampas (Börsegasse 9, 1010 Wien) 1,5% plus Barauslagen plus 20% Ust

Sollten Sie Fragen haben oder einen Besichtigungstermin wünschen, zögern Sie bitte nicht mich zu kontaktieren. (am besten via E-Mail Anfrage)

Zur Vereinbarung eines Besichtigungstermins lassen Sie uns bitte jedenfalls eine E-Mailanfrage zukommen!

Der IMMY ist die renommierteste Auszeichnung für Wiener Makler- und Verwalterbetriebe im Bereich Wohnimmobilien. Wir sind stolz den goldenen IMMY für das Jahr 2019 gewonnen zu haben!

Vielen Dank vor allem an unsere Kunden! Unser Unternehmen wurde auch zum Besten Start Up und in den Jahren 2015, 2018, 2019 und 2020 als Qualitätsmakler ausgezeichnet!

Bitte achten Sie darauf, dass Sie diese Immobilie, nach Ihrer Anfrage bei Adonia Immobilien, nicht auch bei einem anderen Immobilienmaklerbüro anfragen! Vielen Dank!

Nicht alle unsere Immobilien finden Sie auf den gängigen Plattformen. Wir freuen uns auf Ihren Besuch auf unserer Homepage unter adonia.at 

Wir weisen ausdrücklich auf unser wirtschaftliches Naheverhältnis mit dem Abgeber/ der Abgeberin hin!  Unsere gesetzlichen Pflichten als Doppelmakler werden dadurch jedoch nicht beeinträchtigt. Irrtum und Änderungen vorbehalten. 

Alle hier veröffentlichen Informationen basieren auf den uns von dem Abgeber/ der Abgeberin zur Verfügung gestellten Informationen und wurden nicht selbst erhoben.

Unsere Allgemeinen Geschäftsbedingungen können Sie sowohl in dem Ihnen zugesandten Expose einsehen als auch auf unserer Homepage. Wir weisen ausdrücklich darauf hin, dass diese AGBs Vertragsinhalt werden.

Der Schutz von personenbezogenen Daten ist uns wichtig und auch gesetzlich gefordert. Die Verarbeitung Ihrer personenbezogenen Daten erfolgt nach den datenschutzrechtlichen Bestimmungen. Auf unserer Homepage (unter Datenschutzinformation) finden Sie eine Übersicht die Sie über die wichtigsten Aspekte der Verarbeitung personenbezogener Daten informieren soll.

Wir weisen darauf hin, dass zwischen dem Vermittler und dem zu vermittelnden Dritten ein familiäres oder wirtschaftliches Naheverhältnis besteht.

Der Vermittler ist als Doppelmakler tätig.


Infrastruktur / Entfernungen

Gesundheit
Arzt <500m
Apotheke <500m
Klinik <1.250m
Krankenhaus <3.250m

Kinder & Schulen
Schule <500m
Kindergarten <250m
Universität <1.750m
Höhere Schule <2.500m

Nahversorgung
Supermarkt <500m
Bäckerei <500m
Einkaufszentrum <500m

Sonstige
Geldautomat <750m
Bank <750m
Post <500m
Polizei <750m

Verkehr
Bus <250m
U-Bahn <750m
Straßenbahn <750m
Bahnhof <500m
Autobahnanschluss <1.250m

Angaben Entfernung Luftlinie / Quelle: OpenStreetMap

Provision: 3% des Kaufpreises zzgl. 20% USt.


Alle Details anzeigen

KONTAKT






 

Lasse dich kostenlos vom Anbieter dieser Immobilie zurückrufen.







 


 
Adonia Realitätenvermittlung GmbH
Benjamin Marinkovic
Telefonnummer anzeigen Telefon Allgemein: +436765446834
 
Bitte dem Makler die FindMyHome.at - ID bekanntgeben: 5603955

Bewertungen dieses Anbieters
Qualitätsmakler
Qualitätsmakler:
2015, 2018, 2019, 2020, 2023, 2024,
Netiquette
Freundlichkeit

BEWERTUNGEN DIESES ANBIETERS

 
Qualit�tsmakler
Qualitätsmakler
2015, 2018, 2019, 2020, 22/23, 2024
Freundlichkeit
BESONDERS
FREUNDLICH
Netiquette
FINDMYHOME
NETIQUETTE
Auch du kannst bewerten! 7 Tage nach deiner Anfrage erhältst du dafür von uns ein Bewertungsmail.
Alle Infos zu unseren Auszeichnungen und dem FINDMYHOME.AT Qualitätsprogramm findest du hier: Übersicht anzeigen

FINANZIERUNG
?>

Du willst wissen, wie viel dein Umzug kosten wird?

Mach gleich den kostenlosen Preisvergleich und schau, welche seriösen Anbieter in deiner Region günstig deinen Umzug organisieren


ZUM UMZUGS-VERGLEICH
-->

MYHOME BLOG
SuchAgentin auf FindMyHome.at
Unterschiedlichen Rechtsthemen, köstliche Rezepte, neueste Design-Highlights, sowie aktuelle Technik-Tools für Ihr Eigenheim.


FINDMYHOME.AT SUCHAGENTIN
SuchAgentin auf FindMyHome.at
Hallo, soll ich dir ähnliche Immobilien kostenfrei per E-Mail schicken?


ÄHNLICHE IMMOBILIEN
Aehnliche Immobilie - Vorschaubild 1

Beste Lage, helle Wohnung - Objektnr. 5478837


52,75 m² - 2.0 Zimmer
190000 €
PLZ: 1110

Mehr anzeigen

Aehnliche Immobilie - Vorschaubild 2

2 linke Hände Dann bitte schnell weiterscrollen! - Objektnr. 5606923

48,76 m² - 2.0 Zimmer
179000 €
PLZ: 1110

Mehr anzeigen

Aehnliche Immobilie - Vorschaubild 3

++NEU++ Ruhige 2-Zimmer Altbau-Wohnung (sanierungsbedürftig)... - Objektnr. 5603961

58,41 m² - 3.0 Zimmer
178900 €
PLZ: 1110

Mehr anzeigen

Durch die Nutzung unserer Seite erklären Sie sich mit der Verwendung von Cookies zur Verbesserung Ihres Online-Erlebnisses einverstanden. Detaillierte Informationen zu diesem und weiteren Themen erhalten Sie in unserer Datenschutzerklärung.