MEIN ERGEBNIS ANPASSEN

Möglichkeit zur Zusammenlegung im Altbau mit Eigengarten! Zwischen Rochusmarkt und Kardinal Nagl- Platz! - Objektnr. 5603950


ökologisch beheizt
  • Hausansicht Hof
  • Wohnküche Top 6
  • Wohnküche Top 6
  • Wohnküche Top 6
  • Badezimmer Top 6
  • Garten Top 6
  • Wohnzimmer Top 7
  • Wohnzimmer Top 7
  • Schlafzimmer Top 7
  • Schlafzimmer Top 7
  • Beispiel Foto Garten
  • Garten Top 7
  • Badezimmer Top 7
  • Küche Top 7
  • Garten Top 7
  • Garten Top 7
  • Stiegenhaus
  • Hausansicht
  • Hauseingang
  • Stiegenhaus
  • Stiegenhaus
  • Hausansicht Hof
  • Hof
  • Stiegenhaus
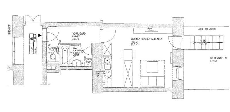
  • Plan Top 7
1030
Ort
78,53 m²
Fläche
3.0
Zimmer

ECKDATEN
FindMyHome.at // Externe Immobilien-ID5603950 // 27443
ImmobilienartWohnung - Eigentum
AnschriftHainburger Straße 47/6+7
1030 Wien
Baujahr1911
Befeuerung
Fernwärme
Geschosse6
Fläche78,53 m²
Zimmer3.0
Bad2
WC2
Kaufpreis:€ 590.000,00
Ratenzahlung:Finanzierungsmöglichkeiten für diese Immobilie anzeigen
Provision: 3% des Kaufpreises zzgl. 20% USt.







BESCHREIBUNG

Möglichkeit zur Zusammenlegung im Altbau mit Eigengarten! Zwischen Rochusmarkt und Kardinal Nagl- Platz!

Die vor kurzem zu neuem Glanz erweckte "Hainburg" stellt eine architektonische Besonderheit in Bezug auf die schmiedeeiserne und frei schwebende Treppenkonstruktion dar. Das Dachgeschoß wurde bereits ausgebaut und ein Personenlift errichtet. Erleben Sie diese fantastische Konzeption hautnah!

Ein Meisterwerk des Altbaus, der momentan mehrere Wohnungen zum Kauf offeriert. Von Gartenwohnungen über das erste bis zum zweiten Obergeschoß, mit 1 bis 5 Zimmern. Auch Zusammenlegungen sind möglich. Die Wohneinheiten werden mit Fernwärme beheizt und sind mit Holzkastenfenstern und Parkettböden ausgestattet. Insgesamt befinden sich die Objekte in einem guten, sofort bezugsfertigen Gesamtzustand!

Nachstehend finden Sie eine Übersicht aller verfügbaren Einheiten:

TOP 5

Diese Zwei-Zimmer-Einheit befindet sich im Hochparterre, verfügt über eine Wohnfläche im Ausmaß von ca. 43 qm sowie einen gemütlichen Garten.

TOP 6 

Die Ein-Zimmer-Wohnung im Hochparterre verfügt über eine Wohnfläche von ca. 33 qm sowie einen hübschen Garten.

TOP 7 

Ebenfalls im Hochparterre befindet sich diese Zwei-Zimmer-Einheit mit einer Wohnfläche im Ausmaß von ca. 46 qm sowie einem privaten Garten.

Zusammenlegungsmöglichkeiten

Die Gartenwohnungen Top 5, Top 6 und Top 7 können zusammengelegt werden.

TOP 10

Der 3-Zimmer-Altbau befindet sich im ersten Liftstock und verfügt über ca. 71 qm Wohnfläche. Die Lage im Hoftrakt garantiert optimale Ruhe und Blick in den grünen Baumbestand.

TOP 11 

Die im ersten Liftstock befindliche Zwei-Zimmer-Einheit verfügt über eine Wohnfläche im Ausmaß von ca. 55 qm. Die Wohnung in ruhiger Innenhoflage bietet einen sehr guten Grundriss und Grünblick.

TOP 13

Der bezugsfertige Zwei-Zimmer-Altbau befindet sich im zweiten Liftstock und bietet eine Wohnfläche im Ausmaß von ca. 70 qm. Hier erwartet Sie eine sehr gut aufgeteilte und helle Wohnung.

Wohnungsbeschreibung Top 6+7

Zum Verkauf stehen zwei nebeneinanderliegende Gartenwohnungen mit einem durchdachten Grundriss und vielseitigen Nutzungsmöglichkeiten. Ob als großzügiges Eigenheim durch Zusammenlegung oder als separate Einheiten für Mehrgenerationenwohnen.

Beide Wohnungen befinden sich im Erdgeschoss, jede Einheit verfügt über einen direkten Ausgang ins Freie sowie über einen eigenen Gartenbereich, der zum Verweilen und Gestalten einlädt (Welche man auch Verbinden könnte).

Die Grundrisse beider Wohnungen sind optimal aufgeteilt und bieten genügend Raum zur individuellen Entfaltung. Durch ihre unmittelbare Lage zueinander eignet sich die Immobilie ideal zur baulichen Verbindung sei es für ein großzügiges Wohnkonzept oder das Leben unter einem Dach mit mehreren Generationen.

Die Einheiten gliedern sich wie folgt auf:

TOP 6 im Hochparterre verfügt über ein Zimmer und eine Wohnfläche im Ausmaß von ca. 33 qm. Die charmante Gartenwohnung ist mit folgenden Räumlichkeiten ausgestattet:

  •  der Vorraum 
  •  die in den Garten blickende Wohnküche/Schlafraum mit voll ausgestatteter Einbauküche
  • das Badezimmer mit Wanne und Waschmaschinenanschluss 
  • Das separate WC
  • Der begrünte Garten welcher zum Stunden langen verweilen einlädt 

TOP 7 im Hochparterre verfügt über zwei Zimmer und eine Wohnfläche im Ausmaß von ca. 46 qm. Die ins Grün blickende Gartenwohnung ist mit folgenden Räumlichkeiten ausgestattet:

  • der Vorraum (ca. 2,7 qm), über welchen alle Zimmer zentral zu begehen sind
  • die in den Garten blickende Wohnküche (ca. 27,9 qm) mit voll ausgestatteter Einbauküche und Blick in den grünen Innenhof
  • das ruhige, ebenfalls in einen Innenhof orientierte Schlafzimmer (ca. 10 qm)
  • das Badezimmer mit Wanne, WC und Waschmaschinenanschluss (ca. 3,9 qm)
  • das separate WC
  • Der begrünte Garten welcher zum Stunden langen verweilen einlädt (ca. 29 qm)

Die Wohneinheit wird mit Fernwärme beheizt und ist mit Holzkastenfenstern und Parkettböden ausgestattet. Insgesamt befindet sich das Objekt einem guten, sofort bezugsfertigem Gesamtzustand!

Dieses Objekt wird Ihnen unverbindlich und freibleibend zum Kauf angeboten. Als Vermittlungshonorar gelten die allgemeinen Geschäftsbedingungen und die Verordnung für Immobilienmakler des BM für Handel, Gewerbe und Industrie, BGBL. 297/1996. Für den Fall, dass es diesbezüglich zu einem entsprechenden Rechtsgeschäft kommt, verrechnen wir Ihnen eine Vermittlungsprovision von 3 Prozent der Kaufsumme zuzüglich der gesetzlichen Mehrwertsteuer. Wir möchten noch darauf hinweisen, dass wir in einem wirtschaftlichen Naheverhältnis zur Verkäuferin stehen.

 

Wir weisen darauf hin, dass zwischen dem Vermittler und dem zu vermittelnden Dritten ein familiäres oder wirtschaftliches Naheverhältnis besteht.

Der Vermittler ist als Doppelmakler tätig.


Infrastruktur / Entfernungen

Gesundheit
Arzt <200m
Apotheke <200m
Klinik <75m
Krankenhaus <275m

Kinder & Schulen
Schule <175m
Kindergarten <150m
Universität <950m
Höhere Schule <425m

Nahversorgung
Supermarkt <75m
Bäckerei <75m
Einkaufszentrum <375m

Sonstige
Geldautomat <100m
Bank <100m
Post <100m
Polizei <350m

Verkehr
Bus <75m
U-Bahn <25m
Straßenbahn <600m
Bahnhof <50m
Autobahnanschluss <975m

Angaben Entfernung Luftlinie / Quelle: OpenStreetMap

Provision: 3% des Kaufpreises zzgl. 20% USt.


Alle Details anzeigen

KONTAKT






 

Lasse dich kostenlos vom Anbieter dieser Immobilie zurückrufen.







 


 
WINEGG Makler GmbH
Patrick Winkler
Telefonnummer anzeigen Telefon Allgemein: +4313157280
Handy Bearbeiter: +436608461085
 
Bitte dem Makler die FindMyHome.at - ID bekanntgeben: 5603950

Bewertungen dieses Anbieters
Qualitätsmakler
Qualitätsmakler:
2015, 2017, 2025,
Netiquette
Freundlichkeit
83 %

BEWERTUNGEN DIESES ANBIETERS

 
Qualit�tsmakler
Qualitätsmakler
2015, 2017, 2025
Weiterempfehlung
WIRD GERNE

Freundlichkeit
BESONDERS
FREUNDLICH
Netiquette
FINDMYHOME
NETIQUETTE
Auch du kannst bewerten! 7 Tage nach deiner Anfrage erhältst du dafür von uns ein Bewertungsmail.
Alle Infos zu unseren Auszeichnungen und dem FINDMYHOME.AT Qualitätsprogramm findest du hier: Übersicht anzeigen

FINANZIERUNG
?>

Du willst wissen, wie viel dein Umzug kosten wird?

Mach gleich den kostenlosen Preisvergleich und schau, welche seriösen Anbieter in deiner Region günstig deinen Umzug organisieren


ZUM UMZUGS-VERGLEICH
-->

MYHOME BLOG
SuchAgentin auf FindMyHome.at
Unterschiedlichen Rechtsthemen, köstliche Rezepte, neueste Design-Highlights, sowie aktuelle Technik-Tools für Ihr Eigenheim.


FINDMYHOME.AT SUCHAGENTIN
SuchAgentin auf FindMyHome.at
Hallo, soll ich dir ähnliche Immobilien kostenfrei per E-Mail schicken?


ÄHNLICHE IMMOBILIEN
Aehnliche Immobilie - Vorschaubild 1

| NATÜRLICH DRAUSSEN | BAUFELD 14A | EIGENNUTZER | FERTIGSTE... - Objektnr. 5549183

82,55 m² - 4.0 Zimmer
621000 €
PLZ: 1030

Mehr anzeigen

Aehnliche Immobilie - Vorschaubild 2

+ BALKON + VILLAGE IM DRITTEN + BAUFELD 13 + ERSTBEZUG + EIG... - Objektnr. 5604621

72,81 m² - 3.0 Zimmer
571000 €
PLZ: 1030

Mehr anzeigen

Aehnliche Immobilie - Vorschaubild 3

| NATÜRLICH DRAUSSEN | BAUFELD 14A | EIGENNUTZER | FERTIGSTE... - Objektnr. 5547265

70,67 m² - 3.0 Zimmer
589000 €
PLZ: 1030

Mehr anzeigen

Durch die Nutzung unserer Seite erklären Sie sich mit der Verwendung von Cookies zur Verbesserung Ihres Online-Erlebnisses einverstanden. Detaillierte Informationen zu diesem und weiteren Themen erhalten Sie in unserer Datenschutzerklärung.