MEIN ERGEBNIS ANPASSEN

Barawitzkagasse: Wo Barwert und Wohnwert zusammentreffen. - Objektnr. 5602647

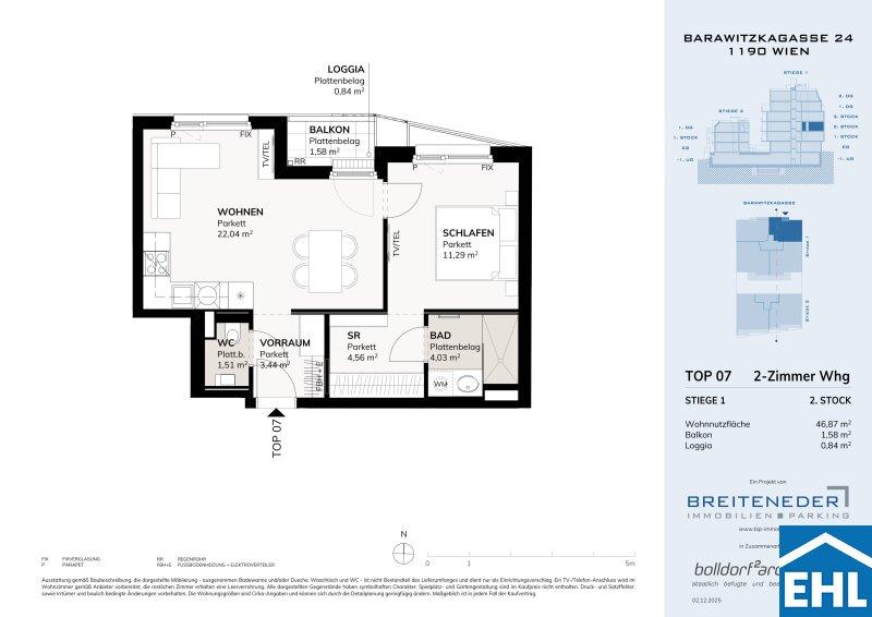
1190
Ort
46,87 m²
Fläche
2.0
Zimmer
WEITERE MEDIEN

ECKDATEN
FindMyHome.at // Externe Immobilien-ID5602647 // 91544
ImmobilienartAnlage-Vorsorgewohnung - Eigentum
AnschriftBarawitzkagasse
1190 Wien
Baujahr2027
Stock2
Geschosse7
Fläche46,87 m²
Zimmer2.0
Bad1
WC1
Kaufpreis:€ 325.322,00
Ratenzahlung:Finanzierungsmöglichkeiten für diese Immobilie anzeigen
Provision: Provision bezahlt der Abgeber.







BESCHREIBUNG

Barawitzkagasse: Wo Barwert und Wohnwert zusammentreffen.

Mit der Barawitzkagasse 24 entsteht in Döbling ein exklusives Neubauprojekt, das wie gemacht ist für Käufer von Vorsorgewohnungen besonders auch für Anleger, die ihr Portfolio gezielt erweitern möchten. In Zeiten volatiler Märkte bleibt die Wohnimmobilie eine der stabilsten Wertanlagen. Und gerade in Wien zeigt sich das deutlicher denn je: Die Nachfrage nach Mietwohnungen ist hoch, das Angebot knapp. Dieses Ungleichgewicht sorgt für nachhaltig solide Vermietbarkeit vor allem in Toplagen wie Döbling.

Ein Investment, das sich rechnet heute und langfristig
Die Kombination aus erstklassiger Lage, moderner Neubauqualität und einem Wohnungsmix, der breite Zielgruppen anspricht, macht Barawitzkagasse 24 zur idealen Vorsorgeimmobilie. Ob zur Sicherung Ihres Vermögens, als Baustein für laufende Mieteinnahmen oder als Teil eines größeren Anlagekonzepts: Hier investieren Sie in Wohnraum, der am Wiener Markt dauerhaft gesucht ist.

 

Das Projekt auf einen Blick

In zwei modernen Wohnhäusern entstehen insgesamt 26 hochwertig ausgestattete Wohnungen jede mit privater Freifläche sowie 13 PKW-Stellplätze. Die durchdachten Grundrisse und Größen sind genau auf die Bedürfnisse des Wiener Markt abgestimmt: von kompakten Einheiten für Singles und Paare bis zu großzügigen Wohnungen für Familien oder anspruchsvolle Mieter.

26 Wohnungen mit Freifläche (Balkon, Terrasse oder Garten)
Wohnflächen ca. 40105 m²
2- bis 4-Zimmer-Wohnungen
Zwei elegante, moderne Baukörper
13 KFZ-Stellplätze in der hauseigenen Garage
Einlagerungsräume für jede Einheit
Fahrradabstellraum

 

Die Ausstattung

Ausstattung, die Mieter überzeugt und den Wert sichert, Vorsorgewohnungen leben von Qualität, die sich auszahlt: in geringerem Leerstandsrisiko, stabileren Mieten und langfristiger Werthaltigkeit. Barawitzkagasse 24 bietet eine Ausstattung, die sowohl zeitgemäß als auch langlebig ist ein klarer Pluspunkt am Mietmarkt.

Fußbodenheizung über Luftwärmepumpe + PV-Anlage am Dach
Fußbodenkühlung für angenehmes Raumklima
Eichen-Echtholzparkett in allen Wohnräumen
Hochwertige Markenfliesen (30 × 60 cm) in den Bädern
Dreifach-isolierverglaste, wärmegedämmte Fenster
Elektrische Außenjalousien aus Aluminium
Klimaanlagen-Leerverrohrung im Dachgeschoss
Moderne Video-Gegensprechanlage

 

Die Lage

Nahversorgung, Gastronomie, Freizeit und Natur liegen vor der Tür. Gleichzeitig profitieren Bewohner von einer hervorragenden Anbindung an die Innenstadt ein entscheidender Faktor für die nachhaltige Vermietbarkeit.

Öffentliche Verkehrsanbindung
U-Bahn: U4 Heiligenstadt
Bus: 10A, 38A, 39A
Straßenbahn: D, 37
S-Bahn: S40, S45
Regionalzüge: R40, REX4, REX41

Auch mit dem Auto ist die Lage ideal: A22 und A23 sind rasch erreichbar, der Flughafen Wien in ca. 25 Minuten.

 

Fazit: Vorsorge in Bestlage für Einzelkäufer und Portfolio-Investoren


Barawitzkagasse 24 bietet alles, was eine erfolgreiche Vorsorgewohnung ausmacht: Toplage, gefragte Grundrisse, hochwertige Ausstattung und ein Marktumfeld, das von hoher Mietnachfrage und Knappheit geprägt ist. Eine Investition, die laufende Erträge ermöglicht und gleichzeitig Vermögen langfristig absichert besonders attraktiv für Anleger, die mehr als nur eine Wohnung erwerben und auf nachhaltige Vermietungssicherheit setzen.

 

Kaufpreise der Vorsorgewohnungen
von EUR 301.563,- bis EUR 881.842,- netto zzgl. 20% USt.

Zu erwartender Mietertrag
von ca. EUR 17,50 bis EUR 20,75 netto/m²


Ein detaillierten Überblick finden Sie auf unserer Projekthomepage!

Provisionsfrei für den Käufer!
Fertigstellung voraussichtlich Q3 2027

Bei diesem Angebot handelt es sich um eine Vorsorgewohnung, die zu Vermietungszwecken erworben wird. Der angegebene Kaufpreis versteht sich daher zzgl. 20% USt. Diese Daten sind vorbehaltlich möglicher Änderungen.

 

 

 

Wir weisen darauf hin, dass zwischen dem Vermittler und dem zu vermittelnden Dritten ein familiäres oder wirtschaftliches Naheverhältnis besteht.

Der Vermittler ist als Doppelmakler tätig.


Infrastruktur / Entfernungen

Gesundheit
Arzt <500m
Apotheke <500m
Klinik <500m
Krankenhaus <1.000m

Kinder & Schulen
Schule <500m
Kindergarten <500m
Universität <750m
Höhere Schule <750m

Nahversorgung
Supermarkt <250m
Bäckerei <500m
Einkaufszentrum <1.250m

Sonstige
Geldautomat <250m
Bank <250m
Post <750m
Polizei <500m

Verkehr
Bus <250m
U-Bahn <500m
Straßenbahn <250m
Bahnhof <750m
Autobahnanschluss <750m

Angaben Entfernung Luftlinie / Quelle: OpenStreetMap

Klimaanlage: JA
Kabel/SAT/TV: JA
Provision: Provision bezahlt der Abgeber.


Alle Details anzeigen

KONTAKT






 

Lasse dich kostenlos vom Anbieter dieser Immobilie zurückrufen.







 


 
EHL Wohnen GmbH
Andrea PÖCHHACKER; MSc
Telefonnummer anzeigen Telefon Allgemein: +4315127690411
Handy Bearbeiter: +436648373481
 
Bitte dem Makler die FindMyHome.at - ID bekanntgeben: 5602647

Bewertungen dieses Anbieters
Qualitätsmakler
Qualitätsmakler:
Netiquette
Freundlichkeit
82 %

BEWERTUNGEN DIESES ANBIETERS

 
Qualitätsmakler
UNSERE HALL OF FAME DER BESTEN ANBIETER
Qualit�tsmakler
Qualitätsmakler
2012, 2013, 2014, 2015, 2016, 2017, 2018, 2019, 2020, 2021, 22/23, 2024, 2025
Weiterempfehlung
WIRD GERNE

Freundlichkeit
BESONDERS
FREUNDLICH
Netiquette
FINDMYHOME
NETIQUETTE
Auch du kannst bewerten! 7 Tage nach deiner Anfrage erhältst du dafür von uns ein Bewertungsmail.
Alle Infos zu unseren Auszeichnungen und dem FINDMYHOME.AT Qualitätsprogramm findest du hier: Übersicht anzeigen

FINANZIERUNG
?>

Du willst wissen, wie viel dein Umzug kosten wird?

Mach gleich den kostenlosen Preisvergleich und schau, welche seriösen Anbieter in deiner Region günstig deinen Umzug organisieren


ZUM UMZUGS-VERGLEICH
-->

MYHOME BLOG
SuchAgentin auf FindMyHome.at
Unterschiedlichen Rechtsthemen, köstliche Rezepte, neueste Design-Highlights, sowie aktuelle Technik-Tools für Ihr Eigenheim.


FINDMYHOME.AT SUCHAGENTIN
SuchAgentin auf FindMyHome.at
Hallo, soll ich dir ähnliche Immobilien kostenfrei per E-Mail schicken?


ÄHNLICHE IMMOBILIEN
Aehnliche Immobilie - Vorschaubild 1

Die Barawitzkagasse: Wo Wertbeständigkeit zuhause ist.... - Objektnr. 5602651

46,82 m² - 2.0 Zimmer
310701 €
PLZ: 1190

Mehr anzeigen

Aehnliche Immobilie - Vorschaubild 2

Eine Wiener Adresse mit Charakter - ein Investment mit Zukun... - Objektnr. 5602652

39,89 m² - 2.0 Zimmer
301563 €
PLZ: 1190

Mehr anzeigen

Aehnliche Immobilie - Vorschaubild 3

Die Barawitzkagasse: Wo Wertbeständigkeit zuhause ist.... - Objektnr. 5602648

48,78 m² - 2.0 Zimmer
319839 €
PLZ: 1190

Mehr anzeigen

Durch die Nutzung unserer Seite erklären Sie sich mit der Verwendung von Cookies zur Verbesserung Ihres Online-Erlebnisses einverstanden. Detaillierte Informationen zu diesem und weiteren Themen erhalten Sie in unserer Datenschutzerklärung.