MEIN ERGEBNIS ANPASSEN

3-Zimmer-Altbaujuwel mit Balkon - generalsaniert! - Zwischen Am Hof und Hoher Markt - Wohnen im Herzen der Wiener Innenstadt - Objektnr. 5601302

virtuell besichtigen
1010
Ort
€ 2.490,00
Gesamtkosten
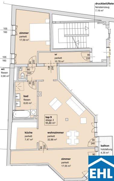
95,80 m²
Fläche
3.0
Zimmer
WEITERE MEDIEN

Virtuelle Rundgänge


ECKDATEN
FindMyHome.at // Externe Immobilien-ID5601302 // 26036
ImmobilienartWohnung - Miete
AnschriftJordangasse
1010 Wien
Stock5
Mietdauer5
Fläche95,80 m²
Zimmer3.0
Bad1
WC1
Kaution:€ 7.470,00
Brutto-Miete:€ 2.490,00
Betriebskosten (inkl. MwSt):€ 284,53
Mehrwertsteuer:€ 226,37
Monatliche Gesamtkosten:€ 2.490,00
Provision: Gemäß Erstauftraggeberprinzip bezahlt der Abgeber die Provision.




BESCHREIBUNG

3-Zimmer-Altbaujuwel mit Balkon - generalsaniert! - Zwischen Am Hof und Hoher Markt - Wohnen im Herzen der Wiener Innenstadt

Perfekte Kombination aus Altbauflair und modernstem Wohnen im Herzen von Wien

Erleben Sie die perfekte Symbiose aus klassischem Altbauflair und modernstem Wohnkomfort!
Inmitten der Wiener Altstadt, in der charmanten Jordangasse 7A, befindet sich dieses aufwendig generalsanierte Wohnhaus mit stilvoller Fassade und hochwertiger Ausstattung.

Die Wohnung überzeugt durch ihren durchdachten Grundriss, helle Räume und edle Materialien ideal für all jene, die das urbane Leben in einem historischen Ambiente schätzen.


Lage & Umgebung

Die zentrale Innenstadtlage bietet alles, was das Herz begehrt:
Nur wenige Schritte entfernt finden Sie die Kärntner Straße mit ihren exklusiven Boutiquen, zahlreichen Cafés und Restaurants sowie kulturelle Highlights wie die Wiener Staatsoper oder das Mozarthaus.
Auch der Naschmarkt, das Freihausviertel und der Stadtpark sind in kürzester Zeit erreichbar.


Raumaufteilung

  • Großzügige Wohnküche mit voll ausgestatteter Design-Einbauküche und direktem Zugang auf den Balkon
  • Zwei ruhige Schlafzimmer
  • Luxuriöses Badezimmer mit Doppelwaschbecken, Badewanne, Dusche und Waschmaschinenanschluss
  • Separates WC
  • Einladender Vorraum

Ausstattung

  • Hochwertige, voll ausgestattete Küche
  • Edle Parkettböden in allen Wohnräumen
  • Moderne Fliesen in den Nassräumen
  • Fernwärmeheizung
  • Kellerabteil pro Wohnung
  • Lift sowie Kinderwagen- und Fahrradabstellraum im Haus
  • (Hinweis: Das Objekt ist nicht barrierefrei.)

Das Objekt ist nicht barrierefrei.

Öffentliche Verkehrsanbindung

  • U-Bahnlinie U3 Herrengasse und "Stephansplatz"
  • U-Bahnlinie U1 Schwedenplatz
  • Buslinien 1A, 3A
  • Straßenbahnlinie 1, 2, 37, 38, 40, 71, D

Befristung: 5 Jahre, 1 Jahr Kündigungsverzicht, 3 Monate Kündigungsfrist

Nebenkosten: 3BMM, Vertragserrichtungsgebühren 

Wir weisen darauf hin, dass zwischen dem Vermittler und dem zu vermittelnden Dritten ein familiäres oder wirtschaftliches Naheverhältnis besteht.

Der Immobilienmakler erklärt, dass er entgegen dem in der Immobilienwirtschaft üblichen Geschäftsgebrauch des Doppelmaklers einseitig nur für den Vermieter tätig ist.


Infrastruktur / Entfernungen

Gesundheit
Arzt <250m
Apotheke <250m
Klinik <500m
Krankenhaus <1.000m

Kinder & Schulen
Schule <250m
Kindergarten <250m
Universität <750m
Höhere Schule <500m

Nahversorgung
Supermarkt <250m
Bäckerei <250m
Einkaufszentrum <1.000m

Sonstige
Geldautomat <250m
Bank <250m
Post <250m
Polizei <250m

Verkehr
Bus <250m
U-Bahn <500m
Straßenbahn <500m
Bahnhof <500m
Autobahnanschluss <3.250m

Angaben Entfernung Luftlinie / Quelle: OpenStreetMap

Provision: Gemäß Erstauftraggeberprinzip bezahlt der Abgeber die Provision.


Alle Details anzeigen

KONTAKT






 

Lasse dich kostenlos vom Anbieter dieser Immobilie zurückrufen.







 


 
EHL Wohnen GmbH
Helena Rohrauer
Telefonnummer anzeigen Telefon Allgemein: +4315127690408
Handy Bearbeiter: +4366488982237
 
Bitte dem Makler die FindMyHome.at - ID bekanntgeben: 5601302

Bewertungen dieses Anbieters
Qualitätsmakler
Qualitätsmakler:
Netiquette
Freundlichkeit
82 %

BEWERTUNGEN DIESES ANBIETERS

 
Qualitätsmakler
UNSERE HALL OF FAME DER BESTEN ANBIETER
Qualit�tsmakler
Qualitätsmakler
2012, 2013, 2014, 2015, 2016, 2017, 2018, 2019, 2020, 2021, 22/23, 2024, 2025
Weiterempfehlung
WIRD GERNE

Freundlichkeit
BESONDERS
FREUNDLICH
Netiquette
FINDMYHOME
NETIQUETTE
Auch du kannst bewerten! 7 Tage nach deiner Anfrage erhältst du dafür von uns ein Bewertungsmail.
Alle Infos zu unseren Auszeichnungen und dem FINDMYHOME.AT Qualitätsprogramm findest du hier: Übersicht anzeigen


Du willst wissen, wie viel dein Umzug kosten wird?

Mach gleich den kostenlosen Preisvergleich und schau, welche seriösen Anbieter in deiner Region günstig deinen Umzug organisieren


ZUM UMZUGS-VERGLEICH
-->

MYHOME BLOG
SuchAgentin auf FindMyHome.at
Unterschiedlichen Rechtsthemen, köstliche Rezepte, neueste Design-Highlights, sowie aktuelle Technik-Tools für Ihr Eigenheim.


FINDMYHOME.AT SUCHAGENTIN
SuchAgentin auf FindMyHome.at
Hallo, soll ich dir ähnliche Immobilien kostenfrei per E-Mail schicken?


ÄHNLICHE IMMOBILIEN
Aehnliche Immobilie - Vorschaubild 1

/ UNBEFRISTETE MIETDAUER / MITTEN IN DER STADT/ 3 ZIMMER... - Objektnr. 5582123

89,21 m² - 3.0 Zimmer
2433.08 €
PLZ: 1010

Mehr anzeigen

Aehnliche Immobilie - Vorschaubild 2

Helle Neubauwohnung bei der Oper - Objektnr. 5597289


110,00 m² - 4.0 Zimmer
2200 €
PLZ: 1010

Mehr anzeigen

Aehnliche Immobilie - Vorschaubild 3

| 1. STOCK | SCHWEDENPLATZ | 3 ZIMMER | BAD MIT BADEWANNE | ... - Objektnr. 5578607

86,60 m² - 3.0 Zimmer
2200 €
PLZ: 1010

Mehr anzeigen

Durch die Nutzung unserer Seite erklären Sie sich mit der Verwendung von Cookies zur Verbesserung Ihres Online-Erlebnisses einverstanden. Detaillierte Informationen zu diesem und weiteren Themen erhalten Sie in unserer Datenschutzerklärung.