MEIN ERGEBNIS ANPASSEN

Wohnen über den Dächern von Graz mit gigantischer Außenfläche in einem schönen Grazer Stadtteil - provisionsfrei! - Objektnr. 5599771

8010
Ort
80,16 m²
Fläche
3.0
Zimmer
WEITERE MEDIEN

ECKDATEN
FindMyHome.at // Externe Immobilien-ID5599771 // 293418
ImmobilienartEigentum
Anschrift8010 Graz,07.Bez.:Liebenau
Baujahr2024
Stock2
Fläche80,16 m²
Terrassen1 (58,00 m²)
Zimmer3.0
Bad1
WC1
Kaufpreis:€ 584.383,00
Ratenzahlung:Finanzierungsmöglichkeiten für diese Immobilie anzeigen
Provision:







BESCHREIBUNG

Wohnen über den Dächern von Graz mit gigantischer Außenfläche in einem schönen Grazer Stadtteil - provisionsfrei!

Wohnen über den Dächern von Graz mit gigantischer Außenfläche in einem schönen Grazer Stadtteil - provisionsfrei!

Das im Grünen eingebettete Wohngebäude besteht aus insgesamt 14 Wohneinheiten, wovon sich 13 Wohnungen und ein 100m² PH mit 58m² Dachterrasse, im Gebäude befinden. Die Planung ist hervorragend und exklusiv. Herausragend für dieses Neubauprojekt, welches für Sie ab 2026 beziehbar, ist die gute Infrastruktur, die gute Verkehrsanbindung und die Nähe zum Grazer Zentrum. Das Gebäude sticht vor allem durch enorm große Außenflächen hervor, welche sich immer mehr und mehr als ein "MUSS" herausstellen. Ein wahrer WOHNGENUSS wartet hier auf Sie!

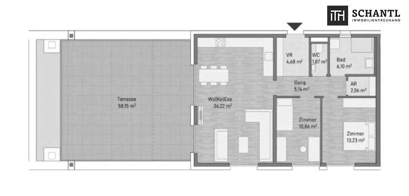
Nun zu den Fakten der TOP C11:

  • Wohnfläche von 80,16m²
  • Terrasse von 58,15m²
  • Wohnen/Kochen/Essen auf 36,22m²
  • Schlafzimmer mit 13,23m²
  • ein weiteres Schlafzimmer 10,86m²
  • Abstellraum 2,06m²
  • Kellerabteil vorhanden
  • Badezimmer 6,10m² mit  Dusche und Waschmaschinenanschluss
  • WC mit 1,87m²
  • Vorraum 4,68m²
  • Gang mit 5,14m²
  • Fernwärme
  • Parkmöglichkeiten sind  in der TG, oder auch Zone
  • KP der Wohnung Top C11 BRUTTO € 584.383,00dies ist der Kaufpreis für den Eigennutzer
  • KP der Wohnung Top C11, NETTO € 519.436,00 dies ist der Kaufpreis, wenn Sie die Wohnung gewerblich vermieten möchten
  • KP für den TG-Parkplatz, BRUTTO € 27.001,00
  • KP für den TG-Parkplatz, NETTO € 24.000,00

Highlights der TOP C11:

  • PROVISIONSFREI
  • die Nähe zum Grazer Zentrum
  • gute Baumeisterqualität, inklusive PV-Anlage
  • top Lage der Immobilie
  • gute Wertanlage
  • ab 2026 bezugsfertig, deshalb wurden auch SYMBOLBILDER verwendet!
  • die Eigengärten sind der Straße abgewandt
  • die Lage des Wohnbauprojektes befindet sich im Herzen von Graz-Jakomini
  • unseren Kunden bieten wir eine hochprofessionelle, kostenlose Finanzierungsberatung an
  • Mitgestaltungsmöglichkeit, Sie können Ihre Wohnung gemeinsam mit dem Bauträger individuell planen und bei der Innenraumgestaltung mitwirken Ihre maßgeschneiderte Traumwohnung entsteht!
  • Kompakte Grundrisse mit perfekter Raumaufteilung, ideal für Singles, Pärchen oder Anleger, die Wert auf hochwertige Architektur legen.
  • Massivbauweise in Baumeisterqualität garantiert Langlebigkeit, Energieeffizienz und ein angenehmes Wohnklima.
  • moderne Ausstattung mit Fußbodenheizung, hochwertigen Böden und eleganten Sanitäreinrichtungen.
  • ruhige Wohnlage in einer wenig befahrenen Straße, dennoch mit perfekter Anbindung an öffentliche Verkehrsmittel und Infrastruktur
  • attraktive Anlagegelegenheit durch zukunftssichere Bauweise, beliebte Lage und hervorragendes Preis-Leistungs-Verhältnis

 

Vereinbaren Sie noch heute eine Besichtigung der Lage und eine persönliche Beratung mit uns!
Sie wollen Ihre Immobilie verkaufen Dann sind Sie bei uns goldrichtig!
Wir sind gerne für Sie da und unterstützen Sie unverbindlich bei der Bewertung Ihrer Immobilie. Mit viel Sorgfalt stellen wir Ihnen alle wichtigen Informationen und Unterlagen zusammen, damit Sie die besten Entscheidungen treffen können.
In Kooperation mit unserer SFI Vermögenstreuhand begleiten wir Sie bei der Verwirklichung Ihres Traumobjekts und unterstützen Sie beim nachhaltigen Vermögensaufbau. Mit unseren erfahrenen Experten sorgen wir dafür, dass Sie die
besten Konditionen erhalten damit Ihre Träume Wirklichkeit werden!


www.schantl-ith.at in Kooperation mit sfi-invest.com


Die Angaben über das angebotene Objekt erfolgen mit der Sorgfalt eines ordentlichen Immobilienmaklers; für die Richtigkeit solcher Angaben, die auf Informationen der über das Objekt Verfügungsberechtigten beruhen, wird keine Gewähr geleistet!

Wir weisen darauf hin, dass zwischen dem Vermittler und dem zu vermittelnden Dritten ein familiäres oder wirtschaftliches Naheverhältnis besteht.

Der Vermittler ist als Doppelmakler tätig.


Infrastruktur / Entfernungen

Gesundheit
Arzt <500m
Apotheke <1.000m
Klinik <2.000m
Krankenhaus <3.000m

Kinder & Schulen
Schule <500m
Kindergarten <1.000m
Universität <1.000m
Höhere Schule <1.500m

Nahversorgung
Supermarkt <500m
Bäckerei <1.000m
Einkaufszentrum <1.500m

Sonstige
Geldautomat <1.000m
Bank <1.000m
Post <500m
Polizei <1.000m

Verkehr
Bus <500m
Straßenbahn <500m
Autobahnanschluss <3.000m
Bahnhof <1.000m
Flughafen <7.500m

Angaben Entfernung Luftlinie / Quelle: OpenStreetMap

Kabel/SAT/TV: JA
Provision:


Alle Details anzeigen

KONTAKT






 

Lasse dich kostenlos vom Anbieter dieser Immobilie zurückrufen.







 


 
Schantl ITH Immobilientreuhand GmbH
Ursula Seiwald
Telefonnummer anzeigen Handy Bearbeiter: +436645725475
 
Bitte dem Makler die FindMyHome.at - ID bekanntgeben: 5599771

Bewertungen dieses Anbieters
Qualitätsmakler
Qualitätsmakler:
2015, 2016, 2018, 2019, 2020, 2021, 2023 , 2024, 2025,
Netiquette
Freundlichkeit
79 %

BEWERTUNGEN DIESES ANBIETERS

 
Qualit�tsmakler
Qualitätsmakler
2015, 2016, 2018, 2019, 2020, 2021, 22/23, 2024, 2025
Antwortzeit
ø 48h ANTWORT
Weiterempfehlung
WIRD GERNE

Freundlichkeit
BESONDERS
FREUNDLICH
Netiquette
FINDMYHOME
NETIQUETTE
Auch du kannst bewerten! 7 Tage nach deiner Anfrage erhältst du dafür von uns ein Bewertungsmail.
Alle Infos zu unseren Auszeichnungen und dem FINDMYHOME.AT Qualitätsprogramm findest du hier: Übersicht anzeigen

FINANZIERUNG
?>

Du willst wissen, wie viel dein Umzug kosten wird?

Mach gleich den kostenlosen Preisvergleich und schau, welche seriösen Anbieter in deiner Region günstig deinen Umzug organisieren


ZUM UMZUGS-VERGLEICH
-->

MYHOME BLOG
SuchAgentin auf FindMyHome.at
Unterschiedlichen Rechtsthemen, köstliche Rezepte, neueste Design-Highlights, sowie aktuelle Technik-Tools für Ihr Eigenheim.


FINDMYHOME.AT SUCHAGENTIN
SuchAgentin auf FindMyHome.at
Hallo, soll ich dir ähnliche Immobilien kostenfrei per E-Mail schicken?


Durch die Nutzung unserer Seite erklären Sie sich mit der Verwendung von Cookies zur Verbesserung Ihres Online-Erlebnisses einverstanden. Detaillierte Informationen zu diesem und weiteren Themen erhalten Sie in unserer Datenschutzerklärung.