MEIN ERGEBNIS ANPASSEN

Jackpot - Starten Sie Ihr Business! Bestlage zwischen Schönbrunn und Mariahilferstraße + Traumhaft und überkomplett saniertes Altbauhaus + TOP Geschäftslokal im EG + Potential! - Objektnr. 5598634


ökologisch beheizt
1150
Ort
1.320,51 m²
Fläche

ECKDATEN
FindMyHome.at // Externe Immobilien-ID5598634 // 293228
ImmobilienartZinshaus - Eigentum
AnschriftMariahilfer Gürtel
1150 Wien,Rudolfsheim-Fünfhaus
Baujahr1900
Befeuerung
Luftwärmepumpe
Geschosse5
Fläche931,18 m²
Terrassen1 (37,00 m²)
 Abstellraum
Kaufpreis:€ 6.490.000,00
Ratenzahlung:Finanzierungsmöglichkeiten für diese Immobilie anzeigen
Provision: 233.640,00 ? inkl. 20% USt.







BESCHREIBUNG

Jackpot - Starten Sie Ihr Business! Bestlage zwischen Schönbrunn und Mariahilferstraße + Traumhaft und überkomplett saniertes Altbauhaus + TOP Geschäftslokal im EG + Potential!

Jackpot - Starten Sie Ihr Business! Bestlage zwischen Schönbrunn und Mariahilferstraße + Traumhaft und überkomplett saniertes Altbauhaus + TOP Geschäftslokal im EG + Potential!

Die Chance für Ihre Zukunft!

Ideal zur Nutzung als Apartment-Hotel!

 

Dieses taumhaft und rundum sanierte Zinshaus besticht nicht nur durch die perfekte Lage für touristische Vermietung, sondern auch durch ein perfekt durchdachtes Konzept! Das Erdgeschoss besticht durch ein TOP-Lokal sowohl für Gäste als auch für die zahlreiche Laufkundschaft in dieser Lage - eine wahre Cash Cow!

 

Facts:

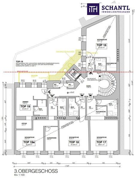
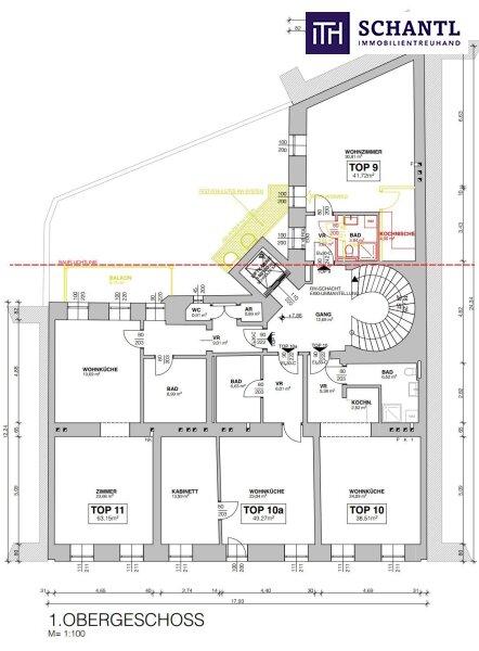
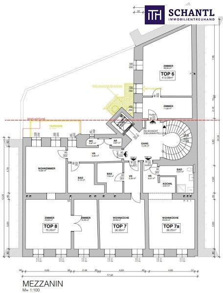
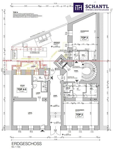
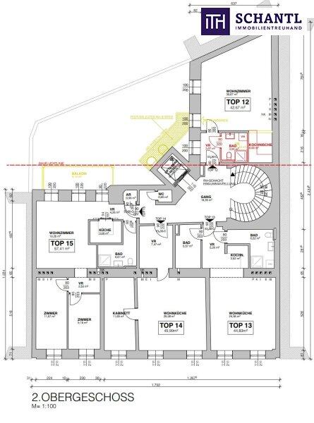
+ Kernsanierter Bestand: ca. 931,18m² (20 Einheiten)

+ 1 Geschäftslokal: ca. 74,48m² / 16 Apartments (hochwertig saniert und voll möbliert): ca. 693,38m² / 3 vermietete Wohnungen: ca. 163,32m²

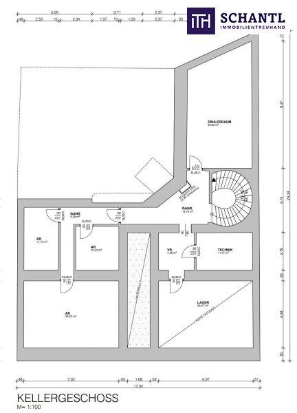
+ Sanierter Keller und Lager: ca. 97,84m² / Nutzbar als Lagerräume oder Spabereiche

+ Möglicher DG-Ausbau: ca. 280m² (laut Studie)

+ Luftwärmepumpe

+ Lift bis ins Dachgeschoss bereits eingebaut

+ Alle offiziellen Genehmigungen für Brandschutz, Fluchtwege etc. für die technischen Vorraussetzungen zur Kurzzeitmiete wurde bereits eingeholt und umgesetzt

+ Bereits erfolgreich vermietet!

+ Das Inventar der Apartments und die Anschaffungskosten sind bereits im Kaufpreis inkludiert

+ 3 Balkone und 1 Terrasse sind bereits baubewilligt

+ ca. 280m² und Feiflächen sind bei einem Dachgeschossausbau als zusätzliches Potential vorhanden

 

Kaufpreis: € 6.490.000.- Asset oder Share Deal

 

Worauf warten Sie noch Starten Sie durch!

 

www.schantl-ith.at

 

Wir weisen darauf hin, dass zwischen dem Vermittler und dem zu vermittelnden Dritten ein familiäres oder wirtschaftliches Naheverhältnis besteht.

Der Vermittler ist als Doppelmakler tätig.


Infrastruktur / Entfernungen

Gesundheit
Arzt <250m
Apotheke <250m
Klinik <500m
Krankenhaus <750m

Kinder & Schulen
Schule <250m
Kindergarten <250m
Universität <750m
Höhere Schule <1.250m

Nahversorgung
Supermarkt <250m
Bäckerei <250m
Einkaufszentrum <1.000m

Sonstige
Geldautomat <250m
Bank <250m
Post <500m
Polizei <250m

Verkehr
Bus <250m
U-Bahn <250m
Straßenbahn <250m
Bahnhof <250m
Autobahnanschluss <4.500m

Angaben Entfernung Luftlinie / Quelle: OpenStreetMap

Kabel/SAT/TV: JA
Provision: 233.640,00 ? inkl. 20% USt.


Alle Details anzeigen

KONTAKT






 

Lasse dich kostenlos vom Anbieter dieser Immobilie zurückrufen.







 


 
Schantl ITH Immobilientreuhand GmbH
Samir Agha-Schantl
Telefonnummer anzeigen Telefon Allgemein: +436643070009
Handy Bearbeiter: +436604701793
 
Bitte dem Makler die FindMyHome.at - ID bekanntgeben: 5598634

Bewertungen dieses Anbieters
Qualitätsmakler
Qualitätsmakler:
2015, 2016, 2018, 2019, 2020, 2021, 2023 , 2024, 2025,
Netiquette
Freundlichkeit
79 %

BEWERTUNGEN DIESES ANBIETERS

 
Qualit�tsmakler
Qualitätsmakler
2015, 2016, 2018, 2019, 2020, 2021, 22/23, 2024, 2025
Antwortzeit
ø 48h ANTWORT
Weiterempfehlung
WIRD GERNE

Freundlichkeit
BESONDERS
FREUNDLICH
Netiquette
FINDMYHOME
NETIQUETTE
Auch du kannst bewerten! 7 Tage nach deiner Anfrage erhältst du dafür von uns ein Bewertungsmail.
Alle Infos zu unseren Auszeichnungen und dem FINDMYHOME.AT Qualitätsprogramm findest du hier: Übersicht anzeigen

FINANZIERUNG
?>

Du willst wissen, wie viel dein Umzug kosten wird?

Mach gleich den kostenlosen Preisvergleich und schau, welche seriösen Anbieter in deiner Region günstig deinen Umzug organisieren


ZUM UMZUGS-VERGLEICH
-->

MYHOME BLOG
SuchAgentin auf FindMyHome.at
Unterschiedlichen Rechtsthemen, köstliche Rezepte, neueste Design-Highlights, sowie aktuelle Technik-Tools für Ihr Eigenheim.


FINDMYHOME.AT SUCHAGENTIN
SuchAgentin auf FindMyHome.at
Hallo, soll ich dir ähnliche Immobilien kostenfrei per E-Mail schicken?


Durch die Nutzung unserer Seite erklären Sie sich mit der Verwendung von Cookies zur Verbesserung Ihres Online-Erlebnisses einverstanden. Detaillierte Informationen zu diesem und weiteren Themen erhalten Sie in unserer Datenschutzerklärung.