MEIN ERGEBNIS ANPASSEN

Nachhaltig Leben in Top-Lage - ODO25 mit effizienter Energie & cleverer Raumplanung - Objektnr. 5598069

1160
Ort
€ 1.250,00
Gesamtkosten
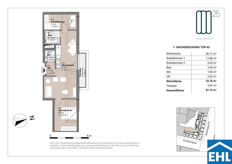
53,18 m²
Fläche
3.0
Zimmer
WEITERE MEDIEN

ECKDATEN
FindMyHome.at // Externe Immobilien-ID5598069 // 92498
ImmobilienartWohnung - Miete
AnschriftOdoakergasse 25/62
1160 Wien
Baujahr2026
Stock5
Geschosse7
Mietdauer5
Fläche53,18 m²
Terrassen1 (4,00 m²)
Zimmer3.0
Bad1
WC1
 Abstellraum
Kaution:€ 3.750,00
Brutto-Miete:€ 1.250,00
Betriebskosten (inkl. MwSt):€ 125,77
Mehrwertsteuer:€ 113,63
Monatliche Gesamtkosten:€ 1.250,00
Provision: Gemäß Erstauftraggeberprinzip bezahlt der Abgeber die Provision.




BESCHREIBUNG

Nachhaltig Leben in Top-Lage - ODO25 mit effizienter Energie & cleverer Raumplanung

Mit dem ODO25 entsteht in der Odoakergasse 25 im 16. Wiener Gemeindebezirk, am Fuße des Wilhelminenbergs, ein modernes Wohnprojekt, das urbanes Lebensgefühl, zeitgemäße Architektur und nachhaltigen Wohnkomfort vereint. Die Wohnhausanlage richtet sich an Menschen in unterschiedlichen Lebensphasen von Singles über Paare bis hin zu Familien und bietet Raum zum Ankommen, Entfalten und Wohlfühlen.

Das Projekt umfasst 61 hochwertige Mietwohnungen sowie eine Atelier- bzw. Büroeinheit im Hofhaus. Die überwiegend 1,5-, 2- sowie 3-Zimmer-Wohnungen mit Wohnflächen von ca. 30 bis 80 m² überzeugen durch durchdachte, kompakte Grundrisse, helle Räume und eine hochwertige Ausstattung. Großzügige bodentiefe Fenster, klare architektonische Linien und teilweise private Freiflächen wie Balkone, Loggien oder Terrassen schaffen ein angenehmes, urbanes Wohnambiente. Ergänzt wird das Angebot durch ausgewählte Dach-Maisonetten, die ein besonders exklusives Wohngefühl bieten.

ODO25 setzt auf ein zukunftsorientiertes, nachhaltiges Gesamtkonzept und strebt eine ÖGNI-/DGNB-Gold-Zertifizierung an.

 

Das Projekt im Überblick

  • 61 Mietwohnungen sowie 1 Büro- & Atelierfläche
  • 1,5- bis 3-Zimmer-Wohnungen mit ca. 3080 m² Wohnfläche
  • Teilweise private Freiflächen (Balkon, Loggia oder Terrasse)
  • Fahrradabstellraum & Kinderspielraum
  • Energieeffiziente Bauweise mit Wärmepumpe, Erdwärmesonden und Bauteilaktivierung
  • Begrünter Innenhof sowie Fassaden- und Dachbegrünung

 

Ausstattung im Überblick

  • Heizung und Kühlung über die Decke mittels Erdwärme
  • Voll ausgestattete Küchen
  • Vinylboden in Eichenoptik in den Wohnräumen
  • Fliesen bzw. Feinsteinzeug in den Sanitärräumen
  • Kunststoff-Alu-Fenster
  • Außenliegender Sonnenschutz im Dachgeschoß
  • Sicherheitstüren WK2/RC2
  • Glasfaseranschluss
  • Video-Gegensprechanlage

 

Lage Urbanes Leben mit Nähe zur Natur

ODO25 liegt im Herzen von Ottakring und verbindet urbane Infrastruktur mit naturnaher Erholung. Zahlreiche Grün- und Erholungsgebiete wie der Wilhelminenberg, die Steinhofgründe oder der Kongresspark befinden sich in kurzer Distanz und bieten vielfältige Freizeitmöglichkeiten. Gleichzeitig ist die Anbindung an die Wiener Innenstadt hervorragend: Die U3-Station Ottakring ist fußläufig erreichbar und bringt Sie in kurzer Zeit ins Stadtzentrum.

Zahlreiche Einkaufsmöglichkeiten für den täglichen Bedarf, Restaurants sowie traditionelle Heurige befinden sich in unmittelbarer Umgebung. Kindergärten sowie sämtliche Schultypen sind ebenfalls rasch erreichbar.

Verkehrsanbindung

  • Straßenbahn: 2, 10, 33, 44 & 46
  • Bus: 45A, 46A, 46B & N46
  • S-Bahn: S45
  • U-Bahn: U3 Ottakring (ca. 10 Gehminuten)

 

Voraussichtliche Fertigstellung: 01.07.2026

Befristung: 5 Jahre, 1 Jahr Kündigungsverzicht, 3 Monate Kündigungsfrist 

Nebenkosten:  3 BMM Kaution

Den Wohnungen sind keine Kellerabteile zugeordnet.

 

Das Projekt befindet sich derzeit noch im Bau. Wir freuen uns über Ihre Kontaktaufnahme per E-Mail, um einen Besichtigungstermin der Musterwohnung zu vereinbaren!

Wir weisen darauf hin, dass zwischen dem Vermittler und dem zu vermittelnden Dritten ein familiäres oder wirtschaftliches Naheverhältnis besteht.

Der Immobilienmakler erklärt, dass er entgegen dem in der Immobilienwirtschaft üblichen Geschäftsgebrauch des Doppelmaklers einseitig nur für den Vermieter tätig ist.


Infrastruktur / Entfernungen

Gesundheit
Arzt <200m
Apotheke <125m
Klinik <775m
Krankenhaus <275m

Kinder & Schulen
Schule <200m
Kindergarten <225m
Universität <1.600m
Höhere Schule <1.275m

Nahversorgung
Supermarkt <150m
Bäckerei <325m
Einkaufszentrum <325m

Sonstige
Geldautomat <150m
Bank <350m
Post <350m
Polizei <400m

Verkehr
Bus <100m
U-Bahn <550m
Straßenbahn <100m
Bahnhof <650m
Autobahnanschluss <4.725m

Angaben Entfernung Luftlinie / Quelle: OpenStreetMap

Klimaanlage: JA
Provision: Gemäß Erstauftraggeberprinzip bezahlt der Abgeber die Provision.


Alle Details anzeigen

KONTAKT






 

Lasse dich kostenlos vom Anbieter dieser Immobilie zurückrufen.







 


 
EHL Wohnen GmbH
Helena Rohrauer
Telefonnummer anzeigen Telefon Allgemein: +4315127690408
Handy Bearbeiter: +4366488982237
 
Bitte dem Makler die FindMyHome.at - ID bekanntgeben: 5598069

Bewertungen dieses Anbieters
Qualitätsmakler
Qualitätsmakler:
Netiquette
Freundlichkeit
82 %

BEWERTUNGEN DIESES ANBIETERS

 
Qualitätsmakler
UNSERE HALL OF FAME DER BESTEN ANBIETER
Qualit�tsmakler
Qualitätsmakler
2012, 2013, 2014, 2015, 2016, 2017, 2018, 2019, 2020, 2021, 22/23, 2024, 2025
Weiterempfehlung
WIRD GERNE

Freundlichkeit
BESONDERS
FREUNDLICH
Netiquette
FINDMYHOME
NETIQUETTE
Auch du kannst bewerten! 7 Tage nach deiner Anfrage erhältst du dafür von uns ein Bewertungsmail.
Alle Infos zu unseren Auszeichnungen und dem FINDMYHOME.AT Qualitätsprogramm findest du hier: Übersicht anzeigen


Du willst wissen, wie viel dein Umzug kosten wird?

Mach gleich den kostenlosen Preisvergleich und schau, welche seriösen Anbieter in deiner Region günstig deinen Umzug organisieren


ZUM UMZUGS-VERGLEICH
-->

MYHOME BLOG
SuchAgentin auf FindMyHome.at
Unterschiedlichen Rechtsthemen, köstliche Rezepte, neueste Design-Highlights, sowie aktuelle Technik-Tools für Ihr Eigenheim.


FINDMYHOME.AT SUCHAGENTIN
SuchAgentin auf FindMyHome.at
Hallo, soll ich dir ähnliche Immobilien kostenfrei per E-Mail schicken?


ÄHNLICHE IMMOBILIEN
Aehnliche Immobilie - Vorschaubild 1

ODO25 - Urbanes Wohnen mit durchdachten Grundrissen & perfek... - Objektnr. 5598049

51,89 m² - 3.0 Zimmer
1149 €
PLZ: 1160

Mehr anzeigen

Aehnliche Immobilie - Vorschaubild 2

Living at its best - ERSTZBEZUG in U3 Nähe - Objektnr. 5598039


47,19 m² - 2.0 Zimmer
1079 €
PLZ: 1160

Mehr anzeigen

Aehnliche Immobilie - Vorschaubild 3

Ihr neues Zuhause in Wien-Ottakring - ODO25 vereint Komfort ... - Objektnr. 5598089

46,78 m² - 2.0 Zimmer
1079 €
PLZ: 1160

Mehr anzeigen

Durch die Nutzung unserer Seite erklären Sie sich mit der Verwendung von Cookies zur Verbesserung Ihres Online-Erlebnisses einverstanden. Detaillierte Informationen zu diesem und weiteren Themen erhalten Sie in unserer Datenschutzerklärung.