MEIN ERGEBNIS ANPASSEN

++NEU++ Außergewöhnliche 3-Zimmer Altbauwohnung mit Balkon - Objektnr. 5597373


ökologisch beheizt
1200
Ort
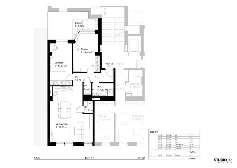
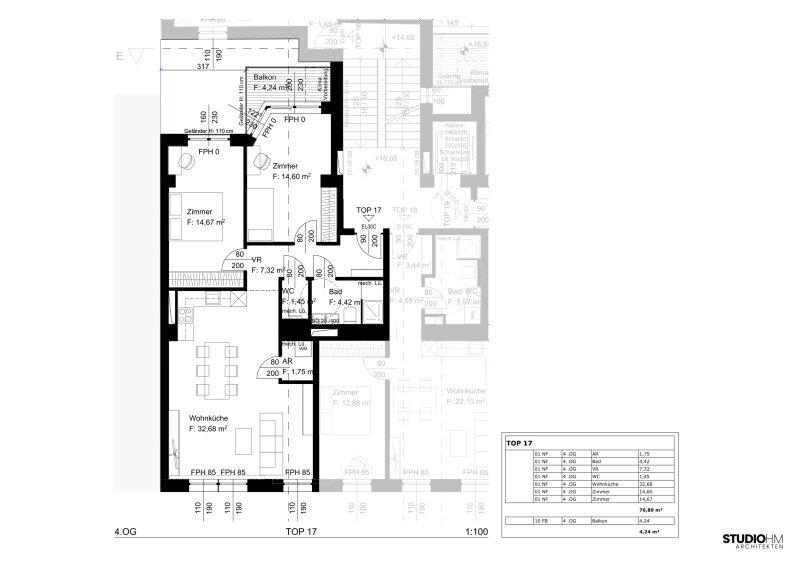
76,89 m²
Fläche
3.0
Zimmer

ECKDATEN
FindMyHome.at // Externe Immobilien-ID5597373 // 62732
ImmobilienartEigentum
Anschrift/17
1200 Wien
Befeuerung
Luftwärmepumpe
Stock4
Fläche76,89 m²
Zimmer3.0
Bad1
WC2
 Abstellraum
Kaufpreis:€ 519.000,00
Ratenzahlung:Finanzierungsmöglichkeiten für diese Immobilie anzeigen
Provision: 3% des Kaufpreises zzgl. 20% USt.







BESCHREIBUNG

++NEU++ Außergewöhnliche 3-Zimmer Altbauwohnung mit Balkon

Stilvoller Altbaucharme mit Balkon 3-Zimmer-Wohnung im generalsanierten Stilhaus

 

Zum Verkauf gelangt eine derzeit in Sanierung befindliche, optimal aufgeteilte 3-Zimmer-Altbauwohnung mit ca. 77 m² Wohnfläche und Balkon in ausgezeichneter Lage der Brigittenau.

Diese stilvolle Einheit vereint klassischen Wiener Altbaucharme mit moderner Ausstattung und hochwertiger Sanierung ideal als Eigennutzung oder Anlageobjekt.

 


Objektdetails

Wohnfläche: ca. 77 m²
Freiflächen: Balkon
Etage: 4. OG
Zimmer: 3
Fertigstellung: voraussichtlich Q1 2027
Zustand: Erstbezug nach Generalsanierung


Raumaufteilung

  • Vorraum
  • Wohnküche
  • Schlafzimmer
  • Schlafzimmer
  • Badezimmer mit Dusche und WC
  • Gäste-WC
  • Abstellraum
  • Balkon

(Siehe Plan und Beispielbilder einer bereits fertiggestellten Wohnung desselben Bauträgers.)


Ausstattung

 

Die Wohnung wird mit hochwertigen Materialien und Liebe zum Detail ausgestattet:

  • Edler Eichenparkettboden in allen Wohnräumen

  • Modern verflieste Nassräume mit Markenarmaturen

  • Fußbodenheizung in allen Räumen

  • Erstklassige Bau- und Ausstattungsqualität genaue Beschreibung auf Anfrage verfügbar

Das gesamte Wohnhaus wird derzeit umfassend generalsaniert. Im Zuge dessen werden auch das Dachgeschoss ausgebaut und ein Aufzug eingebaut.

Einmaliger Lifterrichtungsbeitrag:

1.OG - 2.000 €
2.OG - 4.000 €
3.OG - 6.000 €
4.OG - 8.000 €
DG - 10.000 €

 


Lage & Infrastruktur

 

Die Universumstraße liegt im Herzen der Brigittenau einem lebendigen Stadtteil zwischen Donaukanal und Donau, der urbanes Flair mit hoher Lebensqualität vereint.

In der unmittelbaren Umgebung finden sich zahlreiche Einkaufsmöglichkeiten, Restaurants, Cafés und Nahversorger. Für Erholung im Grünen sorgen der Augarten eine der schönsten barocken Parkanlagen Wiens sowie die nahe Donauinsel mit ihren weitläufigen Freizeit- und Erholungsflächen.

 


Verkehrsanbindung

 

Die Lage überzeugt durch eine hervorragende öffentliche Anbindung:

  • U6 Dresdner Straße: wenige Gehminuten entfernt

  • Straßenbahn & Bus: Linien 2, 12, O, 5A, 37A

  • S-Bahn Traisengasse: schnelle Verbindung ins Stadtzentrum und Umland

  • Individualverkehr: rasche Anbindung über Handelskai, Nordbrücke, A22, A4 und A23

 


Kaufpreis

 

EUR 519.000,-
Lifterrichtungsbeitrag: EUR 8.000,-
Vertragserrichtung: Mag. Georg Kampas (1,5 % zzgl. Barauslagen und 20 % USt.)

Betriebskosten: ca. EUR 2,50/m² (exkl. Reparaturrücklage und Aufzug)
Die endgültige Wohnungsgröße kann geringfügig abweichen, da das Objekt noch nicht naturvermessen ist.

 


Hinweis

Gerne senden wir Ihnen auf Anfrage eine Übersicht aller noch verfügbaren Einheiten sowie die detaillierte Bau- und Ausstattungsbeschreibung zu.

 

Sollten Sie Fragen haben oder einen persönlichen Gesprächstermin wünschen, zögern Sie bitte nicht mich zu kontaktieren.

Zur Vereinbarung eines Besichtigungstermins lassen Sie uns bitte jedenfalls eine E-Mailanfrage zukommen!

Bitte achten Sie darauf, dass Sie diese Immobilie, nach Ihrer Anfrage bei Adonia Immobilien, nicht auch bei einem anderen Immobilienmaklerbüro anfragen! Vielen Dank!

Vielen Dank an unsere Kunden! Unser Unternehmen wurde bereits zum Besten Start Up und erneut als Qualitätsmakler 2018 ausgezeichnet!!

Nicht alle unsere Immobilien finden Sie auf den gängigen Plattformen. Wir freuen uns auf Ihren Besuch auf unserer Homepage unter adonia.at 

Wir weisen ausdrücklich auf unser wirtschaftliches Naheverhältnis mit dem Abgeber/ der Abgeberin hin!  Unsere gesetzlichen Pflichten als Doppelmakler werden dadurch jedoch nicht beeinträchtigt. Irrtum und Änderungen vorbehalten.

Alle hier veröffentlichen Informationen basieren auf den uns von dem Abgeber/ der Abgeberin zur Verfügung gestellten Informationen und wurden nicht selbst erhoben.

Der Schutz von personenbezogenen Daten ist uns wichtig und auch gesetzlich gefordert. Die Verarbeitung Ihrer personenbezogenen Daten erfolgt nach den datenschutzrechtlichen Bestimmungen. Auf unserer Homepage (unter Datenschutzinformation) finden Sie eine Übersicht die Sie über die wichtigsten Aspekte der Verarbeitung personenbezogener Daten informieren soll.

Wir weisen darauf hin, dass zwischen dem Vermittler und dem zu vermittelnden Dritten ein familiäres oder wirtschaftliches Naheverhältnis besteht.

Der Vermittler ist als Doppelmakler tätig.


Infrastruktur / Entfernungen

Gesundheit
Arzt <500m
Apotheke <500m
Klinik <500m
Krankenhaus <500m

Kinder & Schulen
Schule <1.000m
Kindergarten <500m
Universität <1.000m
Höhere Schule <1.500m

Nahversorgung
Supermarkt <500m
Bäckerei <500m
Einkaufszentrum <1.000m

Sonstige
Geldautomat <500m
Bank <500m
Post <500m
Polizei <500m

Verkehr
Bus <500m
U-Bahn <500m
Straßenbahn <500m
Bahnhof <500m
Autobahnanschluss <1.500m

Angaben Entfernung Luftlinie / Quelle: OpenStreetMap

Objekt ist für eine Wohngemeinschaft geeignet
Provision: 3% des Kaufpreises zzgl. 20% USt.


Alle Details anzeigen

KONTAKT






 

Lasse dich kostenlos vom Anbieter dieser Immobilie zurückrufen.







 


 
Adonia Realitätenvermittlung GmbH
Luca Schelodetz
Telefonnummer anzeigen Telefon Allgemein: +436649101540
 
Bitte dem Makler die FindMyHome.at - ID bekanntgeben: 5597373

Bewertungen dieses Anbieters
Qualitätsmakler
Qualitätsmakler:
2015, 2018, 2019, 2020, 2023, 2024,
Netiquette
Freundlichkeit

BEWERTUNGEN DIESES ANBIETERS

 
Qualit�tsmakler
Qualitätsmakler
2015, 2018, 2019, 2020, 22/23, 2024
Freundlichkeit
BESONDERS
FREUNDLICH
Netiquette
FINDMYHOME
NETIQUETTE
Auch du kannst bewerten! 7 Tage nach deiner Anfrage erhältst du dafür von uns ein Bewertungsmail.
Alle Infos zu unseren Auszeichnungen und dem FINDMYHOME.AT Qualitätsprogramm findest du hier: Übersicht anzeigen

FINANZIERUNG
?>

Du willst wissen, wie viel dein Umzug kosten wird?

Mach gleich den kostenlosen Preisvergleich und schau, welche seriösen Anbieter in deiner Region günstig deinen Umzug organisieren


ZUM UMZUGS-VERGLEICH
-->

MYHOME BLOG
SuchAgentin auf FindMyHome.at
Unterschiedlichen Rechtsthemen, köstliche Rezepte, neueste Design-Highlights, sowie aktuelle Technik-Tools für Ihr Eigenheim.


FINDMYHOME.AT SUCHAGENTIN
SuchAgentin auf FindMyHome.at
Hallo, soll ich dir ähnliche Immobilien kostenfrei per E-Mail schicken?


ÄHNLICHE IMMOBILIEN
Aehnliche Immobilie - Vorschaubild 1

Erstbezug nach Sanierung! Moderne 3-Zimmer Wohnung, Nähe Aug... - Objektnr. 5520909

74,82 m² - 3.0 Zimmer
429000 €
PLZ: 1200

Mehr anzeigen

Aehnliche Immobilie - Vorschaubild 2

++NEU++ Außergewöhnliche 3-Zimmer Altbauwohnung mit Balkon... - Objektnr. 5597376

81,88 m² - 3.0 Zimmer
519000 €
PLZ: 1200

Mehr anzeigen

Aehnliche Immobilie - Vorschaubild 3

++NEU++ Stilvolle 3-Zimmer Altbauwohnung mit Balkon... - Objektnr. 5592602

83,38 m² - 3.0 Zimmer
549000 €
PLZ: 1200

Mehr anzeigen

Durch die Nutzung unserer Seite erklären Sie sich mit der Verwendung von Cookies zur Verbesserung Ihres Online-Erlebnisses einverstanden. Detaillierte Informationen zu diesem und weiteren Themen erhalten Sie in unserer Datenschutzerklärung.