Neubauwohnung nähe Nußdorfer Straße - Objektnr. 5597288
ECKDATEN
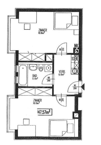
BESCHREIBUNG
KONTAKT
Lasse dich kostenlos vom Anbieter dieser Immobilie zurückrufen.
MAYERL IMMOBILIEN
Daniel Grüner, MSc
Daniel Grüner, MSc
Telefonnummer anzeigen
Telefon Allgemein: +431479411714
Bitte dem Makler die FindMyHome.at - ID bekanntgeben: 5597288
Bitte dem Makler die FindMyHome.at - ID bekanntgeben: 5597288
BEWERTUNGEN DIESES ANBIETERS
FINDMYHOME.AT
NETIQUETTE
NETIQUETTE
Auch du kannst bewerten! 7 Tage nach deiner Anfrage erhältst du dafür von uns ein Bewertungsmail.
Alle Infos zu unseren Auszeichnungen und dem FINDMYHOME.AT Qualitätsprogramm findest du hier: Übersicht anzeigen
Alle Infos zu unseren Auszeichnungen und dem FINDMYHOME.AT Qualitätsprogramm findest du hier: Übersicht anzeigen
Du willst wissen, wie viel dein Umzug kosten wird?
Mach gleich den kostenlosen Preisvergleich und schau, welche seriösen Anbieter in deiner Region günstig deinen Umzug organisieren
ZUM UMZUGS-VERGLEICH




















