MEIN ERGEBNIS ANPASSEN

GRÜNBLICK im "Viertel Zwei" ! Exklusive 4-Zimmerwohnung mit 20 m² Loggia - Objektnr. 5597105


ökologisch beheizt
1020
Ort
€ 3.637,65
Gesamtkosten
95,37 m²
Fläche
4.0
Zimmer

ECKDATEN
FindMyHome.at // Externe Immobilien-ID5597105 // 90863
ImmobilienartWohnung - Miete
AnschriftMeiereistraße
1020 Wien
Baujahr2025
Befeuerung
Fernwärme
Stock13
Beziehbar ab2026-02-01
Mietdauer5
Fläche95,37 m²
Zimmer4.0
Bad2
WC2
 Abstellraum
Kaution:€ 10.912,95
Brutto-Miete:€ 3.637,65
Betriebskosten (inkl. MwSt):€ 490,55
Mehrwertsteuer:€ 330,70
Monatliche Gesamtkosten:€ 3.637,65
Provision: Gemäß Erstauftraggeberprinzip bezahlt der Abgeber die Provision.




BESCHREIBUNG

GRÜNBLICK im "Viertel Zwei" ! Exklusive 4-Zimmerwohnung mit 20 m² Loggia

GRÜNBLICK im Viertel Zwei! Exklusive 4-Zimmerwohnung mit 20 m² Loggia

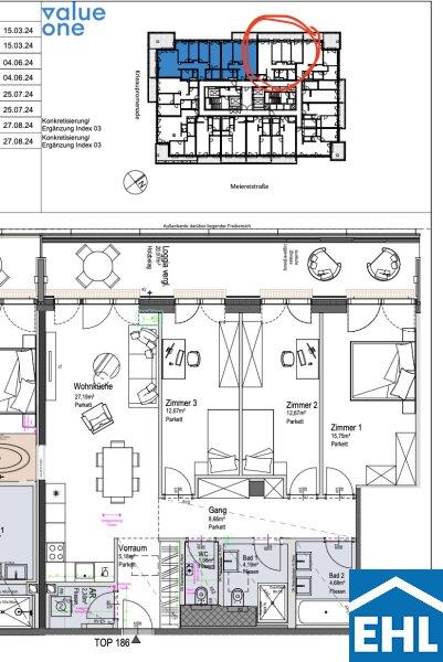
Im Projekt Grünblick in der Meiereistraße erwartet Sie eine 4-Zimmer-Wohnung mit ca. 95 m² Wohnfläche und 20 m² Loggia, die modernes Wohnen mit spürbarer Lebensqualität verbindet.

Schon beim Betreten der Wohnung zeigt sich der klare, familienfreundliche Grundriss: Ein einladender Vorraum führt Sie in den zentralen Wohnbereich, der als Herzstück der Wohnung Raum für gemeinsames Kochen, Essen und Entspannen bietet. Große Fensterflächen sorgen dabei für ein helles, offenes Wohngefühl und schaffen eine angenehme Verbindung zwischen Innen und Außen.
Die knapp 95 m² große Wohnung verfügt zusätzlich über drei separat begehbare Zimmer, die flexibel nutzbar sind ob als Schlafzimmer, Kinderzimmer, Homeoffice oder Gästezimmer. So passt sich das Zuhause Ihrem Leben an, nicht umgekehrt.
Während der Wohn-/Essbereich zum Zusammenkommen einlädt, bieten die Zimmer ruhige, private Bereiche für jedes Familienmitglied.
Ein weiteres Highlight ist die Freifläche, von der sich nicht nur ein herrlicher Blick über die Trabrennbahn, sondern auch ein weiter Blick über die Stadt eröffnet  vorbei am ehrwürdigen Rathaus, dem stolzen Stephansdom und bis hin zum lebendigen Prater die 20 m² große Loggia erweitern den Wohnraum nach draußen und machen den Alltag luftiger: Frühstück in der Morgensonne, ein Glas Wein am Abend oder ein Rennen auf der Trabrennbahn Krieau.
Zwei Badezimmer, ein Abstellraum und ein zusätzliches WC runden die Wohnung ab.

Mit dem Projekt "Grünblick" entstand ein Beispiel für zeitgemäßes, nachhaltiges und hochwertiges Wohnen im urbanen Raum mit Fokus auf Energieeffizienz, Qualität und Lebensqualität.
Die Mischung aus Wohnen, Freizeit, Nahversorgung und Nähe zur Natur (Grüner Prater, Grünflächen) macht das "Viertel Zwei" mit dem "Grünblick" zu einem lebendigen und attraktiven Stadtquartier. 
Die Highlights des Projekts sind unter anderem der Concierge-Service, der Wellnessbereich am Rooftop mit spektakulärem Outdoor-Pool, Fitnessraum, Panorama-Sauna sowie Dining Room mit Außenterrasse. 

Garagenstellplätze können zusätzlich angemietet werden. Ein Stellplatz € 250 brutto / Monat.

Ausstattung:

  • vollausgestattete Küche mit allen Einbaugeräte (wird im Februar 2026 eingebaut)
  • großer Wohnbereich
  • 3 separat begehbare Zimmer, flexibel nutzbar
  • per Smartphone steuerbare Jalousien, sowie Heizungen (Smarthomesystem) 
  • Große Fensterflächen für viel Licht
  • Hochwertige Parkettböden in Wohnräumen
  • Zeitlose Fliesen in den Sanitärräumen
  • Badezimmer mit Wanne
  • Badezimmer mit Dusche und WC
  • zusätzliches WC
  • Fußbodenheizung
  • Kellerabteil
  • Energieeffiziente Bauweise

öffentliche Verkehrsanbindung:

  • U-Bahn Linie U2 "Stadion"
  • Buslinie 82A
  • Straßenbahnlinie 18 (Fertigstellung Herbst 2026) 

Beziehbar ab 01.02.2026
Befristung: 5 Jahre, 1 Jahr Kündigungsverzicht, 3 Monate Kündigungsfrist
Nebenkosten: 3BMM Kaution, Vertragserrichtungsgebühr

 

Wir weisen darauf hin, dass zwischen dem Vermittler und dem zu vermittelnden Dritten ein familiäres oder wirtschaftliches Naheverhältnis besteht.

Der Immobilienmakler erklärt, dass er entgegen dem in der Immobilienwirtschaft üblichen Geschäftsgebrauch des Doppelmaklers einseitig nur für den Vermieter tätig ist.


Infrastruktur / Entfernungen

Gesundheit
Arzt <1.500m
Apotheke <250m
Klinik <500m
Krankenhaus <2.250m

Kinder & Schulen
Schule <500m
Kindergarten <750m
Universität <1.000m
Höhere Schule <2.250m

Nahversorgung
Supermarkt <500m
Bäckerei <250m
Einkaufszentrum <250m

Sonstige
Geldautomat <1.000m
Bank <1.000m
Post <1.250m
Polizei <1.500m

Verkehr
Bus <250m
U-Bahn <250m
Straßenbahn <1.250m
Bahnhof <250m
Autobahnanschluss <1.250m

Angaben Entfernung Luftlinie / Quelle: OpenStreetMap

Swimmingpool: JA
Rollstuhlgerecht: JA
Barrierefrei: JA
Provision: Gemäß Erstauftraggeberprinzip bezahlt der Abgeber die Provision.


Alle Details anzeigen

KONTAKT






 

Lasse dich kostenlos vom Anbieter dieser Immobilie zurückrufen.







 


 
EHL Wohnen GmbH
Egon-Adrian Toth, BA
Telefonnummer anzeigen Telefon Allgemein: +4315127690404
 
Bitte dem Makler die FindMyHome.at - ID bekanntgeben: 5597105

Bewertungen dieses Anbieters
Qualitätsmakler
Qualitätsmakler:
Netiquette
Freundlichkeit
82 %

BEWERTUNGEN DIESES ANBIETERS

 
Qualitätsmakler
UNSERE HALL OF FAME DER BESTEN ANBIETER
Qualit�tsmakler
Qualitätsmakler
2012, 2013, 2014, 2015, 2016, 2017, 2018, 2019, 2020, 2021, 22/23, 2024, 2025
Weiterempfehlung
WIRD GERNE

Freundlichkeit
BESONDERS
FREUNDLICH
Netiquette
FINDMYHOME
NETIQUETTE
Auch du kannst bewerten! 7 Tage nach deiner Anfrage erhältst du dafür von uns ein Bewertungsmail.
Alle Infos zu unseren Auszeichnungen und dem FINDMYHOME.AT Qualitätsprogramm findest du hier: Übersicht anzeigen


Du willst wissen, wie viel dein Umzug kosten wird?

Mach gleich den kostenlosen Preisvergleich und schau, welche seriösen Anbieter in deiner Region günstig deinen Umzug organisieren


ZUM UMZUGS-VERGLEICH
-->

MYHOME BLOG
SuchAgentin auf FindMyHome.at
Unterschiedlichen Rechtsthemen, köstliche Rezepte, neueste Design-Highlights, sowie aktuelle Technik-Tools für Ihr Eigenheim.


FINDMYHOME.AT SUCHAGENTIN
SuchAgentin auf FindMyHome.at
Hallo, soll ich dir ähnliche Immobilien kostenfrei per E-Mail schicken?


Durch die Nutzung unserer Seite erklären Sie sich mit der Verwendung von Cookies zur Verbesserung Ihres Online-Erlebnisses einverstanden. Detaillierte Informationen zu diesem und weiteren Themen erhalten Sie in unserer Datenschutzerklärung.