MEIN ERGEBNIS ANPASSEN

++NEU++ Sanierungsbedürftige 4-Zimmer Altbauwohnung mit Terrasse in fantastischer Lage! - Objektnr. 5596930

1200
Ort
88,00 m²
Fläche
4.0
Zimmer

ECKDATEN
FindMyHome.at // Externe Immobilien-ID5596930 // 60780
ImmobilienartWohnung - Eigentum
Anschrift1200 Wien
Befeuerung
Stock1
Fläche88,00 m²
Terrassen1 (15,00 m²)
Zimmer4.0
Bad1
WC1
Kaufpreis:€ 499.000,00
Ratenzahlung:Finanzierungsmöglichkeiten für diese Immobilie anzeigen
Provision: 3% des Kaufpreises zzgl. 20% USt.







BESCHREIBUNG

++NEU++ Sanierungsbedürftige 4-Zimmer Altbauwohnung mit Terrasse in fantastischer Lage!

4-Zimmer-Altbauwohnung in 1200 Wien

Ca. 88 m² | Sanierungsbedürftig | EUR 499.000,-


Besichtigungstermin

Bitte senden Sie uns jedenfalls eine schriftliche Anfrage zur Vereinbarung eines Besichtigungstermins.
Wir antworten verlässlich am selben Tag!


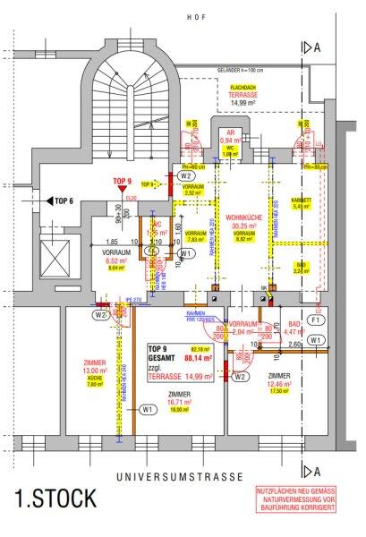
Raumaufteilung Top 09 | 1. Obergeschoss

  • Vorraum

  • Küche

  • Vorzimmer

  • Badezimmer

  • Zimmer

  • Zimmer

  • Kabinett

  • Terrasse

(siehe Grundrissplan und Fotos)


Ausstattung

Die Wohnung ist sanierungsbedürftig und wird im aktuellen Zustand verkauft wie sie liegt und steht.


Zustand des Hauses / Allgemeinflächen

Vor wenigen Jahren wurde im Haus das Dachgeschoss ausgebaut. In diesem Zuge wurde ein Aufzug eingebaut sowie die Fassade und das Stiegenhaus saniert.


Lage & Infrastruktur Universumstraße, 1200 Wien

Der 20. Bezirk gilt als aufstrebend und zugleich noch leistbar ideal für Eigennutzer oder Anleger.

Öffentliche Verkehrsanbindung:

  • U6 Station Dresdner Straße (nur wenige Gehminuten)

  • Straßenbahnen: Linie 2 & 31

  • Bus: Linie 11A

  • Mit dem Auto: gute Anbindung über Handelskai und Dresdner Straße

Nahversorgung & Freizeit:

  • Zahlreiche Geschäfte des täglichen Bedarfs, Restaurants, Banken und Ärzte in der Umgebung

  • Donauufer mit Naherholungsgebiet fußläufig erreichbar

  • Millennium City in Gehdistanz

  • Nähe zur FH Technikum Wien attraktiv auch für StudentInnen

 


Kaufpreis

EUR 499.000,- lastenfrei

RRL-Guthaben per 11.03.2025: € 16.777,20.

 

Vertragserrichter

Mag. Markus Wieneroiter
Kosten: 1,5 % des Kaufpreises + Barauslagen + 20 % USt

 

Sollten Sie Fragen haben oder einen persönlichen Gesprächstermin wünschen, zögern Sie bitte nicht mich zu kontaktieren.

Zur Vereinbarung eines Besichtigungstermins lassen Sie uns bitte jedenfalls eine E-Mailanfrage zukommen!

Bitte achten Sie darauf, dass Sie diese Immobilie, nach Ihrer Anfrage bei Adonia Immobilien, nicht auch bei einem anderen Immobilienmaklerbüro anfragen! Vielen Dank!

Vielen Dank an unsere Kunden! Unser Unternehmen wurde bereits zum Besten Start Up und erneut als Qualitätsmakler 2018 ausgezeichnet!

Wir weisen ausdrücklich auf unser wirtschaftliches Naheverhältnis mit dem Abgeber/ der Abgeberin hin!  Unsere gesetzlichen Pflichten als Doppelmakler werden dadurch jedoch nicht beeinträchtigt. Irrtum und Änderungen vorbehalten.

Alle hier veröffentlichen Informationen basieren auf den uns von dem Abgeber/ der Abgeberin zur Verfügung gestellten Informationen und wurden nicht selbst erhoben.

Der Schutz von personenbezogenen Daten ist uns wichtig und auch gesetzlich gefordert. Die Verarbeitung Ihrer personenbezogenen Daten erfolgt nach den datenschutzrechtlichen Bestimmungen. Auf unserer Homepage (unter Datenschutzinformation) finden Sie eine Übersicht die Sie über die wichtigsten Aspekte der Verarbeitung personenbezogener Daten informieren soll.

Wir weisen darauf hin, dass zwischen dem Vermittler und dem zu vermittelnden Dritten ein familiäres oder wirtschaftliches Naheverhältnis besteht.

Der Vermittler ist als Doppelmakler tätig.


Infrastruktur / Entfernungen

Gesundheit
Arzt <500m
Apotheke <500m
Klinik <500m
Krankenhaus <500m

Kinder & Schulen
Schule <1.000m
Kindergarten <500m
Universität <1.000m
Höhere Schule <1.500m

Nahversorgung
Supermarkt <500m
Bäckerei <500m
Einkaufszentrum <1.000m

Sonstige
Geldautomat <500m
Bank <500m
Post <500m
Polizei <500m

Verkehr
Bus <500m
U-Bahn <500m
Straßenbahn <500m
Bahnhof <500m
Autobahnanschluss <1.500m

Angaben Entfernung Luftlinie / Quelle: OpenStreetMap

Objekt ist für eine Wohngemeinschaft geeignet
Provision: 3% des Kaufpreises zzgl. 20% USt.


Alle Details anzeigen

KONTAKT






 

Lasse dich kostenlos vom Anbieter dieser Immobilie zurückrufen.







 


 
Adonia Realitätenvermittlung GmbH
Luca Schelodetz
Telefonnummer anzeigen Telefon Allgemein: +436649101540
 
Bitte dem Makler die FindMyHome.at - ID bekanntgeben: 5596930

Bewertungen dieses Anbieters
Qualitätsmakler
Qualitätsmakler:
2015, 2018, 2019, 2020, 2023, 2024,
Netiquette
Freundlichkeit

BEWERTUNGEN DIESES ANBIETERS

 
Qualit�tsmakler
Qualitätsmakler
2015, 2018, 2019, 2020, 22/23, 2024
Freundlichkeit
BESONDERS
FREUNDLICH
Netiquette
FINDMYHOME
NETIQUETTE
Auch du kannst bewerten! 7 Tage nach deiner Anfrage erhältst du dafür von uns ein Bewertungsmail.
Alle Infos zu unseren Auszeichnungen und dem FINDMYHOME.AT Qualitätsprogramm findest du hier: Übersicht anzeigen

FINANZIERUNG
?>

Du willst wissen, wie viel dein Umzug kosten wird?

Mach gleich den kostenlosen Preisvergleich und schau, welche seriösen Anbieter in deiner Region günstig deinen Umzug organisieren


ZUM UMZUGS-VERGLEICH
-->

MYHOME BLOG
SuchAgentin auf FindMyHome.at
Unterschiedlichen Rechtsthemen, köstliche Rezepte, neueste Design-Highlights, sowie aktuelle Technik-Tools für Ihr Eigenheim.


FINDMYHOME.AT SUCHAGENTIN
SuchAgentin auf FindMyHome.at
Hallo, soll ich dir ähnliche Immobilien kostenfrei per E-Mail schicken?


ÄHNLICHE IMMOBILIEN
Aehnliche Immobilie - Vorschaubild 1

Traisengasse 20-22 - Moderner Lebensraum mit Donaublick... - Objektnr. 5480151

79,84 m² - 4.0 Zimmer
548700 €
PLZ: 1200

Mehr anzeigen

Aehnliche Immobilie - Vorschaubild 2

ERSTBEZUG NACH KERNSANIERUNG - AUGARTEN VOR DER TÜR!... - Objektnr. 5592480

86,00 m² - 3 Zimmer
479000 €
PLZ: 1200

Mehr anzeigen

Aehnliche Immobilie - Vorschaubild 3

Traisengasse 20-22 - Moderner Lebensraum mit Donaublick... - Objektnr. 5479531

80,10 m² - 4.0 Zimmer
527500 €
PLZ: 1200

Mehr anzeigen

Durch die Nutzung unserer Seite erklären Sie sich mit der Verwendung von Cookies zur Verbesserung Ihres Online-Erlebnisses einverstanden. Detaillierte Informationen zu diesem und weiteren Themen erhalten Sie in unserer Datenschutzerklärung.