MEIN ERGEBNIS ANPASSEN

KLUGARTOWN: Ihr sicheres Investment in naturnaher Umgebung - Objektnr. 5595667

1230
Ort
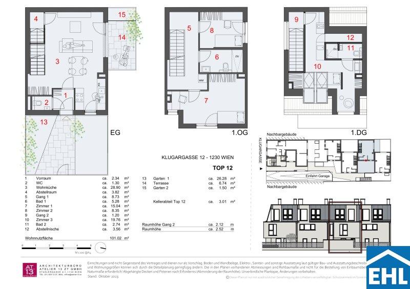
101,02 m²
Fläche
4.0
Zimmer
WEITERE MEDIEN

ECKDATEN
FindMyHome.at // Externe Immobilien-ID5595667 // 79705
ImmobilienartAnlage-Vorsorgewohnung - Eigentum
AnschriftKlugargasse
1230 Wien
Baujahr2024
Geschosse5
Fläche101,02 m²
Terrassen1 (7,00 m²)
Zimmer4.0
Bad2
WC3
 Abstellraum
Kaufpreis:€ 539.500,00
Ratenzahlung:Finanzierungsmöglichkeiten für diese Immobilie anzeigen
Provision: 3% des Kaufpreises zzgl. 20% USt.







BESCHREIBUNG

KLUGARTOWN: Ihr sicheres Investment in naturnaher Umgebung

Ihr Traumobjekt - KLUGARTOWN - Ihr nachhaltiges Investment im Grünen!

Willkommen in Klugartown - der perfekten Veranlagungsimmobilie in Liesing, unweit der charmanten Heurigen-Gegend von Perchtoldsdorf! Hier vereinen sich naturnahe Entspannung und moderner Wohnkomfort. Profitieren Sie von der steigenden Nachfrage nach Mietwohnungen und sichern Sie sich hohe Renditen mit einer klugen Vorsorgewohnung.

Leben, wo man aufatmen kann: Genießen Sie die vielfältigen Freizeitmöglichkeiten in Liesing und erfreuen sich gleichzeitig über eine perfekte Anbindung an die Innenstadt. Klugartown - ein Ort, der begeistert.

Das Projekt

Die Zukunft heißt Klugartown

Ein Wohnraum im Einklang mit besonderen Werten Das Projekt ist umweltbewusst, hochwertig und verfolgt moderne nachhaltige Ansätze. Als Basis ein langfristig überlegtes Konzept, gefolgt von einer tiefgehenden Planung bis hin zur qualitativen Bauausführung. Ein paar Highlights für die Bewohner und Natur sind die Luft-Wärmepumpe sowie der Fokus auf Niedrigenergiestandards.

  • 4 Townhouses
  • 10 Wohnungen
  • 2 4 Zimmerwohnungen
  • Wohnungsgrößen zwischen 40 und 101 m²
  • Freiflächen wie Eigengarten, Terrasse, Loggia oder Balkon
  • Kinderwagen- und Fahrradabstellraum
  • Energieeffizienz:
    • HWB ab 23,10 kWh/m²a (Klasse B)
    • fGEE ab 0,68 (Klasse A+)

Die Ausstattung

In voller Harmonie. Moderne Materialien finden elegante Räume

Einziehen und wohlfühlen - die Wohneinheiten werden schlüsselfertig übergeben und bieten ausreichend Platz für Ihren Mieter, sei es ein Single, eine Familie oder ein Pensionist, der ein neues Zuhause sucht. Für ein rundum schönes und helles zu Hause sorgen Parkett, Feinsteinzeug im Bad. All das wird perfekt abgerundet durch großzügige hofseitigen Freiflächen. Dadurch wird die Wohnanlage zu einem privaten grünen Rückzugsort.

  • Fußbodenheizung mit Luft-Wärmepumpe zuzüglich PV Module
  • 3-fach isolierte Kunststoff-Alufenster
  • Außenliegender Sonnenschutz
  • Parkettböden in Eiche
  • Feinsteinzeug im Format 30x60 in den Nassbereichen
  • Klimaanlagen auf Sonderwunsch möglich

Verschaffen Sie sich einen ersten Eindruck bei unserem Video-Rundgang!

Kaufpreise der Vorsorgewohnungen

von EUR 257.914,- bis EUR 601.914,00 ,- netto zzgl. 20% USt.

Zu erwartender Mietertrag

von ca. EUR 13,50 bis EUR 15,00 netto/m²

 

3% Kundenprovision
Fertigstellung: voraussichtlich Herbst 2024

Bei diesem Angebot handelt es sich um eine Vorsorgewohnung, die zu Vermietungszwecken erworben wird. Der angegebene Kaufpreis versteht sich daher zzgl. 20% USt. Diese Daten sind vorbehaltlich möglicher Änderungen.

Wir weisen darauf hin, dass zwischen dem Vermittler und dem zu vermittelnden Dritten ein familiäres oder wirtschaftliches Naheverhältnis besteht.

Der Vermittler ist als Doppelmakler tätig.


Infrastruktur / Entfernungen

Gesundheit
Arzt <1.000m
Apotheke <500m
Klinik <250m
Krankenhaus <1.750m

Kinder & Schulen
Schule <500m
Kindergarten <500m
Universität <5.000m
Höhere Schule <4.500m

Nahversorgung
Supermarkt <250m
Bäckerei <500m
Einkaufszentrum <1.500m

Sonstige
Geldautomat <500m
Bank <500m
Post <1.500m
Polizei <1.250m

Verkehr
Bus <250m
U-Bahn <1.500m
Straßenbahn <2.250m
Bahnhof <1.000m
Autobahnanschluss <2.250m

Angaben Entfernung Luftlinie / Quelle: OpenStreetMap

Provision: 3% des Kaufpreises zzgl. 20% USt.


Alle Details anzeigen

KONTAKT






 

Lasse dich kostenlos vom Anbieter dieser Immobilie zurückrufen.







 


 
EHL Wohnen GmbH
Andrea PÖCHHACKER; MSc
Telefonnummer anzeigen Telefon Allgemein: +4315127690411
Handy Bearbeiter: +436648373481
 
Bitte dem Makler die FindMyHome.at - ID bekanntgeben: 5595667

Bewertungen dieses Anbieters
Qualitätsmakler
Qualitätsmakler:
Netiquette
Freundlichkeit
82 %

BEWERTUNGEN DIESES ANBIETERS

 
Qualitätsmakler
UNSERE HALL OF FAME DER BESTEN ANBIETER
Qualit�tsmakler
Qualitätsmakler
2012, 2013, 2014, 2015, 2016, 2017, 2018, 2019, 2020, 2021, 22/23, 2024, 2025
Weiterempfehlung
WIRD GERNE

Freundlichkeit
BESONDERS
FREUNDLICH
Netiquette
FINDMYHOME
NETIQUETTE
Auch du kannst bewerten! 7 Tage nach deiner Anfrage erhältst du dafür von uns ein Bewertungsmail.
Alle Infos zu unseren Auszeichnungen und dem FINDMYHOME.AT Qualitätsprogramm findest du hier: Übersicht anzeigen

FINANZIERUNG
?>

Du willst wissen, wie viel dein Umzug kosten wird?

Mach gleich den kostenlosen Preisvergleich und schau, welche seriösen Anbieter in deiner Region günstig deinen Umzug organisieren


ZUM UMZUGS-VERGLEICH
-->

MYHOME BLOG
SuchAgentin auf FindMyHome.at
Unterschiedlichen Rechtsthemen, köstliche Rezepte, neueste Design-Highlights, sowie aktuelle Technik-Tools für Ihr Eigenheim.


FINDMYHOME.AT SUCHAGENTIN
SuchAgentin auf FindMyHome.at
Hallo, soll ich dir ähnliche Immobilien kostenfrei per E-Mail schicken?


ÄHNLICHE IMMOBILIEN
Aehnliche Immobilie - Vorschaubild 1

Wohnen mit Stil und Verantwortung - Objektnr. 5593370


81,11 m² - 4.0 Zimmer
459821.43 €
PLZ: 1230

Mehr anzeigen

Aehnliche Immobilie - Vorschaubild 2

Klug investieren - Rendite sichern: Ihr Objekt in Liesing... - Objektnr. 5595666

95,33 m² - 3.0 Zimmer
529500 €
PLZ: 1230

Mehr anzeigen

Aehnliche Immobilie - Vorschaubild 3

Modern wohnen am Stadtpark Atzgersdorf - Objektnr. 5593364


81,11 m² - 4.0 Zimmer
482142.86 €
PLZ: 1230

Mehr anzeigen

Durch die Nutzung unserer Seite erklären Sie sich mit der Verwendung von Cookies zur Verbesserung Ihres Online-Erlebnisses einverstanden. Detaillierte Informationen zu diesem und weiteren Themen erhalten Sie in unserer Datenschutzerklärung.