MEIN ERGEBNIS ANPASSEN

Architekten Juwel mit großer Terrasse im historischen Zentrum von Grinzing - Objektnr. 5594693

1190
Ort
153,40 m²
Fläche
3.0
Zimmer

ECKDATEN
FindMyHome.at // Externe Immobilien-ID5594693 // 19425
ImmobilienartWohnung - Eigentum
Anschrift1190 Wien
Befeuerung
Fläche153,40 m²
Terrassen1 (92,00 m²)
Zimmer3.0
Bad2
WC3
 Abstellraum
Kaufpreis:€ 1.390.000,00
Ratenzahlung:Finanzierungsmöglichkeiten für diese Immobilie anzeigen
Provision: 3% des Kaufpreises zzgl. 20% USt.







BESCHREIBUNG

Architekten Juwel mit großer Terrasse im historischen Zentrum von Grinzing

WER DAS BESONDERE SUCHT IST HIER RICHTIG!

ARCHITEKTEN JUWEL IN EHEMALIGEM HEURIGEN ENSEMBLE MIT GROSSER TERRASSE IM HISTORISCHEN ZENTRUM VON GRINZING

Die Wohnung befindet sich in einem ehemaligen Winzerhaus von ca. 1670 mitten im historischen Ortskern von Grinzing. Das historische Heurigen-Ensemble wurde 2009 vom Architektur-Büro BWM für eine Wohnnutzung hochwertig generalsaniert und mit einem Zubau erweitert. Das gesamte denkmalgeschützte Ensemble bietet neben der fanstastischen Lage eine einzigartige Atmosphäre.

Schon der Zugang in den Innenhof ist beeindruckend - Altes und Neues passen hervorragend zusammen. Dreht man sich um, ergibt sich der Blick Richtung Kirchturm, der im gesamten Ensemble eingebettet zu sein scheint.

Die zum Verkauf stehende Wohnung bietet luxuriöses Wohnen auf ca. 153 m2 Wohnfläche zuzüglich ca. 92 m2 Terrasse.  Sie verfügt über einen eigenen Eingang im Innenhof, bietet 2 Schlafzimmer mit jeweils eigenem Bad, einen großen offenen Wohnbereich, die sensationelle Terrasse und viel Stauraum.

DIE UMGEBUNG

Die Lage im historischen Kern von Grinzing ist einmalig - Geschäfte des täglichen Gebrauchs, berühmte Heurige und Restaurants wie auch der öffentliche Nahverkehr befinden sich direkt in der direkten Umgebung.
Die Endstation der Straßenbahn 38 sowie der Bus 38A halten ca. 1 Gehminute entfernt. Damit gelangt man in kurzer Zeit in die Innenstadt (Schottentor) oder zum Wandern und Aussicht genießen Richtung Kahlenberg / Cobenzl / Leopoldsberg. Umstiege sind in die U6 (Nußdorfer Straße) und U4 (Heiligenstadt) möglich.
Mit dem Auto benötigt man ca. 20 Minuten in den 1. Bezirk. Stellplätze stehen im Rahmen der Parkpickerl-Regelung (Anwohner-Parksystem) in der näheren Umgebung zur Verfügung. Ein paar Gehminuten entfernt befindet sich die Parkgarage "Grinzing".

DIE WOHNUNG

Der Zugang zur Wohnung erfolgt durch einen großzügigen Eingangsbereich, in dem ausreichend Platz für Garderobe und Kästen vorhanden ist.

Über eine schöne Holzstiege gelangt man in die "WOHN-ETAGE", in dem zwei Schlafzimmer mit jeweils eigenen Bädern und separaten WCs untergebracht sind.

In der Primary-Suite ist das Bad mit hochwertigem Sanitär (Badewanne, Dusche mit Regenduschkopf, Doppelwaschbecken, Handtuchheizkörper) und außergewöhnlichem Marmor sowie indirekter Beleuchtung ausgestattet. Auch der Waschmaschinen-Anschluss befindet sich hier, ist allerdings clever versteckt. Im Schlafbereich bietet ein Einbaukasten viel Stauraum.

Im zweiten Schlafzimmer ist die Ausstattung schlichter, aber trotzdem hochwertig und bietet im Tageslicht-En-Suite Bad ebenfalls ein Doppelwaschbecken und eine Badewanne sowie ein nochmals separat angelegtes WC

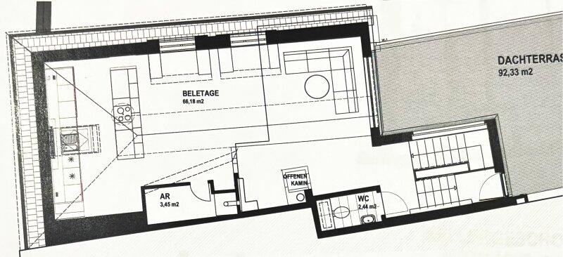
Weiter über die Holzstiege gelangt man in die vom Architekten so benannte "BEL-ETAGE", die ihrem Namen alle Ehre macht.
Schon auf den letzten Stufen erkennt man die außergewöhnliche Deckenhöhe und den beeindruckenden Schnitt des Wohn-Ess-Bereichs. An der höchsten Stelle sind es ca. 3,25m Höhe, so dass auch die zum Innenhof gelegenen Dachschrägen kaum mehr ins Gewicht fallen, sondern dem Raum vielmehr eine gemütliche Atmosphäre verleihen. Der an drei Seiten offene Kamin unterstreicht die besondere Atmosphäre des Raums.

SCHÖNER KOCHEN GEHT NICHT: Durch das Dachfenster im Küchenbereich blickt man direkt auf den Kirchturm. Auf der anderen Seite blickt man auf die Terrasse bzw ins Grüne.
Die Küche ist mit hochwertigen Miele-Geräten ausgestattet und bietet neben der üblichen Ausstattung auch einen Weinkühlschrank. Ein Abstellraum, in dem sich auch das Heizsystem befindet, rundet den Bereich ab.

Desweiteren gibt es auch auf dieser Etage ein separates WC, welches sich am Aufgang zur ca. 92 m2 großen Terrasse befindet. Die Terrasse bietet aufgrund ihrer Größe Platz für alles, wovon man Outdoor träumen kann. Richtung Norden wird der Blick von den umliegenden Bäumen geleitet, Richtung Süden kommt erneut der Kirchturm ins Blickfeld.

Zusammengefasst bietet die Wohnung:

  • Eingangsbereich mit ca. 7,5 m2
  • BelEtage mit ca. 72 m2
  • Terrasse mit ca. 92,3 m2
  • Primary-Suite mit ca. 42 m2 inkl. WC
  • Schlafzimmer mit ca. 20,4 m2 inkl. En-Suite Bad und WC
  • Stiegenbereich mit Stellfläche mit ca. 11,4 m2

DIE AUSSTATTUNG

Hier wurde durch die Architekten nicht nur eine luxuriöse, sondern auch funktionelle Wohnung geschaffen, die mit hochwertiger Ausstattung punktet:

  • Klima-Anlage im Wohnbereich
  • Moderner Kamin
  • Dunkel geöltes Nussholz-Parkett in allen Wohnräumen
  • Schiefer-Natursteinplatten in den WCs
  • Brasilianischer Marmor "Rain Forest" im Bad der Primary-Suite
  • teilweise Fußbodenheizung - separat zu steuern im Badbereich der Primary-Suite
  • Kästen aus Vollholz (Nuss) 
  • Einbauküche in weiss glänzend mit Miele Geräten
  • Weinkühlschrank
  • Terrassenbelag aus Bankirai
  • Glasfaser-Kabel

Zur Wohnung gehört ein ca. 5 m2 großes Kellerabteil und es gibt einen allgemeinen Fahrrad-Keller.

DER KAUF

Der Kaufpreis für die Wohnung beträgt 1.390.000 EURO

Besichtigungen sind ab sofort nach Absprache gern möglich.

Nebenkosten beim Kauf:

  • 3,5% Grunderwerbsteuer
  • 1,1% Eintragungsgebühren (diese entfallen evtl. momentan bei Hauptwohnsitz-Nutzung)
  • 3% Maklerprovision zuzügl. 20% USt
  • ca. 1-2% Vertragserrichtungskosten zuzügl. 20% USt und evtl. Barauslagen

Ich freue mich auf Ihre Anfragen! Bitte schicken Sie diese direkt über das Kontaktformular mit Angabe Ihrer vollständigen Kontaktdaten oder direkt an bonk@immoagency.at 

Unmittelbar nach Ihrer Anfrage erhalten Sie eine automatisierte E-Mail (bitte auch Spam Ordner prüfen). 

Für das Haus liegt ein Energieausweis mit den Kennziffern C (HWB 72,9 kWh/m2pa und fGEE 1,39) vor.

Der Vermittler ist als Doppelmakler tätig.

Klimaanlage: JA
Kabel/SAT/TV: JA
Provision: 3% des Kaufpreises zzgl. 20% USt.


Alle Details anzeigen

KONTAKT






 

Lasse dich kostenlos vom Anbieter dieser Immobilie zurückrufen.







 


 
IMMO AGENCY GmbH
Claudia Bonk
Telefonnummer anzeigen Handy Bearbeiter: +4369919479003
 
Bitte dem Makler die FindMyHome.at - ID bekanntgeben: 5594693

Bewertungen dieses Anbieters
Qualitätsmakler
Qualitätsmakler:
2015, 2016, 2017, 2019, 2020, 2021, 2023 , 2024,
Netiquette
Freundlichkeit
76 %

BEWERTUNGEN DIESES ANBIETERS

 
Qualit�tsmakler
Qualitätsmakler
2015, 2016, 2017, 2019, 2020, 2021, 22/23 2024
Weiterempfehlung
WIRD GERNE

Freundlichkeit
BESONDERS
FREUNDLICH
Netiquette
FINDMYHOME
NETIQUETTE
Auch du kannst bewerten! 7 Tage nach deiner Anfrage erhältst du dafür von uns ein Bewertungsmail.
Alle Infos zu unseren Auszeichnungen und dem FINDMYHOME.AT Qualitätsprogramm findest du hier: Übersicht anzeigen

FINANZIERUNG
?>

Du willst wissen, wie viel dein Umzug kosten wird?

Mach gleich den kostenlosen Preisvergleich und schau, welche seriösen Anbieter in deiner Region günstig deinen Umzug organisieren


ZUM UMZUGS-VERGLEICH
-->

MYHOME BLOG
SuchAgentin auf FindMyHome.at
Unterschiedlichen Rechtsthemen, köstliche Rezepte, neueste Design-Highlights, sowie aktuelle Technik-Tools für Ihr Eigenheim.


FINDMYHOME.AT SUCHAGENTIN
SuchAgentin auf FindMyHome.at
Hallo, soll ich dir ähnliche Immobilien kostenfrei per E-Mail schicken?


ÄHNLICHE IMMOBILIEN
Aehnliche Immobilie - Vorschaubild 1

Traumhafte Terrassenwohnung mit Blick ins Grüne in toller La... - Objektnr. 5589670

134,21 m² - 4.0 Zimmer
1520000 €
PLZ: 1190

Mehr anzeigen

Aehnliche Immobilie - Vorschaubild 2

Elegantes Wohnen mit Wellness-Highlight: Dachgeschoßwohnung ... - Objektnr. 5589956

144,00 m² - 3.5 Zimmer
1439000 €
PLZ: 1190

Mehr anzeigen

Aehnliche Immobilie - Vorschaubild 3

DG-Maisonette mit 45m2 Dachterrasse *** Ruhelage *** Nähe Ob... - Objektnr. 5477830

150,00 m² - 4.0 Zimmer
1249000 €
PLZ: 1190

Mehr anzeigen

Durch die Nutzung unserer Seite erklären Sie sich mit der Verwendung von Cookies zur Verbesserung Ihres Online-Erlebnisses einverstanden. Detaillierte Informationen zu diesem und weiteren Themen erhalten Sie in unserer Datenschutzerklärung.