MEIN ERGEBNIS ANPASSEN

5-Zimmer-Wohnung - Homeoffice/Büro/Ordination möglich - 2 Eingänge - im attraktiven Wildgarten-Viertel - Provisionsfrei für Käufer:innen - Objektnr. 5593859

  • Skizze
1120
Ort
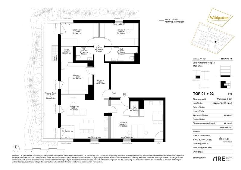
124,04 m²
Fläche
5.0
Zimmer
WEITERE MEDIEN

ECKDATEN
FindMyHome.at // Externe Immobilien-ID5593859 // 960/74400
ImmobilienartWohnung - Eigentum
AnschriftLore-Kutschera-Weg 12/1+2
1120 Wien
Terrassen1 (24,00 m²)
Zimmer5.0
Bad1
WC3
Kaufpreis:€ 549.000,00
Ratenzahlung:Finanzierungsmöglichkeiten für diese Immobilie anzeigen
Provision: PROVISIONSFREI







BESCHREIBUNG

5-Zimmer-Wohnung - Homeoffice/Büro/Ordination möglich - 2 Eingänge - im attraktiven Wildgarten-Viertel - Provisionsfrei für Käufer:innen

m Wildgarten, 12.Bezirk, sind die letzten Eigentumswohnungen bereit für ihre neuen Bewohner:innen.

Der Wildgarten ist ein vielseitiges Wohnquartier, das sowohl urbane und ländliche Qualitäten verbindet und für ein gemeinschaftliches Miteinander steht.

Das autofreie Quartier verfügt über eine sehr vielseitige Bebauung sowie zahlreichen Grünflächen, Ruhe- und Begegnungszonen, Gemeinschaftsgärten mit Hochbeeten und Naschhecken und einem offenen Freiraumkonzept. Das Nachbarschaftszentrum bietet zusätzliche Indoor-Räumlichkeiten wie Büros, Veranstaltungsräume und einer Werkstatt. Zusätzlich gibt es im Wildgarten einen Co-Working Space, wo flexibel oder auch dauerhaft Arbeitsplätze gemietet werden können.

Das Infrastrukturangebot bietet derzeit einen Billa direkt im Wohnqaurtier sowie eine Pizzeria. Für alle jene, die ein Auto besitzen, können Tiefgaragenplätze in der Sammelgarage gemietet werden. Außenliegende Parkplätze stehen entlang des Quartiers zur Verfügung. Die öffentliche Anbindung ist durch die Buslinie 63A gewährleistet (Richtung U4 Meidling Hauptstraße und U6 Niederhofstraße). Ab vorauss. 2032 soll es eine neue S-Bahn Station in der Benyastraße geben.

Highlights Bauplatz 11+20:

  • 9 Häuser in verschiedenen Größen
  • 3 Eigentumswohnungen noch verfügbar
  • 2 bis 3 Zimmer
  • ca. 49 m² bis 75 m² Wohnfläche
  • 1 Gewerbeeinheit (Büro/Ordination) mit 123 m² noch verfügbar - Verkauf im Edelrohbau
  • Balkon/ Loggia/ Terrasse/ Eigengarten im offenen Freiraumkonzept
  • autofreies Gelände
  • Tiefgaragenplätze zur Miete
  • Begegnungszonen, Gemeinschaftsgärten und Naschgärten
  • Kindergarten und Spielplätze im Grünen
  • Billa direkt am Gelände
  • Fußbodenheizung
  • provisionsfrei für Käufer:innen

Gerne präsentieren wir Ihnen den Wildgarten und die verfügbaren Wohnungen im Rahmen einer Besichtigung. Auch bei Fragen rund um die Finanzierung unterstützen wir Sie gerne und freuen uns über Ihre Anfrage!


Infrastruktur / Entfernungen

Gesundheit
Arzt <1.025m
Apotheke <825m
Klinik <1.500m
Krankenhaus <1.025m

Kinder & Schulen
Schule <575m
Kindergarten <250m
Universität <3.700m
Höhere Schule <3.500m

Nahversorgung
Supermarkt <300m
Bäckerei <500m
Einkaufszentrum <1.525m

Sonstige
Geldautomat <1.250m
Bank <1.275m
Post <1.475m
Polizei <1.500m

Verkehr
Bus <200m
U-Bahn <1.625m
Straßenbahn <1.325m
Bahnhof <1.375m
Autobahnanschluss <1.700m

Angaben Entfernung Luftlinie / Quelle: OpenStreetMap

Barrierefrei: JA
Provision: PROVISIONSFREI


Alle Details anzeigen

KONTAKT






 

Lasse dich kostenlos vom Anbieter dieser Immobilie zurückrufen.







 


 
s REAL Immobilienvermittlung GmbH
Alexander Kepka
Telefonnummer anzeigen Telefon Allgemein: +435010026330
Handy Bearbeiter: +436648181970
 
Bitte dem Makler die FindMyHome.at - ID bekanntgeben: 5593859

Bewertungen dieses Anbieters
Qualitätsmakler
Qualitätsmakler:
2015, 2016, 2017, 2018, 2019, 2020, 2021 , 2025,
Netiquette
Freundlichkeit
80 %

BEWERTUNGEN DIESES ANBIETERS

 
Qualit�tsmakler
Qualitätsmakler
2015, 2016, 2017, 2018, 2019, 2020, 2021 2025
Weiterempfehlung
WIRD GERNE

Freundlichkeit
BESONDERS
FREUNDLICH
Netiquette
FINDMYHOME
NETIQUETTE
Auch du kannst bewerten! 7 Tage nach deiner Anfrage erhältst du dafür von uns ein Bewertungsmail.
Alle Infos zu unseren Auszeichnungen und dem FINDMYHOME.AT Qualitätsprogramm findest du hier: Übersicht anzeigen

FINANZIERUNG
?>

Du willst wissen, wie viel dein Umzug kosten wird?

Mach gleich den kostenlosen Preisvergleich und schau, welche seriösen Anbieter in deiner Region günstig deinen Umzug organisieren


ZUM UMZUGS-VERGLEICH
-->

MYHOME BLOG
SuchAgentin auf FindMyHome.at
Unterschiedlichen Rechtsthemen, köstliche Rezepte, neueste Design-Highlights, sowie aktuelle Technik-Tools für Ihr Eigenheim.


FINDMYHOME.AT SUCHAGENTIN
SuchAgentin auf FindMyHome.at
Hallo, soll ich dir ähnliche Immobilien kostenfrei per E-Mail schicken?


ÄHNLICHE IMMOBILIEN
Aehnliche Immobilie - Vorschaubild 1

Stylische Dachgeschossmaisonette mit sonniger Terrasse und e... - Objektnr. 5594932

101,20 m² - 3.0 Zimmer
478000 €
PLZ: 1120

Mehr anzeigen

Aehnliche Immobilie - Vorschaubild 2

THE STROHBERG RESIDENCES – ARCHITECTURE, VIEWS, EXCLUSIVIT... - Objektnr. 5591499

55,42 m² - 2 Zimmer
537000 €
PLZ: 1120

Mehr anzeigen

Aehnliche Immobilie - Vorschaubild 3

THE STROHBERG RESIDENCES - ARCHITEKTUR, AUSSICHT, EXKLUSIVIT... - Objektnr. 5592497

55,42 m² - 2 Zimmer
537000 €
PLZ: 1120

Mehr anzeigen

Durch die Nutzung unserer Seite erklären Sie sich mit der Verwendung von Cookies zur Verbesserung Ihres Online-Erlebnisses einverstanden. Detaillierte Informationen zu diesem und weiteren Themen erhalten Sie in unserer Datenschutzerklärung.