Exklusives Seehaus am Privatsee ein Ort, an dem Träume ans Ufer kommen
In der idyllischen Seegemeinde Neudörfl eingebettet in eine ruhige, charmante Seitenstraße wartet ein Haus, das mehr ist als ein Neubau. Es ist eine Einladung zu einem Lebensgefühl, das man sonst nur aus Urlaubsmagazinen kennt. Ein Platz, an dem man morgens das Glitzern des Wassers sieht, mittags die Ruhe des Gartens genießt und abends mit einem Glas Wein am privaten Seeufer den Sonnenuntergang beobachtet.
Dieses neu errichtete Ziegelmassivhaus im Rohbau/Ausbauhaus (Außen fertig - Innen roh) bietet Ihnen nicht einfach Räume es bietet Ihnen Möglichkeiten. Es schenkt Ihnen die Freiheit, Ihr Zuhause nach Ihren eigenen Vorstellungen zu formen. Und es bietet Ihnen etwas, das unbezahlbar ist: einen privaten See mit Trinkwasserqualität, dessen Klarheit und Tiefe (zuletzt ca. 27 m) selbst in den heißesten Sommern beeindruckt.
Die wichtigsten Highlights auf einen Blick
-
Superädifikat auf einem rund 601 m² großen Pachtgrundstück
-
Direkter Zugang zum exklusiven Privatsee der Stiftung Esterházy
-
234 m² Nutzfläche auf zwei Wohnebenen
-
Großzügiger offener Wohn-/Essbereich mit 84 m²
-
Eine Küche im Wert von ca. € 40.000 wurde bereits für das Haus gekauft und wird mitgeschenkt!
-
4 Zimmer, 3 Badezimmer, 4 WCs
-
Separate Wohneinheit im Erdgeschoss (ideal für Gäste, ältere Kinder, Home-Office oder Mehrgenerationennutzung)
-
Balkon, Terrasse, Gartenhütte, Garage, Abstellraum
-
Rohbau/Ausbauhaus individuelle Fertigstellung nach eigenen Wünschen, Außen alles fertig inkl. Dach, Terrasse, Garten
-
Vorbereitung für Wärmepumpe, Klimaanlage und Photovoltaik
-
Baujahr 2023 modernes, zukunftsorientiertes Neubaukonzept
-
Beeindruckend helle Galerie im Obergeschoss
-
Faszinierender Ausblick in den Garten, luftigen Wohnbereich
-
Den See erreichen Sie durch das Hintertürchen im Garten ums Eck. Der See ist ausschließlich für Eigentümer zugänglich!
Ein Haus voller Raum, Licht und Freiheit
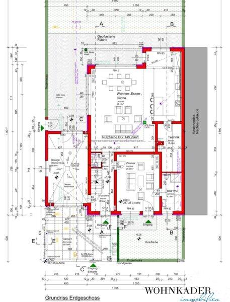
Erdgeschoss Wohnen auf großzügigen 145 m²
Der offene Wohn-/Essbereich mit über 80 m² schafft ein Lebensgefühl von Weite und Freiheit. Durch die großflächigen Fensterflächen verbindet sich der Innenraum harmonisch mit dem Garten und dem Zugang zum See.
Ein Schlafzimmer mit eigenem Badezimmer und separatem Eingang schafft eine perfekte Einliegerwohnung Ideal für Gäste, ältere Kinder, Pflegekraft oder Vermietung.
Obergeschoss Privatheit und Ruhe
Hier erwarten Sie weitere 89 m² Wohlfühlfläche, aufgeteilt in:
-
zwei große Schlafzimmer
-
eines davon mit Balkon und Blick in den Garten
-
ein Badezimmer
-
eine separate Toilette
-
eine großzügige Galerie, die das ganze Haus mit Licht durchflutet
Der Garten Ihr Tor zum See
Der Garten ist von außen und direkt vom Wohnbereich zugänglich. Hier können Sie entspannen, feiern, spielen oder einfach den Alltag hinter sich lassen. Die vorhandene Gartenhütte bietet Stauraum für alles, was man für ein Leben am Wasser braucht.
Der absolute Höhepunkt: Ihr eigener Zugang zum Privatsee, den Sie bequem durch das kleine Gartentürchen ums Eck erreichen. Keine Touristen, keine Massen. Nur Sie, Natur und Wasser.
Das Besondere an diesem See
-
Privater Grundwassersee der Esterházy-Stiftung
-
Trinkwasserähnliche Qualität
-
Außergewöhnliche Tiefe (ca. 27 m)
-
Beständige Wasserqualität selbst in Dürresommern
-
Nur für berechtigte Eigentümer zugänglich
Ein Platz, der Ruhe schenkt, Energie gibt und jeden Tag ein kleines Wunder ist.
Kosten & Konditionen
Kaufpreis (Superädifikat Gebäude): € 200.000,
Miete/Pacht des Grundstücks:
Der bestehende Mietvertrag kann übernommen werden (inkl. Vormietrecht auf weitere 10 Jahre).
Eine Küche im Wert von ca. € 40.000 wurde bereits für das Haus gekauft und wird mitgeschenkt!
Ein Seehaus, das Herzen schneller schlagen lässt und Träume zum Alltag macht
Dieses Haus ist nicht einfach ein Objekt. Es ist kein typisches Neubauprojekt. Es ist ein Ort, an dem man ankommt, durchatmet und sofort fühlt:
Hier möchte ich bleiben.
Hinweis gemäß Energieausweisvorlagegesetz: Ein Energieausweis wurde vom Eigentümer bzw. Verkäufer, nach unserer Aufklärung über die generell geltende Vorlagepflicht, sowie Aufforderung zu seiner Erstellung noch nicht vorgelegt. Daher gilt zumindest eine dem Alter und der Art des Gebäudes entsprechende Gesamtenergieeffizienz als vereinbart. Wir übernehmen keinerlei Gewähr oder Haftung für die tatsächliche Energieeffizienz der angebotenen Immobilie.
Wir weisen darauf hin, dass zwischen dem Vermittler und dem zu vermittelnden Dritten ein familiäres oder wirtschaftliches Naheverhältnis besteht.
Der Vermittler ist als Doppelmakler tätig.
Infrastruktur / Entfernungen
Gesundheit
Arzt <1.500m
Apotheke <1.500m
Klinik <3.500m
Krankenhaus <3.000m
Kinder & Schulen
Schule <1.500m
Kindergarten <2.500m
Höhere Schule <3.000m
Universität <4.500m
Nahversorgung
Supermarkt <1.000m
Bäckerei <2.000m
Einkaufszentrum <3.000m
Sonstige
Bank <1.500m
Geldautomat <1.500m
Post <3.500m
Polizei <2.000m
Verkehr
Bus <1.000m
Autobahnanschluss <2.000m
Bahnhof <2.000m
Flughafen <4.500m
Angaben Entfernung Luftlinie / Quelle: OpenStreetMap
Provision: 3% des Kaufpreises zzgl. 20% USt.