MEIN ERGEBNIS ANPASSEN

ERSTBEZUG - GENERALRENOVIERTE LUXUS-STILWOHNUNG / FIRST LETTING - FULLY RENOVATED CLASSIC LUXURY APARTMENT - Objektnr. 5592948

1010
Ort
€ 5.899,78
Gesamtkosten
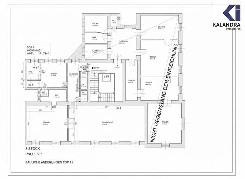
171,73 m²
Fläche
3.0
Zimmer

ECKDATEN
FindMyHome.at // Externe Immobilien-ID5592948 // 18559
ImmobilienartWohnung - Miete
Anschrift1010 Wien,Innere Stadt
Baujahr1872
Befeuerung
Stock3
Mietdauer5
Fläche171,73 m²
Zimmer3.0
Bad2
WC3
Kaution:€ 18.000,00
Brutto-Miete:€ 5.899,78
Betriebskosten (inkl. MwSt):€ 366,78
Mehrwertsteuer:€ 536,34
Monatliche Gesamtkosten:€ 5.899,78
Provision: Gemäß Erstauftraggeberprinzip bezahlt der Abgeber die Provision.




BESCHREIBUNG

ERSTBEZUG - GENERALRENOVIERTE LUXUS-STILWOHNUNG / FIRST LETTING - FULLY RENOVATED CLASSIC LUXURY APARTMENT

LUXURIÖSE ALTBAUMIETWOHNUNG am SCHMERLINGPLATZ

 

Im 4.Liftstock eines stilvollen Palaisgebäudes, in unmittelbarer Lage zu Ringstraße und dem Parlament, an einem Park gelegen, bietet diese aufwändig generalrenovierte und geräumige 3-Zimmer Wohnung folgende

 

Raumaufteilung:

Vorraum (ca. 15m²), Gäste-WC, Wirtschafts-/ Abstellraum, 76m² großes Wohn- & Esszimmer mit offener Wohnküche mit südwestseitigem Blick über den begrünen Schmerlingplatz, anschließendes Schlafzimmer (ca. 41m²) mit en-suite Badezimmer (ca. 7m²) mit walk-in Dusche, Doppelwaschtisch und WC, ein weiteres hofseitiges Schlafzimmer (ca. 20m²) mit Schrankraumnische, anschließendes Badezimmer (ca. 7m²) mit walk-in Dusche und separates WC.     

 

Ausstattung:

- generalrenovierter Erstbezug

- in den Wohnbereichen neu verlegter, massiver Eichen-Tafelparkettboden

- Sanitärräume mit großflächigen Feinsteinzeugplatten, Spiegeln, Design-Waschtischen und Design-Armaturen ausgestattet

- Designeinbauküche mit Kochinsel und Einbaugeräten (E-Herd/ Cerankochfeld mit integriertem Dunstabzug, Kühl-/Gefrierkombination, Geschirrspüler, alle Marke: BOSCH)

- decken-integrierte Raum-Klimatisierung 

- renovierter Kachelofen im großen Master-Schlafzimmer

- Gas-Etagen-Fußbodenheizung (individuell je Raum regulierbar)

- trockenes, geräumiges Kellerlagerabteil (ca. 15m²)

 

Kautionsbetrag:  Euro 18.000,-

Angeboten wird ein auf 5 Jahre befristetes Mietverhältnis mit einjährigem, mieterseitigen Kündigungsverzicht.

---------------------------------------------------------------

LUXURIOUS CLASSIC STYLE APARTMENT at "SCHMERLINGPLATZ"

 

This extensively renovated and spacious 3-room apartment, located on the 4th floor (accessible by elevator) of a stylish palatial building, in close proximity to the "Ringstrasse" and the Parliament building and bordering a park offers the following:

 

Layout:

entrance hall (approx. 15m²), guest toilet, utility/ storage room, spacious living and dining room with open-plan kitchen (approx. 76m²) and southwest-facing views over "Schmerlingplatz", adjoining bedroom (approx. 41m²) with en-suite bathroom (approx. 7 m²) featuring a walk-in shower, double vanity, and toilet, further a courtyard-facing bedroom (approx. 20m²) with a walk-in closet corner, adjoining bathroom (approx. 7m²) with a walk-in shower and separate toilet.

 

Features:

- completely renovated, brand new apartment - first letting

- in the living areas newly laid solid oak parquet flooring 

- bathrooms equipped with large-format porcelain stoneware tiles, mirrors, design washbasins and design faucets

- fitted design kitchen with built-in appliances (electric oven/ ceramic cooktop with integrated extractor hood, refrigerator/ freezer, dishwasher, all brand: "BOSCH")

- ceiling-integrated air conditioning

- renovated tiled stove in the master bedroom

- individual gas-heating system/ underfloor heating (individually adjustable in each room)

- dry, spacious basement storage unit (approx. 15 m²)

 

 

Deposit amount:   Euro 18,000,

A lease contract with a limited duration of 5-years and a one-year waiver of termination by the tenant is been offered.

 

 

 

 

 

Der Immobilienmakler erklärt, dass er entgegen dem in der Immobilienwirtschaft üblichen Geschäftsgebrauch des Doppelmaklers einseitig nur für den Vermieter tätig ist.


Infrastruktur / Entfernungen

Gesundheit
Arzt <500m
Apotheke <500m
Klinik <1.000m
Krankenhaus <1.500m

Kinder & Schulen
Schule <500m
Kindergarten <1.000m
Universität <1.000m
Höhere Schule <1.000m

Nahversorgung
Supermarkt <500m
Bäckerei <500m
Einkaufszentrum <1.000m

Sonstige
Geldautomat <500m
Bank <500m
Post <500m
Polizei <500m

Verkehr
Bus <500m
U-Bahn <500m
Straßenbahn <500m
Bahnhof <500m
Autobahnanschluss <4.000m

Angaben Entfernung Luftlinie / Quelle: OpenStreetMap

Klimaanlage: JA
Barrierefrei: JA
Provision: Gemäß Erstauftraggeberprinzip bezahlt der Abgeber die Provision.


Alle Details anzeigen

KONTAKT






 

Lasse dich kostenlos vom Anbieter dieser Immobilie zurückrufen.







 


 
KALANDRA Immobilien Robert Kalandra e.U.
Oliver Kalandra
Telefonnummer anzeigen Telefon Allgemein: +431533326912
Handy Bearbeiter: +4369910404010
 
Bitte dem Makler die FindMyHome.at - ID bekanntgeben: 5592948

Bewertungen dieses Anbieters
Netiquette

BEWERTUNGEN DIESES ANBIETERS

 
Netiquette
FINDMYHOME.AT
NETIQUETTE
Auch du kannst bewerten! 7 Tage nach deiner Anfrage erhältst du dafür von uns ein Bewertungsmail.
Alle Infos zu unseren Auszeichnungen und dem FINDMYHOME.AT Qualitätsprogramm findest du hier: Übersicht anzeigen


Du willst wissen, wie viel dein Umzug kosten wird?

Mach gleich den kostenlosen Preisvergleich und schau, welche seriösen Anbieter in deiner Region günstig deinen Umzug organisieren


ZUM UMZUGS-VERGLEICH
-->

MYHOME BLOG
SuchAgentin auf FindMyHome.at
Unterschiedlichen Rechtsthemen, köstliche Rezepte, neueste Design-Highlights, sowie aktuelle Technik-Tools für Ihr Eigenheim.


FINDMYHOME.AT SUCHAGENTIN
SuchAgentin auf FindMyHome.at
Hallo, soll ich dir ähnliche Immobilien kostenfrei per E-Mail schicken?


ÄHNLICHE IMMOBILIEN
Aehnliche Immobilie - Vorschaubild 1

PRESTIGETRÄCHTIGER STILALTBAU AM GRABEN UND NEBEN DER PETERS... - Objektnr. 5625380

178,00 m² - 5 Zimmer
5475 €
PLZ: 1010

Mehr anzeigen

Aehnliche Immobilie - Vorschaubild 2

Großzügige, neu renovierte Büro-Wohnung in repräsentativem S... - Objektnr. 5615177

193,58 m²
4949.45 €
PLZ: 1010

Mehr anzeigen

Durch die Nutzung unserer Seite erklären Sie sich mit der Verwendung von Cookies zur Verbesserung Ihres Online-Erlebnisses einverstanden. Detaillierte Informationen zu diesem und weiteren Themen erhalten Sie in unserer Datenschutzerklärung.