MEIN ERGEBNIS ANPASSEN

#SQ - ERSTBEZUG: 5-ZIMMER-ALTBAUWOHNUNG MIT BALKON IN TOPLAGE! - Objektnr. 5592626


ökologisch beheizt
  • GR saniert Variante B
  • GR saniert Variante A
  • Moods
  • Moods
  • Moods
  • Moods
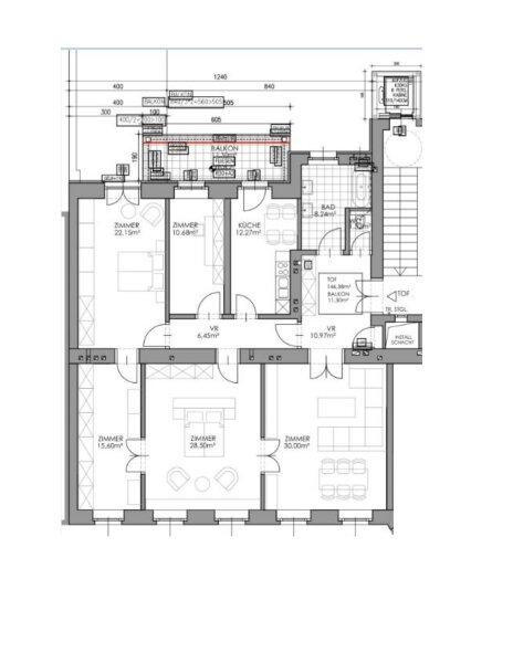
  • Grundriss
1080
Ort
146,38 m²
Fläche
5.0
Zimmer

ECKDATEN
FindMyHome.at // Externe Immobilien-ID5592626 // 21110
ImmobilienartWohnung - Eigentum
Anschrift1080 Wien
Baujahr1900
Befeuerung
Luftwärmepumpe
Stock2
Fläche146,38 m²
Zimmer5.0
Bad4
WC3
 Abstellraum
Kaufpreis:€ 2.128.500,00
Ratenzahlung:Finanzierungsmöglichkeiten für diese Immobilie anzeigen
Provision: 3% vom KP zzgl. gesetzl. MwSt.







BESCHREIBUNG

#SQ - ERSTBEZUG: 5-ZIMMER-ALTBAUWOHNUNG MIT BALKON IN TOPLAGE!

Zum Verkauf gelangt eine generalsanierte 5-Zimmer-Wohnung, ca. 146,38m² mit Balkon, ca. 11,30m².
Die Wohnung befindet sich im 2. Obergeschoß in einem schönen Gründerzeithaus mit gegliederter Fassade.
Das Gebäude wird demnächst umfassend saniert.

Folgende Arbeiten an den Allgemeinteilen werden durchgeführt und sind im Kaufpreis enthalten:

  • Sanierung der Straßen und Hoffassade
  • Einbau eines Personenaufzugs
  • Sanierung des Stiegenhauses
  • Sanierung des Haustores und Hoftores
  • Sanierung/Begrünung Hof (Großteil ist nicht Allgemeinfläche)
  • Sanierung der Bleche
  • Sanierung der hofseitigen Fenster bzw. Herstellung der Balkontüren
  • Sanierung des Kellers (nur zum Teil Allgemeinfläche)
  • Sanierung des Stiegenhauses und Eingangsbereiches
  • Erneuerung des Daches (im Zuge des DG Ausbaus)
  • Erneuerung der Steigleitungsinfrastruktur, (Elektro, Wasser, Abwasser)
  • Herstellen einer Luftwärmepumpe zur Versorgung des gesamten Gebäudes (in der Variante 1. Zuleitung bis vor die Wohnungen gilt auch für Wasser und Elektro neu)
  • Herstellen neuer Balkone gem. Baubewilligung

Die Bauarbeiten werden bis ca. Ende 2026 abgeschlossen sein.

Eckdaten im Überblick:

Gewichtete WNFL: ca. 152,03m²
Wohnfläche: ca. 146,38m² 
Balkon: ca. 11,30m²
Zimmer: 5
Küche: Anschlüsse
Bad: 4
WC: 3
Abstellraum: 1
Lift: ja

Video Link zur Wohnung: https://storage.justimmo.at/video/1080p/6zp8nv0RozwoIb3sz4iz92.mp4

Raumaufteilung:
Vorraum
Großzügiges Wohnzimmer, ca. 51m² mit Wohnküche
Balkon
3 Schlafzimmer mit en-suite Bad (Badewanne/ Dusche, Doppelwaschbecken und WC)
1 weiteres Schlafzimmer sowie
1 weiteres Bad mit Dusche/ WC
Abstellraum

Ausstattung:
Vollholzparkettböden
Fussbodenheizung
Klimaanlage
Flügeltüren
Luftwärmepumpe

Kosten:
Kaufpreis: € 2.128.500,--
Provision: 3% vom KP zzgl. gesetzl. MwSt.

Es besteht die Möglichkeit die Wohnung auch im derzeitigen Zustand zu erwerben.

Weitere Wohnungen stehen im Haus zum Verkauf! Gerne stehen wir Ihnen für nähere Informationen zur Verfügung.

Hinweis gemäß Energieausweisvorlagegesetz: Ein Energieausweis wurde vom Eigentümer bzw. Verkäufer, nach unserer Aufklärung über die generell geltende Vorlagepflicht, sowie Aufforderung zu seiner Erstellung noch nicht vorgelegt. Daher gilt zumindest eine dem Alter und der Art des Gebäudes entsprechende Gesamtenergieeffizienz als vereinbart. Wir übernehmen keinerlei Gewähr oder Haftung für die tatsächliche Energieeffizienz der angebotenen Immobilie.

Wir weisen darauf hin, dass zwischen dem Vermittler und dem zu vermittelnden Dritten ein familiäres oder wirtschaftliches Naheverhältnis besteht.

Der Vermittler ist als Doppelmakler tätig.


Infrastruktur / Entfernungen

Gesundheit
Arzt <500m
Apotheke <500m
Klinik <1.000m
Krankenhaus <1.000m

Kinder & Schulen
Schule <500m
Kindergarten <500m
Universität <500m
Höhere Schule <500m

Nahversorgung
Supermarkt <500m
Bäckerei <500m
Einkaufszentrum <1.000m

Sonstige
Geldautomat <500m
Bank <500m
Post <500m
Polizei <500m

Verkehr
Bus <500m
U-Bahn <500m
Straßenbahn <500m
Bahnhof <500m
Autobahnanschluss <4.000m

Angaben Entfernung Luftlinie / Quelle: OpenStreetMap

Klimaanlage: JA
Provision: 3% des Kaufpreises zzgl. 20% USt.


Alle Details anzeigen

KONTAKT






 

Lasse dich kostenlos vom Anbieter dieser Immobilie zurückrufen.







 


 
STADTQUARTIER Home GmbH
Mona Taghavi
Telefonnummer anzeigen Telefon Allgemein: +436502311113
Handy Bearbeiter: +436502311113
 
Bitte dem Makler die FindMyHome.at - ID bekanntgeben: 5592626

Bewertungen dieses Anbieters
Qualitätsmakler
Qualitätsmakler:
2013, 2018, 2019, 2021,
Netiquette
Freundlichkeit

BEWERTUNGEN DIESES ANBIETERS

 
Qualit�tsmakler
Qualitätsmakler
2013, 2018, 2019, 2021
Freundlichkeit
BESONDERS
FREUNDLICH
Netiquette
FINDMYHOME
NETIQUETTE
Auch du kannst bewerten! 7 Tage nach deiner Anfrage erhältst du dafür von uns ein Bewertungsmail.
Alle Infos zu unseren Auszeichnungen und dem FINDMYHOME.AT Qualitätsprogramm findest du hier: Übersicht anzeigen

FINANZIERUNG
?>

Du willst wissen, wie viel dein Umzug kosten wird?

Mach gleich den kostenlosen Preisvergleich und schau, welche seriösen Anbieter in deiner Region günstig deinen Umzug organisieren


ZUM UMZUGS-VERGLEICH
-->

MYHOME BLOG
SuchAgentin auf FindMyHome.at
Unterschiedlichen Rechtsthemen, köstliche Rezepte, neueste Design-Highlights, sowie aktuelle Technik-Tools für Ihr Eigenheim.


FINDMYHOME.AT SUCHAGENTIN
SuchAgentin auf FindMyHome.at
Hallo, soll ich dir ähnliche Immobilien kostenfrei per E-Mail schicken?


Durch die Nutzung unserer Seite erklären Sie sich mit der Verwendung von Cookies zur Verbesserung Ihres Online-Erlebnisses einverstanden. Detaillierte Informationen zu diesem und weiteren Themen erhalten Sie in unserer Datenschutzerklärung.