MEIN ERGEBNIS ANPASSEN

NEU! TOP-LAGE ZIEGELMASSIVHÄUSER KELLER ERDGESCHOSS OBERGESCHOSS GARTEN TERRASSE PKW-STELLPLATZ - Objektnr. 5592056


ökologisch beheizt
3400
Ort
120,05 m²
Fläche
5.0
Zimmer

ECKDATEN
FindMyHome.at // Externe Immobilien-ID5592056 // 26774
ImmobilienartHaus - Eigentum
Anschrift/2
3400 Klosterneuburg
Baujahr2024
Befeuerung
Luftwärmepumpe
Geschosse4
Fläche120,05 m²
Terrassen2 (35,00 m²)
Zimmer5.0
Kaufpreis:€ 999.000,00
Ratenzahlung:Finanzierungsmöglichkeiten für diese Immobilie anzeigen
Provision: 3% des Kaufpreises zzgl. 20% USt.







BESCHREIBUNG

NEU! TOP-LAGE ZIEGELMASSIVHÄUSER KELLER ERDGESCHOSS OBERGESCHOSS GARTEN TERRASSE PKW-STELLPLATZ

  • PROJEKT:

Zum Verkauf gelangen 6 Doppelhaushälften, welche SCHLÜSSELFERTIG und in TOP Baumeisterqualität (100% Zigelmassiv!) hergestellt sind!

Die unverwechselbaren Doppelhäuser (Baujahr: 2024-2025) erfüllen alle technischen und konstruktiven Standards zeitgemäßen Bauens, bieten durchdachte Grundrisse und entsprechen allen Bedürfnissen des modernen Wohnens! 

______

  • KELLER + ERDGESCHOSS + OBERGESCHOSS + GARTEN + TERRASSE + PKW STELLPLATZ:

______

HAUS 1: Gesamtfläche: ca. 292,57 m2

  • Wohnnutzfläche: ca.121,32 m², 5 ZIMMER
  • Gartenfläche: ca. 98,10 m²  
  • Terrassenfläche (EG): ca. 18,15 m²
  • Terrassenfläche (DG): ca. 11,63 m² 
  • PKW Garagenplatz: ca. 28 m²
  • AR 5,69 m²
  • Technikraum ca. 10 m²
  • Kaufpreis: EUR 999.000 (Schlüsselfertig!)

______

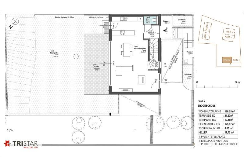
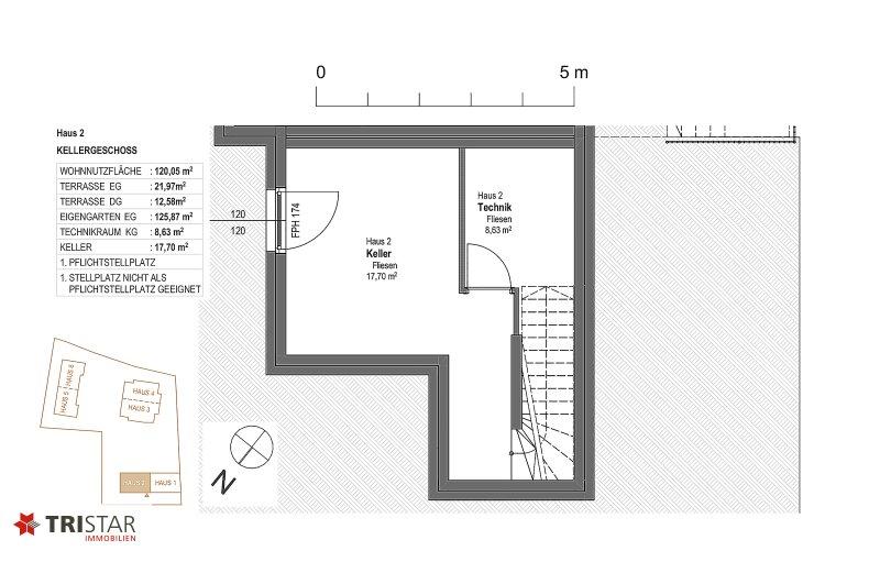
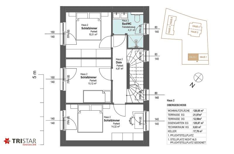
HAUS 2: Gesamtfläche: ca. 307 m2

  • Wohnnutzfläche: ca.120,05 m², 5 ZIMMER + KELLER mit Fußbodenheizung
  • Gartenfläche: ca. 126 m²  
  • Terrasse EG: ca. 22 m²
  • Terrasse DG: ca. 12,58 m² 
  • PKW Parkplatz ca. 12,50 m²
  • Keller: ca. 18 m²
  • Technikraum: ca. 8,63 m²
  • Kaufpreis: EUR 999.000 (Schlüsselfertig!)

______

HAUS 3: Gesamtfläche: ca. 231 m2

  • Wohnnutzfläche: ca.135 m², 5 ZIMMER
  • Gartenfläche: ca. 48,40 m²  
  • Terrasse EG: ca. 14,57 m2
  • Terrassen DG: ca. 14,24 m² + 6,60 m² 
  • PKW Parkplatz ca. 12,50 m²
  • Kaufpreis: EUR 919.000 (Schlüsselfertig!)

______

HAUS 4: Gesamtfläche: ca. 255,65 m2

  • Wohnnutzfläche: ca. 139,09 m², 5 ZIMMER
  • Gartenfläche: ca. 67,22 m2 
  • Terrassenfläche (EG): ca. 16,22 m²
  • Terrassenfläche (DG): ca. 20,62 m² 
  • PKW Parkplatz ca. 12,50 m²
  • Kaufpreis: EUR 919.000 (Schlüsselfertig!)

______

HAUS 5: Gesamtfläche: ca. 308,30 m2

  • Wohnnutzfläche: ca.111,08 m², 4 ZIMMER + KELLER mit Fußbodenheizung
  • Keller ca. 56 m²
  • Gartenfläche: ca. 87,19 m2 
  • Terrassen EG: ca. 18,03 m2
  • Terrasse DG: ca. 11 m² 
  • PKW Parkplatz ca. 25 m²
  • Kaufpreis: EUR 899.000 (Schlüsselfertig!)

______

HAUS 6: Gesamtfläche: ca. 336 m2

  • Wohnnutzfläche: ca. 111,78 m², 4 ZIMMER + 49,11 m² KELLER (mit Fußbodenheizung)!
  • Keller ca. 49,11 m²
  • Gartenfläche: ca. 116 m2 
  • Terrassen EG: ca. 23,35 m2
  • Terrasse DG: ca. 11 m² 
  • PKW Parkplatz ca. 25 m²
  • Kaufpreis: EUR 899.000 (Schlüsselfertig!)

______

  • 6 PKW STELLPLÄTZE:

Für jedes Haus, steht ein PKW STELLPLATZ zu Verfügung (Eigentum!) und ist bereits im Kaufpreis inkludiert!

______

  • KEIN BAURECHT, KEINE PACHT:

Sie erwerben hier IHR EIGENHEIM und EIGENTUMSGRUND!

______

  • GEMÜTLICH UND HOCHWERTIG:

Für ein gemütliches Raumklima sorgt eine Fußbodenheizung, welche von einer höchst effizienten LUFT/WASSER WÄRMEPUMPE (Warmwasseraufbereitung ohne Schadstoffausstoß!) versorgt wird.

So gibt keine sperrigen und störenden Heizkörper und somit steht Ihnen für die Gestaltung Ihrer Wohnbereiche mehr Platz zur Verfügung!

Weiters zählen zur hochwertigen Ausstattung: KLIMAANLAGE, Eichenparkettböden, keramischer Fliesen-Belag/Feinsteinzeug, Garten mit Rollrasen, etc.

______

  • ZIEGELMASSIV - QUALITÄT, DIE GENERATIONEN ÜBERDAUERT!

Die Ziegelbauweise kombiniert Tradition mit modernen Vorteilen. Dank ihrer hohen Wärmespeicherkapazität und den speziellen Eigenschaften von Ziegeln, wie Poren und Luftkammern, wird ein herausragender Wärmeschutz mit Top U-Werten erreicht. Dies sorgt für ein stets angenehmes Raumklima, wobei Ziegel überschüssige Feuchtigkeit aufnehmen und wieder abgeben können. Die Beschaffenheit des Ziegels bietet zudem exzellenten Schallschutz und Brandsicherheit.

Im Vergleich zu trendigen, exotischen" Materialien ist die Ziegelmassivbauweise deutlich langlebiger und stellt somit eine überlegene Geldanlage und Investition für die Zukunft dar.

______

TOP LAGE:

Ein detailliertes LAGEEXPOSÉ (65 Seiten!) erfolgt umgehend nach Anfrage!

______

  • VERMITTLUNGSPROVISION / DOPPELMAKLERTÄTIGKEIT:

Der Ordnung halber wird darauf hingewiesen, dass die Vermittlungsprovision 3 % des Kaufpreises zuzüglich 20 % USt. (insgesamt 3,6 %) beträgt und mit Zustandekommen des vermittelten Rechtsgeschäfts (Annahme des Kaufanbots ohne aufschiebende Bedingungen durch den Verkäufer) fällig wird. Der Makler ist als Doppelmakler tätig.

  • NEU! TOP-LAGE ZIEGELMASSIVHÄUSER KELLER ERDGESCHOSS OBERGESCHOSS GARTEN TERRASSE PKW-STELLPLATZ

Hinweis gemäß Energieausweisvorlagegesetz: Ein Energieausweis wurde vom Eigentümer bzw. Verkäufer, nach unserer Aufklärung über die generell geltende Vorlagepflicht, sowie Aufforderung zu seiner Erstellung noch nicht vorgelegt. Daher gilt zumindest eine dem Alter und der Art des Gebäudes entsprechende Gesamtenergieeffizienz als vereinbart. Wir übernehmen keinerlei Gewähr oder Haftung für die tatsächliche Energieeffizienz der angebotenen Immobilie.

Wir weisen darauf hin, dass zwischen dem Vermittler und dem zu vermittelnden Dritten ein familiäres oder wirtschaftliches Naheverhältnis besteht.

Der Vermittler ist als Doppelmakler tätig.

Klimaanlage: JA
Provision: 3% des Kaufpreises zzgl. 20% USt.


Alle Details anzeigen

KONTAKT






 

Lasse dich kostenlos vom Anbieter dieser Immobilie zurückrufen.







 


 
TRISTAR Immobilien
TRISTAR Immobilien
Telefonnummer anzeigen Handy Bearbeiter: +436769017374
 
Bitte dem Makler die FindMyHome.at - ID bekanntgeben: 5592056

Bewertungen dieses Anbieters
Qualitätsmakler
Qualitätsmakler:
2017, 2019, 2020, 2021,
Netiquette
Freundlichkeit

BEWERTUNGEN DIESES ANBIETERS

 
Qualit�tsmakler
Qualitätsmakler
2017, 2019, 2020, 2021
Freundlichkeit
BESONDERS
FREUNDLICH
Netiquette
FINDMYHOME
NETIQUETTE
Auch du kannst bewerten! 7 Tage nach deiner Anfrage erhältst du dafür von uns ein Bewertungsmail.
Alle Infos zu unseren Auszeichnungen und dem FINDMYHOME.AT Qualitätsprogramm findest du hier: Übersicht anzeigen

FINANZIERUNG
?>

Du willst wissen, wie viel dein Umzug kosten wird?

Mach gleich den kostenlosen Preisvergleich und schau, welche seriösen Anbieter in deiner Region günstig deinen Umzug organisieren


ZUM UMZUGS-VERGLEICH
-->

MYHOME BLOG
SuchAgentin auf FindMyHome.at
Unterschiedlichen Rechtsthemen, köstliche Rezepte, neueste Design-Highlights, sowie aktuelle Technik-Tools für Ihr Eigenheim.


FINDMYHOME.AT SUCHAGENTIN
SuchAgentin auf FindMyHome.at
Hallo, soll ich dir ähnliche Immobilien kostenfrei per E-Mail schicken?


ÄHNLICHE IMMOBILIEN
Aehnliche Immobilie - Vorschaubild 1

JETZT BAUSTELLE BESICHTIGEN | Exklusives Townhouse im Zentru... - Objektnr. 5470982

136,11 m² - 5.0 Zimmer
988000 €
PLZ: 3400

Mehr anzeigen

Aehnliche Immobilie - Vorschaubild 2

NEU! TOP-LAGE ZIEGELMASSIVHÄUSER KELLER ERDGESCHOSS OB... - Objektnr. 5592054

139,09 m² - 5.0 Zimmer
919000 €
PLZ: 3400

Mehr anzeigen

Aehnliche Immobilie - Vorschaubild 3

JETZT BAUSTELLE BESICHTIGEN | ERSTBEZUG TOWNHOUSE IM ZENTRUM... - Objektnr. 5490314

136,11 m² - 5.0 Zimmer
995000 €
PLZ: 3400

Mehr anzeigen

Durch die Nutzung unserer Seite erklären Sie sich mit der Verwendung von Cookies zur Verbesserung Ihres Online-Erlebnisses einverstanden. Detaillierte Informationen zu diesem und weiteren Themen erhalten Sie in unserer Datenschutzerklärung.