MEIN ERGEBNIS ANPASSEN

VILLA BLOOM 2 - Exklusives Wohnen mit Stil! JETZT BAUSTART! - Objektnr. 5591178


ökologisch beheizt
1230
Ort
121,04 m²
Fläche
5.0
Zimmer

ECKDATEN
FindMyHome.at // Externe Immobilien-ID5591178 // 5836
ImmobilienartHaus - Eigentum
Anschrift1230 Wien
Baujahr2025
Befeuerung
Luftwärmepumpe
Geschosse2
Fläche121,04 m²
Grundfläche311,79 m²
Terrassen1 (25,00 m²)
Zimmer5.0
WC2
 Abstellraum
Kaufpreis:€ 1.150.000,00
Ratenzahlung:Finanzierungsmöglichkeiten für diese Immobilie anzeigen
Provision: 3% des Kaufpreises zzgl. 20% USt.







BESCHREIBUNG

VILLA BLOOM 2 - Exklusives Wohnen mit Stil! JETZT BAUSTART!

Willkommen in einem exklusiven Wohnprojekt in Wien Mauer- VILLA BLOOM 2!

Unsere luxuriösen Gartenvillen, eingebettet in eine bezaubernde, aufblühende Umgebung, vereinen elegante Architektur mit einer komfortablen Atmosphäre. Diese geräumigen Villen bieten den perfekten Rückzugsort für Familie und Freunde, mit reichlich Platz zum Entspannen und Unterhalten.

Unsere Gartenvillen verkörpern ein besonderes Lebensgefühl und symbolisieren das Aufblühen zu etwas Neuem.

Hier erwartet Sie modernes Wohnen in einer erstklassigen Umgebung, die keine Wünsche offenlässt. Die neu errichteten Doppelhäuser verbinden stilvolle Architektur mit durchdachter Raumaufteilung und bieten ein Zuhause, das Komfort, Funktionalität und Lebensqualität vereint.

Durchdachte Raumaufteilung VILLA BLOOM 2

Wohnbereich:

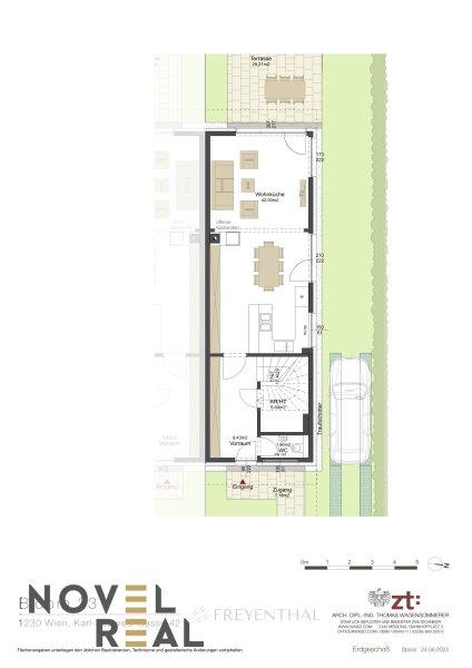
Jedes der beiden Doppelhäuser verfügt über ein großzügiges und sonniges Wohnzimmer im Erdgeschoss, das Ihnen viel Platz zum Entspannen und Genießen bietet. Die offene Wohnküche ist der ideale Treffpunkt für Familie und Freunde und lädt zu gemeinsamen Kochabenden ein. Ein Abstellraum, eine Toilette und ein Vorraum komplettieren das Erdgeschoss und bieten Ihnen zusätzlichen Komfort und Funktionalität.

Garten:

Ein Highlight der Immobilie ist der ruhige und sonnige Garten, der Ihnen mit ca. 200 m² viel Platz im Freien bietet. Hier können Sie die warmen Sonnenstrahlen genießen, Ihre Kinder spielen lassen oder gemütliche Grillabende mit Freunden veranstalten. Ein PKW-Stellplatz steht Ihnen ebenfalls zur Verfügung, sodass Sie bequem und sicher Ihr Fahrzeug abstellen können.

  • Eine vergrößerte Terrasse für mehr Gartenkomfort.
  • Zwischen den beiden Häusern befinden sich zwei Gartenhäuser, die neben viel Stauraum auch optimalen Schallschutz und Privatsphäre bieten.
  • Auf Wunsch ist ein Pool möglich.

Obergeschoss:

  • Perfekte Raumgrößen für individuellen Komfort.
  • Maßgeschneiderte Einrichtung in allen Zimmern.
  • Wir haben großen Wert auf ausreichend Stauraum und Schränke gelegt.
  • Luxuriös vergrößertes Badezimmer.
  • Reichlich Platz für anspruchsvolle Aufbewahrungslösungen.

 

Fakten auf einen Blick:

  • Einladender Eingangsbereich mit großzügiger Garderobe.
  • Schönes Entree in die offene Wohnküche mit Gartenblick.
  • Durchdachte Küchenplanung.
  • Viel Platz für alle wichtigen Dinge im Essbereich.
  • Entspannende Wohlfühloase im Wohnzimmer mit offenem Kamin.
  • Durchdachte Stauraumlösungen für optimalen Komfort.
  • Zusätzliches Badezimmer und gut zugängliches WC.

Highlights für Sie:

  • Unser Niedrigenergiehaus-Konzept senkt Ihren Energieverbrauch.
  • Die Luft Wasser Wärmepumpe spart Heizungskosten.
  • Saubere eigene Energie mit Photovoltaik auf dem Dach.
  • Ein extensiv begrüntes Flachdach als natürliche Klimaanlage.
  • Frische Luft durch innovative Sommernachtskühlung.
  • E Autoladestation.
  • Raffstores mit Windwächter für alle Fenster.

Genießen Sie auch die Vielfalt der heimischen Gastronomie in der Umgebung. Bekannte Heurige und zahlreiche gute Restaurants bieten Ihnen eine große Auswahl an kulinarischen Köstlichkeiten. Hier können Sie gemütliche Abende mit Ihren Liebsten verbringen und sich verwöhnen lassen.

Die neu errichteten Doppelhäuser in Wien Mauer vereinen modernes Wohnen, erstklassige Ausstattung und eine traumhafte Lage. Nutzen Sie diese einzigartige Gelegenheit, um sich Ihren Wohntraum zu erfüllen. Kontaktieren Sie uns noch heute und vereinbaren Sie einen Besichtigungstermin. Wir freuen uns darauf, Ihnen diese beeindruckende Immobilie persönlich zu präsentieren! Die Häuser können jeweils im Basispaket, Belags- oder Schlüsselfertig gekauft werden. Sollten wir Ihr Interesse geweckt haben, so ersuchen wir Sie in aller Höflichkeit um Ihre Anfrage über dieses Webportal. Wir senden Ihnen dann zeitnah sämtliche Unterlagen, Bau- & Ausstattungsbeschreibungen, Pläne und Fotos zu.

 

Lage

Die Lage in Wien Mauer überzeugt durch ihre Nähe zur Natur und die gleichzeitig hervorragende städtische Infrastruktur. Einkaufsmöglichkeiten, der Lainzer Tiergarten als Naherholungsgebiet sowie zahlreiche Heurige und Restaurants bieten eine perfekte Kombination aus Alltag und Freizeit.

Die Infrastruktur ist hervorragend: Zahlreiche Einkaufsmöglichkeiten decken den täglichen Bedarf ab, und die Anbindung an das öffentliche Verkehrsnetz ermöglicht eine schnelle Erreichbarkeit des Wiener Stadtzentrums. Darüber hinaus bietet die Umgebung eine Vielzahl an Freizeitmöglichkeiten, von kulinarischen Erlebnissen in lokalen Restaurants bis hin zu kulturellen Veranstaltungen.

Insgesamt bietet Wien Mauer eine perfekte Symbiose aus naturnahem Wohnen und städtischem Komfort, ideal für alle, die das Beste aus beiden Welten suchen.

 

Nutzen Sie die Gelegenheit, diese Traumhäuser zu entdecken, und kontaktieren Sie uns noch heute für weitere Informationen oder zur Vereinbarung eines Besichtigungstermins. Wir freuen uns, Ihnen alle Unterlagen und Details persönlich vorzustellen.

 

Aus rechtlichen Gründen und aufgrund der großen Nachfragen bitten wir um Verständnis, dass wir nur Anfragen per Mail beantworten, wenn Sie uns Ihren vollständigen Namen samt Mailadresse und Mobilnummer bekanntgeben.

Für die Vereinbarung eines Termins kontaktieren Sie Frau Vassilena Valkova telefonisch unter +43 650 58 70 011 oder per E-Mail: vv@novel-real.at.

Alle Angaben basieren alleinig auf Informationen, die uns von unserem Auftraggeber übermittelt wurden.Trotz aller Sorgfalt können wir für die Richtigkeit, Vollständigkeit und Aktualität dieser Angaben keine Gewähr übernehmen. Jegliche Weitergabe der übermittelten Daten an Dritte ist nicht gestattet. Der Maklervertrag kommt durch schriftliche Vereinbarung oder Inanspruchnahme unserer Maklertätigkeit zustande. Der Makler kann als Doppelmakler tätig werden. Sollte das von uns nachgewiesene Objekt bereits bekannt sein, teilen sie uns dies bitte unverzüglich mit.

Die Maklergebühr ist ausschließlich bei Zustandekommen eines gültigen Rechtsgeschäfts fällig und vom Mieter/Käufer an Novel Real Immobilien GmbH zu zahlen. Es wird ausdrücklich auf die Nebenkostenübersicht hingewiesen. Bei den Visualisierungen und Abbildungen der Immobilie (insbesondere von Inneneinrichtungen) kann es sich um Symbolfotos bzw. fototechnisch optimierte Fotos handeln. Hiermit weisen wir auf das Bestehen eines familiären und/oder wirtschaftlichen Naheverhältnisses zum Vermieter/Verkäufer hin. 

 

Wir weisen darauf hin, dass zwischen dem Vermittler und dem zu vermittelnden Dritten ein familiäres oder wirtschaftliches Naheverhältnis besteht.

Der Vermittler ist als Doppelmakler tätig.


Infrastruktur / Entfernungen

Gesundheit
Arzt <500m
Apotheke <1.000m
Klinik <1.500m
Krankenhaus <500m

Kinder & Schulen
Schule <1.000m
Kindergarten <500m
Universität <3.500m
Höhere Schule <5.000m

Nahversorgung
Supermarkt <500m
Bäckerei <1.000m
Einkaufszentrum <2.500m

Sonstige
Geldautomat <1.000m
Bank <1.500m
Post <1.500m
Polizei <2.500m

Verkehr
Bus <500m
Straßenbahn <500m
U-Bahn <3.000m
Bahnhof <1.500m
Autobahnanschluss <3.000m

Angaben Entfernung Luftlinie / Quelle: OpenStreetMap

Klimaanlage: JA
Kabel/SAT/TV: JA
Swimmingpool: JA
Provision: 3% des Kaufpreises zzgl. 20% USt.


Alle Details anzeigen

KONTAKT






 

Lasse dich kostenlos vom Anbieter dieser Immobilie zurückrufen.







 


 
Novel Real Immobilien GmbH
Vassilena Valkova
Telefonnummer anzeigen Telefon Allgemein: +43136140140
Handy Bearbeiter: +436505870011
 
Bitte dem Makler die FindMyHome.at - ID bekanntgeben: 5591178

Bewertungen dieses Anbieters
Qualitätsmakler
Qualitätsmakler:
2019,
Netiquette
Freundlichkeit
81 %

BEWERTUNGEN DIESES ANBIETERS

 
Qualit�tsmakler
Qualitätsmakler
2019
Antwortzeit
ø 48h ANTWORT
Weiterempfehlung
WIRD GERNE

Freundlichkeit
BESONDERS
FREUNDLICH
Netiquette
FINDMYHOME
NETIQUETTE
Auch du kannst bewerten! 7 Tage nach deiner Anfrage erhältst du dafür von uns ein Bewertungsmail.
Alle Infos zu unseren Auszeichnungen und dem FINDMYHOME.AT Qualitätsprogramm findest du hier: Übersicht anzeigen

FINANZIERUNG
?>

Du willst wissen, wie viel dein Umzug kosten wird?

Mach gleich den kostenlosen Preisvergleich und schau, welche seriösen Anbieter in deiner Region günstig deinen Umzug organisieren


ZUM UMZUGS-VERGLEICH
-->

MYHOME BLOG
SuchAgentin auf FindMyHome.at
Unterschiedlichen Rechtsthemen, köstliche Rezepte, neueste Design-Highlights, sowie aktuelle Technik-Tools für Ihr Eigenheim.


FINDMYHOME.AT SUCHAGENTIN
SuchAgentin auf FindMyHome.at
Hallo, soll ich dir ähnliche Immobilien kostenfrei per E-Mail schicken?


ÄHNLICHE IMMOBILIEN
Aehnliche Immobilie - Vorschaubild 1

Haus in Ruhelage I Eigengarten I Erstbezug - A\ - Objektnr. 5591213

105,58 m² - 4.0 Zimmer
995000 €
PLZ: 1230

Mehr anzeigen

Aehnliche Immobilie - Vorschaubild 2

1230, Sperkergasse, In Maurer Grünlage beim Rosenhügel, Dopp... - Objektnr. 5465316

125,71 m² - 4 Zimmer
1059900 €
PLZ: 1230

Mehr anzeigen

Aehnliche Immobilie - Vorschaubild 3

Exklusives Haus mit Pool in Mauer, Wien Liesing - Objektnr. 5512742

136,27 m² - 5.0 Zimmer
1240000 €
PLZ: 1230

Mehr anzeigen

Durch die Nutzung unserer Seite erklären Sie sich mit der Verwendung von Cookies zur Verbesserung Ihres Online-Erlebnisses einverstanden. Detaillierte Informationen zu diesem und weiteren Themen erhalten Sie in unserer Datenschutzerklärung.