Liegenschaft der Extraklasse - Perfekt revitalisiertes Stadthaus mit Charme im Herzen Wiener Neustadts - Objektnr. 5590631
ECKDATEN
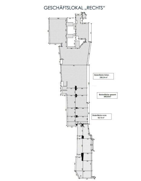
BESCHREIBUNG
KONTAKT
Lasse dich kostenlos vom Anbieter dieser Immobilie zurückrufen.
WINEGG Makler GmbH
Katrin Kuba
Katrin Kuba
Telefonnummer anzeigen
Telefon Allgemein: +4313157280
Handy Bearbeiter: +436765414073
Bitte dem Makler die FindMyHome.at - ID bekanntgeben: 5590631
Handy Bearbeiter: +436765414073
Bitte dem Makler die FindMyHome.at - ID bekanntgeben: 5590631
BEWERTUNGEN DIESES ANBIETERS
Qualitätsmakler
2015, 2017, 2025
2015, 2017, 2025
WIRD GERNE
WEITEREMPFOHLEN
WEITEREMPFOHLEN
BESONDERS
FREUNDLICH
FREUNDLICH
FINDMYHOME.AT
NETIQUETTE
NETIQUETTE
Auch du kannst bewerten! 7 Tage nach deiner Anfrage erhältst du dafür von uns ein Bewertungsmail.
Alle Infos zu unseren Auszeichnungen und dem FINDMYHOME.AT Qualitätsprogramm findest du hier: Übersicht anzeigen
Alle Infos zu unseren Auszeichnungen und dem FINDMYHOME.AT Qualitätsprogramm findest du hier: Übersicht anzeigen
FINANZIERUNG
Du willst wissen, wie viel dein Umzug kosten wird?
Mach gleich den kostenlosen Preisvergleich und schau, welche seriösen Anbieter in deiner Region günstig deinen Umzug organisieren
ZUM UMZUGS-VERGLEICH

































