MEIN ERGEBNIS ANPASSEN

Gartenwohnung in Stockerau und dazu leistbares Wohnen - Objektnr. 5590174

  • Projekt Stockerau
  • Rendering Wohnraum
  • Rendering Wohnraum
  • Innenhof
  • 4.10
2000
Ort
€ 1.096,41
Gesamtkosten
62,31 m²
Fläche
3.0
Zimmer
WEITERE MEDIEN

Dokumente


ECKDATEN
FindMyHome.at // Externe Immobilien-ID5590174 // 3610/7028
ImmobilienartWohnung - Miete
Anschrift2000 Stockerau
Baujahr2024
NäheBahnhofstrasse, Schlösselgasse
HeizungZentralheizung mit Fernwärme
StockErdgeschoss
KellerJa
Beziehbar absofort
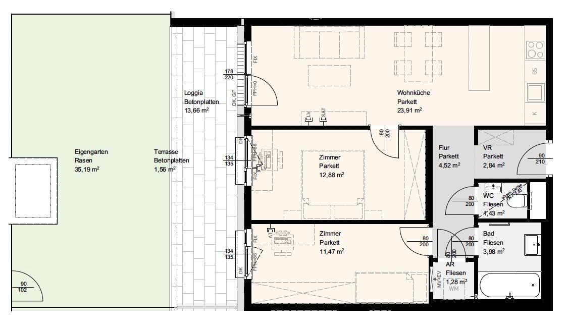
Fläche62,31 m²
Gartenfläche35,19 m²
Terrassen1 (1,56 m²)
Loggia1 (13,66 m²)
Zimmer3.0
Bad1
WC1
Kaution:€ 3.288,00
sonstige Kosten (inkl. MwSt):€ 177,17
Mehrwertsteuer:€ 99,67
Monatliche Gesamtkosten:€ 1.096,41




BESCHREIBUNG

Gartenwohnung in Stockerau und dazu leistbares Wohnen

Sie suchen für sich und/oder Ihre PartnerIn bzw. Ihre Familie eine besonders ansprechende und brandneue Mietwohnung in einer brandneuen Wohnanlage?
Ein €bissl €außerhalb, aber doch sehr nahe an Wien sollte es sein, umgeben von viel Grün, ruhig gelegen, geräumig, aber gemütlich, eventuell mit Garten oder Terrasse, denn Sie möchten gerne Ihre Ruhe genießen können und in herrlicher Umgebung mit einem Glaserl Wein auf das schöne Leben anstoßen?!

Wir haben diese Wohnung für Sie gefunden!


BESONDERE HIGHLIGHTS UND
AUSSTATTUNGSMERKMALE

? Einige Wohnungen noch frei!
? Nah an Wien und Umgebung (40 Minuten mit dem Zug zum Hbf. Wien)
? Fast ein Erstbezug
? Nah an den Öffis und der Autobahn
? Naturschutzgebiet in 7 Minuten zu Fuß erreichbar, zum Spazierengehen, Joggen, Radfahren, Erholen, Wandern, Schwimmen, ...
? Deckenkühlung (passive Kühlung im Sommer durch die Betondecke) und Heizung (thermische Heizdecke, per Fernwärme)
? 3-Scheiben-Isolierverglasung
? Küche samt moderner Ausstattung von Lutz: Kühl- und Gefrierkombination, Geschirrspüler, Einbauherd, Umluft, ...
? Parkett in Eiche
? elektrische Außenrollläden oder Raffstores
? Farb-Video Gegensprechanlage
? Einlagerungsräume
? Teilweise PV-Anlagen für die Haustechnik
? Feinsteinzeug für Bäder, WC´s und Stiegenhäuser
? Waschmaschinenanschluss
? Hauseigene SAT-Anlagen
? Große Auswahlmöglichkeit an Objekten mit
Terrasse, Garten, Loggia oder Balkon
? Garagen und E- Tankstellen
? Kinderwagen und Fahrradabstellräume
? Jugend und Kinderspielplatz

Die Schaubilder dienen zur Illustration und können von planlichen und natürlichen Gegebenheiten abweichen. Änderungen vorbehalten.

RAUMAUFTEILUNG

? Geräumiger Vorraum
? 2 Schlafzimmer
? Wohnraum mit Küchenzeile
? Duschbad und WC
? Abstellraum
? Garten, Terrasse, Loggia
? ALLE Räume mit Zugang ins Freie!

ÖFFENTLICHE VERKEHRSANBINDUNG
GRÄTZL UND UMGEBUNG

? Naturschutzgebiet vor der Haustüre (Stockerauer Au) in 7 Minuten zu Fuß erreichbar
? Nähe der Donauuferautobahn
? gute Infrastruktur, Nahversorger, Shops, Kultur ( Belvedereschlössl, Automobilmuseum), Schulen, Banken, Kino, Landesklinikum Stockerau,
E-Tankstellen
S3, S4 der Wiener Schnellbahnlinien,
mit Park @ Ride Anlagen sowie eine nextbike-Verleihstation.

ERSTZAHLUNG
? 3 BMM Kaution
? erste Monatsmiete im Voraus

WEITERE MONATLICHE KOSTEN
? Wasser, Heizung... werden von der ISTA nach tatsächlichem Verbrauch abgerechnet
? Strom - wird direkt nach Verbrauch abgerechnet (Wien Energie bzw. Netznutzung Wiener Netze)
? ggf. TV/Internet, Haushaltsversicherung, GIS, o.Ä.

VERTRAGSBEDINGUNGEN
? Befristung: 10 Jahre
? Kündigungsverzicht: 12 Monate (mieterseitig)
? Kündigungsfrist: 3 Monate
? gefordertes Mindestnettoeinkommen (Haushalt): Die Miete sollte maximal 40% des Nettoeinkommens betragen, sollte zumindest die 50% Quote erfüllt sein, kann eine höhere Kaution hinterlegt werden

Weitere Wohnungen in der Anlage frei zwischen 39m2 und 82m2 ( Gartenwohnungen, 1.bis 3. Stock) wählbar, mit Freiflächen und zusätzlicher Anmietung eines Stellplatzes.
Nähere Infos unter: www.daskoloman.at

Falls Sie Fragen haben oder einen Beratungsterminwünschen, stehe ich Ihnen selbstverständlich gerne zur Verfügung.

KONTAKT
Frau Anette Mazanec
Tel: +43 664 44 888 79
Email: anette.mazanec@hubner-immobilien.comAngaben gemäß gesetzlichem Erfordernis:
Miete €835,67 zzgl 10% USt.Betriebskosten €161,06 zzgl 10% USt.Umsatzsteuer €99,68------------------------------------------------------------------Gesamtbetrag €1096,41Klimaanlage: JA
Gartennutzung: JA
Rollstuhlgerecht: JA
Barrierefrei: JA


Alle Details anzeigen

KONTAKT






 

Lasse dich kostenlos vom Anbieter dieser Immobilie zurückrufen.







 


 
Hubner Immobilien GmbH
Anette Mazanec
Telefonnummer anzeigen Telefon Allgemein: +436644488879
Handy Bearbeiter: +436644488879
 
Bitte dem Makler die FindMyHome.at - ID bekanntgeben: 5590174

Bewertungen dieses Anbieters
Qualitätsmakler
Qualitätsmakler:
2014, 2015, 2016, 2018, 2019, 2020, 2021 , 2025,
Netiquette
Freundlichkeit
84 %

BEWERTUNGEN DIESES ANBIETERS

 
Qualit�tsmakler
Qualitätsmakler
2014, 2015, 2016, 2018, 2019, 2020, 2021 2025
Weiterempfehlung
WIRD GERNE

Freundlichkeit
BESONDERS
FREUNDLICH
Netiquette
FINDMYHOME
NETIQUETTE
Auch du kannst bewerten! 7 Tage nach deiner Anfrage erhältst du dafür von uns ein Bewertungsmail.
Alle Infos zu unseren Auszeichnungen und dem FINDMYHOME.AT Qualitätsprogramm findest du hier: Übersicht anzeigen


Du willst wissen, wie viel dein Umzug kosten wird?

Mach gleich den kostenlosen Preisvergleich und schau, welche seriösen Anbieter in deiner Region günstig deinen Umzug organisieren


ZUM UMZUGS-VERGLEICH
-->

MYHOME BLOG
SuchAgentin auf FindMyHome.at
Unterschiedlichen Rechtsthemen, köstliche Rezepte, neueste Design-Highlights, sowie aktuelle Technik-Tools für Ihr Eigenheim.


FINDMYHOME.AT SUCHAGENTIN
SuchAgentin auf FindMyHome.at
Hallo, soll ich dir ähnliche Immobilien kostenfrei per E-Mail schicken?


ÄHNLICHE IMMOBILIEN
Aehnliche Immobilie - Vorschaubild 1

"Lebensqualität im Zentrum ? helle 2-Zimmer-Wohnung mit... - Objektnr. 5555891

63,00 m² - 2.0 Zimmer
890.09 €
PLZ: 2000

Mehr anzeigen

Aehnliche Immobilie - Vorschaubild 2

Alternative zu Wien/Wien Hauptbahnhof/ Stockerau in nur 40 M... - Objektnr. 5585430

62,31 m² - 3.0 Zimmer
1002.08 €
PLZ: 2000

Mehr anzeigen

Aehnliche Immobilie - Vorschaubild 3

Geschmackvolle Terrassenwohnung und Alternative zu Wien Haup... - Objektnr. 5585429

50,06 m² - 2.0 Zimmer
942.02 €
PLZ: 2000

Mehr anzeigen

Durch die Nutzung unserer Seite erklären Sie sich mit der Verwendung von Cookies zur Verbesserung Ihres Online-Erlebnisses einverstanden. Detaillierte Informationen zu diesem und weiteren Themen erhalten Sie in unserer Datenschutzerklärung.