MEIN ERGEBNIS ANPASSEN

Skyview I Weite I Luxus: Großzügige und stilvolle 2-Zimmer-Maisonette mit Dachterrasse in Toplage neben Donaukanal! - Objektnr. 5590080

1030
Ort
84,77 m²
Fläche
2.0
Zimmer

ECKDATEN
FindMyHome.at // Externe Immobilien-ID5590080 // 291995
ImmobilienartEigentum
AnschriftParkgasse
1030 Wien
Baujahr2024
Stock5
Geschosse6
Fläche84,77 m²
Terrassen2 (42,00 m²)
Zimmer2.0
Bad1
WC1
 Abstellraum
Kaufpreis:€ 795.000,00
Ratenzahlung:Finanzierungsmöglichkeiten für diese Immobilie anzeigen
Provision:







BESCHREIBUNG

Skyview I Weite I Luxus: Großzügige und stilvolle 2-Zimmer-Maisonette mit Dachterrasse in Toplage neben Donaukanal!

Diese hochwertig sanierte Maisonette-Wohnung im Dachgeschoss eines gepflegten Altbaus bietet modernes Wohngefühl auf zwei Ebenen mit traumhaftem 360-Grad-Blick über Wien.

Große Fensterflächen sorgen für lichtdurchflutete Räume und ein angenehmes Wohngefühl. Die Dachterrasse lädt zum Sonnenbaden, Entspannen oder zum gemütlichen Abendessen mit Freunden ein.

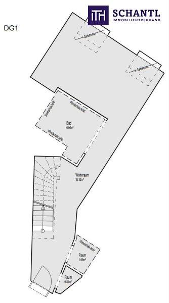
Auf rund 85m² Wohnfläche erwartet Sie eine perfekt durchdachte Raumaufteilung:

  • Geräumiger Vorraum
  • Praktischer Abstellraum
  • Hochwertig ausgeführtes WC mit Handwaschbecken
  • Großzügiges Schlafzimmer
  • Stilvolles Badezimmer mit bodenebener Dusche, Doppelwaschbecken und Waschmaschinenanschluss
  • Offene, sonnendurchflutete Wohnküche mit Ausgang auf die Terrasse
  • Von dort Treppenaufgang zur privaten Dachterrasse mit 360-Grad Panoramablick über Wien


 

Highlights: Erstbezug nach Sanierung, Klimaanlage, hochwertige Parkettdielen, Feinsteinzeug, elektrische Außenbeschattung, Videogegensprechanlage, uvm.
 

Wohnfläche: ca. 84,77 m² + Terrasse: ca. 7,93 m² + Dachterrasse ca. 33,97 m²

Bezugsfertig: sofort (Erstbezug nach Sanierung)

Kaufpreis: € 795.000

 

 

Vereinbaren Sie noch heute einen Besichtigungstermin und lassen Sie sich von dieser Immobilie begeistern!

 

Bei konkretem Interesse senden wir Ihnen sehr gerne weiterführende Dokumente zu, wie:

o Grundbuchauszug

o Wohnungseigentumsvertrag

o Nutzwertgutachten

o Eigentümerversammlungsprotokoll (falls vorhanden) etc...

 

Unser Service für Sie: Wenn Sie sich für diese Immobilie entschieden haben, begleiten wir Sie gerne vom Kaufanbot weg inkl. Klärung von Sonderwünschen und der Vertragsunterzeichnung über die Wohnungsübergabe bis hin zu diversen Ummeldungen wie Strom und Gas. Entsprechende Formulare oder auch Meldezettel stellen wir Ihnen sehr gerne zur Verfügung.

Gerne unterstützen wir Sie auch bei der Finanzierung Ihres Traumobjekts und finden mit unseren langjährigen Partnern die besten Konditionen für Sie.

Vereinbaren Sie noch heute einen Termin, wir beraten Sie gerne!

Sie wollen Ihre Immobilie verkaufen Dann sind Sie bei uns goldrichtig! Gerne beraten wir Sie kostenlos bei der Bewertung Ihrer Immobilie und präsentieren Ihnen die dafür entscheidenden Informationen und Unterlagen unverbindlich. 

www.schantl-ith.at

Der Vermittler ist als Doppelmakler tätig.


Infrastruktur / Entfernungen

Gesundheit
Arzt <250m
Apotheke <250m
Klinik <500m
Krankenhaus <1.000m

Kinder & Schulen
Schule <250m
Kindergarten <250m
Universität <1.000m
Höhere Schule <500m

Nahversorgung
Supermarkt <250m
Bäckerei <500m
Einkaufszentrum <500m

Sonstige
Geldautomat <250m
Bank <500m
Post <500m
Polizei <750m

Verkehr
Bus <250m
U-Bahn <500m
Straßenbahn <250m
Bahnhof <500m
Autobahnanschluss <1.750m

Angaben Entfernung Luftlinie / Quelle: OpenStreetMap

Klimaanlage: JA
Kabel/SAT/TV: JA
Provision:


Alle Details anzeigen

KONTAKT






 

Lasse dich kostenlos vom Anbieter dieser Immobilie zurückrufen.







 


 
Schantl ITH Immobilientreuhand GmbH
Patrick Spreitzer, BA, MA
Telefonnummer anzeigen Telefon Allgemein: +436643070009
Handy Bearbeiter: +4367761778499
 
Bitte dem Makler die FindMyHome.at - ID bekanntgeben: 5590080

Bewertungen dieses Anbieters
Qualitätsmakler
Qualitätsmakler:
2015, 2016, 2018, 2019, 2020, 2021, 2023 , 2024, 2025,
Netiquette
Freundlichkeit
79 %

BEWERTUNGEN DIESES ANBIETERS

 
Qualit�tsmakler
Qualitätsmakler
2015, 2016, 2018, 2019, 2020, 2021, 22/23, 2024, 2025
Antwortzeit
ø 48h ANTWORT
Weiterempfehlung
WIRD GERNE

Freundlichkeit
BESONDERS
FREUNDLICH
Netiquette
FINDMYHOME
NETIQUETTE
Auch du kannst bewerten! 7 Tage nach deiner Anfrage erhältst du dafür von uns ein Bewertungsmail.
Alle Infos zu unseren Auszeichnungen und dem FINDMYHOME.AT Qualitätsprogramm findest du hier: Übersicht anzeigen

FINANZIERUNG
?>

Du willst wissen, wie viel dein Umzug kosten wird?

Mach gleich den kostenlosen Preisvergleich und schau, welche seriösen Anbieter in deiner Region günstig deinen Umzug organisieren


ZUM UMZUGS-VERGLEICH
-->

MYHOME BLOG
SuchAgentin auf FindMyHome.at
Unterschiedlichen Rechtsthemen, köstliche Rezepte, neueste Design-Highlights, sowie aktuelle Technik-Tools für Ihr Eigenheim.


FINDMYHOME.AT SUCHAGENTIN
SuchAgentin auf FindMyHome.at
Hallo, soll ich dir ähnliche Immobilien kostenfrei per E-Mail schicken?


ÄHNLICHE IMMOBILIEN
Aehnliche Immobilie - Vorschaubild 1

Traumhafte 3-Zimmer-Wohnung in 36. Etage, 1030 Wien - MODERN... - Objektnr. 5574210

76,71 m² - 3.0 Zimmer
648999 €
PLZ: 1030

Mehr anzeigen

Durch die Nutzung unserer Seite erklären Sie sich mit der Verwendung von Cookies zur Verbesserung Ihres Online-Erlebnisses einverstanden. Detaillierte Informationen zu diesem und weiteren Themen erhalten Sie in unserer Datenschutzerklärung.