MEIN ERGEBNIS ANPASSEN

JUWEL! Wohnoase mit großem Privatgarten in Graz-Liebenau - großzügig, grün & ideal für Familien! - Objektnr. 5589400

8041
Ort
112,34 m²
Fläche
5.0
Zimmer

ECKDATEN
FindMyHome.at // Externe Immobilien-ID5589400 // 291969
ImmobilienartWohnung - Eigentum
Anschrift8041 Graz,07.Bez.:Liebenau
Baujahr2026
Geschosse4
Fläche112,34 m²
Terrassen2 (50,00 m²)
Zimmer5.0
Bad1
WC2
Kaufpreis:€ 584.800,00
Ratenzahlung:Finanzierungsmöglichkeiten für diese Immobilie anzeigen
Provision: Provision bezahlt der Abgeber.







BESCHREIBUNG

JUWEL! Wohnoase mit großem Privatgarten in Graz-Liebenau - großzügig, grün & ideal für Familien!

JUWEL! Wohnoase mit großem Privatgarten in Graz-Liebenau großzügig, grün & ideal für Familien!

Diese exklusive Erdgeschosswohnung in moderner, hochwertiger Ausführung überzeugt durch eine durchdachte Raumaufteilung, zwei weitläufige Terrassen sowie einen beeindruckenden Privatgarten mit knapp 300 m² Fläche. Sie ist ideal für Familien, Paare oder naturverbundene Stadtmenschen, die Raum, Komfort und Freiraum in bester Lage vereinen möchten.

5 überzeugende Fakten:

  • 112 m² Wohnfläche mit großzügigem, durchdachtem Grundriss

  • Zwei Terrassen mit 38,34 m² und 11,35 m² ideal für Frühstück und Abendentspannung im Freien

  • Privatgarten mit 299,83 m² perfekte Wohlfühloase für Kinder, Hobbygärtner und Genießer

  • Vier getrennt begehbare Schlafzimmer plus großzügiger Wohn-Ess-Küchenbereich

  • Energieeffizienter Neubau mit nachhaltigem Wohnkonzept und Photovoltaikanlage

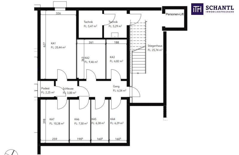
Raumaufteilung im Detail:

  • Vorraum: 11,08 m²

  • Schrankraum: 6,15 m²

  • Zimmer 1: 10,92 m²

  • Zimmer 2: 12,41 m²

  • WohnenEssenKüche: 34,25 m²

  • Zimmer 3: 10,23 m²

  • Zimmer 4: 12,27 m²

  • Flur: 4,64 m²

  • Badezimmer inkl. WC: 8,35 m²

  • Separates WC: 2,04 m²

Gesamtwohnfläche: 112,34 m²
Gartenfläche: 299,83 m²
Terrassen: 38,34 m² + 11,35 m² = 49,69 m²

10 Highlights für Lebensqualität im Grünen:

  1. Großzügiger, sonniger Eigengarten ideal für Spiel, Erholung und Gartengestaltung

  2. Zwei Terrassen mit unterschiedlichen Ausrichtungen ideal für jede Tageszeit

  3. 3-fach-verglaste Fenster sorgen für helle, lichtdurchflutete Räume

  4. Raffstores bieten individuellen Sonnenschutz

  5. Fußbodenheizung in sämtlichen Räumen für behaglichen Wohnkomfort

  6. Hochwertige schlüsselfertige Ausführung mit langlebigen Materialien

  7. Zeitloses, modernes Design mit durchdachtem Grundriss

  8. Modernes Badezimmer mit Fenster und separatem WC

  9. Barrierefreier Zugang ideal für alle Lebensphasen

  10. Exklusive Kleinanlage mit nur 12 Wohneinheiten in ruhiger, urbaner Lage

Baustart: spätestens April 2026
Fertigstellung & Übergabe: bis spätestens November 2027

Fazit:
Diese Gartenwohnung bietet urbanes Wohnen auf höchstem Niveau mit der Ruhe, dem Raum und dem Komfort eines Eigenheims. Sie ist perfekt für alle, die sich ein großzügiges Zuhause mit hohem Wohnwert und starkem Bezug zur Natur wünschen ohne auf die Annehmlichkeiten der Stadt verzichten zu müssen.

Irrtum und Druckfehler vorbehalten. Alle Angaben beruhen auf Informationen des Abgebers und sind ohne Gewähr. Sämtliche Pläne und Renderings sind als Muster zu verstehen. Es wurden teilweise Beispielbilder verwendet. Änderungen ausdrücklich vorbehalten.

 

Worauf noch warten

Vereinbaren Sie noch heute eine Besichtigung oder eine persönliche Beratung mit uns!

Sie wollen Ihre Immobilie verkaufen Dann sind Sie bei uns goldrichtig!
Wir sind gerne für Sie da und unterstützen Sie unverbindlich bei der Bewertung Ihrer Immobilie. Mit viel Sorgfalt stellen wir Ihnen alle wichtigen Informationen und Unterlagen zusammen, damit Sie die besten Entscheidungen treffen können.

In Kooperation mit unserer SFI Vermögenstreuhand begleiten wir Sie bei der Verwirklichung Ihres Traumobjekts und unterstützen Sie beim nachhaltigen Vermögensaufbau. Mit unseren erfahrenen Experten sorgen wir dafür, dass Sie die besten Konditionen erhalten damit Ihre Träume Wirklichkeit werden!

http://www.schantl-ith.at in Kooperation mit www.sfi-invest.com 

Die Angaben über das angebotene Objekt erfolgen mit der Sorgfalt eines ordentlichen Immobilienmaklers; für die Richtigkeit solcher Angaben, die auf Informationen der über das Objekt Verfügungsberechtigten beruhen, wird keine Gewähr geleistet!

Wir weisen darauf hin, dass zwischen dem Vermittler und dem zu vermittelnden Dritten ein familiäres oder wirtschaftliches Naheverhältnis besteht.


Infrastruktur / Entfernungen

Gesundheit
Arzt <500m
Apotheke <500m
Klinik <4.500m
Krankenhaus <4.000m

Kinder & Schulen
Schule <500m
Kindergarten <500m
Universität <3.000m
Höhere Schule <4.000m

Nahversorgung
Supermarkt <500m
Bäckerei <500m
Einkaufszentrum <1.000m

Sonstige
Geldautomat <1.000m
Bank <500m
Post <1.000m
Polizei <1.000m

Verkehr
Bus <500m
Straßenbahn <1.000m
Autobahnanschluss <1.000m
Bahnhof <1.000m
Flughafen <5.500m

Angaben Entfernung Luftlinie / Quelle: OpenStreetMap

Barrierefrei: JA
Provision: Provision bezahlt der Abgeber.


Alle Details anzeigen

KONTAKT






 

Lasse dich kostenlos vom Anbieter dieser Immobilie zurückrufen.







 


 
Schantl ITH Immobilientreuhand GmbH
Nikolaus Kronabitter
Telefonnummer anzeigen Handy Bearbeiter: +436642540410
 
Bitte dem Makler die FindMyHome.at - ID bekanntgeben: 5589400

Bewertungen dieses Anbieters
Qualitätsmakler
Qualitätsmakler:
2015, 2016, 2018, 2019, 2020, 2021, 2023 , 2024, 2025,
Netiquette
Freundlichkeit
79 %

BEWERTUNGEN DIESES ANBIETERS

 
Qualit�tsmakler
Qualitätsmakler
2015, 2016, 2018, 2019, 2020, 2021, 22/23, 2024, 2025
Antwortzeit
ø 48h ANTWORT
Weiterempfehlung
WIRD GERNE

Freundlichkeit
BESONDERS
FREUNDLICH
Netiquette
FINDMYHOME
NETIQUETTE
Auch du kannst bewerten! 7 Tage nach deiner Anfrage erhältst du dafür von uns ein Bewertungsmail.
Alle Infos zu unseren Auszeichnungen und dem FINDMYHOME.AT Qualitätsprogramm findest du hier: Übersicht anzeigen

FINANZIERUNG
?>

Du willst wissen, wie viel dein Umzug kosten wird?

Mach gleich den kostenlosen Preisvergleich und schau, welche seriösen Anbieter in deiner Region günstig deinen Umzug organisieren


ZUM UMZUGS-VERGLEICH
-->

MYHOME BLOG
SuchAgentin auf FindMyHome.at
Unterschiedlichen Rechtsthemen, köstliche Rezepte, neueste Design-Highlights, sowie aktuelle Technik-Tools für Ihr Eigenheim.


FINDMYHOME.AT SUCHAGENTIN
SuchAgentin auf FindMyHome.at
Hallo, soll ich dir ähnliche Immobilien kostenfrei per E-Mail schicken?


ÄHNLICHE IMMOBILIEN
Aehnliche Immobilie - Vorschaubild 1

Ein Penthouse zum Träumen und Genießen mit 5 Zimmer und groß... - Objektnr. 5586877

103,67 m² - 5.0 Zimmer
570185 €
PLZ: 8041

Mehr anzeigen

Aehnliche Immobilie - Vorschaubild 2

Peterstal Living - Ruhe, Komfort, Stadtnähe - Objektnr. 5589215

96,36 m² - 4.0 Zimmer
559550 €
PLZ: 8042

Mehr anzeigen

Aehnliche Immobilie - Vorschaubild 3

Peterstal Living - Ruhe, Komfort, Stadtnähe - Objektnr. 5589218

93,12 m² - 4.0 Zimmer
599000 €
PLZ: 8042

Mehr anzeigen

Durch die Nutzung unserer Seite erklären Sie sich mit der Verwendung von Cookies zur Verbesserung Ihres Online-Erlebnisses einverstanden. Detaillierte Informationen zu diesem und weiteren Themen erhalten Sie in unserer Datenschutzerklärung.