MEIN ERGEBNIS ANPASSEN

++MOLLARD 50++ Exclusive 3-room apartment right in the heart of the city (3/3) - Objektnr. 5589385

1060
Ort
€ 1.974,94
Gesamtkosten
71,13 m²
Fläche
3.0
Zimmer

ECKDATEN
FindMyHome.at // Externe Immobilien-ID5589385 // 62619
ImmobilienartWohnung - Miete
Anschrift/3
1060 Wien
Baujahr2025
Stock1
Mietdauer5
Fläche71,13 m²
Zimmer3.0
Bad2
WC1
 Abstellraum
Brutto-Miete:€ 1.974,94
Mehrwertsteuer:€ 179,54
Monatliche Gesamtkosten:€ 1.974,94
Provision: Gemäß Erstauftraggeberprinzip bezahlt der Abgeber die Provision.




BESCHREIBUNG

++MOLLARD 50++ Exclusive 3-room apartment right in the heart of the city (3/3)

Welcome to the new development project Mollardgasse 50!
Prime location in Viennas 6th district, Mariahilf completion coming soon!

++ Please note that you should not inquire about this project through another company. Through us, you can view all available apartments in this building. ++

Available for temporary rental is this bright, well-laid-out, and high-quality 3-room apartment (approx. 71 m²) with a balcony in a unique new development in an excellent location of the 6th district of Vienna!


The Project:

MOLLARD 50 presents itself as a modern new-build with three building sections and an underground garage. The architecture impresses with clean lines and thoughtful details, while the floor plans offer maximum flexibility and intelligent layouts. Spacious balconies, loggias, terraces, and garden areas extend the living space of almost every apartment outdoors, creating a special quality of life.

The location in the heart of the 6th district combines urban infrastructure with high living quality numerous shopping opportunities, restaurants, and excellent public transport connections are just around the corner.


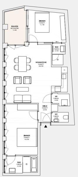
Layout: Stiege 3 Top 3

  • Entrance hall

  • Separate WC

  • Storage room

  • Living room with open kitchen

  • Bedroom

  • Bathroom with shower and bathtub

  • Bedroom

  • Bathroom with shower

  • Balcony
    (see floor plan and photos of the neighboring apartment in the same building)


Features:

The MOLLARD 50 project combines an excellent location with very high construction quality.

Almost every apartment not only includes an outdoor area but is also equipped with high-quality materials and finishes, such as:

  • Electric blinds/shutters

  • Underfloor heating

  • Bathrooms with elegant fixtures

  • Fully equipped kitchen with high-end brand appliances

  • Basement storage unit

  • and more

Additionally, parking spaces are available in the in-house underground garage (at extra cost).


Location & Surroundings

Quiet residential location in the 6th district between Gumpendorfer Straße and Linke Wienzeile, with quick access to the city center. Mariahilfer Straße (approx. 800 m) offers a wide range of shopping and dining options. Bruno-Kreisky-Park (approx. 230 m) as well as Haus des Meeres/Esterházypark are within walking distance.

Public Transport Connections:

  • U4 (Margaretengürtel, Pilgramgasse)

  • Tram lines 6 & 18 (e.g., to Westbahnhof, St. Marx)

  • Bus lines 12A, 57A as well as night lines N6, N8, N60

  • Quick access to S-Bahn and regional trains via Westbahnhof/Matzleinsdorfer Platz

By Car:
Easy access via Wienzeile and Gürtel; quick connection to southern entrance and A23. Short-term parking zone applies on weekdays in the area.


The Price:

The monthly gross total rent (incl. VAT) is €1,975.00.

Note: Monthly costs for electricity, heating, and water are not included and must be paid separately.

Parking space rental in the in-house underground garage: €168 gross per month.

The rental agreement is limited to 5 years.

  • Security deposit: 3 gross monthly rents

  • Commission-free

  • Rental start: expected 01.12.2025


The Fine Print:

We expressly point out our economic relationship with the seller/landlord.
We act as dual agents in our role as intermediaries.
All information published here is based on data provided by the seller/landlord and has not been independently verified.

Our General Terms and Conditions can be viewed in the exposé provided as well as on our homepage. These GTCs explicitly form part of the contract.

The protection of personal data is important to us and legally required. The processing of your personal data takes place in accordance with data protection regulations. On our homepage (under Data Protection Information), you will find an overview that informs you about the most important aspects of how your data is processed.

Errors and changes excepted.

Wir weisen darauf hin, dass zwischen dem Vermittler und dem zu vermittelnden Dritten ein familiäres oder wirtschaftliches Naheverhältnis besteht.

Der Immobilienmakler erklärt, dass er entgegen dem in der Immobilienwirtschaft üblichen Geschäftsgebrauch des Doppelmaklers einseitig nur für den Vermieter tätig ist.


Infrastruktur / Entfernungen

Gesundheit
Arzt <500m
Apotheke <500m
Klinik <500m
Krankenhaus <500m

Kinder & Schulen
Schule <500m
Kindergarten <500m
Universität <1.000m
Höhere Schule <1.000m

Nahversorgung
Supermarkt <500m
Bäckerei <500m
Einkaufszentrum <1.000m

Sonstige
Geldautomat <500m
Bank <500m
Post <500m
Polizei <1.000m

Verkehr
Bus <500m
U-Bahn <500m
Straßenbahn <500m
Bahnhof <500m
Autobahnanschluss <4.000m

Angaben Entfernung Luftlinie / Quelle: OpenStreetMap

Objekt ist für eine Wohngemeinschaft geeignet
Rollstuhlgerecht: JA
Barrierefrei: JA
Provision: Gemäß Erstauftraggeberprinzip bezahlt der Abgeber die Provision.


Alle Details anzeigen

KONTAKT






 

Lasse dich kostenlos vom Anbieter dieser Immobilie zurückrufen.







 


 
Adonia Realitätenvermittlung GmbH
Adonia Immobilien
Telefonnummer anzeigen Telefon Allgemein: +436766372496
 
Bitte dem Makler die FindMyHome.at - ID bekanntgeben: 5589385

Bewertungen dieses Anbieters
Qualitätsmakler
Qualitätsmakler:
2015, 2018, 2019, 2020, 2023, 2024,
Netiquette
Freundlichkeit

BEWERTUNGEN DIESES ANBIETERS

 
Qualit�tsmakler
Qualitätsmakler
2015, 2018, 2019, 2020, 22/23, 2024
Freundlichkeit
BESONDERS
FREUNDLICH
Netiquette
FINDMYHOME
NETIQUETTE
Auch du kannst bewerten! 7 Tage nach deiner Anfrage erhältst du dafür von uns ein Bewertungsmail.
Alle Infos zu unseren Auszeichnungen und dem FINDMYHOME.AT Qualitätsprogramm findest du hier: Übersicht anzeigen


Du willst wissen, wie viel dein Umzug kosten wird?

Mach gleich den kostenlosen Preisvergleich und schau, welche seriösen Anbieter in deiner Region günstig deinen Umzug organisieren


ZUM UMZUGS-VERGLEICH
-->

MYHOME BLOG
SuchAgentin auf FindMyHome.at
Unterschiedlichen Rechtsthemen, köstliche Rezepte, neueste Design-Highlights, sowie aktuelle Technik-Tools für Ihr Eigenheim.


FINDMYHOME.AT SUCHAGENTIN
SuchAgentin auf FindMyHome.at
Hallo, soll ich dir ähnliche Immobilien kostenfrei per E-Mail schicken?


ÄHNLICHE IMMOBILIEN
Aehnliche Immobilie - Vorschaubild 1

++NEU++ großartige 3-Zimmer-Wohnung mitten im Herzen der Sta... - Objektnr. 5565375

57,12 m² - 3.0 Zimmer
1924.96 €
PLZ: 1060

Mehr anzeigen

Aehnliche Immobilie - Vorschaubild 2

++NEU++ Unique 3-room apartment in the very heart of the cit... - Objektnr. 5550107

57,00 m² - 3.0 Zimmer
1874.99 €
PLZ: 1060

Mehr anzeigen

Aehnliche Immobilie - Vorschaubild 3

++MOLLARD 50++ Chic 3-room apartment in a prime city center ... - Objektnr. 5588382

71,02 m² - 3.0 Zimmer
2024.98 €
PLZ: 1060

Mehr anzeigen

Durch die Nutzung unserer Seite erklären Sie sich mit der Verwendung von Cookies zur Verbesserung Ihres Online-Erlebnisses einverstanden. Detaillierte Informationen zu diesem und weiteren Themen erhalten Sie in unserer Datenschutzerklärung.