MEIN ERGEBNIS ANPASSEN

Ruhig & modern 2-Zimmer-Dachgeschoß-Wohnung mit großen Außenflächen - Objektnr. 5589257

  • Hauseingang
  • Stiegenhaus
  • Zimmer
  • Zimmer
  • Zimmer
  • Zimmer
  • Zimmer
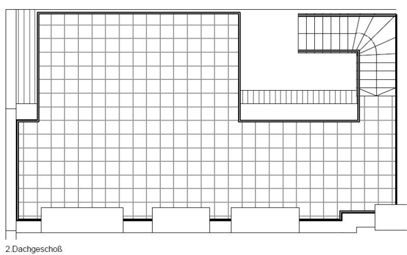
  • 1. Dachgeschoß 2 Terrassen
  • Terrasse im 2. Dachgeschoß
1180
Ort
85,17 m²
Fläche
2.0
Zimmer

ECKDATEN
FindMyHome.at // Externe Immobilien-ID5589257 // 1760/723
ImmobilienartWohnung - Eigentum
AnschriftWähringer Straße
1180 Wien,Währing
Baujahr1998
Fläche85,17 m²
Terrassen3 (60,00 m²)
Zimmer2.0
Bad1
WC1
 Abstellraum
Kaufpreis:€ 890.000,00
Ratenzahlung:Finanzierungsmöglichkeiten für diese Immobilie anzeigen
Provision: 3% des Kaufpreises zzgl. 20% USt.







BESCHREIBUNG

Ruhig & modern 2-Zimmer-Dachgeschoß-Wohnung mit großen Außenflächen

Sehr schöne Altbauwohnung Nähe Aumannplatz und Kutschkermarkt! 
 

Entdecken Sie diese interessante 2-Zimmer-Dachgeschoß Wohnung in ruhiger Hoflage als Rückzugsort aus einem pulsierenden Umfeld.

Ich freue mich auf Ihren Anruf  
Franz Lind 0699 1008 5785,  01 526 26 36 13  


In einem von Franz Xaver Rohleder und Hugo Mandeltort im Jahre 1898 erbauten schönen Altbau befindet sich diese sehr hübsche 2-Zimmer-Wohnung im 1. Dachgeschoß mit 3 Terrassen.

Bereits der repräsentative Hauseingang verspricht Ihnen eine niveauvolle Immobilie, die sich im Stiegenaufgang fortsetzt.
Die für Sie komplett neu gestaltete und sanierte Wohnung ist ein Erstbezug in Qualität und Ausführung.
Ein Kellerabteil sowie ein Abstellraum bieten ausreichend Stauraum für Einlagerungen.  


Wohnfläche: 85qm
Außenfläche: 60qm 


Aufteilung: 
Vorraum
Wohnzimmer
mit Ausgang auf die Terrasse
offene Küche
Zimmer 
mit Ausgang auf die Terrasse
Badezimmer
Toilette
Abstellraum
2 Kellerabteile 


Vorteile auf einen Blick:
Beliebte Lage nahe Kutschkermarkt und Aumannplatz.
Der Kutschkermarkt bietet frisches Obst und Gemüse, Fleisch, Brot, Käse, Blumen, Feinkost und hausgemachte Spezialitäten in freundlicher Atmosphäre.

Gute Anbindung an öffentliche Verkehrsmittel, Straßenbahn zur U-Bahn und 500 Meter zur Schnellbahn.
Durchdachte Grundrissgestaltung.
Terrassen mit Ausblick.
Hoher Altbaustandard mit zeitgemäßen Annehmlichkeiten.

Überzeugen Sie sich vom Flair dieser charmanten Immobilie.
Ihr neues Zuhause in 1180 Wien freut sich auf Sie! 

Ich freue mich auf Ihren Anruf
Franz Lind 0699 1008 5785,  01 526 26 36 13


Energieklasse:  HWB 92,89kWh/m2a
Keine Gewähr bei Abweichungen der Flächen und Preise etc.

Im Falle des Zustandekommens eines Kaufvertrages, ist an uns die gesetzliche Provision in Höhe von 3 % des Kaufpreises zzgl. der gesetzlichen Umsatzsteuer laut der Verordnung des Bundesministers für wirtschaftliche Angelegenheiten über Standes- und Ausübungsregel für Immobilienmakler (BGBI. 297/1996), zu bezahlen.

 

Wir weisen darauf hin, dass zwischen dem Vermittler und dem zu vermittelnden Dritten ein familiäres oder wirtschaftliches Naheverhältnis besteht.

Der Vermittler ist als Doppelmakler tätig.

Klimaanlage: JA
Provision: 3% des Kaufpreises zzgl. 20% USt.


Alle Details anzeigen

KONTAKT






 

Lasse dich kostenlos vom Anbieter dieser Immobilie zurückrufen.







 


 
Lind Immobilien
Franz Lind
Telefonnummer anzeigen Telefon Allgemein: +431526263613
Handy Bearbeiter: +4369910085785
 
Bitte dem Makler die FindMyHome.at - ID bekanntgeben: 5589257

BEWERTUNGEN DIESES ANBIETERS


Die Anzahl der Bewertungen dieses Anbieters ist noch nicht aussagekrätig.
 
Auch du kannst bewerten! 7 Tage nach deiner Anfrage erhältst du dafür von uns ein Bewertungsmail.
Alle Infos zu unseren Auszeichnungen und dem FINDMYHOME.AT Qualitätsprogramm findest du hier: Übersicht anzeigen

FINANZIERUNG
?>

Du willst wissen, wie viel dein Umzug kosten wird?

Mach gleich den kostenlosen Preisvergleich und schau, welche seriösen Anbieter in deiner Region günstig deinen Umzug organisieren


ZUM UMZUGS-VERGLEICH
-->

MYHOME BLOG
SuchAgentin auf FindMyHome.at
Unterschiedlichen Rechtsthemen, köstliche Rezepte, neueste Design-Highlights, sowie aktuelle Technik-Tools für Ihr Eigenheim.


FINDMYHOME.AT SUCHAGENTIN
SuchAgentin auf FindMyHome.at
Hallo, soll ich dir ähnliche Immobilien kostenfrei per E-Mail schicken?


ÄHNLICHE IMMOBILIEN
Aehnliche Immobilie - Vorschaubild 1

Wohnen Nahe des Cottageviertels - Sternwartestraße 18... - Objektnr. 5586055

95,96 m² - 2.0 Zimmer
849000 €
PLZ: 1180

Mehr anzeigen

Aehnliche Immobilie - Vorschaubild 2

4 Zimmer-Altbautraum mit optionalem Balkon - Objektnr. 5575905


91,42 m² - 4.0 Zimmer
749000 €
PLZ: 1180

Mehr anzeigen

Aehnliche Immobilie - Vorschaubild 3

Klassisch. Außergewöhnlich. Mondän. Elegant. - Objektnr. 5572446

82,62 m² - 3.0 Zimmer
820000 €
PLZ: 1180

Mehr anzeigen

Durch die Nutzung unserer Seite erklären Sie sich mit der Verwendung von Cookies zur Verbesserung Ihres Online-Erlebnisses einverstanden. Detaillierte Informationen zu diesem und weiteren Themen erhalten Sie in unserer Datenschutzerklärung.