MEIN ERGEBNIS ANPASSEN

Balkonwohnung Nähe Obkirchergasse A\ - Objektnr. 5588932

virtuell besichtigen
1190
Ort
69,68 m²
Fläche
3.0
Zimmer
WEITERE MEDIEN

Virtuelle Rundgänge


ECKDATEN
FindMyHome.at // Externe Immobilien-ID5588932 // 61353
ImmobilienartWohnung - Eigentum
Anschrift1190 Wien
Baujahr1911
Stock2
Geschosse6
Fläche69,68 m²
Zimmer3.0
Bad1
WC1
Kaufpreis:€ 598.000,00
Ratenzahlung:Finanzierungsmöglichkeiten für diese Immobilie anzeigen
Provision: 3% des Kaufpreises zzgl. 20% USt.







BESCHREIBUNG

Balkonwohnung Nähe Obkirchergasse A\

Für eine noch größere Auswahl an Immobilien besuchen Sie www.akkadia.at.

Das gepflegte Altbauhaus aus dem Jahr 1911 befindet sich in einer der begehrtesten Wohnlagen von Sievering im 19. Bezirk einer Gegend, die für ihre hohe Lebensqualität und das grüne Umfeld bekannt ist.

Die angebotene Wohnung wurde vom Eigentümer mit viel Liebe zum Detail umfassend revitalisiert und befindet sich in einem ausgezeichneten Zustand. Sie ist derzeit kurzfristig vermietet, kann jedoch sehr rasch leer übergeben werden.
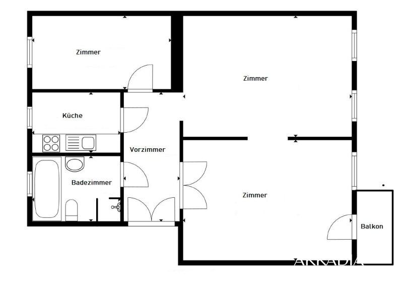
Die rund 70m² große Wohnung liegt im zweiten Stock und besticht durch eine durchdachte Raumaufteilung sowie charmante Altbauelemente. Über ein großzügiges Vorzimmer gelangen Sie in die Wohnung, die über zwei helle, straßenseitige Zimmer mit Verbindungstür und vorgelagertem Balkon verfügt. Ein weiteres, ruhiges Schlafzimmer ist hofseitig ausgerichtet. Die separate Einbauküche mit gemütlichem Essbereich sowie ein modernes Badezimmer mit Dusche, Badewanne und WC runden das Raumangebot ab.

Für die Wohnung besteht ein Nutzungsrecht für den hofseitigen Garten.

Ein Kellerabteil ist selbstverständlich vorhanden!

 Auf Grund der EU-Richtlinien zum Fernabsatz- und Auswärtsgeschäfte-Gesetz bitten wir um Ihr Verständnis, dass wir Ihnen seit 13. Juni 2014 die Objekt-Unterlagen erst nach Ihrer Bestätigung, dass Sie unser Tätigwerden wünschen und über Ihre Rücktrittsrechte aufgeklärt wurden, zusenden können. Bevor Sie die Unterlagen zugesendet bekommen, erhalten Sie eine Mail in der Sie diese beiden Punkte bestätigen müssen. Vielen Dank für Ihr Vertrauen!


Infrastruktur / Entfernungen

Gesundheit
Arzt <500m
Apotheke <500m
Klinik <1.000m
Krankenhaus <1.000m

Kinder & Schulen
Schule <500m
Kindergarten <500m
Universität <1.500m
Höhere Schule <1.500m

Nahversorgung
Supermarkt <500m
Bäckerei <1.000m
Einkaufszentrum <2.500m

Sonstige
Geldautomat <500m
Bank <500m
Post <1.000m
Polizei <1.000m

Verkehr
Bus <500m
U-Bahn <2.000m
Straßenbahn <500m
Bahnhof <1.000m
Autobahnanschluss <2.500m

Angaben Entfernung Luftlinie / Quelle: OpenStreetMap

Provision: 3% des Kaufpreises zzgl. 20% USt.


Alle Details anzeigen

KONTAKT






 

Lasse dich kostenlos vom Anbieter dieser Immobilie zurückrufen.







 


 
AKKADIA Immobilienvermittlung GmbH
Michael Schlaffer
Telefonnummer anzeigen Telefon Allgemein: +431512908554
Handy Bearbeiter: +436645225073
 
Bitte dem Makler die FindMyHome.at - ID bekanntgeben: 5588932

Bewertungen dieses Anbieters
Netiquette
Freundlichkeit

BEWERTUNGEN DIESES ANBIETERS

 
Freundlichkeit
BESONDERS
FREUNDLICH
Netiquette
FINDMYHOME
NETIQUETTE
Auch du kannst bewerten! 7 Tage nach deiner Anfrage erhältst du dafür von uns ein Bewertungsmail.
Alle Infos zu unseren Auszeichnungen und dem FINDMYHOME.AT Qualitätsprogramm findest du hier: Übersicht anzeigen

FINANZIERUNG
?>

Du willst wissen, wie viel dein Umzug kosten wird?

Mach gleich den kostenlosen Preisvergleich und schau, welche seriösen Anbieter in deiner Region günstig deinen Umzug organisieren


ZUM UMZUGS-VERGLEICH
-->

MYHOME BLOG
SuchAgentin auf FindMyHome.at
Unterschiedlichen Rechtsthemen, köstliche Rezepte, neueste Design-Highlights, sowie aktuelle Technik-Tools für Ihr Eigenheim.


FINDMYHOME.AT SUCHAGENTIN
SuchAgentin auf FindMyHome.at
Hallo, soll ich dir ähnliche Immobilien kostenfrei per E-Mail schicken?


ÄHNLICHE IMMOBILIEN
Aehnliche Immobilie - Vorschaubild 1

PROVISIONSFREI - Urban Homes 170 - Ihr Zuhause für höchste L... - Objektnr. 5483282

73,22 m² - 3.0 Zimmer
625500 €
PLZ: 1190

Mehr anzeigen

Aehnliche Immobilie - Vorschaubild 2

Wohnen am Puls der Stadt - Erstbezug in Döblinger Bestlage!... - Objektnr. 5580396

60,23 m² - 3.0 Zimmer
549600 €
PLZ: 1190

Mehr anzeigen

Aehnliche Immobilie - Vorschaubild 3

Provisionsfrei: Exklusive Erstbezugswohnungen in Döbling!... - Objektnr. 5580394

71,93 m² - 3.0 Zimmer
693600 €
PLZ: 1190

Mehr anzeigen

Durch die Nutzung unserer Seite erklären Sie sich mit der Verwendung von Cookies zur Verbesserung Ihres Online-Erlebnisses einverstanden. Detaillierte Informationen zu diesem und weiteren Themen erhalten Sie in unserer Datenschutzerklärung.