MEIN ERGEBNIS ANPASSEN

Symbiose aus Alt- und Neubau: Stilvolle Wohnungen in der Mauerbachstraße - Objektnr. 5588759


ökologisch beheizt
1140
Ort
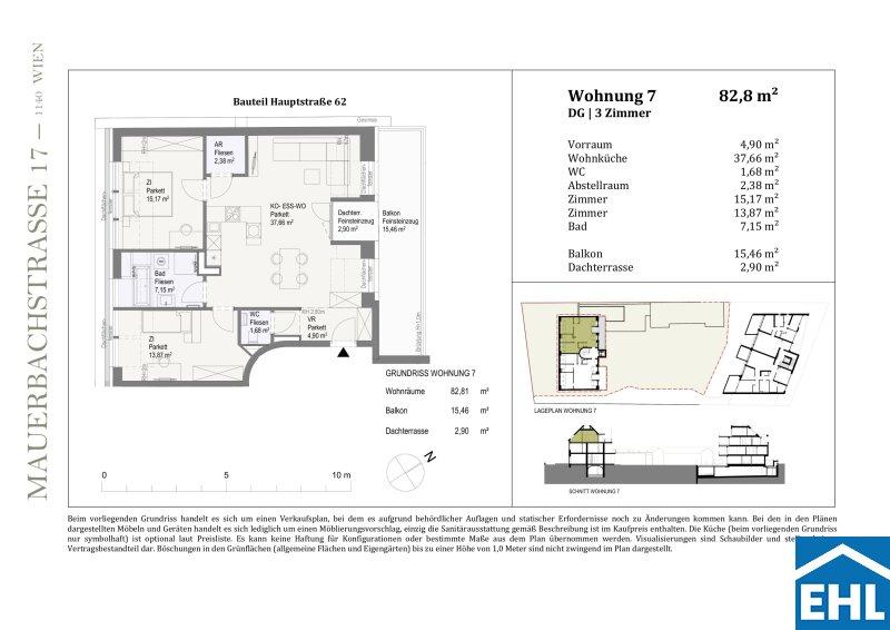
82,80 m²
Fläche
3.0
Zimmer
WEITERE MEDIEN

ECKDATEN
FindMyHome.at // Externe Immobilien-ID5588759 // 79924
ImmobilienartWohnung - Eigentum
AnschriftHauptstraße/7
1140 Wien
Baujahr2026
Befeuerung
Luftwärmepumpe
Stock3
Geschosse5
Fläche82,80 m²
Terrassen1 (18,00 m²)
Zimmer3.0
Bad1
WC1
Kaufpreis:€ 629.000,00
Ratenzahlung:Finanzierungsmöglichkeiten für diese Immobilie anzeigen
Provision: Provisionsfrei für den Käufer







BESCHREIBUNG

Symbiose aus Alt- und Neubau: Stilvolle Wohnungen in der Mauerbachstraße

Wohnen im malerischen "Hawei" - Exklusives Neubauprojekt in der Mauerbachstraße

In einer der idyllischsten und zugleich charmantesten Lagen Wiens entsteht ein außergewöhnliches Immobilienprojekt, das keine Wünsche offen lässt. In der Mauerbachstraße, im beliebten Viertel Hadersdorf-Weidlingau von den Bewohnern liebevoll als "Hawei" bezeichnet vereinen sich modernes Wohnen und historischer Charme zu einem einzigartigen Wohngefühl.

Das Projekt

Moderne, großzügig geschnittene Wohnungen mit lichtdurchfluteten Räumen bieten viel Platz und Komfort für ein angenehmes Wohngefühl. Ergänzt wird dieses Angebot durch wunderschöne Bestandswohnungen, die im Zuge einer umfassenden Sanierung wieder zum Leben erweckt werden.

Ein besonderes Highlight der Wohnanlage ist das unter Denkmalschutz stehende Salettl, das sich im Herzen der Anlage befindet und als Atelier genutzt werden kann. Das Salettl ist nicht nur ein optischer Blickfang, sondern auch ein echtes Unikat, das dem gesamten Projekt einen einzigartigen Charakter verleiht.

  • 14 freifinanzierte Eigentums- und Vorsorgewohnungen
  • 14 Tiefgaragenplätze
  • 3 4 Zimmerwohnungen
  • Wohnungsgrößen zwischen 81 und 137 m²
  • Freiflächen wie Eigengarten, Terrasse, Loggia oder Balkon
  • Kinderwagen- und Fahrradabstellraum 
  • Lift
  • Kellerabteile

Die Ausstattung

  • Hochwertige Parkettböden
  • Feinsteinzeug in den Nassbereichen (Format 30x60 sowie 60x60)
  • Fußbodenheizung mit nachhaltiger Luft-Wärmepumpe
  • Markenausstattung in den Sanitärbereichen (Laufen Pro, Hansgrohe)
  • Holzfenster im Bestand
  • Kunststoff-Alu-Fenster im Neubau
  • Beschattung je bauphysikalischer Gegebenheiten
  • Photovoltaikanlage
  • Vorbereitungen für Klimageräte in den Dachgeschoßwohnungen des Neubaus in der Mauerbachstraße (DG 1 und DG 2)
  • Videogegensprechanlagen

Der Verkauf erfolgt provisionsfrei für den Käufer!

Geplante Fertigstellung: 1. Quartal 2026

Kaufpreis Stellplatz: EUR 30.000,-

Die Lage & Infrastruktur:

Mauerbach gilt als grünes Juwel am Rande Wiens und bietet eine perfekte Balance zwischen Naturverbundenheit und urbaner Lebensqualität. Eingebettet in die malerische Landschaft des Wienerwalds, liegt das Wohnprojekt dennoch in unmittelbarer Nähe zur Stadt. Die ruhige und naturnahe Umgebung mit zahlreichen Wanderwegen, dem nahegelegenen Mauerbach und dem Lainzer Tiergarten bietet unzählige Freizeitmöglichkeiten und lädt zur Erholung im Grünen ein.

Das Projekt ist Teil eines aufstrebenden, dennoch familiären Stadtviertels, in dem Tradition und Moderne miteinander verschmelzen. Hier genießt man die Vorteile einer ruhigen Wohngegend, während das pulsierende Leben der Stadt nur einen Katzensprung entfernt ist.

Die Lage des Projekts überzeugt nicht nur durch ihre idyllische Umgebung, sondern auch durch die hervorragende Infrastruktur. In unmittelbarer Nähe befinden sich zahlreiche Einkaufsmöglichkeiten, Kindergärten, Schulen sowie Arztpraxen, die eine perfekte Versorgung sicherstellen.

Auch die öffentliche Verkehrsanbindung ist optimal. Die S-Bahn-Station Hadersdorf (S50) ist nur wenige Gehminuten entfernt und verbindet Sie in kürzester Zeit mit dem Wiener Westbahnhof und der Wiener Innenstadt. Zudem sorgen die Buslinien 49A und 50A für eine bequeme Verbindung ins Zentrum von Hütteldorf sowie zu weiteren Verkehrsknotenpunkten.

Einen detaillierten Überblick finden Sie auf unserer EHL-Projekthomepage

Wir weisen darauf hin, dass zwischen dem Vermittler und dem zu vermittelnden Dritten ein familiäres oder wirtschaftliches Naheverhältnis besteht.

Der Vermittler ist als Doppelmakler tätig.


Infrastruktur / Entfernungen

Gesundheit
Arzt <2.500m
Apotheke <500m
Klinik <4.500m
Krankenhaus <3.250m

Kinder & Schulen
Schule <250m
Kindergarten <500m
Universität <1.500m
Höhere Schule <7.000m

Nahversorgung
Supermarkt <250m
Bäckerei <500m
Einkaufszentrum <750m

Sonstige
Geldautomat <750m
Bank <750m
Post <750m
Polizei <500m

Verkehr
Bus <250m
Straßenbahn <2.500m
U-Bahn <2.750m
Bahnhof <250m
Autobahnanschluss <750m

Angaben Entfernung Luftlinie / Quelle: OpenStreetMap

Klimaanlage: JA
Provision: Provisionsfrei für den Käufer


Alle Details anzeigen

KONTAKT






 

Lasse dich kostenlos vom Anbieter dieser Immobilie zurückrufen.







 


 
EHL Wohnen GmbH
Daniel Bolataschwili
Telefonnummer anzeigen Telefon Allgemein: +4315127690414
Handy Bearbeiter: +4366488160127
 
Bitte dem Makler die FindMyHome.at - ID bekanntgeben: 5588759

Bewertungen dieses Anbieters
Qualitätsmakler
Qualitätsmakler:
Netiquette
Freundlichkeit
82 %

BEWERTUNGEN DIESES ANBIETERS

 
Qualitätsmakler
UNSERE HALL OF FAME DER BESTEN ANBIETER
Qualit�tsmakler
Qualitätsmakler
2012, 2013, 2014, 2015, 2016, 2017, 2018, 2019, 2020, 2021, 22/23, 2024, 2025
Weiterempfehlung
WIRD GERNE

Freundlichkeit
BESONDERS
FREUNDLICH
Netiquette
FINDMYHOME
NETIQUETTE
Auch du kannst bewerten! 7 Tage nach deiner Anfrage erhältst du dafür von uns ein Bewertungsmail.
Alle Infos zu unseren Auszeichnungen und dem FINDMYHOME.AT Qualitätsprogramm findest du hier: Übersicht anzeigen

FINANZIERUNG
?>

Du willst wissen, wie viel dein Umzug kosten wird?

Mach gleich den kostenlosen Preisvergleich und schau, welche seriösen Anbieter in deiner Region günstig deinen Umzug organisieren


ZUM UMZUGS-VERGLEICH
-->

MYHOME BLOG
SuchAgentin auf FindMyHome.at
Unterschiedlichen Rechtsthemen, köstliche Rezepte, neueste Design-Highlights, sowie aktuelle Technik-Tools für Ihr Eigenheim.


FINDMYHOME.AT SUCHAGENTIN
SuchAgentin auf FindMyHome.at
Hallo, soll ich dir ähnliche Immobilien kostenfrei per E-Mail schicken?


ÄHNLICHE IMMOBILIEN
Aehnliche Immobilie - Vorschaubild 1

RESIDENZ AM STADTRAND - Objektnr. 5602394


72,16 m² - 3 Zimmer
639500 €
PLZ: 1140

Mehr anzeigen

Aehnliche Immobilie - Vorschaubild 2

Historischer Charme trifft modernes Wohnen - Ihr neues Zuhau... - Objektnr. 5588684

82,10 m² - 3.0 Zimmer
625000 €
PLZ: 1140

Mehr anzeigen

Aehnliche Immobilie - Vorschaubild 3

Perfekte Terrassenwohnung für Paare mit Platzbedarf oder kle... - Objektnr. 5609931

78,49 m² - 3.0 Zimmer
528200 €
PLZ: 1140

Mehr anzeigen

Durch die Nutzung unserer Seite erklären Sie sich mit der Verwendung von Cookies zur Verbesserung Ihres Online-Erlebnisses einverstanden. Detaillierte Informationen zu diesem und weiteren Themen erhalten Sie in unserer Datenschutzerklärung.