MEIN ERGEBNIS ANPASSEN

Preisreduktion! Stilvoll wohnen über den Dächern Wiens - ein 3-Zimmer-Dachgeschoßtraum mit 34 m² großer Sonnenterrasse - Objektnr. 5588420

1100
Ort
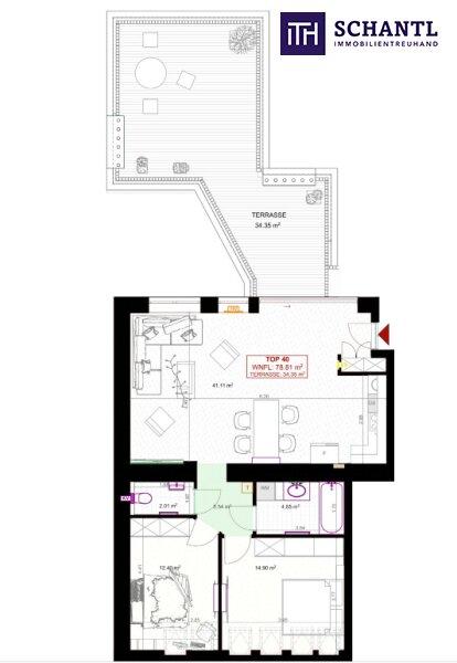
78,81 m²
Fläche
3.0
Zimmer

ECKDATEN
FindMyHome.at // Externe Immobilien-ID5588420 // 291905
ImmobilienartEigentum
AnschriftErlachgasse
1100 Wien,Favoriten
Baujahr2023
Fläche78,81 m²
Terrassen1 (34,00 m²)
Zimmer3.0
Bad1
WC1
Kaufpreis:€ 469.000,00
Ratenzahlung:Finanzierungsmöglichkeiten für diese Immobilie anzeigen
Provision: 3% des Kaufpreises zzgl. 20% USt.







BESCHREIBUNG

Preisreduktion! Stilvoll wohnen über den Dächern Wiens - ein 3-Zimmer-Dachgeschoßtraum mit 34 m² großer Sonnenterrasse

Willkommen in Ihrem neuen Zuhause - Die Wohnung befindet sich im ersten Dachgeschoss und wird im Sommer 2025 schlüsselfertig übergeben

Auf rund 78,81 m² Wohnfläche eröffnet sich Ihnen ein stilvolles Wohnkonzept mit optimaler Raumaufteilung und hochwertiger Ausstattung.

Ein großzügiges, offenes Wohnzimmer bildet das Herzstück der Wohnung und bietet direkten Zugang zur ca. 34 m² großen Terrasse, die sich ruhig und sonnig zum Innenhof orientiert ideal für entspannte Stunden im Freien, Grillabende oder als grüne Oase mitten in der Stadt.

Zwei weitere Zimmer bieten flexible Nutzungsmöglichkeiten als Schlafzimmer, Kinderzimmer, Homeoffice oder Gästezimmer.

Das moderne Badezimmer ist mit einer komfortablen Badewanne ausgestattet ein Ort zum Wohlfühlen und Entspannen. Ebenso verfügt die Wohnung über ein separates WC.

Die Wohnung wird mit einem Eichenholzparkettboden ausgestattet, der in Kombination mit der komfortablen Fußbodenheizung für eine angenehme Wohnatmosphäre sorgt. Eine effiziente Luftwärmepumpe übernimmt die Beheizung der Wohnung und an heißen Tagen sorgt die integrierte Klimaanlage für ein kühles, angenehmes Raumklima.

 

Ausstattungsdetails im Überblick:

  • Großzügiger Wohnbereich mit Zugang zur hofseitigen Terrasse
  • 34 m² Außenfläche mit hochwertigem WPC Belag
  • Fußbodenheizung in allen Wohnräumen
  • Luftwärmepumpe nachhaltig und energiesparend
  • Klimaanlage für optimalen Wohnkomfort im Sommer
  • Hochwertiger Eichenparkettboden
  • Bad mit Badewanne
  • Separates WC
  • Schlüsselfertige Ausführung sofort bezugsfertig nach Fertigstellung
  • Personenlift im Haus
  • Ruhige Innenhoflage

 

Kaufpreis: 469.000 € schlüsselfertig

Wohnfläche 78,81 m² + 34,35 m² Terrasse

 

Überzeugen Sie sich selbst bei einer Besichtigung wir freuen uns auf Ihre Anfrage!

 

Unser Service für Sie: Wenn Sie sich für diese Immobilie entschieden haben, begleiten wir Sie gerne vom Kaufanbot weg inkl. Klärung von Sonderwünschen und der Vertragsunterzeichnung über die Wohnungsübergabe bis hin zu diversen Ummeldungen wie Strom und Gas. Entsprechende Formulare oder auch Meldezettel stellen wir Ihnen sehr gerne zur Verfügung.

Gerne unterstützen wir Sie auch bei der Finanzierung Ihres Traumobjekts und finden mit unseren langjährigen Partnern die besten Konditionen für Sie.

Vereinbaren Sie noch heute einen Termin, wir beraten Sie gerne!

www.schantl-ith.at

Wir weisen darauf hin, dass zwischen dem Vermittler und dem zu vermittelnden Dritten ein familiäres oder wirtschaftliches Naheverhältnis besteht.

Der Vermittler ist als Doppelmakler tätig.


Infrastruktur / Entfernungen

Gesundheit
Arzt <500m
Apotheke <250m
Klinik <1.000m
Krankenhaus <2.500m

Kinder & Schulen
Schule <500m
Kindergarten <250m
Universität <250m
Höhere Schule <1.750m

Nahversorgung
Supermarkt <250m
Bäckerei <500m
Einkaufszentrum <1.500m

Sonstige
Geldautomat <500m
Bank <500m
Post <500m
Polizei <1.250m

Verkehr
Bus <250m
U-Bahn <1.000m
Straßenbahn <250m
Bahnhof <500m
Autobahnanschluss <750m

Angaben Entfernung Luftlinie / Quelle: OpenStreetMap

Klimaanlage: JA
Barrierefrei: JA
Provision: 3% des Kaufpreises zzgl. 20% USt.


Alle Details anzeigen

KONTAKT






 

Lasse dich kostenlos vom Anbieter dieser Immobilie zurückrufen.







 


 
Schantl ITH Immobilientreuhand GmbH
Marlies Sprinzl
Telefonnummer anzeigen Telefon Allgemein: +436643070009
Handy Bearbeiter: +436609094554
 
Bitte dem Makler die FindMyHome.at - ID bekanntgeben: 5588420

Bewertungen dieses Anbieters
Qualitätsmakler
Qualitätsmakler:
2015, 2016, 2018, 2019, 2020, 2021, 2023 , 2024, 2025,
Netiquette
Freundlichkeit
79 %

BEWERTUNGEN DIESES ANBIETERS

 
Qualit�tsmakler
Qualitätsmakler
2015, 2016, 2018, 2019, 2020, 2021, 22/23, 2024, 2025
Antwortzeit
ø 48h ANTWORT
Weiterempfehlung
WIRD GERNE

Freundlichkeit
BESONDERS
FREUNDLICH
Netiquette
FINDMYHOME
NETIQUETTE
Auch du kannst bewerten! 7 Tage nach deiner Anfrage erhältst du dafür von uns ein Bewertungsmail.
Alle Infos zu unseren Auszeichnungen und dem FINDMYHOME.AT Qualitätsprogramm findest du hier: Übersicht anzeigen

FINANZIERUNG
?>

Du willst wissen, wie viel dein Umzug kosten wird?

Mach gleich den kostenlosen Preisvergleich und schau, welche seriösen Anbieter in deiner Region günstig deinen Umzug organisieren


ZUM UMZUGS-VERGLEICH
-->

MYHOME BLOG
SuchAgentin auf FindMyHome.at
Unterschiedlichen Rechtsthemen, köstliche Rezepte, neueste Design-Highlights, sowie aktuelle Technik-Tools für Ihr Eigenheim.


FINDMYHOME.AT SUCHAGENTIN
SuchAgentin auf FindMyHome.at
Hallo, soll ich dir ähnliche Immobilien kostenfrei per E-Mail schicken?


ÄHNLICHE IMMOBILIEN
Aehnliche Immobilie - Vorschaubild 1

Preisreduziert! Urbaner Wohntraum im Dachgeschoss - 3 Zimmer... - Objektnr. 5588419

77,67 m² - 3.0 Zimmer
469000 €
PLZ: 1100

Mehr anzeigen

Aehnliche Immobilie - Vorschaubild 2

Traumhafte Dreizimmerwohnung mit großem Balkon und Garagenpl... - Objektnr. 5588396

68,68 m² - 3.0 Zimmer
549000 €
PLZ: 1100

Mehr anzeigen

Aehnliche Immobilie - Vorschaubild 3

Erstbezug! Schöne Dreizimmerwohnung mit Garten - Objektnr. 5588392

68,68 m² - 3.0 Zimmer
515000 €
PLZ: 1100

Mehr anzeigen

Durch die Nutzung unserer Seite erklären Sie sich mit der Verwendung von Cookies zur Verbesserung Ihres Online-Erlebnisses einverstanden. Detaillierte Informationen zu diesem und weiteren Themen erhalten Sie in unserer Datenschutzerklärung.