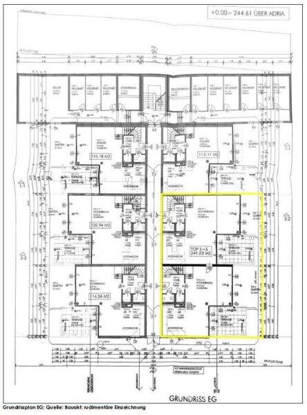
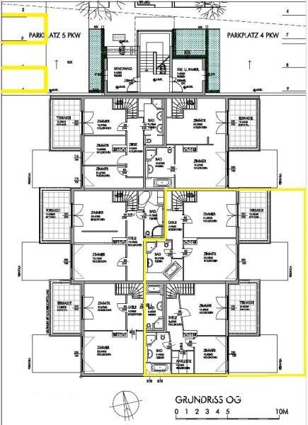
Großzügige Maisonette I 6 Zimmer I Eigengarten - Objektnr. 5588187
WEITERE MEDIEN
ECKDATEN
BESCHREIBUNG
KONTAKT
Lasse dich kostenlos vom Anbieter dieser Immobilie zurückrufen.
AKKADIA Immobilienvermittlung GmbH
Michael Schlaffer
Michael Schlaffer
Telefonnummer anzeigen
Telefon Allgemein: +431512908554
Handy Bearbeiter: +436645225073
Bitte dem Makler die FindMyHome.at - ID bekanntgeben: 5588187
Handy Bearbeiter: +436645225073
Bitte dem Makler die FindMyHome.at - ID bekanntgeben: 5588187
BEWERTUNGEN DIESES ANBIETERS
WIRD GERNE
WEITEREMPFOHLEN
WEITEREMPFOHLEN
BESONDERS
FREUNDLICH
FREUNDLICH
FINDMYHOME.AT
NETIQUETTE
NETIQUETTE
Auch du kannst bewerten! 7 Tage nach deiner Anfrage erhältst du dafür von uns ein Bewertungsmail.
Alle Infos zu unseren Auszeichnungen und dem FINDMYHOME.AT Qualitätsprogramm findest du hier: Übersicht anzeigen
Alle Infos zu unseren Auszeichnungen und dem FINDMYHOME.AT Qualitätsprogramm findest du hier: Übersicht anzeigen
FINANZIERUNG
Du willst wissen, wie viel dein Umzug kosten wird?
Mach gleich den kostenlosen Preisvergleich und schau, welche seriösen Anbieter in deiner Region günstig deinen Umzug organisieren
ZUM UMZUGS-VERGLEICH























