MEIN ERGEBNIS ANPASSEN

Idyllisches Wohnen im Wienerwald: Moderne Eigentumswohnungen in Kaltenleutgeben - Objektnr. 5587694


ökologisch beheizt
2391
Ort
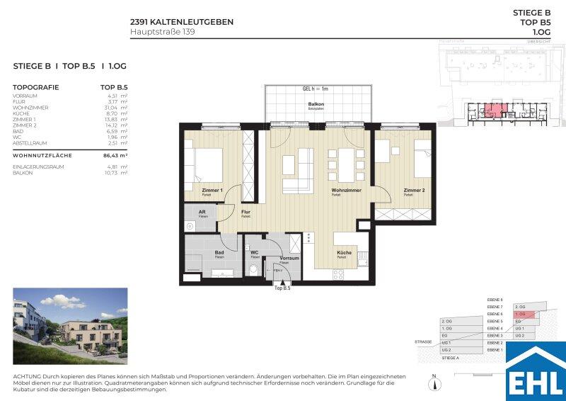
86,43 m²
Fläche
3.0
Zimmer
WEITERE MEDIEN

ECKDATEN
FindMyHome.at // Externe Immobilien-ID5587694 // 83081
ImmobilienartWohnung - Eigentum
AnschriftHauptstraße/5
2391 Kaltenleutgeben
Baujahr2022
Befeuerung
Luftwärmepumpe
Stock1
Fläche86,43 m²
Zimmer3.0
Bad1
WC1
 Abstellraum
Kaufpreis:€ 470.000,00
Ratenzahlung:Finanzierungsmöglichkeiten für diese Immobilie anzeigen
Provision: Provisionsfrei für den Käufer!







BESCHREIBUNG

Idyllisches Wohnen im Wienerwald: Moderne Eigentumswohnungen in Kaltenleutgeben

Kaltenleutgeben die Ruhe des Wienerwalds

Nähere Details finden Sie auf unserer Projekthomepage

Dieses neu fertiggestellte Wohnprojekt liegt mitten im malerischen Wienerwald und verbindet eine ideale Kombination aus naturnaher Umgebung und der Nähe zu Wien.

Insgesamt befinden sich 39 Wohnungen mit großzügigen Freiflächen auf zwei Bauteilen. Beide Bauteile sind mit der Tiefgarage verbunden, zusätzlich steht eine große Gemeinschaftsterrasse zur Verfügung.

Umweltfreundliche Lösungen dank der Greenline

Im Sinne der Ökologisierung, Ressourcenschonung und Kreislaufwirtschaft steht die Greenline für Nachhaltigkeit durch umweltfreundliche Lösungen von der Planung bis zur Fertigstellung. Dieses Gebäude erfüllt nicht nur die geforderten modernsten Standards, sondern bietet ein gesundes Zuhause zum Wohlfühlen.

  • Heizung und Kühlung mit erneuerbarer Energie
  • Holz-Alu-Fenster sind die erste Wahl
  • Alle Baustoffe sind schadstoffgeprüft

Wohnungen zum Wohlfühlen

Die Wohnungen sind großzügig geschnitten und zeichnen sich durch sehr intelligente Grundrissgestaltung aus. Alle Wohnungen verfügen über hochwertige Dielenböden in den Wohnräumen, großformatiges Feinsteinzeug in den Nebenräumen und Bädern, externen Sonnenschutz, Fußbodenheizung und eine Sommer-Temperierung.

Die Heizung und Warmwasserbereitung erfolgt durch eine moderne Luftwärmepumpe, unterstützt wird mit einer Photovoltaikanlage. 

  • Heizung und Kühlung mittels Luftwärmepumpe
  • Photovoltaikanlage am Hausdach
  • Hochwertige Dielenböden in den Wohnräumen
  • Großformatiges Feinsteinzeug in den Bädern und Nebenräumen
  • Holz-Alu-Fenster, 3-Scheibenisolierverglasung
  • Außenliegenden Sonnenschutz, elektrisch bedienbar
  • Fußbodenheizung und Temperierung für den Sommer

 

Mietkauf möglich, Ihre Eigentumswohnung von morgen - wie funktioniert das Modell

Das Mietkaufmodell bietet Ihnen die Möglichkeit, Ihre Wunschwohnung nach Ablauf von 5 Jahren zum aktuellen Kaufpreis (ohne Valorisierung) zu erwerben. Sie schließen einen auf fünf Jahre befristeten Mietvertrag ab und entscheiden am Ende des Mietverhältnisses, ob Sie die Wohnung kaufen möchten oder nicht. Eine Verlängerung des Mietvertrags ist nicht möglich. Bei Mietbeginn wird neben der Kaution eine Anzahlung in Höhe von 10 % des Kaufpreises geleistet. Sollten Sie sich für den Kauf entscheiden, wird Ihnen die geleistete Anzahlung vom Kaufpreis abgezogen. Die geleistete Miete ist auf den Kaufpreis nicht anrechenbar, die Kaution erhalten Sie selbstverständlich zurück. Sollten Sie Ihre Kaufoption nicht ausüben wollen, bekommen Sie Ihre Anzahlung in voller Höhe (verzinst) rückerstattet.

Übrigens: Die Wohnungen erfüllen alle Auflagen, um eine Wohnbauförderung durch das Land Niederösterreich zu erhalten. Nähere Informationen unter: Wohnbauförderung NÖ

 

 

Ihre Lage in Kaltenleutgeben im Wienerwald

Die waldreiche Umgebung lädt zu vielfältigen Outdoor-Aktivitäten ein, darunter Wandern, Radfahren und im Winter auch Langlaufen. Zudem gibt es in der Nähe den Fitnesspark des Emmelparks und den Sportplatz auf der Eiswiese, die für sportliche Betätigungen genutzt werden können.

Verpassen Sie nicht die kulinarischen und kulturellen Höhepunkte, wie das Restaurant Kaiserziegel, nur wenige Schritte entfernt. Es ist bekannt für seine kulturellen Veranstaltungen, darunter der traditionelle Kaisergeburtstag im August, Country-Feste und die Eröffnung der Wildwochen. Diese Events bieten das ganze Jahr über abwechslungsreiche Unterhaltung. Die barocke Pfarrkirche zum hl. Jakobus dem Älteren, erbaut zwischen 1729 und 1732, ist einen Besuch wert.

Für Familien mit Kindern bietet Kaltenleutgeben eine gute Bildungsinfrastruktur. Die örtliche Volksschule legt Wert auf innovative Lehrmethoden und moderne Technik, einschließlich interaktiver Schultafeln und Tablets im Unterricht. Zudem gibt es einen Kindergarten in der Gemeinde, der eine enge Zusammenarbeit mit der Volksschule pflegt, um einen nahtlosen Übergang für die Kinder zu gewährleisten.

Mit der Buslinie 255 erreichen Sie in nur 25 bis 30 Minuten den Bahnhof Liesing, einen wichtigen Verkehrsknotenpunkt im Süden Wiens. Von dort aus haben Sie schnellen Zugang zu den S-Bahn-Linien S1 und S3, die Sie direkt und schnell ins Zentrum von Wien sowie zu weiteren Zielen, wie dem Flughafen Wien, bringen. 
Die S-Bahn-Linien S1 und S3 bieten eine regelmäßige Verbindung und garantieren eine komfortable Weiterfahrt in die Wiener Innenstadt - die ideale Kombination aus ländlichem Charme und urbaner Erreichbarkeit.

Die Lage in Kaltenleutgeben bietet eine harmonische Verbindung von Naturerlebnis, kulturellen Angeboten und städtischer Nähe - ideal für Familien, Naturliebhaber und Berufspendler.

 

Bezugsfertig!

Provisionsfrei für den Mieter/Käufer!

Zusätzlich zur Anzahlung ist eine Kaution von 3 BMM zu hinterlegen!

Wir weisen darauf hin, dass zwischen dem Vermittler und dem zu vermittelnden Dritten ein familiäres oder wirtschaftliches Naheverhältnis besteht.


Infrastruktur / Entfernungen

Gesundheit
Arzt <1.250m
Klinik <2.750m
Apotheke <1.500m
Krankenhaus <5.250m

Kinder & Schulen
Schule <1.250m
Kindergarten <1.250m
Höhere Schule <7.750m
Universität <7.750m

Nahversorgung
Supermarkt <1.750m
Bäckerei <2.750m
Einkaufszentrum <7.500m

Sonstige
Bank <1.250m
Geldautomat <3.250m
Post <1.750m
Polizei <2.750m

Verkehr
Bus <500m
Straßenbahn <6.250m
U-Bahn <9.500m
Bahnhof <7.500m
Autobahnanschluss <4.500m

Angaben Entfernung Luftlinie / Quelle: OpenStreetMap

Klimaanlage: JA
Provision: Provisionsfrei für den Käufer!


Alle Details anzeigen

KONTAKT






 

Lasse dich kostenlos vom Anbieter dieser Immobilie zurückrufen.







 


 
EHL Wohnen GmbH
Ingrid Neugebauer
Telefonnummer anzeigen Telefon Allgemein: +4315127690418
Handy Bearbeiter: +4369915212532
 
Bitte dem Makler die FindMyHome.at - ID bekanntgeben: 5587694

Bewertungen dieses Anbieters
Qualitätsmakler
Qualitätsmakler:
Netiquette
Freundlichkeit
82 %

BEWERTUNGEN DIESES ANBIETERS

 
Qualitätsmakler
UNSERE HALL OF FAME DER BESTEN ANBIETER
Qualit�tsmakler
Qualitätsmakler
2012, 2013, 2014, 2015, 2016, 2017, 2018, 2019, 2020, 2021, 22/23, 2024, 2025
Weiterempfehlung
WIRD GERNE

Freundlichkeit
BESONDERS
FREUNDLICH
Netiquette
FINDMYHOME
NETIQUETTE
Auch du kannst bewerten! 7 Tage nach deiner Anfrage erhältst du dafür von uns ein Bewertungsmail.
Alle Infos zu unseren Auszeichnungen und dem FINDMYHOME.AT Qualitätsprogramm findest du hier: Übersicht anzeigen

FINANZIERUNG
?>

Du willst wissen, wie viel dein Umzug kosten wird?

Mach gleich den kostenlosen Preisvergleich und schau, welche seriösen Anbieter in deiner Region günstig deinen Umzug organisieren


ZUM UMZUGS-VERGLEICH
-->

MYHOME BLOG
SuchAgentin auf FindMyHome.at
Unterschiedlichen Rechtsthemen, köstliche Rezepte, neueste Design-Highlights, sowie aktuelle Technik-Tools für Ihr Eigenheim.


FINDMYHOME.AT SUCHAGENTIN
SuchAgentin auf FindMyHome.at
Hallo, soll ich dir ähnliche Immobilien kostenfrei per E-Mail schicken?


ÄHNLICHE IMMOBILIEN
Aehnliche Immobilie - Vorschaubild 1

Idyllisches Wohnen im Wienerwald: Moderne Eigentumswohnungen... - Objektnr. 5597431

95,27 m² - 4.0 Zimmer
534000 €
PLZ: 2391

Mehr anzeigen

Aehnliche Immobilie - Vorschaubild 2

Idyllisches Wohnen im Wienerwald: Moderne Eigentumswohnungen... - Objektnr. 5607715

95,27 m² - 4.0 Zimmer
534000 €
PLZ: 2391

Mehr anzeigen

Durch die Nutzung unserer Seite erklären Sie sich mit der Verwendung von Cookies zur Verbesserung Ihres Online-Erlebnisses einverstanden. Detaillierte Informationen zu diesem und weiteren Themen erhalten Sie in unserer Datenschutzerklärung.