MEIN ERGEBNIS ANPASSEN

Erstbezug! Helle 2-Zimmer Wohnung, Nähe Donaukanal - Objektnr. 5587367

1030
Ort
74,98 m²
Fläche
3.0
Zimmer

ECKDATEN
FindMyHome.at // Externe Immobilien-ID5587367 // 4904
ImmobilienartEigentum
Anschrift1030 Wien
Baujahr1900
Stock4
Fläche74,98 m²
Zimmer3.0
Bad1
WC1
 Abstellraum
Kaufpreis:€ 510.000,00
Ratenzahlung:Finanzierungsmöglichkeiten für diese Immobilie anzeigen
Provision: 3% des Kaufpreises zzgl. 20% USt.







BESCHREIBUNG

Erstbezug! Helle 2-Zimmer Wohnung, Nähe Donaukanal

Im Falle der Notwendigkeit einer Fremdfinanzierung Ihrer Wunschimmobilie ermittelt unser Wohnbau-Finanzierungsexperte gerne die optimale Finanzierungslösung und findet das passende Zins- und Konditionsangebot für Sie. Er vergleicht die aktuellen Angebote aller relevanten Banken und Bausparkassen. Der Angebotsvergleich kann aus einem Portfolio von über 120 Banken erfolgen. Das Erstgespräch ist für Sie kostenfrei und unverbindlich, gerne auch bei Ihnen vor Ort. So sparen Sie Ihre wertvolle Zeit und erhalten eine professionelle und unabhängige Finanzierungslösung vom Spezialisten. Sprechen Sie uns wegen eines Termins gerne an!

 

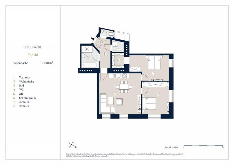
Zum Verkauf gelangt eine schöne 3-Zimmer Wohnung im 3. Wiener Gemeindebezirk.

Die Wohnung befindet sich im 4. Stock eines traditionellen Altbaus aus dem Jahre 1900 und bietet eine Wohnfläche von ca. 75 m². Sie teilt sich in zwei Schlafzimmer, eine Wohnküche, ein Badezimmer, einen Abstellraum, einen Schrankraum und ein WC auf. Die Wohnräume sind mit elegantem Parkett ausgekleidet und die Nassräume mit modernen Fliesen verlegt. Die Wohnung wird mittels Fußbodenheizung beheizt.

Sie betreten die Wohnung und gelangen in den Vorraum, gerade durch gelangen Sie in die geräumige Wohnküche. Die beiden Zimmer sind vom Wohnzimmer getrennt von einander begehbar, eines davon hat einen Schrankraum. Das Badezimmer ist mit einer Badewanne, einer Dusche, einem Waschbecken und einem Handtuchtrockner ausgestattet. Das Bad, die separate Toilette und der Abstellraum mit Waschmaschinenanschluss sind vom Vorraum zu erreichen.

Die Lage der Wohnung ist ausgezeichnet. Die Nähe zur U3 ermöglicht es Ihnen, in nur ca. 10 Minuten direkt im Herzen Wiens, am Stephansplatz, auszusteigen. Für lange Spaziergänge an der frischen Luft bietet sich der Donaukanal an, welcher in nur wenigen Gehminuten erreicht werden kann. Zahlreiche Restaurants sowie Geschäfte des täglichen Bedarfs befinden sich in unmittelbarer Umgebung. Für nähere Informationen zur Infrastruktur, fordern Sie bitte unser Exposé an.

Die Vertragserrichtung und Treuhandabwicklung ist gebunden an die Kanzlei Mag. Schreiber A-1010 Wien, Schottenring 16. Die Kosten betragen 1,5% + 20% Ust + Barauslagen.

Überzeugen Sie sich selbst von dieser großartigen Wohnung.

Gerne lassen wir Ihnen bei ernsthaftem Interesse - vor Kaufanbotlegung - weitere vertraulichen Dokumente zu dieser Liegenschaft zukommen, welche nicht veröffentlicht werden dürfen.

Für Besichtigungen und nähere Informationen stehen wir Ihnen gerne zur Verfügung!

Frau Marie-Louise Eisenburger
national - Tel: 0676 605 9800
international - Tel: +43 676 605 9800
e-mail:

Wir weisen darauf hin, dass zwischen dem Vermittler und dem zu vermittelnden Dritten ein familiäres oder wirtschaftliches Naheverhältnis besteht.

Der Vermittler ist als Doppelmakler tätig.

 

 


Infrastruktur / Entfernungen

Gesundheit
Arzt <500m
Apotheke <500m
Klinik <1.000m
Krankenhaus <1.000m

Kinder & Schulen
Schule <500m
Kindergarten <500m
Universität <1.000m
Höhere Schule <1.000m

Nahversorgung
Supermarkt <500m
Bäckerei <500m
Einkaufszentrum <1.000m

Sonstige
Geldautomat <1.000m
Bank <500m
Post <1.000m
Polizei <500m

Verkehr
Bus <500m
U-Bahn <500m
Straßenbahn <500m
Bahnhof <500m
Autobahnanschluss <500m

Angaben Entfernung Luftlinie / Quelle: OpenStreetMap

Provision: 3% des Kaufpreises zzgl. 20% USt.


Alle Details anzeigen

KONTAKT






 

Lasse dich kostenlos vom Anbieter dieser Immobilie zurückrufen.







 


 
IM Lifestyle Properties GmbH
Marie-Louise Eisenburger
Telefonnummer anzeigen Telefon Allgemein: +4315121484
Handy Bearbeiter: +436766059800
 
Bitte dem Makler die FindMyHome.at - ID bekanntgeben: 5587367

Bewertungen dieses Anbieters
Qualitätsmakler
Qualitätsmakler:
2019, 2023,
Netiquette
Freundlichkeit

BEWERTUNGEN DIESES ANBIETERS

 
Qualit�tsmakler
Qualitätsmakler
2019, 22/23
Freundlichkeit
BESONDERS
FREUNDLICH
Netiquette
FINDMYHOME
NETIQUETTE
Auch du kannst bewerten! 7 Tage nach deiner Anfrage erhältst du dafür von uns ein Bewertungsmail.
Alle Infos zu unseren Auszeichnungen und dem FINDMYHOME.AT Qualitätsprogramm findest du hier: Übersicht anzeigen

FINANZIERUNG
?>

Du willst wissen, wie viel dein Umzug kosten wird?

Mach gleich den kostenlosen Preisvergleich und schau, welche seriösen Anbieter in deiner Region günstig deinen Umzug organisieren


ZUM UMZUGS-VERGLEICH
-->

MYHOME BLOG
SuchAgentin auf FindMyHome.at
Unterschiedlichen Rechtsthemen, köstliche Rezepte, neueste Design-Highlights, sowie aktuelle Technik-Tools für Ihr Eigenheim.


FINDMYHOME.AT SUCHAGENTIN
SuchAgentin auf FindMyHome.at
Hallo, soll ich dir ähnliche Immobilien kostenfrei per E-Mail schicken?


ÄHNLICHE IMMOBILIEN
Aehnliche Immobilie - Vorschaubild 1

NAHE BELVEDERE - ERSTBEZUG nach Sanierung - perfekt geschnit... - Objektnr. 4999287

76,00 m²
559000 €
PLZ: 1030

Mehr anzeigen

Aehnliche Immobilie - Vorschaubild 2

Preisgesenkt - Frisch saniert! Ein MUST HAVE! Absolute Hof-R... - Objektnr. 5565479

62,76 m² - 2.0 Zimmer
495000 €
PLZ: 1030

Mehr anzeigen

Aehnliche Immobilie - Vorschaubild 3

Einkaufen, Ausgehen, Einsteigen - alles vor der Tür! Ideale ... - Objektnr. 5565415

77,79 m² - 3.0 Zimmer
449000 €
PLZ: 1030

Mehr anzeigen

Durch die Nutzung unserer Seite erklären Sie sich mit der Verwendung von Cookies zur Verbesserung Ihres Online-Erlebnisses einverstanden. Detaillierte Informationen zu diesem und weiteren Themen erhalten Sie in unserer Datenschutzerklärung.