MEIN ERGEBNIS ANPASSEN

Investieren in Reihenhäuser in St. Pölten - Rendite trifft Stadtleben. - Objektnr. 5587287

3100
Ort
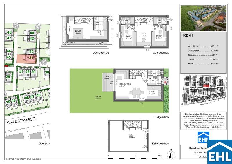
99,72 m²
Fläche
4.0
Zimmer
WEITERE MEDIEN

ECKDATEN
FindMyHome.at // Externe Immobilien-ID5587287 // 86876
ImmobilienartHaus - Eigentum
AnschriftWaldstraße/41
3100 St. Pölten
Baujahr2025
Fläche99,72 m²
Terrassen2 (19,00 m²)
Zimmer4.0
Bad3
WC4
Kaufpreis:€ 448.894,00
Ratenzahlung:Finanzierungsmöglichkeiten für diese Immobilie anzeigen
Provision: Provision bezahlt der Abgeber.







BESCHREIBUNG

Investieren in Reihenhäuser in St. Pölten - Rendite trifft Stadtleben.

JETZT NEU Vorsorgeimmobilie erwerben und Grunderwerbsteuer sparen!

Willkommen im exklusiven Neubauprojekt Nova Terra Wohnen mit Perspektive

In erstklassiger Lage am Eisberg in St. Pölten entstehen 56 moderne Reihen- und Doppelhäuser ein Investment mit Zukunft! Diese einzigartige Wohnanlage vereint modernes Design, nachhaltige Bauweise und hohe Lebensqualität in naturnaher Umgebung. Gleichzeitig überzeugt sie durch die Nähe zur Stadt ideal für Eigennutzer wie auch Kapitalanleger.

Dank durchdachter Grundrisse, hochwertiger Ausstattung und attraktiver Förderungen bietet dieses Projekt ideale Voraussetzungen für eine zukunftssichere Anlage. Die massive Ziegelbauweise in Kombination mit Energieeffizienzklasse A, Smart-Home-Lösungen und optionalem Keller verspricht langfristige Wertbeständigkeit.

Ein besonderes Highlight für Anleger: Der Bauträger übernimmt die Grunderwerbsteuer in Höhe von 3,5% das bedeutet bares Geld sparen beim Kauf.

Das Projekt

· 56 Reihen- und Doppelhäuser ideal für Familien, Paare und Mieter

· 99 109m² Wohnfläche, verteilt auf 3 Etagen, teilweise mit eigenem Keller

· 4 Zimmer flexibel nutzbar als Schlafzimmer, Homeoffice oder Gästezimmer

· Großzügige Freiflächen: Eigengarten, Terrasse, teils mit Dachterrasse

· 2 Tiefgaragenplätze pro Einheit inklusive (auf Wunsch 3 möglich)

Die Ausstattung

Die nachhaltige und komfortorientierte Ausstattung gewährleistet nicht nur hohe Wohnqualität, sondern auch geringe Betriebskosten ein Vorteil bei langfristiger Vermietung:

  • Luft-/Wasserwärmepumpe effizient & umweltschonend
  • Photovoltaikanlage reduziert laufende Energiekosten
  • Fußbodenheizung wartungsarm und komfortabel
  • 3-fach verglaste Kunststoff-Alufenster mit Außenbeschattung
  • Exklusive Holzböden & moderne Designerfliesen
  • KNX-System vorbereitet für intelligentes Wohnen (Smart Home Ready)

Kaufpreise der Vorsorgewohnungen

von EUR 410.526,- bis EUR 515.024,- netto zzgl. 20% USt.

Zu erwartender Mietertrag

von ca. EUR 12,75 bis EUR 14,50 netto/m²

Provisionsfrei für den Kunden!
Fertigstellung: bereits erfolgt

Bei diesem Angebot handelt es sich um eine Vorsorgewohnung, die zu Vermietungszwecken erworben wird. Der angegebene Kaufpreis versteht sich daher zzgl. 20% USt. Diese Daten sind vorbehaltlich möglicher Änderungen.

Ein detaillierten Überblick finden Sie auf unserer EHL-Projekthomepage!

Wir weisen darauf hin, dass zwischen dem Vermittler und dem zu vermittelnden Dritten ein familiäres oder wirtschaftliches Naheverhältnis besteht.


Infrastruktur / Entfernungen

Gesundheit
Arzt <1.750m
Apotheke <2.000m
Klinik <2.250m
Krankenhaus <2.250m

Kinder & Schulen
Schule <1.250m
Kindergarten <1.000m
Universität <2.500m
Höhere Schule <2.250m

Nahversorgung
Supermarkt <1.750m
Bäckerei <1.250m
Einkaufszentrum <1.750m

Sonstige
Bank <1.750m
Geldautomat <1.750m
Polizei <750m
Post <2.000m

Verkehr
Bus <250m
Bahnhof <1.500m
Autobahnanschluss <1.500m
Flughafen <5.500m

Angaben Entfernung Luftlinie / Quelle: OpenStreetMap

Provision: Provision bezahlt der Abgeber.


Alle Details anzeigen

KONTAKT






 

Lasse dich kostenlos vom Anbieter dieser Immobilie zurückrufen.







 


 
EHL Wohnen GmbH
Andrea PÖCHHACKER; MSc
Telefonnummer anzeigen Telefon Allgemein: +4315127690411
Handy Bearbeiter: +436648373481
 
Bitte dem Makler die FindMyHome.at - ID bekanntgeben: 5587287

Bewertungen dieses Anbieters
Qualitätsmakler
Qualitätsmakler:
Netiquette
Freundlichkeit
82 %

BEWERTUNGEN DIESES ANBIETERS

 
Qualitätsmakler
UNSERE HALL OF FAME DER BESTEN ANBIETER
Qualit�tsmakler
Qualitätsmakler
2012, 2013, 2014, 2015, 2016, 2017, 2018, 2019, 2020, 2021, 22/23, 2024, 2025
Weiterempfehlung
WIRD GERNE

Freundlichkeit
BESONDERS
FREUNDLICH
Netiquette
FINDMYHOME
NETIQUETTE
Auch du kannst bewerten! 7 Tage nach deiner Anfrage erhältst du dafür von uns ein Bewertungsmail.
Alle Infos zu unseren Auszeichnungen und dem FINDMYHOME.AT Qualitätsprogramm findest du hier: Übersicht anzeigen

FINANZIERUNG
?>

Du willst wissen, wie viel dein Umzug kosten wird?

Mach gleich den kostenlosen Preisvergleich und schau, welche seriösen Anbieter in deiner Region günstig deinen Umzug organisieren


ZUM UMZUGS-VERGLEICH
-->

MYHOME BLOG
SuchAgentin auf FindMyHome.at
Unterschiedlichen Rechtsthemen, köstliche Rezepte, neueste Design-Highlights, sowie aktuelle Technik-Tools für Ihr Eigenheim.


FINDMYHOME.AT SUCHAGENTIN
SuchAgentin auf FindMyHome.at
Hallo, soll ich dir ähnliche Immobilien kostenfrei per E-Mail schicken?


ÄHNLICHE IMMOBILIEN
Aehnliche Immobilie - Vorschaubild 1

Investieren in Reihenhäuser in St. Pölten - Wachstum trifft ... - Objektnr. 5587299

104,78 m² - 4.0 Zimmer
455984 €
PLZ: 3100

Mehr anzeigen

Aehnliche Immobilie - Vorschaubild 2

Investieren in Reihenhäuser in St. Pölten - Wachstum trifft ... - Objektnr. 5587294

104,60 m² - 4.0 Zimmer
471332 €
PLZ: 3100

Mehr anzeigen

Aehnliche Immobilie - Vorschaubild 3

Investieren in Reihenhäuser in St. Pölten - Jetzt investiere... - Objektnr. 5587301

106,14 m² - 4.0 Zimmer
457728 €
PLZ: 3100

Mehr anzeigen

Durch die Nutzung unserer Seite erklären Sie sich mit der Verwendung von Cookies zur Verbesserung Ihres Online-Erlebnisses einverstanden. Detaillierte Informationen zu diesem und weiteren Themen erhalten Sie in unserer Datenschutzerklärung.