MEIN ERGEBNIS ANPASSEN

Ein Zuhause zum Verlieben: Einfamilienhäuser in der Maigasse *ERSTBEZUG *EIGENGRUND *NÄHE ZUR SCN - Objektnr. 5587160

1210
Ort
131,56 m²
Fläche
5.0
Zimmer

ECKDATEN
FindMyHome.at // Externe Immobilien-ID5587160 // 291776
ImmobilienartHaus - Eigentum
AnschriftMaigasse
1210 Wien
Geschosse3
Fläche131,56 m²
Terrassen2 (17,00 m²)
Zimmer5.0
 Abstellraum
Kaufpreis:€ 749.000,00
Ratenzahlung:Finanzierungsmöglichkeiten für diese Immobilie anzeigen
Provision: 3% des Kaufpreises zzgl. 20% USt.







BESCHREIBUNG

Ein Zuhause zum Verlieben: Einfamilienhäuser in der Maigasse *ERSTBEZUG *EIGENGRUND *NÄHE ZUR SCN

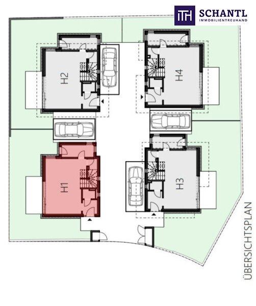
Einzigartiges Architekturprojekt in 1210 Wien: 4 Einfamilienhäuser in der Maigasse auf EIGENGRUND!

Willkommen in Ihrem neuen Zuhause! Wir freuen uns, Ihnen ein exklusives Wohnprojekt in einer wunderschönen Gegend Wiens präsentieren zu dürfen. An der Maigasse entstehen vier Einfamilienhäuser auf Eigengrund, die höchsten Wohnkomfort und modernste Ausstattung bieten.

Jedes der Häuser verfügt über eine großzügige Wohnfläche zwischen 131 und 138m², ideal für Familien oder Paare, die Wert auf Raum und Gemütlichkeit legen. Genießen Sie die Privatsphäre Ihres eigenen Gartens, der zwischen 60 und 81m² groß ist, sowie die sonnigen Terrassen mit 16 oder 17m², die zum Entspannen und Genießen einladen. Ein Stellplatz pro Haus inklusive!

Die Ausstattung lässt keine Wünsche offen:

  • 3-fach wärmeschutzverglaste Fenster für optimale Energieeffizienz und Ruhe
  • Elektrische Rollläden für mehr Komfort und Sicherheit
  • Lehrverrohrung für Photovoltaikanlage am Dach, um Ihren ökologischen Fußabdruck zu reduzieren
  • Luft/Wasser-Wärmepumpe für nachhaltige und kosteneffiziente Wärmeerzeugung
  • Klimatisierung erfolgt über eine Deckenkühlung (Betonkernaktivierung) für angenehmes Raumklima Wasseranschluss im Garten für Ihre individuelle Gestaltungsmöglichkeit
  • Glasgeländer auf den Terrassen für klare Sicht und modernes Design
  • Inklusive eines Lamellenzauns für zusätzliche Privatsphäre und Sicherheit
  • Aufschließungskosten inklusive! uvm.

Schlüsselfertige Ausführung nach Wunsch möglich. Die schlüsselfertige Ausführung beträgt lt. Bau- und Ausstattungsbeschreibung € 39.000.- brutto / Haus

INFRASTRUKTUR

Die Infrastruktur in der Umgebung lässt ebenfalls keine Wünsche offen. Die Maigasse bietet eine hervorragende Anbindung an öffentliche Verkehrsmittel und ist nur wenige Minuten von Einkaufsmöglichkeiten, Schulen, Kindergärten und Freizeiteinrichtungen entfernt. Hier vereinen sich städtisches Leben und Ruhe in perfekter Harmonie.

Der Bahnhof Siemensstraße liegt etwa 10 Gehminuten entfernt und ist auch bequem mit dem Bus 28A in wenigen Stationen zu erreichen. Dort angekommen, stehen Ihnen zahlreiche Schnellbahnverbindungen der Linien S1, S2, S3 und S7 zur Verfügung.

Wir freuen uns darauf, Sie persönlich zu beraten!

Bei konkretem Interesse senden wir Ihnen sehr gerne weiterführende Dokumente zu, wie:

  • Energieausweis
  • Bau- und Ausstattungsbeschreibung (belagsfertige und schlüsselfertige Version)

Unser Service für Sie: Wenn Sie sich für diese Immobilie entschieden haben, begleiten wir Sie gerne vom Kaufanbot weg inkl. Klärung von Sonderwünschen und der Vertragsunterzeichnung über die Übergabe bis hin zu diversen Ummeldungen. Entsprechende Formulare oder auch Meldezettel stellen wir Ihnen sehr gerne zur Verfügung.

Gerne unterstützen wir Sie auch bei der Finanzierung Ihres Traumobjekts und finden mit unseren langjährigen Partnern die besten Konditionen für Sie.

FINANZIEREN SIE IHRE TRAUMIMMOBILIE ÜBER DIE HAUSBANK DES BAUTRÄGERS UND PROFITIEREN SIE VON EINEM ATTRAKTIVEM FIXZINS!

Erleben Sie das Beste aus beiden Welten die Annehmlichkeiten der Stadt und die Ruhe eines eigenen Zuhauses in der Maigasse. 

Sie wollen Ihre Immobilie verkaufen oder vermieten Dann sind Sie bei uns goldrichtig! Gerne beraten wir Sie kostenlos bei der Bewertung Ihrer Immobilie und präsentieren Ihnen die dafür entscheidenden Informationen und Unterlagen unverbindlich.

Wir weisen darauf hin, dass zwischen dem Vermittler und dem zu vermittelnden Dritten ein familiäres oder wirtschaftliches Naheverhältnis besteht.

Der Vermittler ist als Doppelmakler tätig.


Infrastruktur / Entfernungen

Gesundheit
Arzt <1.250m
Apotheke <1.250m
Klinik <1.000m
Krankenhaus <1.000m

Kinder & Schulen
Schule <1.000m
Kindergarten <750m
Universität <1.750m
Höhere Schule <2.000m

Nahversorgung
Supermarkt <750m
Bäckerei <1.000m
Einkaufszentrum <1.500m

Sonstige
Geldautomat <1.500m
Bank <1.500m
Post <1.250m
Polizei <1.250m

Verkehr
Bus <500m
U-Bahn <1.500m
Straßenbahn <1.250m
Bahnhof <750m
Autobahnanschluss <1.750m

Angaben Entfernung Luftlinie / Quelle: OpenStreetMap

Klimaanlage: JA
Gartennutzung: JA
Kabel/SAT/TV: JA
Provision: 3% des Kaufpreises zzgl. 20% USt.


Alle Details anzeigen

KONTAKT






 

Lasse dich kostenlos vom Anbieter dieser Immobilie zurückrufen.







 


 
Schantl ITH Immobilientreuhand GmbH
Magdalena Tiatco-Frank
Telefonnummer anzeigen Telefon Allgemein: +436643070009
Handy Bearbeiter: +436769552411
 
Bitte dem Makler die FindMyHome.at - ID bekanntgeben: 5587160

Bewertungen dieses Anbieters
Qualitätsmakler
Qualitätsmakler:
2015, 2016, 2018, 2019, 2020, 2021, 2023 , 2024, 2025,
Netiquette
Freundlichkeit
79 %

BEWERTUNGEN DIESES ANBIETERS

 
Qualit�tsmakler
Qualitätsmakler
2015, 2016, 2018, 2019, 2020, 2021, 22/23, 2024, 2025
Antwortzeit
ø 48h ANTWORT
Weiterempfehlung
WIRD GERNE

Freundlichkeit
BESONDERS
FREUNDLICH
Netiquette
FINDMYHOME
NETIQUETTE
Auch du kannst bewerten! 7 Tage nach deiner Anfrage erhältst du dafür von uns ein Bewertungsmail.
Alle Infos zu unseren Auszeichnungen und dem FINDMYHOME.AT Qualitätsprogramm findest du hier: Übersicht anzeigen

FINANZIERUNG
?>

Du willst wissen, wie viel dein Umzug kosten wird?

Mach gleich den kostenlosen Preisvergleich und schau, welche seriösen Anbieter in deiner Region günstig deinen Umzug organisieren


ZUM UMZUGS-VERGLEICH
-->

MYHOME BLOG
SuchAgentin auf FindMyHome.at
Unterschiedlichen Rechtsthemen, köstliche Rezepte, neueste Design-Highlights, sowie aktuelle Technik-Tools für Ihr Eigenheim.


FINDMYHOME.AT SUCHAGENTIN
SuchAgentin auf FindMyHome.at
Hallo, soll ich dir ähnliche Immobilien kostenfrei per E-Mail schicken?


ÄHNLICHE IMMOBILIEN
Aehnliche Immobilie - Vorschaubild 1

Lebensqualität trifft auf moderne Eleganz: Maigasse, Ihr neu... - Objektnr. 5587161

138,10 m² - 5.0 Zimmer
769000 €
PLZ: 1210

Mehr anzeigen

Aehnliche Immobilie - Vorschaubild 2

Lebensqualität trifft auf moderne Eleganz: Maigasse, Ihr neu... - Objektnr. 5587138

138,10 m² - 5.0 Zimmer
769000 €
PLZ: 1210

Mehr anzeigen

Aehnliche Immobilie - Vorschaubild 3

Hallo Familien! Reihenhäuser in Stammersdorf - Objektnr. 5542988

115,69 m² - 5.0 Zimmer
609900 €
PLZ: 1210

Mehr anzeigen

Durch die Nutzung unserer Seite erklären Sie sich mit der Verwendung von Cookies zur Verbesserung Ihres Online-Erlebnisses einverstanden. Detaillierte Informationen zu diesem und weiteren Themen erhalten Sie in unserer Datenschutzerklärung.