MEIN ERGEBNIS ANPASSEN

++ Familienidylle in Grünruhelage ++ Wellnessbereich inklusive + großzügiger Garten mit Altbaumbestand - Objektnr. 5587135

1220
Ort
210,79 m²
Fläche
5.0
Zimmer

ECKDATEN
FindMyHome.at // Externe Immobilien-ID5587135 // 291803
ImmobilienartHaus - Eigentum
AnschriftWaldviertlerweg
1220 Wien
Baujahr2009
Fläche210,79 m²
Terrassen1 (20,00 m²)
Zimmer5.0
 Abstellraum
Kaufpreis:€ 1.490.000,00
Ratenzahlung:Finanzierungsmöglichkeiten für diese Immobilie anzeigen
Provision: 3% des Kaufpreises zzgl. 20% Ust.







BESCHREIBUNG

++ Familienidylle in Grünruhelage ++ Wellnessbereich inklusive + großzügiger Garten mit Altbaumbestand

In einer ruhigen und grünen Gegend im 22. Bezirk von Wien befindet sich dieses traumhafte Einfamilienhaus, welches Ihnen ein luxuriöses und komfortables Zuhause bietet. Mit einer Wohnfläche von 210.79m² und einem Kaufpreis von 1.490.000,00 € ist dieses Haus nicht nur eine Investition in eine Immobilie, sondern auch in ein einmaliges Lebensgefühl.

Das Haus besticht nicht nur durch seine idyllische Lage, sondern auch durch seine gepflegte Erscheinung. Schon beim Betreten des Grundstücks werden Sie von einem liebevoll angelegten Garten empfangen, der für Entspannung und Erholung sorgt. Die angrenzende Terrasse bietet genügend Platz für gemütliche Grillabende mit Familie und Freunden.

Das Haus selbst verfügt über insgesamt 5 Zimmer, die sich auf zwei Etagen verteilen. Durch die großzügige Raumaufteilung haben Sie hier ausreichend Platz für Ihre individuellen Gestaltungswünsche. Die hochwertigen Fliesen und Parkettböden sorgen für ein elegantes Ambiente und schaffen eine Wohlfühlatmosphäre in jedem Raum.

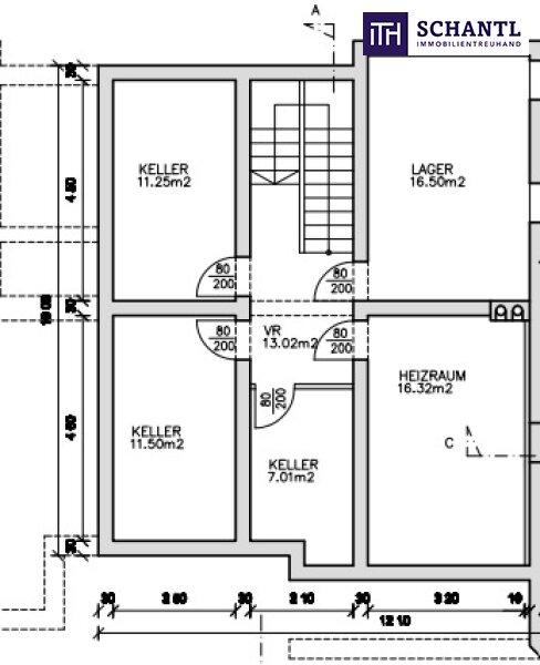
Erweitert wird die Wohnfläche durch das ca. 76m² große Kellergeschoß, welches neben Stauraum auch einen Wellnessbereich mit Sauna und Whirlpool + Dusche bietet.

Ein besonderes Highlight ist der Grünblick, den Sie von nahezu jedem Zimmer aus genießen können. Dieser schafft eine Verbindung zur Natur und gibt Ihnen das Gefühl, mitten im Grünen zu leben. Egal ob beim Frühstück im großzügigen Esszimmer oder beim Entspannen im Wohnzimmer der Ausblick wird Sie begeistern.

Die Einbauküche ist bereits im Kaufpreis enthalten und lässt keine Wünsche offen. Hier können Sie Ihre kulinarischen Fähigkeiten entfalten und Ihre Liebsten mit köstlichen Gerichten verwöhnen. Das Hauptbadezimmer ist mit einer einladender Eckbadewanne ausgestattet und verfügt über ein Fenster, das für ausreichend Tageslicht sorgt. Das zweite Badezimmer im Obergeschoss bietet zusätzlich eine Dusche. Im unteren Wohnbereich finden Sie zudem ein drittes Badezimmer, welches sich ideal als Gästebad anbietet.

Das Haus verfügt außerdem über eine Garage, in der Sie Ihr Auto sicher und trocken abstellen können. Auch für Besucher gibt es ausreichend Parkmöglichkeiten direkt vor dem Haus.

Die Verkehrsanbindung ist durch eine nahegelegene Busstation ideal. So können Sie schnell und bequem in die Wiener Innenstadt gelangen. Auch Supermärkte und weitere Geschäfte des täglichen Bedarfs befinden sich in unmittelbarer Nähe, sodass Sie alle Besorgungen bequem zu Fuß erledigen können.

Nutzen Sie die Gelegenheit und erfüllen Sie sich den Traum vom Eigenheim in einer der beliebtesten Wohngegenden Wiens. Lassen Sie sich von diesem einzigartigen Einfamilienhaus verzaubern und vereinbaren Sie noch heute einen Besichtigungstermin. Wir freuen uns auf Sie!

Kaufpreis: EUR 1.490.000,- 

Provision: 3% des Kaufpreises zzgl. 20% Ust.

Bei konkretem Interesse senden wir Ihnen sehr gerne weiterführende Dokumente zu, wie:

o Grundbuchauszug

Unser Service für Sie: Wenn Sie sich für diese Immobilie entschieden haben, begleiten wir Sie gerne vom Kaufanbot weg inkl. Klärung von Sonderwünschen und der Vertragsunterzeichnung über die Wohnungsübergabe bis hin zu diversen Ummeldungen wie Strom und Gas. Entsprechende Formulare oder auch Meldezettel stellen wir Ihnen sehr gerne zur Verfügung.

Gerne unterstützen wir Sie auch bei der Finanzierung Ihres Traumobjekts und finden mit unseren langjährigen Partnern die besten Konditionen für Sie.

Vereinbaren Sie noch heute einen Termin, wir beraten Sie gerne!

Sie wollen Ihre Immobilie verkaufen Dann sind Sie bei uns goldrichtig! Gerne beraten wir Sie kostenlos bei der Bewertung Ihrer Immobilie und präsentieren Ihnen die dafür entscheidenden Informationen und Unterlagen unverbindlich. 

www.schantl-ith.at

Hinweis gemäß Energieausweisvorlagegesetz: Ein Energieausweis wurde vom Eigentümer bzw. Verkäufer, nach unserer Aufklärung über die generell geltende Vorlagepflicht, sowie Aufforderung zu seiner Erstellung noch nicht vorgelegt. Daher gilt zumindest eine dem Alter und der Art des Gebäudes entsprechende Gesamtenergieeffizienz als vereinbart. Wir übernehmen keinerlei Gewähr oder Haftung für die tatsächliche Energieeffizienz der angebotenen Immobilie.

Wir weisen darauf hin, dass zwischen dem Vermittler und dem zu vermittelnden Dritten ein familiäres oder wirtschaftliches Naheverhältnis besteht.

Der Vermittler ist als Doppelmakler tätig.


Infrastruktur / Entfernungen

Gesundheit
Arzt <1.250m
Apotheke <2.000m
Klinik <2.000m
Krankenhaus <2.000m

Kinder & Schulen
Schule <1.750m
Kindergarten <1.500m
Universität <2.750m
Höhere Schule <3.750m

Nahversorgung
Supermarkt <500m
Bäckerei <2.000m
Einkaufszentrum <3.750m

Sonstige
Geldautomat <2.000m
Bank <2.250m
Post <2.000m
Polizei <2.000m

Verkehr
Bus <250m
U-Bahn <2.000m
Straßenbahn <2.000m
Bahnhof <2.000m
Autobahnanschluss <2.000m

Angaben Entfernung Luftlinie / Quelle: OpenStreetMap

Gartennutzung: JA
Kabel/SAT/TV: JA
Provision: 3% des Kaufpreises zzgl. 20% USt.


Alle Details anzeigen

KONTAKT






 

Lasse dich kostenlos vom Anbieter dieser Immobilie zurückrufen.







 


 
Schantl ITH Immobilientreuhand GmbH
Magdalena Tiatco-Frank
Telefonnummer anzeigen Telefon Allgemein: +436643070009
Handy Bearbeiter: +436769552411
 
Bitte dem Makler die FindMyHome.at - ID bekanntgeben: 5587135

Bewertungen dieses Anbieters
Qualitätsmakler
Qualitätsmakler:
2015, 2016, 2018, 2019, 2020, 2021, 2023 , 2024, 2025,
Netiquette
Freundlichkeit
79 %

BEWERTUNGEN DIESES ANBIETERS

 
Qualit�tsmakler
Qualitätsmakler
2015, 2016, 2018, 2019, 2020, 2021, 22/23, 2024, 2025
Antwortzeit
ø 48h ANTWORT
Weiterempfehlung
WIRD GERNE

Freundlichkeit
BESONDERS
FREUNDLICH
Netiquette
FINDMYHOME
NETIQUETTE
Auch du kannst bewerten! 7 Tage nach deiner Anfrage erhältst du dafür von uns ein Bewertungsmail.
Alle Infos zu unseren Auszeichnungen und dem FINDMYHOME.AT Qualitätsprogramm findest du hier: Übersicht anzeigen

FINANZIERUNG
?>

Du willst wissen, wie viel dein Umzug kosten wird?

Mach gleich den kostenlosen Preisvergleich und schau, welche seriösen Anbieter in deiner Region günstig deinen Umzug organisieren


ZUM UMZUGS-VERGLEICH
-->

MYHOME BLOG
SuchAgentin auf FindMyHome.at
Unterschiedlichen Rechtsthemen, köstliche Rezepte, neueste Design-Highlights, sowie aktuelle Technik-Tools für Ihr Eigenheim.


FINDMYHOME.AT SUCHAGENTIN
SuchAgentin auf FindMyHome.at
Hallo, soll ich dir ähnliche Immobilien kostenfrei per E-Mail schicken?


ÄHNLICHE IMMOBILIEN
Aehnliche Immobilie - Vorschaubild 1

1220, Promenadestraße, Nur 170 m zur unteren Alten Donau, Do... - Objektnr. 5521857

178,62 m² - 5 Zimmer
1343900 €
PLZ: 1220

Mehr anzeigen

Aehnliche Immobilie - Vorschaubild 2

Für ganz viel Familie. Charmantes Einzelhaus mit Garten dire... - Objektnr. 5077706

169,74 m² - 5 Zimmer
1399900 €
PLZ: 1220

Mehr anzeigen

Aehnliche Immobilie - Vorschaubild 3

1220, Promenadestraße, Nur 170 m zur unteren Alten Donau, Do... - Objektnr. 5521858

174,88 m² - 5 Zimmer
1294900 €
PLZ: 1220

Mehr anzeigen

Durch die Nutzung unserer Seite erklären Sie sich mit der Verwendung von Cookies zur Verbesserung Ihres Online-Erlebnisses einverstanden. Detaillierte Informationen zu diesem und weiteren Themen erhalten Sie in unserer Datenschutzerklärung.