MEIN ERGEBNIS ANPASSEN

PARKAPARTMENT AM BELVEDERE: 2-ZIMMER-LOGGIA-WHG. IM 10. OG - Objektnr. 5585875


ökologisch beheizt
1100
Ort
€ 1.248,26
Gesamtkosten
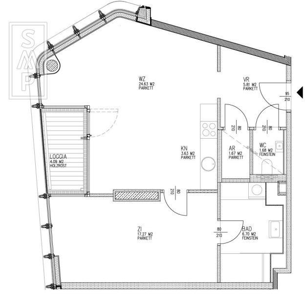
61,39 m²
Fläche
2.0
Zimmer

ECKDATEN
FindMyHome.at // Externe Immobilien-ID5585875 // 508
ImmobilienartWohnung - Miete
Anschrift1100 Wien,Favoriten
Baujahr2019
Befeuerung
Fernwärme
Stock10
Mietdauer5
Fläche61,39 m²
Zimmer2.0
Bad1
WC1
 Abstellraum
Kaution:€ 4.530,00
Brutto-Miete:€ 1.248,26
Betriebskosten (inkl. MwSt):€ 135,58
Mehrwertsteuer:€ 113,48
Monatliche Gesamtkosten:€ 1.248,26
Provision: Gemäß Erstauftraggeberprinzip bezahlt der Abgeber die Provision.




BESCHREIBUNG

PARKAPARTMENT AM BELVEDERE: 2-ZIMMER-LOGGIA-WHG. IM 10. OG

Die im 10. OG gelegene 2-Zimmer Wohnung befindet sich in den 2019 fertigstellten Parkapartments am Belvedere. Das vom namhaften Architekten Renzo Piano entworfene Projekt, begeistert durch die außergewöhnliche Bauweise, die großen Glasflächen und lässt auch sonst keinen Komfort vermissen.

In der Wohnanlage befinden sich ein eigenes Gym mit hochwertigen Trainingsgeräten, ein multifunktioneller Gemeinschaftsraum mit Küche, ein Gemeinschaftsgarten mit Trainings-Outdoorbereich, eine Paketabholstation mit Rücksendeoption im Eingangsbereich, ein Hundewaschplatz und ein digitaler Concierge-Service. Im EG befinden sich die Waschküche, der Kinderwagen- und Fahrradraum und der Müllraum und im 1 UG befindet sich das 3,75m² große Kellerabteil.

Die 2-Zimmer Wohnung wird über eine Fußbodenheizung beheizt und in den heißen Tagen durch eine Deckenkühlung gekühlt. In der Wohnung befindet sich eine hochwertige Küche, die mit nachfolgenden Geräten ausgestattet ist:

  • Induktionsherd mit Backrohr
  • Mikrowelle
  • Geschirrspüler
  • Kühlschrank mit Gemüselade
  • Tiefkühler

Die Wohnung wurde modern ausgestattet und die Möbel sind Teil des Mietgegenstands. Des Weiteren verfügt die Wohnung über eine großzügige Loggia, ein großes Bad mit begehbarer Dusche und Waschmaschinenanschluss sowie einen Wirtschaftsraum und ein Kellerabteil.

Die Wohnung ist an den hauseigenen Smart-Home-Server angeschlossen über diesen können zB. die Außenbeschattungen der 3 Wohntürme automatisch gesteuert werden. Die Parkapartments am Belvedere in Wien waren damit im Jahr 2019 das größte Smart-Home-Projekt in Europa.

Brutto-Gesamtmiete: EUR 1.450*

Kaution: EUR 4.350

Mietdauer: 5 Jahre

*In der monatlichen Brutto-Gesamtmiete sind die Betriebs- und Liftkosten, sowie ein Pauschalbetrag für Heizung, Warmwasser, Wassergebühr, Kühlung und Kaltwasser enthalten, die tatsächlichen Kosten werden über die in der Wohnung befindlichen Messgeräte jährlich abgelesen und abgerechnet. Die detaillierte Aufgliederung, erhalten Sie mit dem ausführlichen Exposé nach Ihrer Anfrage.

Die Stromkosten sind in der Gesamtmiete nicht enthalten und sind direkt mit dem jeweiligen Energieanbieter verbrauchsabhängig abzurechnen.

 

Für ein ausführliches Exposé mit detaillierter Beschreibung, bzw. eine unverbindliche Besichtigung ersuchen wir Sie um schriftliche Anfrage mit Ihren vollständigen Daten (Vor- und Familienname, Postanschrift und Telefonnummer)

Wir weisen darauf hin, dass zwischen dem Vermittler und dem zu vermittelnden Dritten ein familiäres oder wirtschaftliches Naheverhältnis besteht.

Der Immobilienmakler erklärt, dass er entgegen dem in der Immobilienwirtschaft üblichen Geschäftsgebrauch des Doppelmaklers einseitig nur für den Vermieter tätig ist.


Infrastruktur / Entfernungen

Gesundheit
Arzt <500m
Apotheke <1.000m
Klinik <1.000m
Krankenhaus <1.500m

Kinder & Schulen
Schule <1.000m
Kindergarten <1.000m
Universität <1.000m
Höhere Schule <1.500m

Nahversorgung
Supermarkt <500m
Bäckerei <500m
Einkaufszentrum <1.000m

Sonstige
Geldautomat <500m
Bank <500m
Post <500m
Polizei <1.000m

Verkehr
Bus <500m
U-Bahn <1.000m
Straßenbahn <500m
Bahnhof <500m
Autobahnanschluss <1.500m

Angaben Entfernung Luftlinie / Quelle: OpenStreetMap

Klimaanlage: JA
Gartennutzung: JA
Provision: Gemäß Erstauftraggeberprinzip bezahlt der Abgeber die Provision.


Alle Details anzeigen

KONTAKT






 

Lasse dich kostenlos vom Anbieter dieser Immobilie zurückrufen.







 


 
Seifert Maxian Partner Immobilientreuhand GmbH & Co KG
Daniel Maxian
Telefonnummer anzeigen Telefon Allgemein: +4319346910200
Handy Bearbeiter: +43676842494200
 
Bitte dem Makler die FindMyHome.at - ID bekanntgeben: 5585875

BEWERTUNGEN DIESES ANBIETERS


Die Anzahl der Bewertungen dieses Anbieters ist noch nicht aussagekrätig.
 
Auch du kannst bewerten! 7 Tage nach deiner Anfrage erhältst du dafür von uns ein Bewertungsmail.
Alle Infos zu unseren Auszeichnungen und dem FINDMYHOME.AT Qualitätsprogramm findest du hier: Übersicht anzeigen


Du willst wissen, wie viel dein Umzug kosten wird?

Mach gleich den kostenlosen Preisvergleich und schau, welche seriösen Anbieter in deiner Region günstig deinen Umzug organisieren


ZUM UMZUGS-VERGLEICH
-->

MYHOME BLOG
SuchAgentin auf FindMyHome.at
Unterschiedlichen Rechtsthemen, köstliche Rezepte, neueste Design-Highlights, sowie aktuelle Technik-Tools für Ihr Eigenheim.


FINDMYHOME.AT SUCHAGENTIN
SuchAgentin auf FindMyHome.at
Hallo, soll ich dir ähnliche Immobilien kostenfrei per E-Mail schicken?


ÄHNLICHE IMMOBILIEN
Aehnliche Immobilie - Vorschaubild 1

ERSTBEZUG in modernen NEUBAU mit FREIFLÄCHEN! - Objektnr. 5560346

59,13 m² - 3.0 Zimmer
1359.4 €
PLZ: 1100

Mehr anzeigen

Aehnliche Immobilie - Vorschaubild 2

ERSTBEZUG in modernen NEUBAU mit FREIFLÄCHEN! - Objektnr. 5571547

51,31 m² - 2.0 Zimmer
1236.06 €
PLZ: 1100

Mehr anzeigen

Aehnliche Immobilie - Vorschaubild 3

Neuwertige 64m² Wohnung mit Loggia, Garage & modernem Wohnko... - Objektnr. 5581505

64,00 m²
1452.06 €
PLZ: 1100

Mehr anzeigen

Durch die Nutzung unserer Seite erklären Sie sich mit der Verwendung von Cookies zur Verbesserung Ihres Online-Erlebnisses einverstanden. Detaillierte Informationen zu diesem und weiteren Themen erhalten Sie in unserer Datenschutzerklärung.