MEIN ERGEBNIS ANPASSEN

Renovierungsbedürftig-3. OG ohne Lift mit Ausblick! - Objektnr. 5585284

1130
Ort
54,46 m²
Fläche
2.0
Zimmer

ECKDATEN
FindMyHome.at // Externe Immobilien-ID5585284 // 4846
ImmobilienartWohnung - Eigentum
Anschrift1130 Wien
Baujahr1958
Stock3
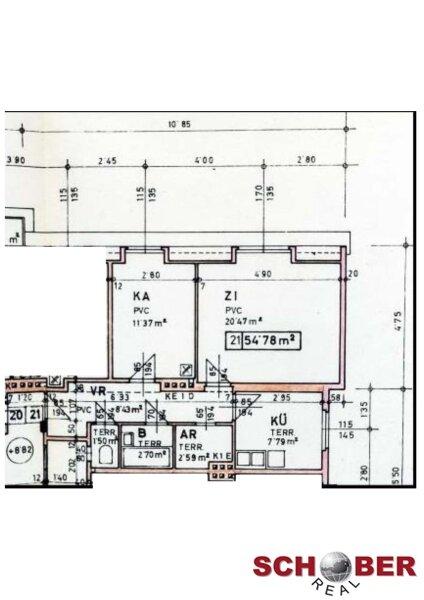
Fläche54,46 m²
Zimmer2.0
Kaufpreis:€ 199.000,00
Ratenzahlung:Finanzierungsmöglichkeiten für diese Immobilie anzeigen
Provision: 3% des Kaufpreises







BESCHREIBUNG

Renovierungsbedürftig-3. OG ohne Lift mit Ausblick!

Diese helle 2-Zimmer-Wohnung im Dachgeschoss eines gepflegten älteren Neubaus bietet nicht nur viel Platz, sondern auch einen atemberaubenden Ausblick auf die umliegende Natur.
Der Lainzer Tiergarten, direkt vor der Haustür, lädt zu erholsamen Spaziergängen und entspannten Stunden inmitten grüner Oasen ein.

Die Wohnung befindet sich im 3. Obergeschoss (kein Lift vorhanden) und verfügt über ein optimales Raumangebot:

  • Zentraler Vorraum
  • Wohnzimmer mit gemütlichem Holzofen
  • Küche mit praktischer Einbauküche
  • Schlafzimmer
  • Badezimmer mit Dusche
  • WC getrennt vom Bad
  • Abstellraum

Ein Kellerabteil bietet zusätzlichen Stauraum.

Das Highlight dieser Wohnung ist der wunderschöne Weitblick ins Grüne, der eine wohltuende Verbindung zur Natur schafft. Beheizt wird die Wohnung durch den Holzofen im Wohnzimmer und E-Radiatoren (Infrarot). Der Warmwasserboiler befindet sich in der Küche. Das Gebäude ist mit Gasanschluss ausgestattet, jedoch ist die Wohnung derzeit nicht daran angeschlossen.

Dank der fließenden Übergänge und getrennt begehbaren Zimmern entsteht eine harmonische Raumaufteilung, die den verschiedenen Wohnansprüchen gerecht wird. Diese Wohnung eignet sich nicht nur als angenehmes Zuhause, sondern auch als attraktives Anlageobjekt mit großem Potenzial.

Die Betriebskosten betragen derzeit € 250,82 brutto, einschließlich einer Reparaturrücklage von € 94,. Der Rücklagenstand liegt per 31.12.2024 bei rund € 65.000,. Ein Darlehen zur thermischen Sanierung des Hauses wird heuer vollständig abbezahlt.

DISCLAIMER:

Die in diesem Exposé gezeigten Bilder dienen ausschließlich der Illustration und können zum Teil KI generierte Visualisierungen umfassen. Sie sollen einen Eindruck von möglichen Gestaltungsvarianten der Immobilie vermitteln, stellen jedoch keine verbindliche Zusicherung hinsichtlich der tatsächlichen Ausführung dar. Die dargestellten Möbel und Einrichtungsgegenstände sind nur beispielhaft und nicht Bestandteil des Kaufobjekts.

 

Lagebeschreibung Natur und Infrastruktur im Einklang

Die Wohnung besticht nicht nur durch ihren Weitblick und die Nähe zum Lainzer Tiergarten, sondern auch durch die gute Anbindung an den öffentlichen Verkehr. Vis-à-vis befindet sich der Hackinger Schlosspark mit einem Kinderspielplatz. Die U-Bahn-Station U4 ist in nur 8 Minuten fußläufig erreichbar, und auch der Bus 53a bringt Sie in wenigen Minuten zur U4-Station Hütteldorf oder zum Wolfrathplatz, wo Sie zahlreiche Einkaufsmöglichkeiten wie Spar, DM, Pagro, Bäckerei Schwarz und viele Restaurants finden.

Auch ärztliche Versorgung sowie das St. Josef Krankenhaus sind schnell erreichbar. Kindergärten und Volksschulen befinden sich in unmittelbarer Nähe. Ausflugsziele wie der Lainzer Tiergarten, Himmelhof, Roter Berg und Girzenberg zeichnen die hohe Wohnqualität in dieser Gegend aus.

Der Bahnhof Hütteldorf ist bequem zu Fuß oder mit dem Bus 53B erreichbar, was eine schnelle Anbindung an den Rest Wiens garantiert.

 

Der Vermittler ist als Doppelmakler tätig.


Infrastruktur / Entfernungen

Gesundheit
Arzt <1.000m
Apotheke <1.000m
Klinik <2.000m
Krankenhaus <500m

Kinder & Schulen
Schule <500m
Kindergarten <1.000m
Universität <1.000m
Höhere Schule <5.000m

Nahversorgung
Supermarkt <500m
Bäckerei <500m
Einkaufszentrum <4.000m

Sonstige
Geldautomat <1.000m
Bank <1.000m
Post <1.000m
Polizei <1.500m

Verkehr
Bus <500m
Straßenbahn <1.000m
U-Bahn <500m
Bahnhof <500m
Autobahnanschluss <3.500m

Angaben Entfernung Luftlinie / Quelle: OpenStreetMap

Provision: 3% des Kaufpreises


Alle Details anzeigen

KONTAKT






 

Lasse dich kostenlos vom Anbieter dieser Immobilie zurückrufen.







 


 
SCHOBER REAL ImmobilienvermittlungsgmbH | Immobilienvermittlung
Alexandra Schober, MSc
Telefonnummer anzeigen Telefon Allgemein: +436643013180
 
Bitte dem Makler die FindMyHome.at - ID bekanntgeben: 5585284

Bewertungen dieses Anbieters
Qualitätsmakler
Qualitätsmakler:
2017, 2020,
Netiquette
Freundlichkeit

BEWERTUNGEN DIESES ANBIETERS

 
Qualit�tsmakler
Qualitätsmakler
2017, 2020
Freundlichkeit
BESONDERS
FREUNDLICH
Netiquette
FINDMYHOME
NETIQUETTE
Auch du kannst bewerten! 7 Tage nach deiner Anfrage erhältst du dafür von uns ein Bewertungsmail.
Alle Infos zu unseren Auszeichnungen und dem FINDMYHOME.AT Qualitätsprogramm findest du hier: Übersicht anzeigen

FINANZIERUNG
?>

Du willst wissen, wie viel dein Umzug kosten wird?

Mach gleich den kostenlosen Preisvergleich und schau, welche seriösen Anbieter in deiner Region günstig deinen Umzug organisieren


ZUM UMZUGS-VERGLEICH
-->

MYHOME BLOG
SuchAgentin auf FindMyHome.at
Unterschiedlichen Rechtsthemen, köstliche Rezepte, neueste Design-Highlights, sowie aktuelle Technik-Tools für Ihr Eigenheim.


FINDMYHOME.AT SUCHAGENTIN
SuchAgentin auf FindMyHome.at
Hallo, soll ich dir ähnliche Immobilien kostenfrei per E-Mail schicken?


ÄHNLICHE IMMOBILIEN
Aehnliche Immobilie - Vorschaubild 1

++Fasangarten++ Altbau mit Potenzial - 2 Zimmer zum Sanieren... - Objektnr. 5564161

47,33 m² - 2.0 Zimmer
189000 €
PLZ: 1130

Mehr anzeigen

Aehnliche Immobilie - Vorschaubild 2

++Fasangarten++ Altbau mit Potenzial - gepflegte 2 Zimmer-Wo... - Objektnr. 5564160

45,70 m² - 2.0 Zimmer
169000 €
PLZ: 1130

Mehr anzeigen

Aehnliche Immobilie - Vorschaubild 3

++Fasangarten++ Altbau mit Potenzial - sanierungsbedürftige ... - Objektnr. 5564155

48,93 m² - 2.0 Zimmer
179000 €
PLZ: 1130

Mehr anzeigen

Durch die Nutzung unserer Seite erklären Sie sich mit der Verwendung von Cookies zur Verbesserung Ihres Online-Erlebnisses einverstanden. Detaillierte Informationen zu diesem und weiteren Themen erhalten Sie in unserer Datenschutzerklärung.