MEIN ERGEBNIS ANPASSEN

Grün. Hell. Familienfreundlich. Willkommen in Ihrem neuen Zuhause! - Objektnr. 5584904


ökologisch beheizt
  • Garten 2
  • Garten
  • Garten 1
2700
Ort
118,98 m²
Fläche
4.0
Zimmer
WEITERE MEDIEN

ECKDATEN
FindMyHome.at // Externe Immobilien-ID5584904 // 75561
ImmobilienartHaus - Eigentum
AnschriftAckergasse/11
2700 Wiener Neustadt
Baujahr2025
Befeuerung
Fernwärme
Geschosse2
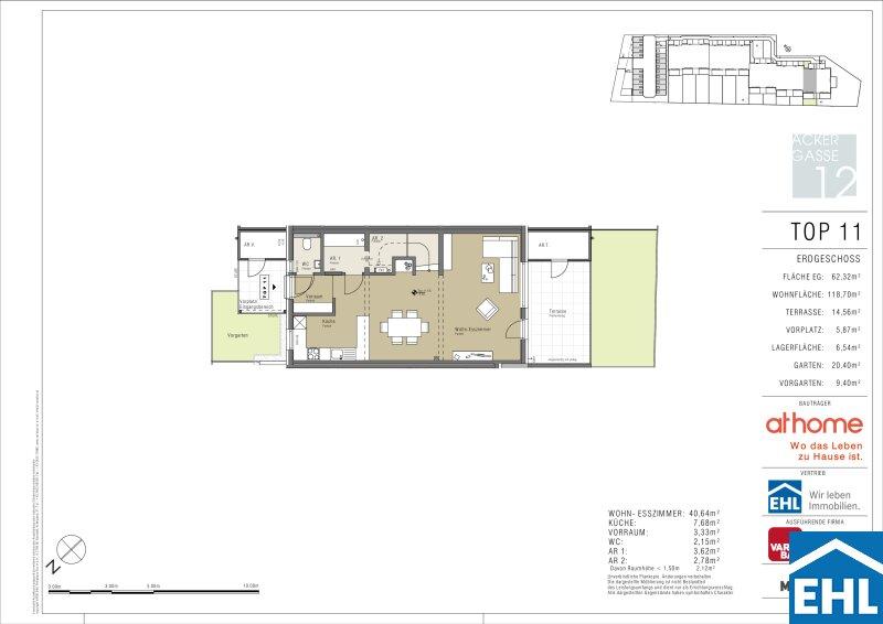
Fläche118,98 m²
Terrassen1 (15,00 m²)
Zimmer4.0
Bad2
WC2
 Abstellraum
Kaufpreis:€ 480.000,00
Ratenzahlung:Finanzierungsmöglichkeiten für diese Immobilie anzeigen
Provision: Provision bezahlt der Abgeber.







BESCHREIBUNG

Grün. Hell. Familienfreundlich. Willkommen in Ihrem neuen Zuhause!

ERSTBEZUG! Neu fertiggestellte Reihenhäuser in moderner Holzbauweise, die nicht nur nachhaltig, sondern auch unglaublich wohnlich sind. Perfekt für alle, die von einem Zuhause mit klarem Konzept, viel Licht und einer grünen Umgebung träumen. Direkt beim Wiener Neustädter Kanal liebevoll das Canale Grande von Niederösterreich genannt wohnen Sie dort, wo andere spazieren gehen. Viel Natur, viel Ruhe und trotzdem top angebunden: Der Bahnhof Civitas Nova liegt gleich ums Eck.

Architektur zum Wohlfühlen

Von Anfang an durchdacht: Nachhaltigkeit trifft auf Funktionalität, modernes Design auf gemütliches Wohngefühl. Auf ca. 118 m² Wohnfläche finden Sie den Raum, den Sie für Ihr Familienleben brauchen:

  • Erdgeschoss: Ein offener, lichtdurchfluteter Wohn- und Essbereich mit direktem Zugang zur Terrasse und zum eigenen Garten ideal für laue Sommerabende oder entspannte Sonntage im Grünen.
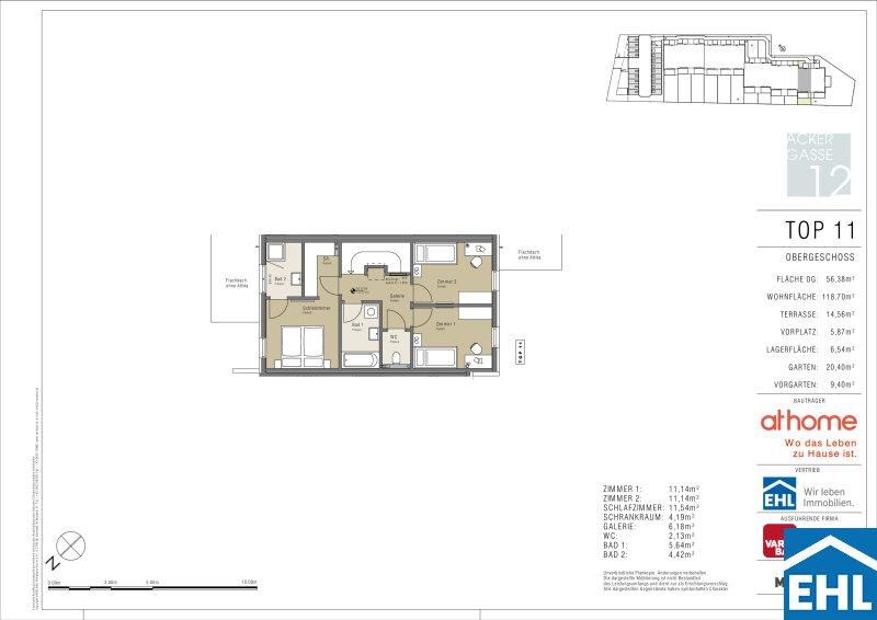
  • Obergeschoss: Drei Schlafzimmer und zwei moderne Bäder schaffen Raum für Rückzug und Erholung.
  • Wohngärten: Freundliche Eingangsbereiche und private Gärten heißen Sie jeden Tag aufs Neue willkommen.

Dank Südost-Ausrichtung sind die Räume wunderbar hell und schaffen eine Atmosphäre, die einfach gute Laune macht.

Ihr neues Zuhause auf einen Blick

  • 12 Reihenhäuser in ökologischer Holzrahmenbauweise
  • Ca.118 m² Wohnfläche auf 2 Etagen
  • Eigene Vorgärten, großzügige Terrassen & grüne Rückzugsorte
  • 3 Schlafzimmer, 2 Bäder & viel Stauraum
  • 19 PKW-Stellplätze
  • Baujahr 2025, bezugsfertig

Ausstattung, die begeistert

  • Hochwertige Parkettböden & moderne Fliesen
  • Sanitärausstattung auf aktuellem Top-Niveau
  • 3-fach-Isolierverglasung & elektrischer Sonnenschutz
  • Glasfaser-Internet (A1 & Magenta)
  • Fußbodenheizung über Fernwärme
  • Vorbereitung für Photovoltaik, Klimaanlage & Alarmanlage

Lage mit Lebensqualität

Die Kombination aus Natur und urbanem Komfort macht diese Reihenhäuser so besonders. Direkt am Kanal mit Radwegen, Spaziermöglichkeiten und viel Grün und trotzdem mitten in einer Stadt mit allen Vorzügen: Schulen, Kindergärten, Einkaufsmöglichkeiten und Freizeitangebote liegen nur wenige Minuten entfernt. Mit der Bahn sind Sie bestens angebunden egal ob Richtung Wien oder in die Region.

Bezugsfertig. Förderbar. Provisionsfrei.

Ihr Eigenheim wartet und es bringt alles mit, was modernes, nachhaltiges und leistbares Wohnen ausmacht.

© 2025, PROPERTY PHOTOS

Wir weisen darauf hin, dass zwischen dem Vermittler und dem zu vermittelnden Dritten ein familiäres oder wirtschaftliches Naheverhältnis besteht.

Der Vermittler ist als Doppelmakler tätig.


Infrastruktur / Entfernungen

Gesundheit
Arzt <1.500m
Apotheke <1.000m
Klinik <3.500m
Krankenhaus <2.000m

Kinder & Schulen
Schule <500m
Kindergarten <750m
Höhere Schule <2.500m
Universität <1.250m

Nahversorgung
Supermarkt <500m
Bäckerei <1.000m
Einkaufszentrum <1.000m

Sonstige
Bank <1.000m
Geldautomat <1.000m
Post <750m
Polizei <500m

Verkehr
Bus <500m
Autobahnanschluss <4.250m
Bahnhof <500m
Flughafen <1.500m

Angaben Entfernung Luftlinie / Quelle: OpenStreetMap

Provision: Provision bezahlt der Abgeber.


Alle Details anzeigen

KONTAKT






 

Lasse dich kostenlos vom Anbieter dieser Immobilie zurückrufen.







 


 
EHL Wohnen GmbH
Ingrid Neugebauer
Telefonnummer anzeigen Telefon Allgemein: +4315127690418
Handy Bearbeiter: +4369915212532
 
Bitte dem Makler die FindMyHome.at - ID bekanntgeben: 5584904

Bewertungen dieses Anbieters
Qualitätsmakler
Qualitätsmakler:
Netiquette
Freundlichkeit
82 %

BEWERTUNGEN DIESES ANBIETERS

 
Qualitätsmakler
UNSERE HALL OF FAME DER BESTEN ANBIETER
Qualit�tsmakler
Qualitätsmakler
2012, 2013, 2014, 2015, 2016, 2017, 2018, 2019, 2020, 2021, 22/23, 2024, 2025
Weiterempfehlung
WIRD GERNE

Freundlichkeit
BESONDERS
FREUNDLICH
Netiquette
FINDMYHOME
NETIQUETTE
Auch du kannst bewerten! 7 Tage nach deiner Anfrage erhältst du dafür von uns ein Bewertungsmail.
Alle Infos zu unseren Auszeichnungen und dem FINDMYHOME.AT Qualitätsprogramm findest du hier: Übersicht anzeigen

FINANZIERUNG
?>

Du willst wissen, wie viel dein Umzug kosten wird?

Mach gleich den kostenlosen Preisvergleich und schau, welche seriösen Anbieter in deiner Region günstig deinen Umzug organisieren


ZUM UMZUGS-VERGLEICH
-->

MYHOME BLOG
SuchAgentin auf FindMyHome.at
Unterschiedlichen Rechtsthemen, köstliche Rezepte, neueste Design-Highlights, sowie aktuelle Technik-Tools für Ihr Eigenheim.


FINDMYHOME.AT SUCHAGENTIN
SuchAgentin auf FindMyHome.at
Hallo, soll ich dir ähnliche Immobilien kostenfrei per E-Mail schicken?


ÄHNLICHE IMMOBILIEN
Aehnliche Immobilie - Vorschaubild 1

Home sweet Home - Objektnr. 5552993


131,16 m² - 4.0 Zimmer
499000 €
PLZ: 2700

Mehr anzeigen

Aehnliche Immobilie - Vorschaubild 2

Grün. Hell. Familienfreundlich. Willkommen in Ihrem neuen Zu... - Objektnr. 5584905

118,13 m² - 4.0 Zimmer
495000 €
PLZ: 2700

Mehr anzeigen

Aehnliche Immobilie - Vorschaubild 3

SOLIDER BUNGALOW MIT GUTER ANBINDUNG UND GROSSZÜGIGEM GARTEN... - Objektnr. 5483322

118,00 m² - 5.0 Zimmer
395000 €
PLZ: 2700

Mehr anzeigen

Durch die Nutzung unserer Seite erklären Sie sich mit der Verwendung von Cookies zur Verbesserung Ihres Online-Erlebnisses einverstanden. Detaillierte Informationen zu diesem und weiteren Themen erhalten Sie in unserer Datenschutzerklärung.